Holzbau mit Sonnenbalkon
Kindergarten in Reitdorf von LP Architektur
Viel Holz dominiert den Raumeindruck im Inneren. © Albrecht Schnabel
In einem Ortsteil des österreichischen Skiorts Flachau wurde die örtliche Volksschule zum Kindergarten umgenutzt und von LP Architektur durch einen Anbau aus Holz ergänzt.


Anbau aus Holz, © Albrecht Schnabel
Aus vier mach zwei – nach diesem Prinzip beschloss der Gemeinderat von Flachau vor einigen Jahren eine Neuordnung seines Bildungsangebots. Zuvor hatte es im Hauptort und im Ortsteil Reitdorf je eine Volksschule und einen Kindergarten gegeben. Nun wurde die Volksschule in Flachau und die Kindergartengruppen in Reitdorf zusammengeführt.
Die dortige Schulturnhalle sowie den bestehenden Kindergarten ließ man abreißen und an ihrer Stelle einen zweigeschossigen Anbau aus Holz errichten. Für die Planung zeichnete das Büro LP Architektur aus dem benachbarten Altenmarkt verantwortlich.


Der Kindergarten bietet nun Platz für rund 180 Kinder in zehn Gruppen. © Albrecht Schnabel
Umbau
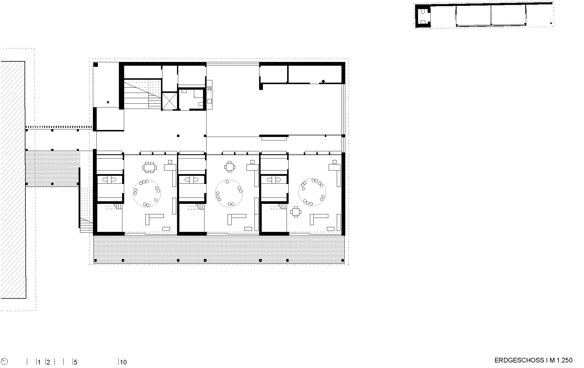
Nach Umbau und Erweiterung bietet der Kindergarten nun Platz für rund 180 Kinder in zehn Gruppen – vier im umgenutzten alten Schulhaus und sechs im Neubau. Ein zweigeschossiger Verbindungsgang mit im Süden vorgelagerter Veranda verbindet die beiden Gebäudeteile miteinander. Auch der kompakte Neubau selbst erhielt entlang seiner südlichen Längsseite tiefe, überdachte Veranden in beiden Geschossen.


© Albrecht Schnabel


© Albrecht Schnabel
Klare Zonierung der Grundrisse
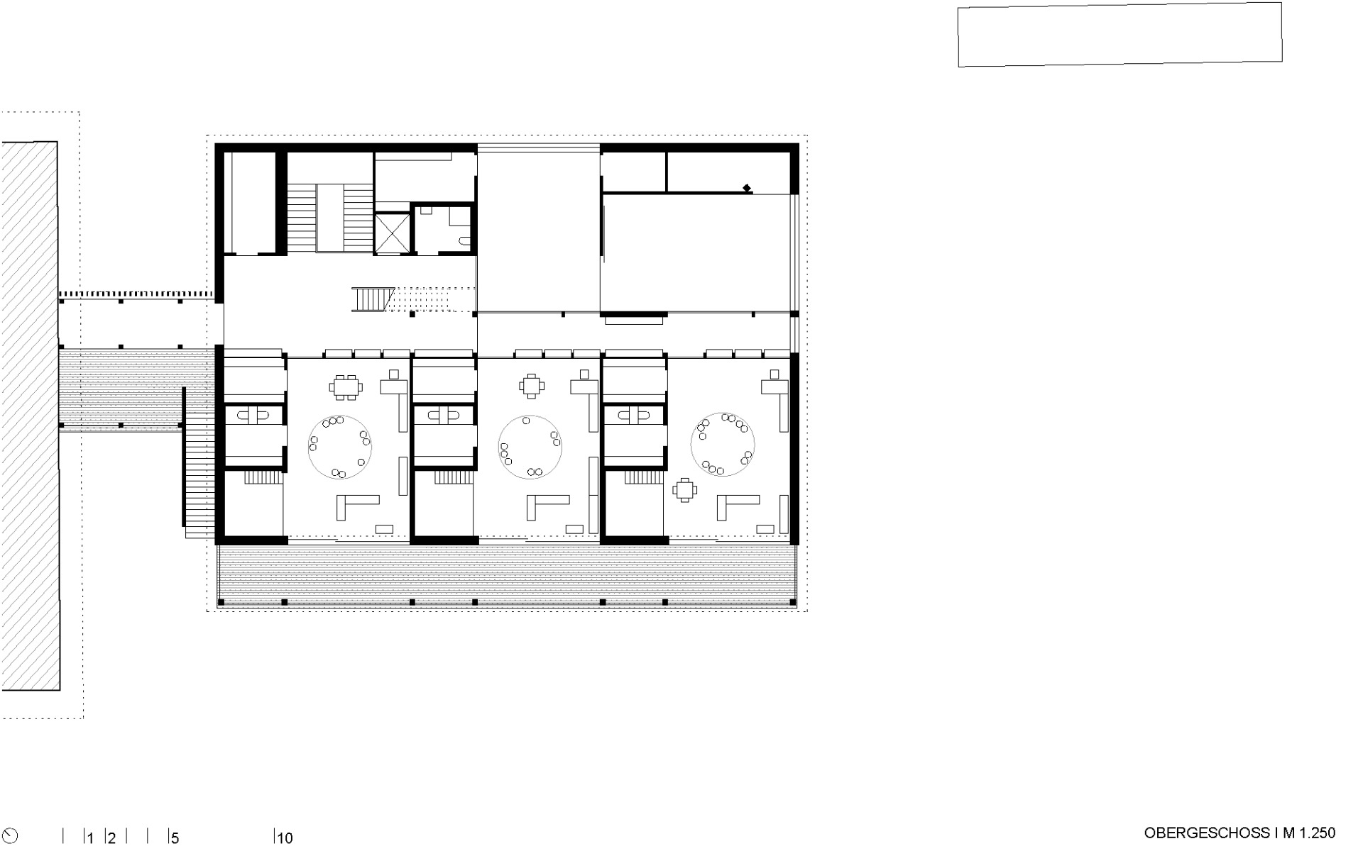
Die Grundrisse sind auf beiden Etagen praktisch gleich: An der Südfront liegen je drei Gruppenräume mit zugehörigen Nebenräumen, im Norden je zwei Bewegungsräume, das Treppenhaus und diverse Lagerräume. Unter dem flach geneigten Walmdach kommt eine kleine, von oben belichtete Mezzaninebene mit einem Mehrzweckraum hinzu. Große Verglasungen erlauben von hier aus Blicke hinunter ins erste Obergeschoss.


© Albrecht Schnabel


© Albrecht Schnabel
Viel Holz dominiert den Raumeindruck im Inneren wie auch das Fassadenbild. Innen bleiben die Decken- und Dachbalken größtenteils sichtbar. Die Decken und Außenwände bestehen aus Fichten-Brettschichtholz – letztere mit hinterlüfteter Außenverkleidung aus Lärchenholz. An den Fassaden gibt es eine subtile Materialvariation: Die Sockelzone erhielt eine Schindelverkleidung, die darüber aufgehenden Wände eine flächige Bretterschalung.
Architektur: LP architektur
Bauherr: Gemeinde Flachau
Standort: Kreuzmoosstraße 99, 5542 Flachau (AT)
Tragwerksplanung: Gruber ZT
Bauphysik: DI Graml
Brandschutz: Golser Technisches Büro
Elektrotechnik: e+engineering Ingenieurbüro Sieberer
HLS-Planung: Johannes Hasenauer
Holzbau: Innovaholz




















