Schwimmen, Turnen, Musizieren: Epicentre Glâne in Romont von GNWA
Foto: Rasmus Norlander
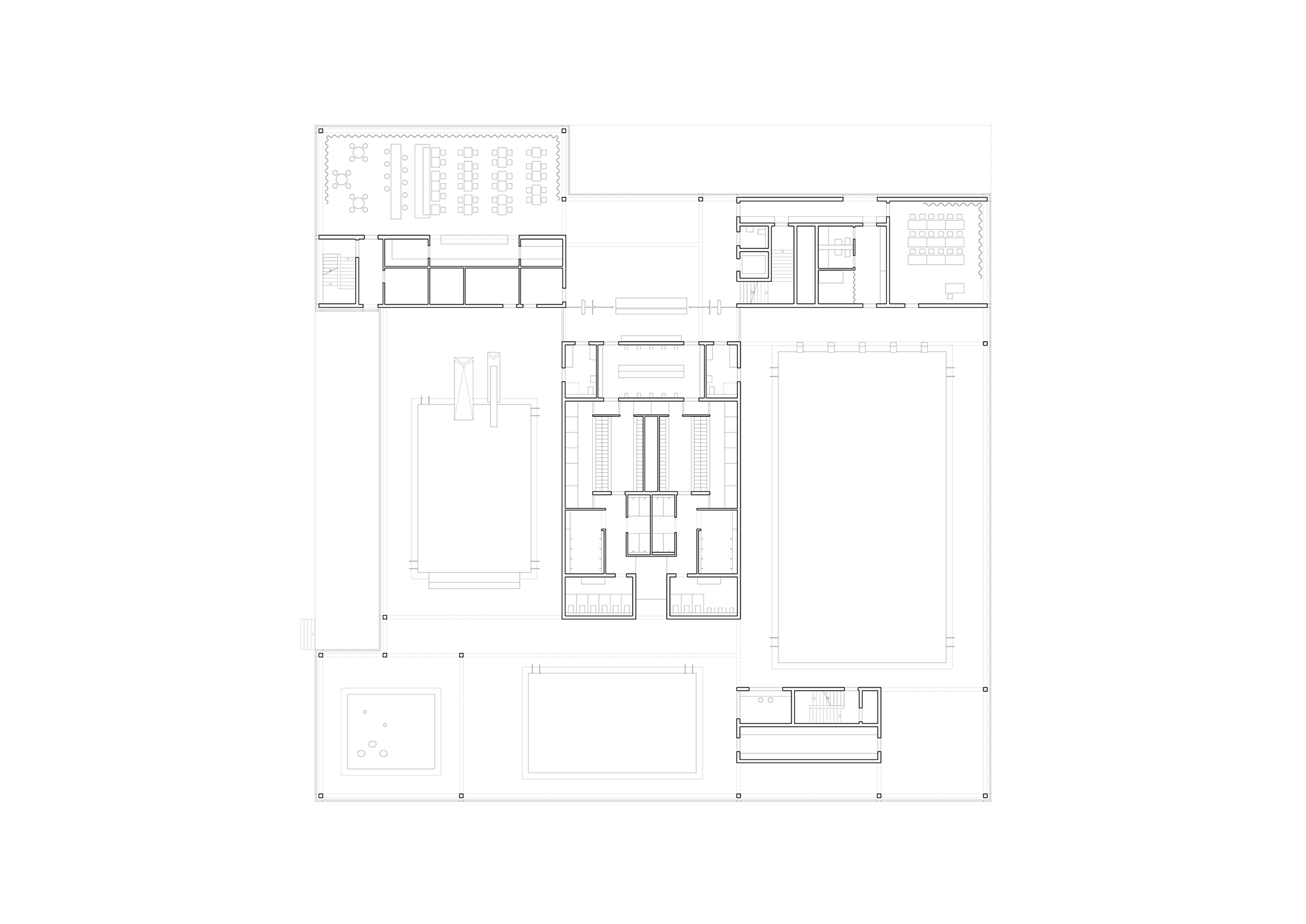
Hinter der nüchternen Fassade des Epicentre Glâne in Romont, im schweizerischen Kanton Fribourg, verbirgt sich eine Nutzungsvielfalt, wie sie in vielen öffentlichen Gebäuden derzeit erprobt wird. Die Architekten von GNWA bündeln drei Schwimmhallen, einen Sportbereich mit Fitness- und Gymnastikräumen, einen Wellnessbereich, eine Cafeteria und nicht zuletzt die Übungs- und Konzerträume des Freiburger Konservatoriums unter einem Dach. Der Neubau geht aus einem Wettbewerb im Jahr 2015 hervor, den GNWA zusammen mit Victor Figueras Corboud für sich entscheiden konnten. Er ersetzt das umgenutzte Schwimmbad der benachbarten Schule. Der Neubau liegt an der Erschließungsachse, die die Schule mit dem Bicubic, einem weiteren Mehrzweckgebäude, verbindet und ist dadurch für die Schüler gut erreichbar.
Die Architekten nutzten die leichte Hanglage und legten die Schwimmbecken mit der dazugehörigen Technik in den Gebäudesockel, sodass der Badebereich mit seinen verglasten Fassaden über dem Gelände schwebt. Auf diese Weise sind die Becken vor den Blicken der Passanten geschützt, aber die Besucher können dennoch den schönen Blick auf die Voralpen genießen. Die Cafeteria, der Theorieraum und das Foyer sind dagegen auf Straßenniveau angeordnet. Die zentral platzierten Umkleide- und Sanitärräume fungieren zugleich als haustechnischer Verteiler und können von allen Badegästen des Schwimm-, Sprung-, Plantsch- und Lehrschwimmbeckens genutzt werden. Um in das Obergeschoss zu den Sport- und Musikräumen zu gelangen stehen den Gästen gleich drei Treppenhäuser zur Verfügung, die windradförmig im Grundriss verteilt sind.
Zwei der Schwimmhallen und das Foyer können dank doppelter Raumhöhe von oben mit natürlichem Licht versorgt werden. Die Oberlichtbänder bringen die markanten geneigten Holzfachwerkbinder, die mit gelochten Akustikplatten verkleidet sind, gut zur Geltung und mildern die Härte der Sichtbetonwände. Auch in anderen Räumen dominieren die Sichtbetonflächen der Wände und Rippendecken, ergänzt durch nüchterne Stahlspinde, weiße Fliesen und teilweise hölzernen Akustikdecken. Nur der Wellnessbereich fällt aus dem Rahmen: Er ist gänzlich mit kleinen blauen Mosaikfliesen ausgekleidet.
Einen ausführlichen Essay zum Thema Schwimmbäder finden Sie in Detail 9.2021.
Weitere Informationen:
Wettbewerb: Weck Gonzalo & Victor Figueras Corboud
Heizungs-, Lüftungs-, Kälteplanung: Tecnoservice engineering
Baumanagement: Tekhne
Sanitärplanung: Duchein
Elektroplanung: srg engineering / scherler
Akustikplanung: D’Silence acoustique
Oberlichter: Velux
Badewassertechnik: Fehlmann
Beleuchtung: Zumtobel
Erkennungssystem für Ertrinkende: AngelEye
Türdrücker: FSB
Lichtschalter etc.: Albrecht Jung
Vorhänge: Kvadrat
Möbel Schwimmbad: Sdc lab, SDC bvba
Wände & Decken Wellness: Bisazza Keramische Wand- und Bodenbeläge (öffentliche Bereiche): Mosa
Hubböden Schwimmbecken: Elevo
Brandschutztüren: Delta Türsysteme





























