Filigrane Fassade
The Line von Orange Architects in Amsterdam
© Sebastian van Damme
Lorem Ipsum: Zwischenüberschrift
Das Gebäude mit 72 Mietwohnungen liegt inmitten von Overhoeks, einem dynamischen Wohn- und Arbeitsgebiet, in dem sich Gebäude und Grünflächen in einer campusartigen Umgebung abwechseln. Aufgrund der dichten Bebauung des Viertels war die Versorgung mit ausreichend Tageslicht auf Straßenebene ein wichtiges Planungsziel. Rücksprünge in den oberen Stockwerken sorgen für gute Tageslichtverhältnisse in den unteren Stockwerken.


© Sebastian van Damme
Lorem Ipsum: Zwischenüberschrift
Die Identität des Gebäudes wird durch ein feines Raster aus 7 cm dünnen Balkongeländern und 880 schlanken Betonstützen bestimmt. Orange Architects haben intensiv mit dem Betonspezialisten Hi-Con Nederland zusammengearbeitet, um die grazilen, hochfesten Balkonplatten und Stützen für The Line zu entwickeln.
Lorem Ipsum: Zwischenüberschrift
Hinter dieser schleierartigen Haut verbirgt sich eine weitere Schicht, die sich um die Außenwände des Wohnhauses wickelt. Dabei handelt es sich um die gegliederten vertikalen Aluminiumprofile, die in einem hellen Goldton eloxiert sind. Das Erstaunliche an dieser leuchtenden Farbe ist das dynamische Erscheinungsbild, das durch die verschiedenen Farbtöne und Schatten entsteht, wenn die Sonne durch das Gebäude scheint.


© Sebastian van Damme
Lorem Ipsum: Zwischenüberschrift
Die meisten Fassadenelemente können entfernt, recycelt und bei Bedarf wieder angebracht werden. Die Wohneinheiten sind an einen gemeinsamen Wärmespeicher angeschlossen, mit dem im Sommer gekühlt und im Winter geheizt werden kann.


© Sebastian van Damme


© Sebastian van Damme
Lorem Ipsum: Zwischenüberschrift
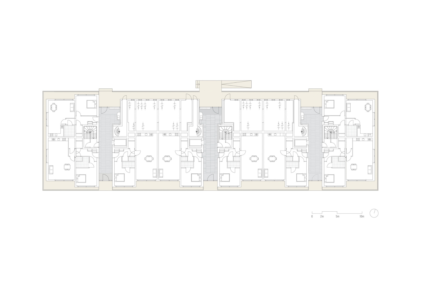
Im Erdgeschoss gibt es drei Haupteingänge, von denen aus man in die oberen Etagen gelangt, einen in der Mitte und zwei an den Enden der Wohnungen. Diese Eingangshallen sind mit hochwertigen Eichentäfelungen und dunklen Bodenfliesen ausgestattet, die mit weißen Lochdecken kontrastieren. Die oberen drei Etagen sind leicht reduziert, um ein Maximum an Tageslicht zur Straße hin zu gewährleisten.
Architektur: Orange Architects
Bauherr: Amvest
Standort: Hammarbystraat 156–302, Amsterdam (NL)
Bauunternehmen: Bouwbedrijf De Nijs
Beton: Hi-Con Nederland













