Theatersaal in Nykøbing
Theateranbau von Christensen & Co. und Primus Architekten
© Niels Nygaard
Lorem Ipsum: Zwischenüberschrift
Ein Team aus Christensen & Co. Architekten, Primus Architekten, STED und Oluf Jørgensen A/S hat in der dänischen Stadt Nykøbing einen ehemaligen Supermarkt in ein modernes Theater umgewandelt.


© Niels Nygaard
Lorem Ipsum: Zwischenüberschrift
Das neue Gebäude, des Odsherred Theaters ist wie eine Laterne – schwarz und dunkel von außen, mit glänzenden, goldenen Reflexen im Inneren. Die Hauptfassade besteht aus schwarzen Terrakotta-Ziegeln und erinnert an den Bühnenvorhang. Große Fenster ermöglichen es den Passanten, in das Theater hineinzuschauen und den Alltag in einem „Laboratorium der Performance“ zu verfolgen.
Lorem Ipsum: Zwischenüberschrift
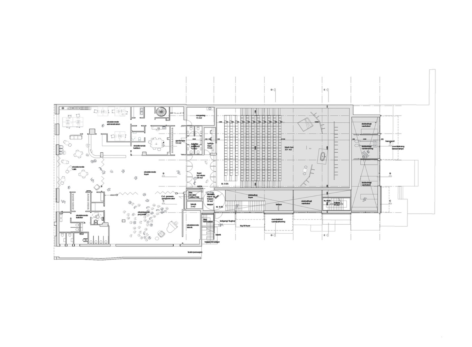
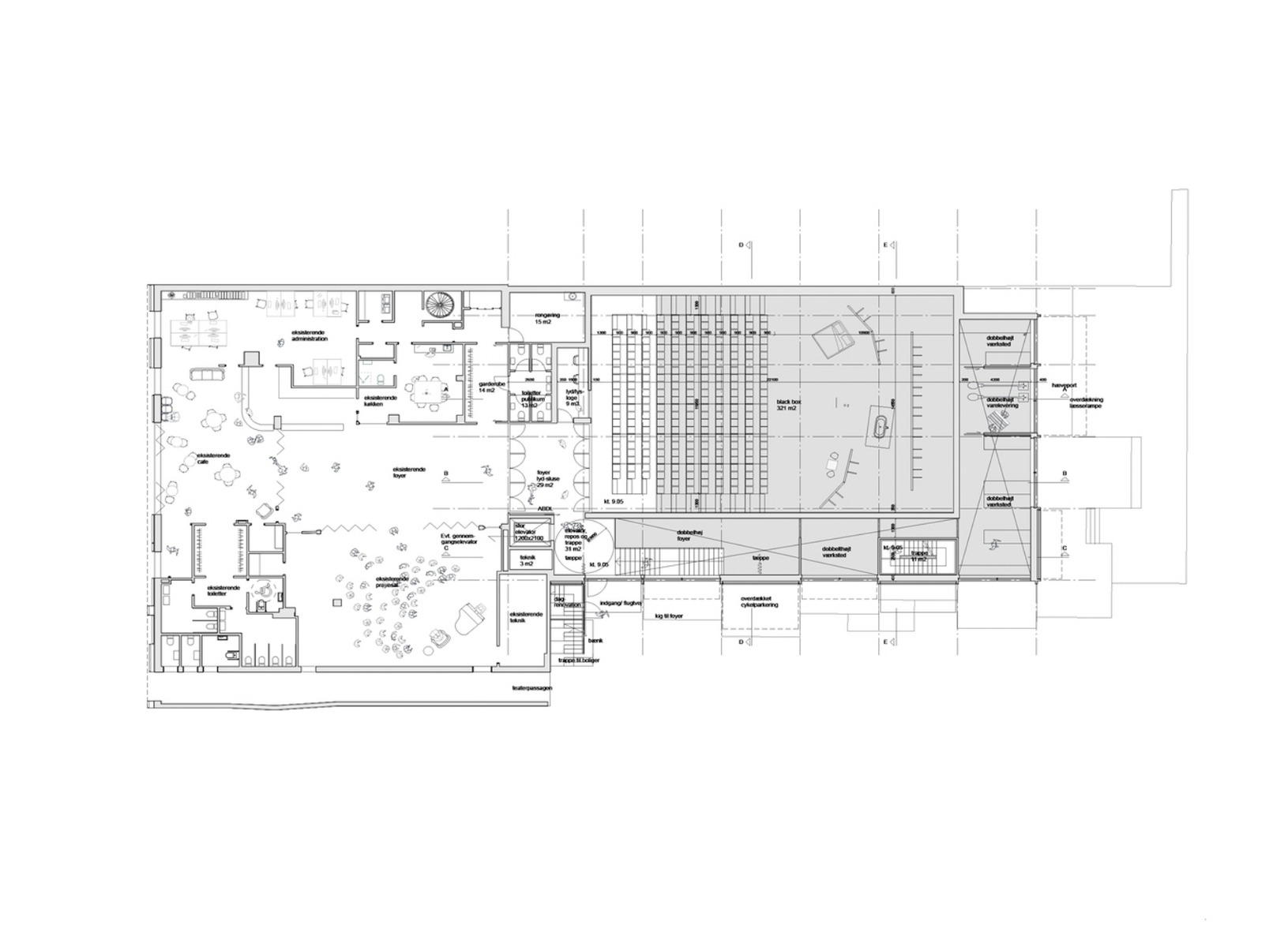
In den früheren Räumlichkeiten des Supermarkts befinden sich heute ein Theatercafé, ein Büro und der Eingang zum Neubau des Theaters, der sich hinter dem Gebäude befindet und auch über einen Zugang von der Fußgängerzone aus erreichbar ist.


© Niels Nygaard
Lorem Ipsum: Zwischenüberschrift
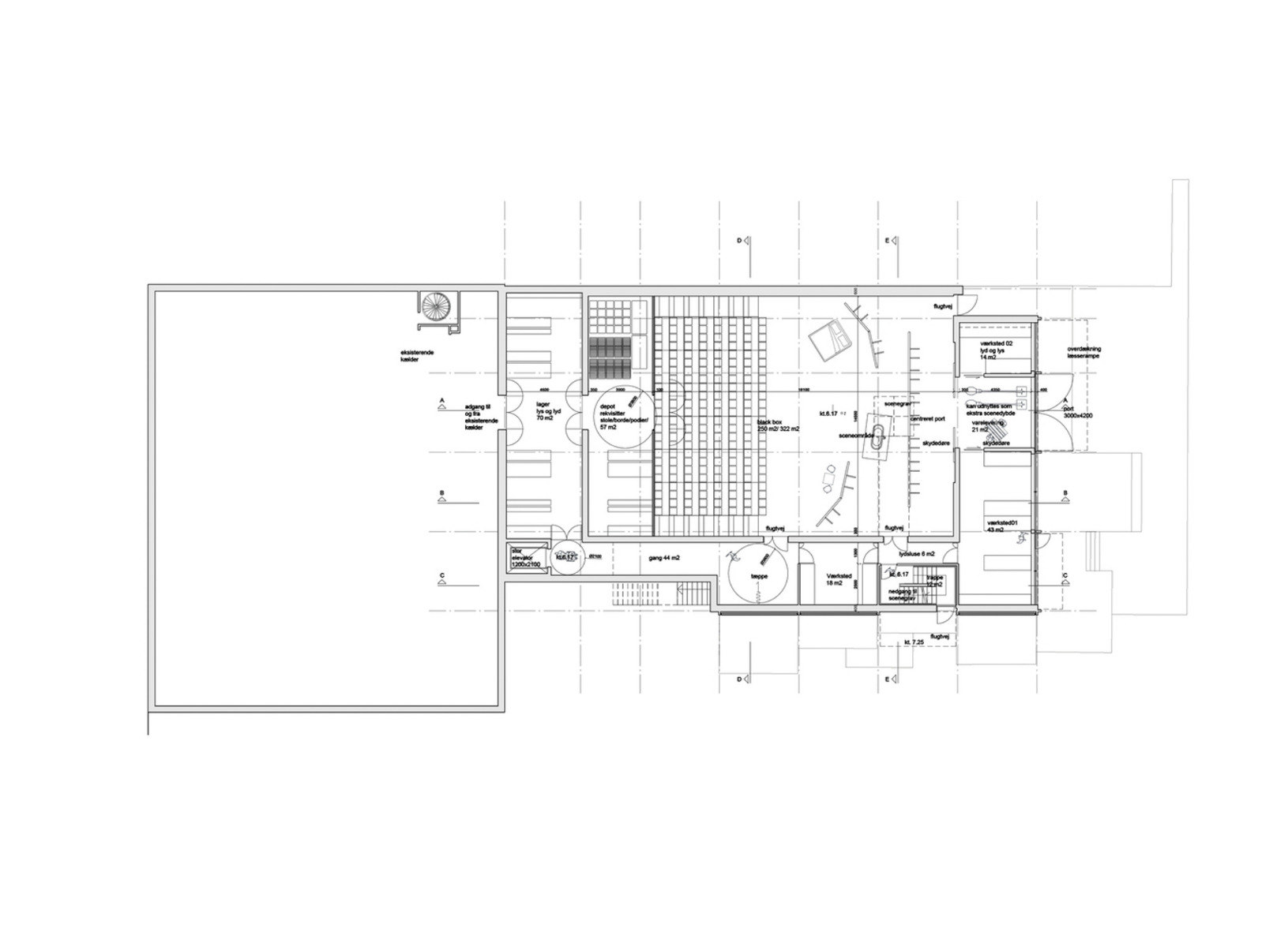
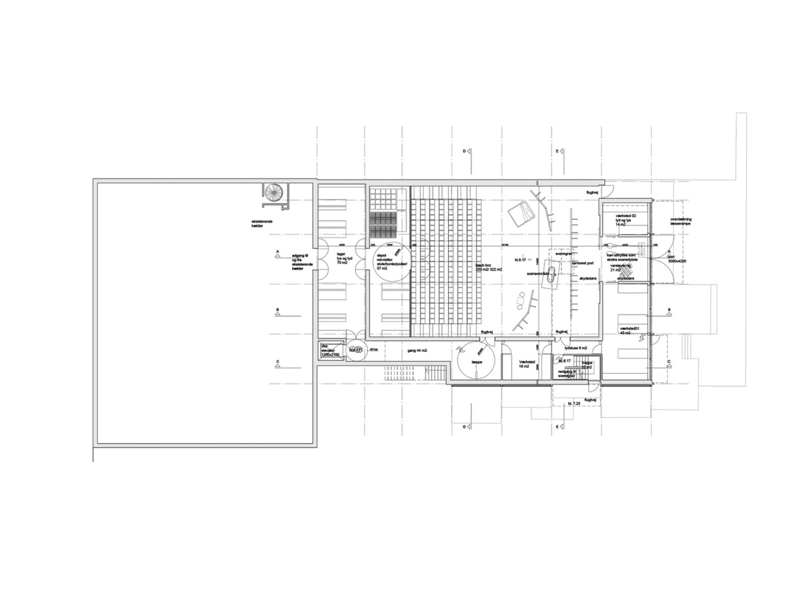
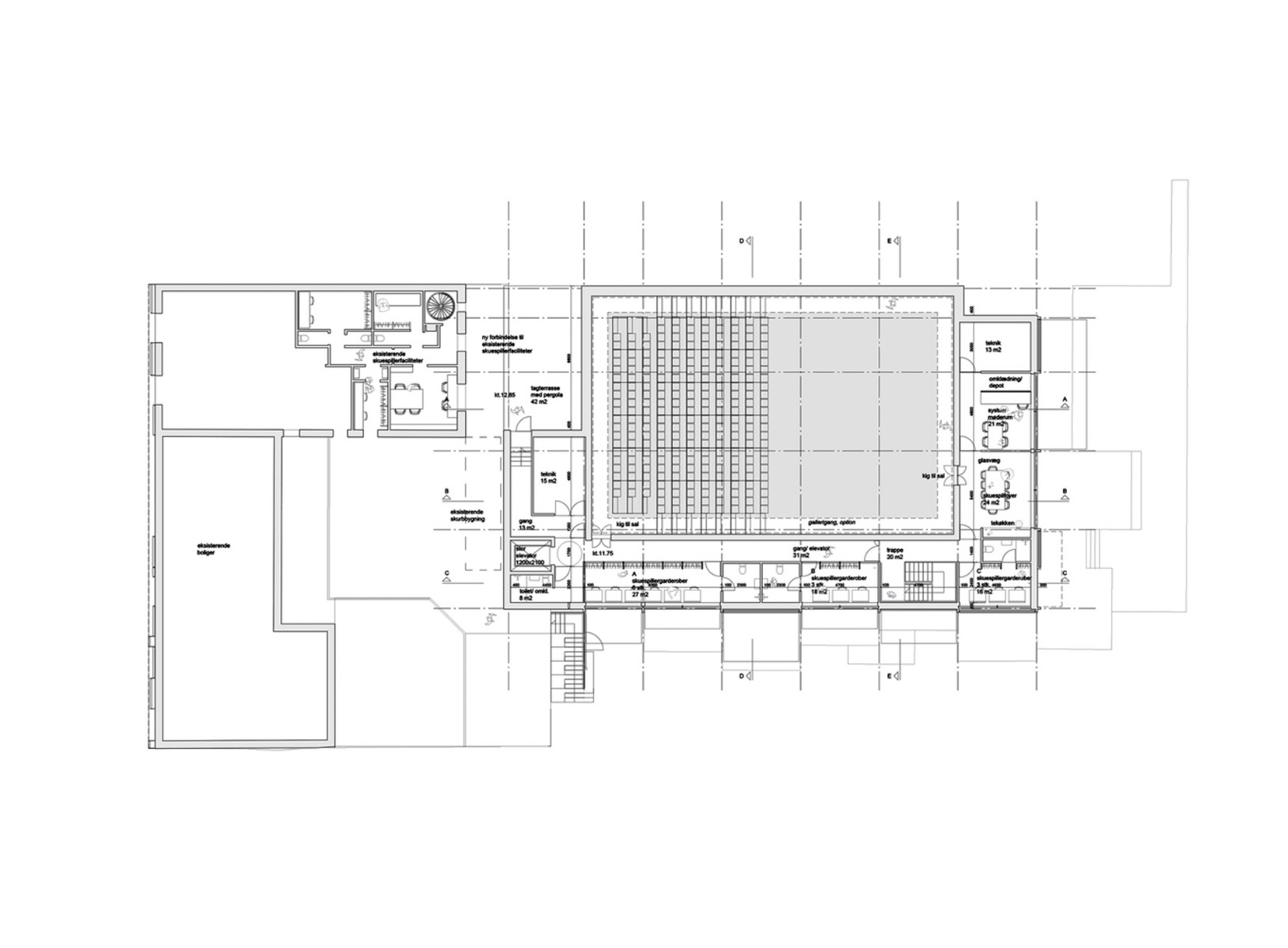
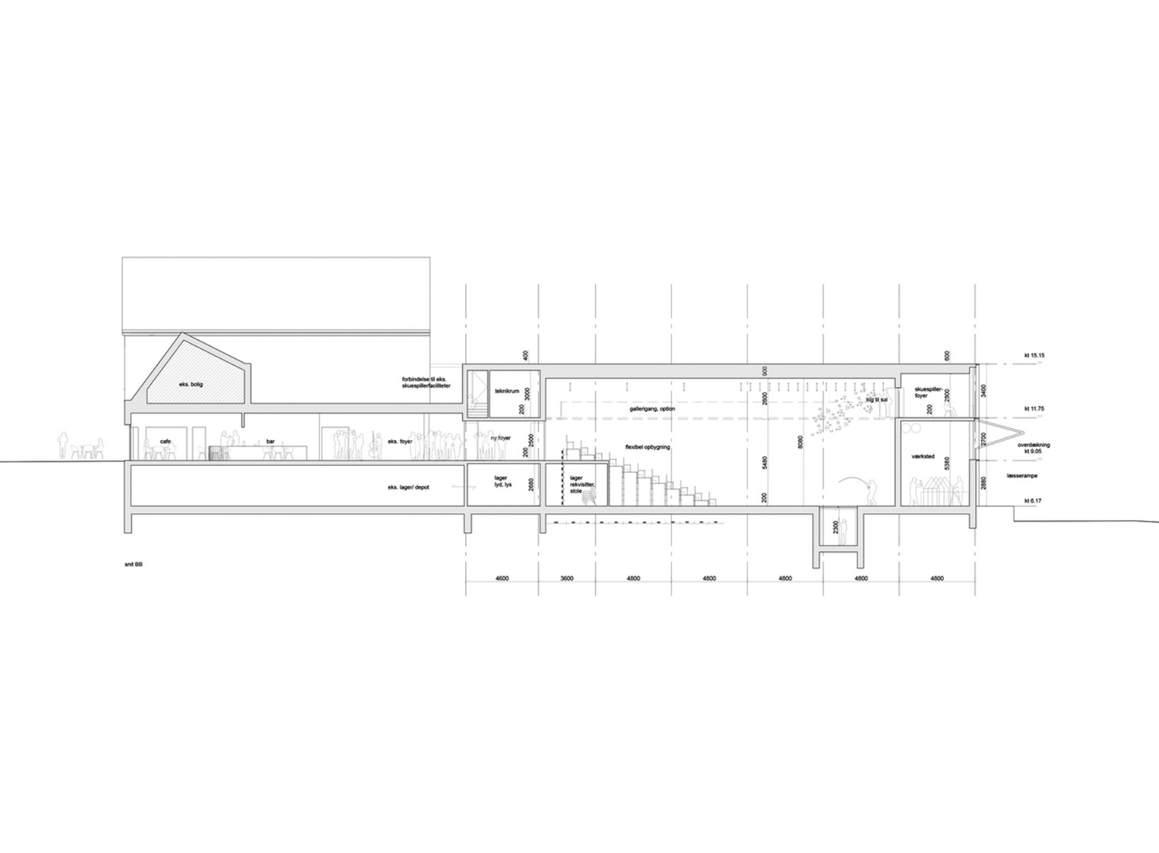
In der 300 m² großen Blackbox, die den schwarzen Kern des Theaters bildet, finden 230 Zuschauer Platz. An der einen Längsseite und an einem Ende der Box befinden sich die Technik, das Tor und die Garderoben der Schauspieler sowie einige andere Einrichtungen. Schwarze Akustik-Platten an allen Decken der Räume sorgen für Dunkelheit und gleichzeitig haben die Platten einen akustischen Effekt. Obwohl die Decken und Wände schwarz sind, zeichnen sich alle Räume, mit Ausnahme des Theatersaals, durch viel Tageslicht und Kontakt mit der Umgebung aus. Im Publikumsfoyer reflektieren goldene Wandplatten das Tageslicht und sorgen für eine angenehm warme Atmosphäre von innen heraus.


© Niels Nygaard


© Niels Nygaard
Lorem Ipsum: Zwischenüberschrift
Die Rückseite des Theaters ist von der Ästhetik der im Inneren verwendeten Mechanik inspiriert. Teile der Fassade bieten Einblicke in das Innere des Gebäudes, und die Rückseite des Gebäudes kann geöffnet werden, wodurch eine Verbindung zwischen dem Bühnenraum und dem umliegenden Gelände geschaffen wird. Zwischen den Außenbereichen und dem Bühnenraum befindet sich eine Werkstatt, in der Requisiten, Kulissen und andere Gegenstände für das Theater hergestellt werden.


© Niels Nygaard
Lorem Ipsum: Zwischenüberschrift
Das Gebäude zeigt offen seine Funktionen. Es erinnert an ein Industriegebäude und wird gleichzeitig als ästhetische Einheit wahrgenommen. Man versteht sofort, dass es sich hier um ein modernes Theatergebäude handelt.
Architektur: Christensen & Co Architects, Primus Arkitekter
Bauherr: Odsherred Gemeinde, Odsherred Theater
Standort: Nykøbing, Dänemark (DK)
Landschaftsarchitektur: Sted by of landskab
Akustik: Sweco



















