Passivhaus mit Aussicht
72 Sozialwohnungen in Barcelona
Vier große Einschnitte gliedern den kompakten Gebäudeblock von Mias Architects und Coll-Leclerc in kleinere Einheiten. © Adrià Goula
Das Viertel Marina del Prat Vermell liegt abseits der Touristenströme im Süden von Barcelona, zwischen dem Hafengebiet und den Abhängen des Montjuic. Mitte des 19. Jahrhunderts entstanden hier eine Reihe von Textilfabriken, die ihre Ware auf den umliegenden Wiesen trockneten. Der Name des Gebiets – deutsch etwa: Marina der roten Wiese – zeugt noch heute davon.


Alle Wohnungen öffnen sich auf mindestens zwei Seiten nach draußen – häufig wie hier über Loggien. © Adrià Goula
Einschnitte für mehr Tageslicht
Für ihren Neubau bekamen es Mias Architects und Coll-Leclerc mit einem ungünstigen, spitzwinklig-dreieckigen Grundstück zu tun. Eine Blockrandbebauung mit Innenhof hätte zu ungünstigen Belichtungsverhältnissen und vielen Wohnungen mit Nordausrichtung geführt. Stattdessen unterteilten die Architekten den Block durch vier unterschiedlich breite Einschnitte in Süd-Nordrichtung.
Wohnungen über Eck belichtet
In den so entstandenen fünf Einzelvolumen ist jede Wohnung mindestens nach zwei Richtungen orientiert. Die mittleren drei Volumen umfassen je vier Eckwohnungen pro Etage. In den beiden spitzwinkligen Baukörpern am westlichen und östlichen Ende sind die Wohnungen noch stärker exponiert: Sie öffnen sich zu allen vier Seiten nach draußen.


Die roten Fassadenelemente wurden vorgefertigt. Außen sind sie mit 17 mm dicken Faserbetonelementen verkleidet. © Adrià Goula
Vorgefertigte, rote Fassade
Auch bei der Annäherung von außen zeigen sich die Vorteile der Strategie: In der Über-Eck-Ansicht bleibt die markante Dreiecksform des Gebäudeblocks erkennbar. Von Süden oder Norden gesehen gliedern die Einschnitte dagegen die bis zu 92 m lange Gebäudekante in überschaubare Abschnitte. Für die Fassadengestaltung ließ sich das Planungsteam vom Namen und der Geschichte des Standorts inspirieren. Die geschlossenen Fassadenflächen bestehen aus vorgefertigten, 120 mm tiefen Stahlrahmenelementen mit integrierter Dämmung und einer Außenverkleidung aus rot durchgefärbtem, 17 mm dickem glasfaserverstärkten Beton.


Bis ins Detail haben die Architekten die spitzwinklige Geometrie des Baublocks durchdekliniert. © Adrià Goula


An den exponiertesten Stellen sind den Wohnungen Loggien vorgelagert. © Adrià Goula
Energieeffizienz nach Passivhausstandard
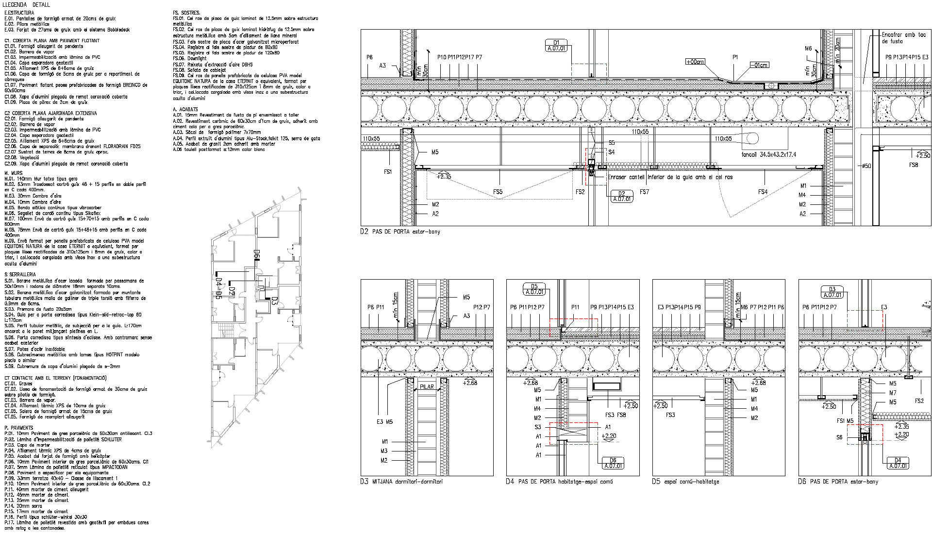
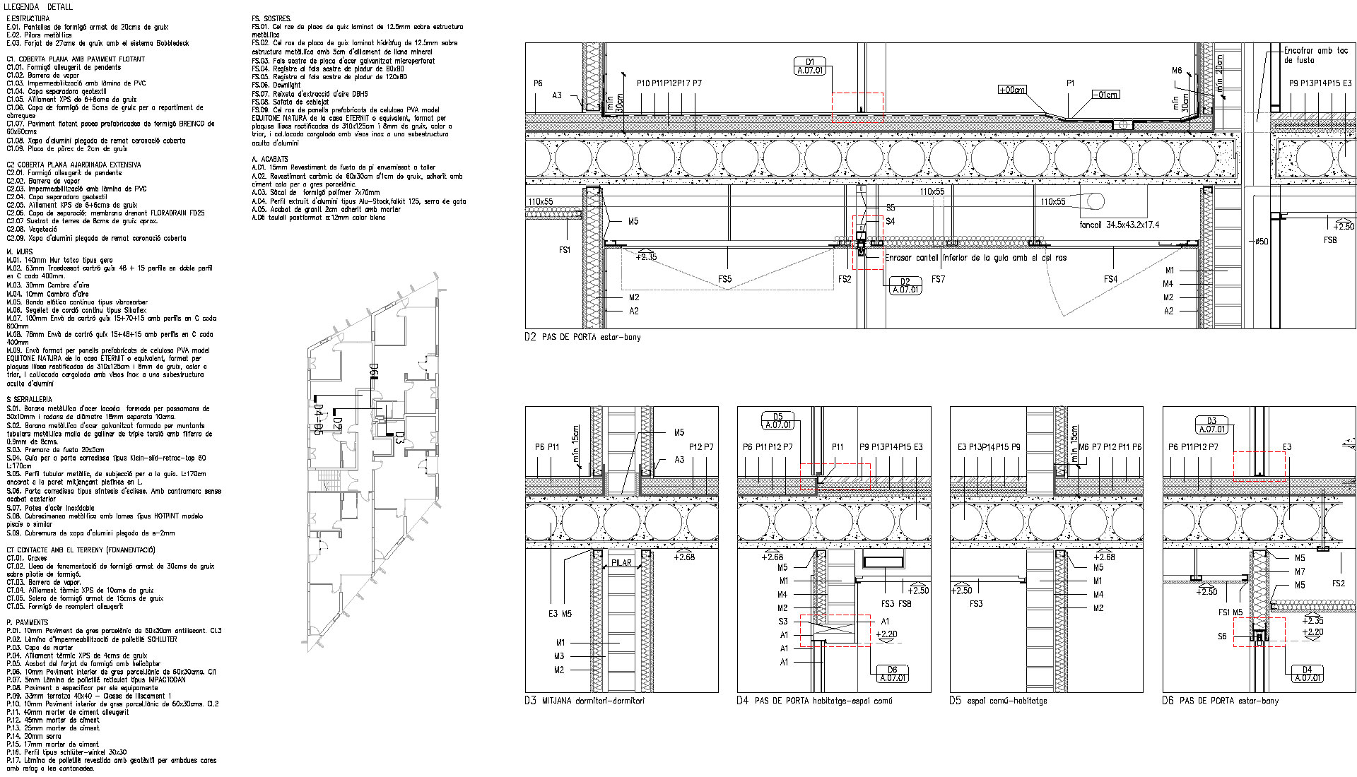
Mit der gut gedämmten Gebäudehülle erreicht die Wohnanlage einen Heizwärmebedarf von nur 8,76 kWh/m²a und erfüllt damit die Anforderungen des Passivhausstandards. Eine auf dem Dach installierte Photovoltaikanlage mit 37,8 kWp Leistung deckt rund 50 % des Energiebedarfs in den Häusern. Für die Bubbledeck-Hohlkörperdecken der Gebäude wurde laut Architekten rund 35 % weniger Beton benötigt als für herkömmliche Geschossdecken mit gleicher Tragfähigkeit.
Architektur: MIAS Architects + Coll-Leclerc
Bauherr: Institut Municipal de l'Habitatge i Rehabilitacio de Barcelona (IMHAB)
Standort: C/ Ulldecona 10, 08038, Barcelona (ES)
Bauunternehmen: OHLA – Guinovart
Geschossfläche: 7670 m²
Baukosten: 9 130 000 €




















