Neues Herz des Campus
Agnes-Heller-Haus in Innsbruck von Mohr Niklas Architekten
Das Agnes-Heller-Haus hüllt sich fast komplett in rote Betonfertigteile. © David Schreyer
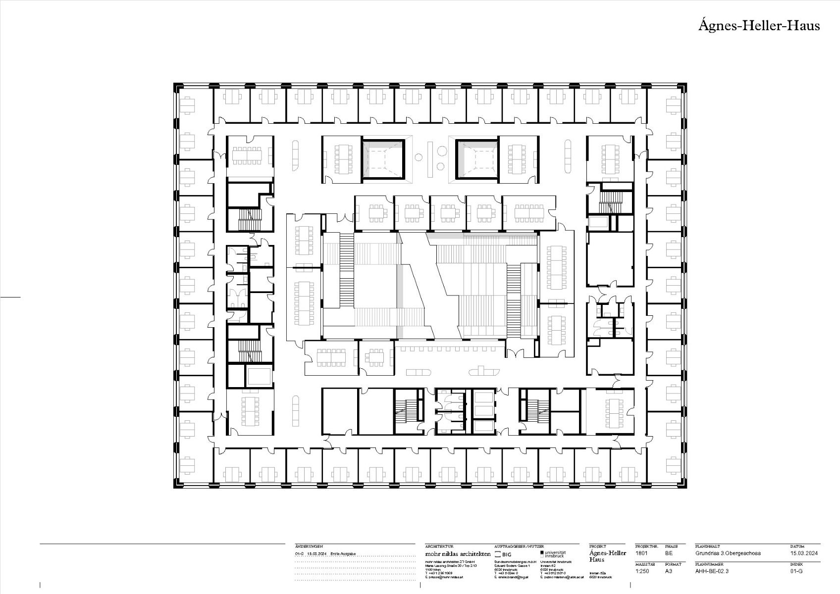
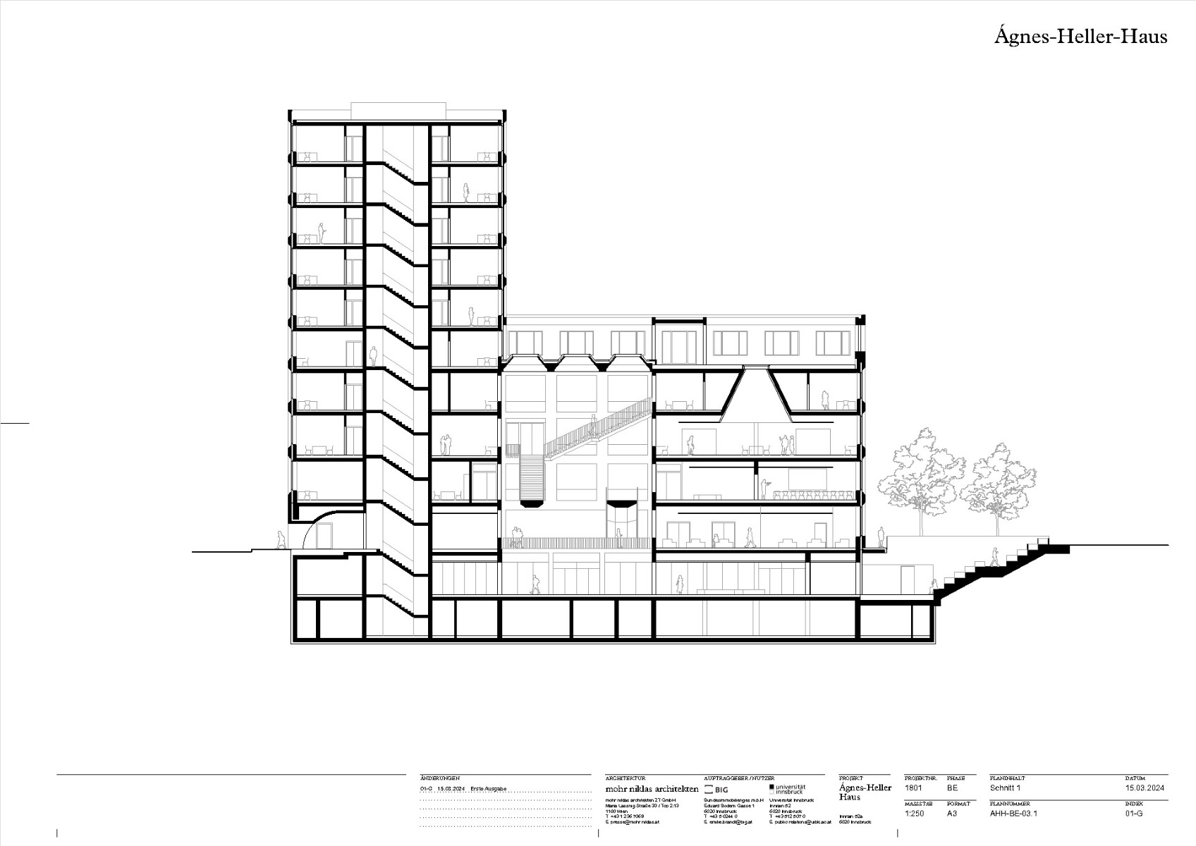
Rund 13 000 m² Fläche, verteilt auf zwei Unter-, fünf Sockel- und fünf Hochhausgeschosse: Schon durch seine Größe setzt das Agnes-Heller-Haus einen unverkennbaren städtebaulichen Akzent auf dem Campus Innrain der Universität Innsbruck. Der Neubau am Ufer des Inns liegt direkt neben dem alten Hauptgebäude der Universität. Er nimmt vor allem Institute der geistes-, kultur- und bildungswissenschaftlichen Fakultäten auf, die zuvor an unterschiedlichen Standorten untergebracht waren. Benannt ist er nach der 1929 geborenen ungarischen Philosophin Agnes Heller, die 2015 die Ehrendoktorwürde der Uni Innsbruck erhielt.
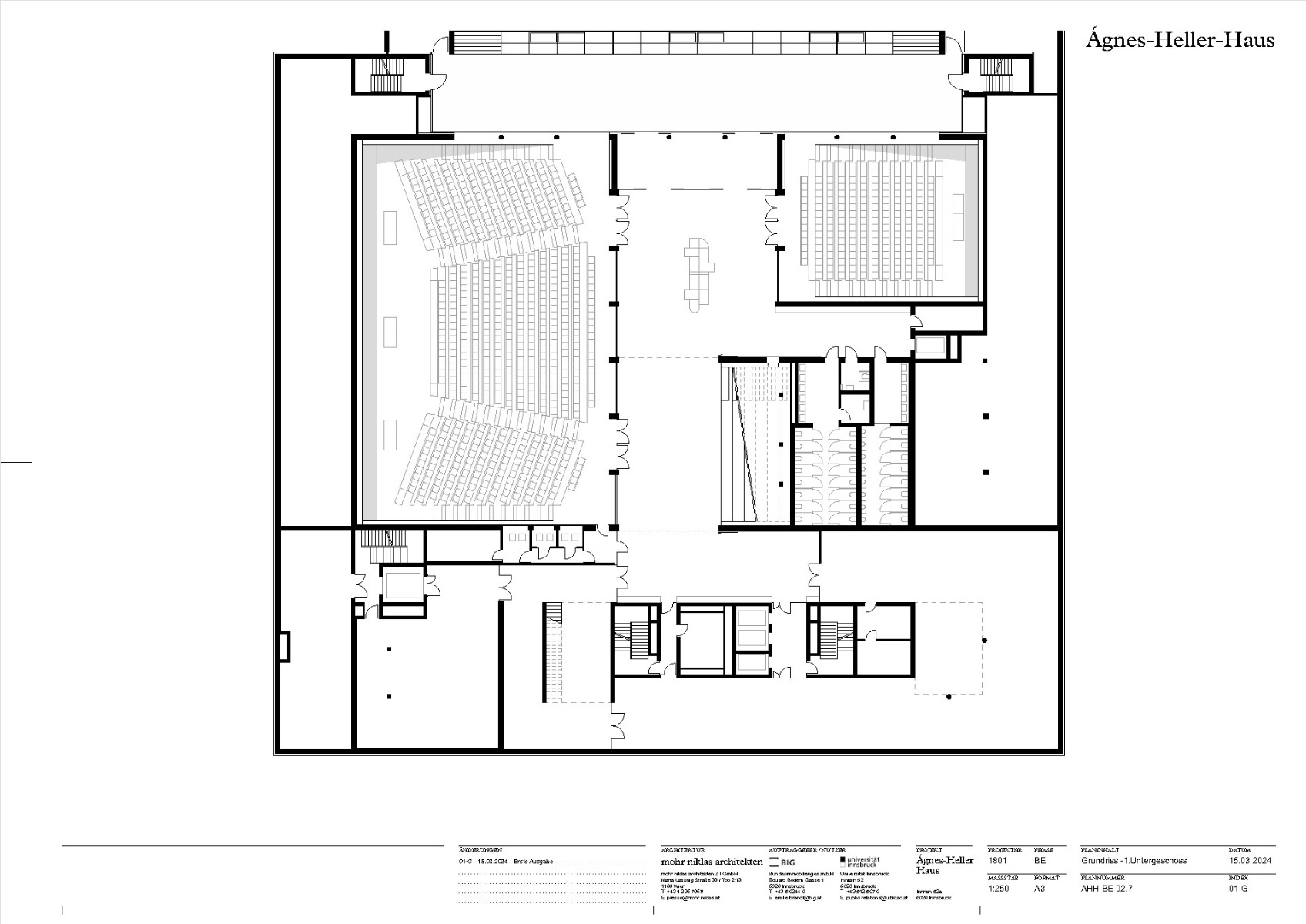
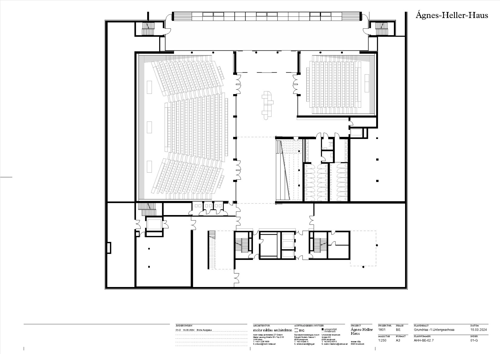
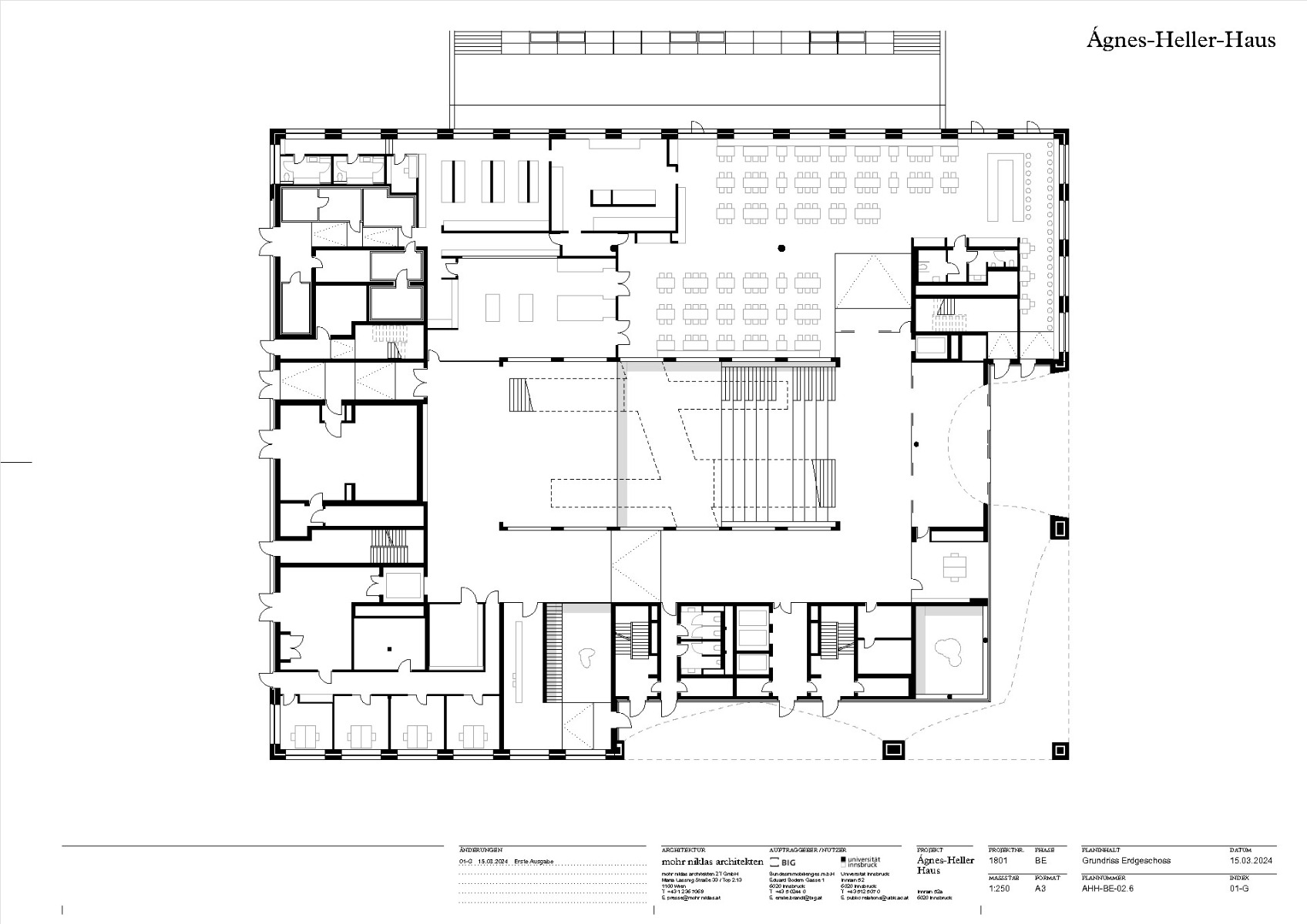
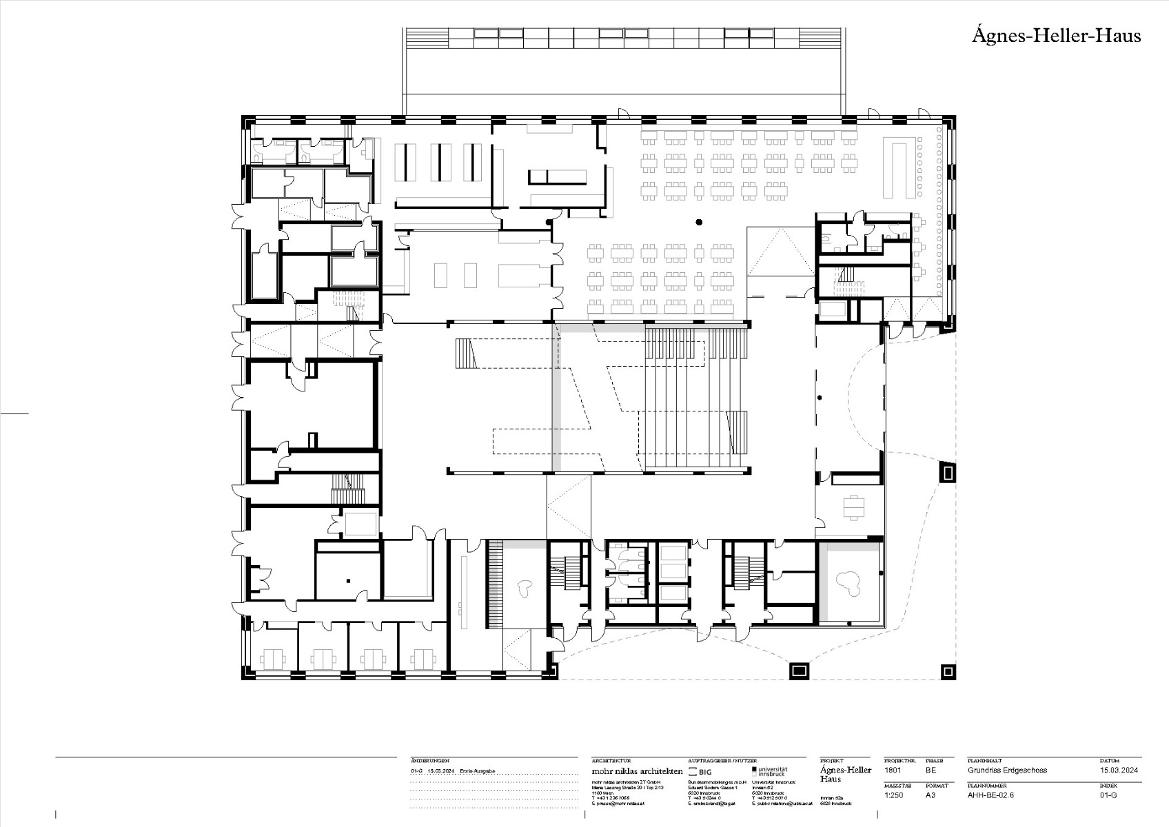
Mensa, Hörsäle, archäologisches Museum
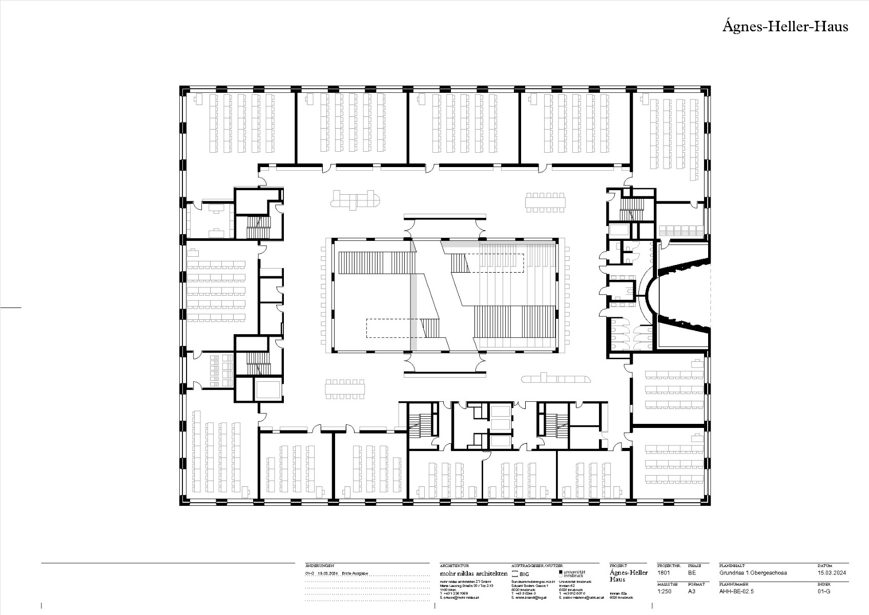
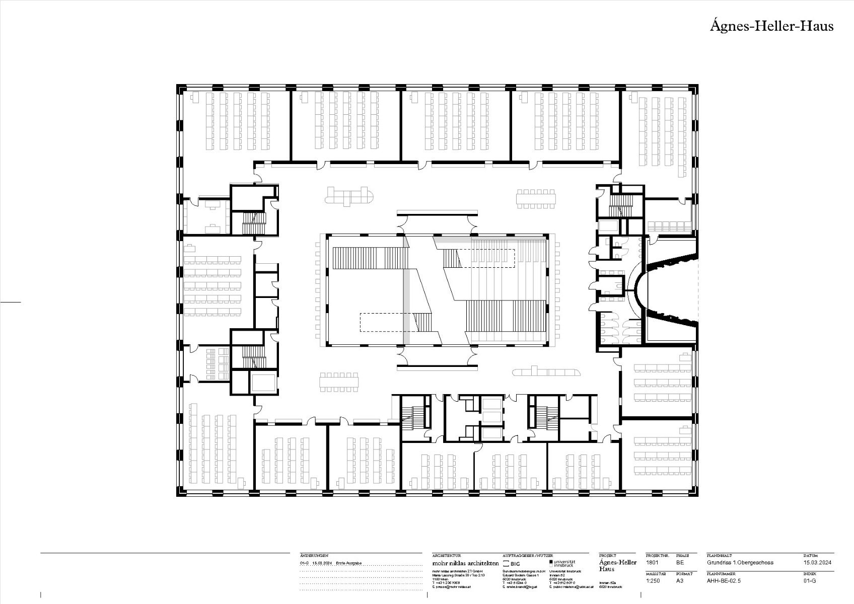
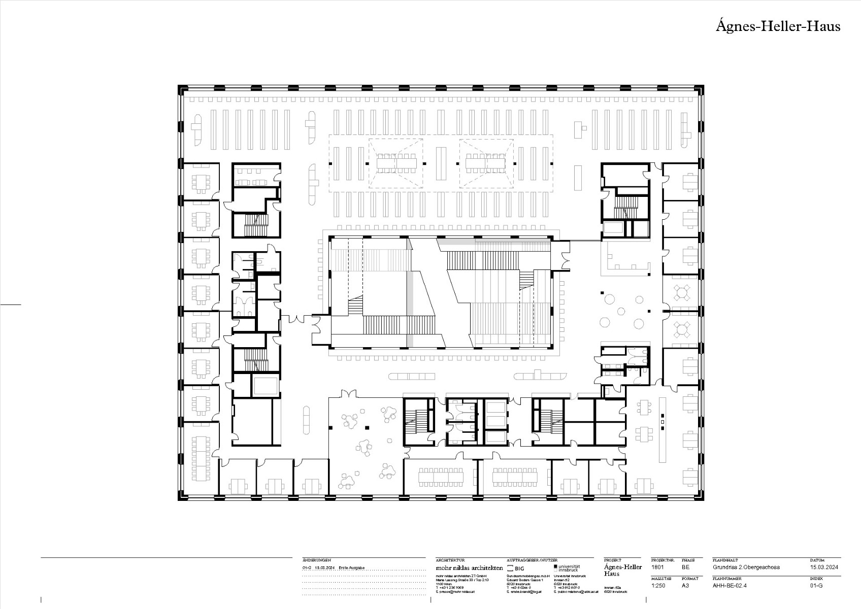
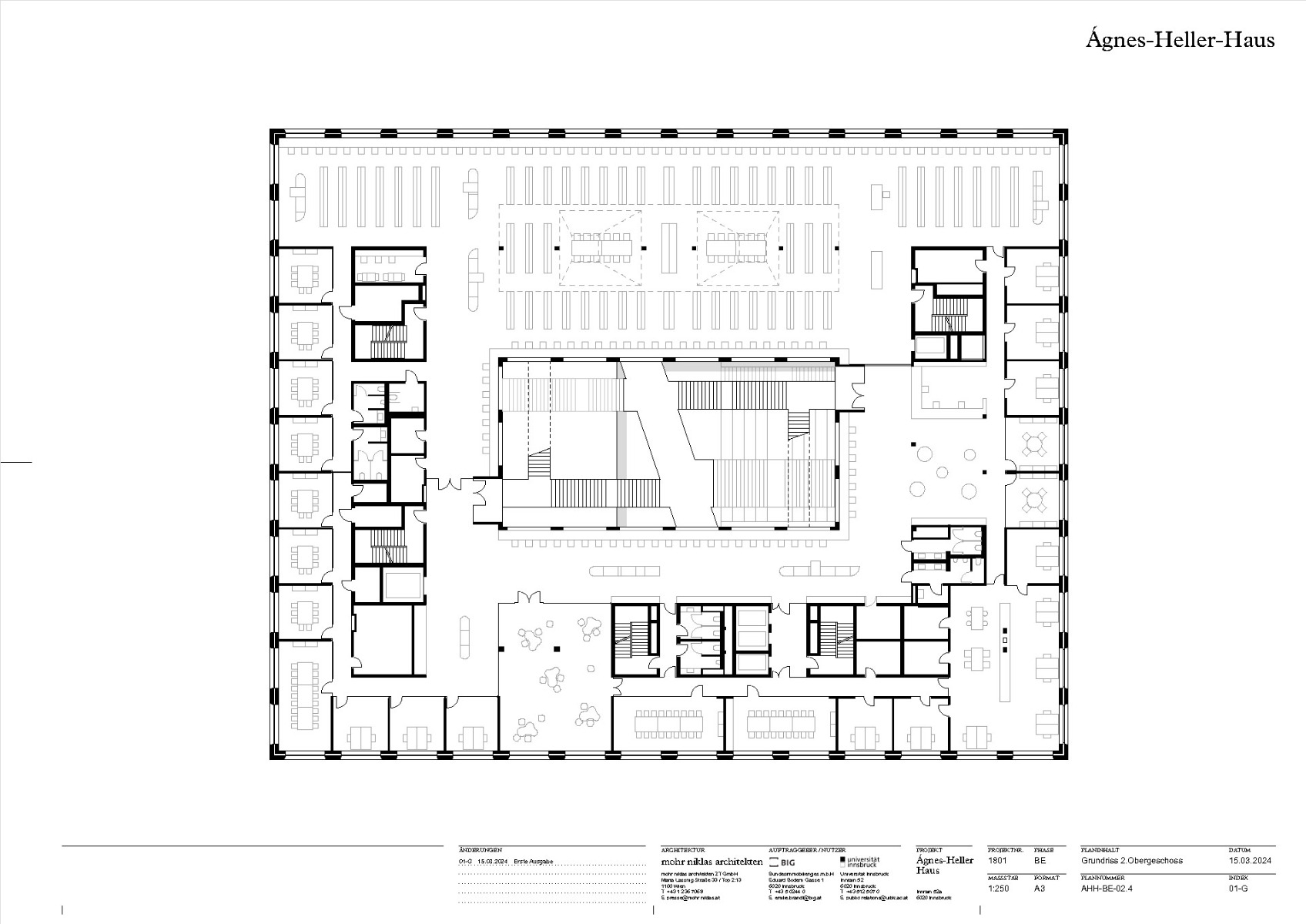
Im Haus wird jedoch nicht nur gelehrt und gelernt: Im Erdgeschoss gibt es eine Mensa, im ersten Untergeschoss hat das archäologische Museum der Universität neue Räume erhalten. Auch die beiden zweistöckigen Hörsäle im Haus liegen unter der Erde und erhalten dennoch Tageslicht. Einer davon dient zugleich als neues Audimax der Universität. In den Obergeschossen gruppieren sich Seminarräume, Lese- und Lernzonen rund um ein fünfgeschossiges, von oben belichtetes Atrium.


Ein von oben belichtetes, bis zu fünfgeschossiges Atrium bildet das kommunikative Zentrum des Neubaus. © David Schreyer
Fassadenraster aus Betonfertigteilen
Als viel frequentierter Bildungsbau sollte das Agnes-Heller-Haus aus robusten Materialien gebaut sein und dies auch nach außen zeigen. Die Architekten gaben ihm eine regelmäßig gerasterte Fassade aus rot gefärbten Betonfertigteilen. Nur an der Ecke zum Innrain scheren unterschiedlich breite Betonbögen aus der starren Ordnung aus – laut Architekten eine baukulturelle Referenz an die Arkaden der nahegelegenen Altstadt. Den höchsten der Bögen am Haupteingang ziert ein Betonrelief des Bildhauers Peter Sandbichler, Sieger eines vom Bauherrn ausgelobten Kunst-am-Bau-Wettbewerbs. Es besteht aus dreidimensionalen Rauten unterschiedlicher Größe, die am Fuß des Bogens relativ flach beginnen und nach oben hin zunehmend an Tiefe gewinnen.
Architektur: mohr niklas architekten
Bauherr: BIG – Bundesimmobiliengesellschaft
Standort: Innrain 52a, 6020 Innsbruck (AT)
Tragwerksplanung: Alfred Brunnsteiner - dibral
Landschaftsarchitektur: Kieran Fraser Landscape Design
Fassadenplanung: gbd projects
HKLS-Planung: Ingenieurbüro Pratzner
Kunst am Bau: Peter Sandbichler
























