Alles Holz: Rudolf-Steiner-Bildungszentrum von Kersten Kopp
Foto: Werner Huthmacher
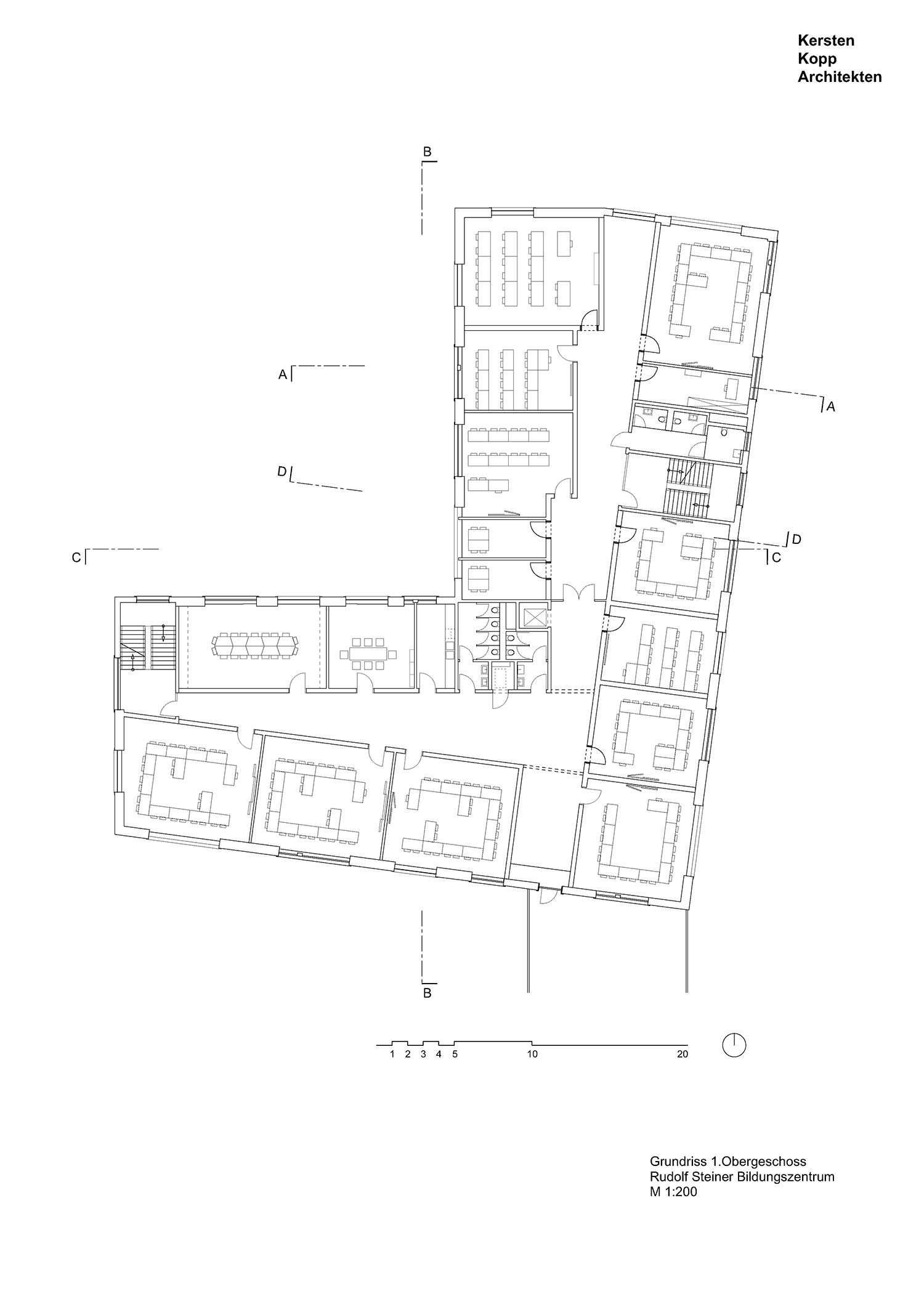
Das Rudolf-Steiner-Bildungszentrum fügt sich am nördlichen Rand des Grundstücks, parallel zur Monumentenstraße, in den Waldorf-Campus ein. Dort ergänzt es das 2016 eröffnete Bildungsensemble mit der Johannes-Schule, die das bauliche Zentrum des Geländes bildet und einem Kindergarten im Süden. Der dreistöckige Neubau besteht aus zwei Volumen, die sich über Eck L-förmig verbinden. Im Erdgeschoss trennt die beiden Trakte ein Durchgang, der aus westlicher Richtung zum Schulhof führt. Das Gebäude ist als Massivholzbau ausgeführt, lediglich Treppen- und Sanitärkerne sind aus Beton. Eine Brettschichtholzkonstruktion bildet das tragende Gerüst der Fassaden, welche rundherum in vertikale Latten aus sägerauer Lärche gehüllt sind. Weiß gerahmte Fenster komplettieren die Ansichten und bilden einen hellen Kontrast.
Die Erschließung des Rudolf-Steiner-Bildungszentrums erfolgt über den Durchgang zwischen den Bauten. Dort gelangt man entweder in den Nordtrakt mit Veranstaltungsbereichen für Musik und Eurythmie, oder den südlichen Teil mit administrativen Räumen, sowie einem großen Foyer, das sich zum Inneren des Waldorf-Campus orientiert. In den oberen beiden Niveaus verbinden sich die Volumen zu durchgehenden Geschossen. Die einzelnen Unterrichtsräume der Ausbildungsstätten sind entlang der Außenfassaden positioniert und werden von einem zentralen Flur zusammengefasst.
Neben den Außenansichten dominiert helles Holz auch die Gestaltung der Innenräume. Es kleidet Böden, Wände und Decken, bildet Treppenläufe und kreiert gemütliche Sitznischen in Form von Einbauten. Selbst in den vereinzelten Sichtbetonoberflächen zeichnet sich die Struktur der Holzschalung ab. Ein zartes Lindgrün setzt nicht nur den Durchgang in Szene, sondern sorgt auch für farbige Akzente in den Innenräumen und rundet das Gestaltungskonzept des Neubaus auf dem Waldorf-Campus harmonisch ab.



















