// Check if the article Layout ?>
Alles, was die Stadt braucht: Multifunktionsgebäude in Kopenhagen
Foto: Adam Mørk
Sundbyøster ist der südöstlichste und bevölkerungsreichste Stadtteil von Kopenhagen. Inmitten großer Einfamilienhausgebiete ist hier schon Anfang des 20. Jahrhunderts ein Vorposten der Urbanität entstanden. Schlichte, bisweilen endlos anmutende Blockränder mit fünfgeschossigen, aus Ziegeln gemauerten Mietshäusern säumen die Straßen. Die hippen Straßencafés und die Kulturangebote anderer Kopenhagener Stadtteile sucht man hier vergebens – in Sundbyøster wird vor allem gewohnt.
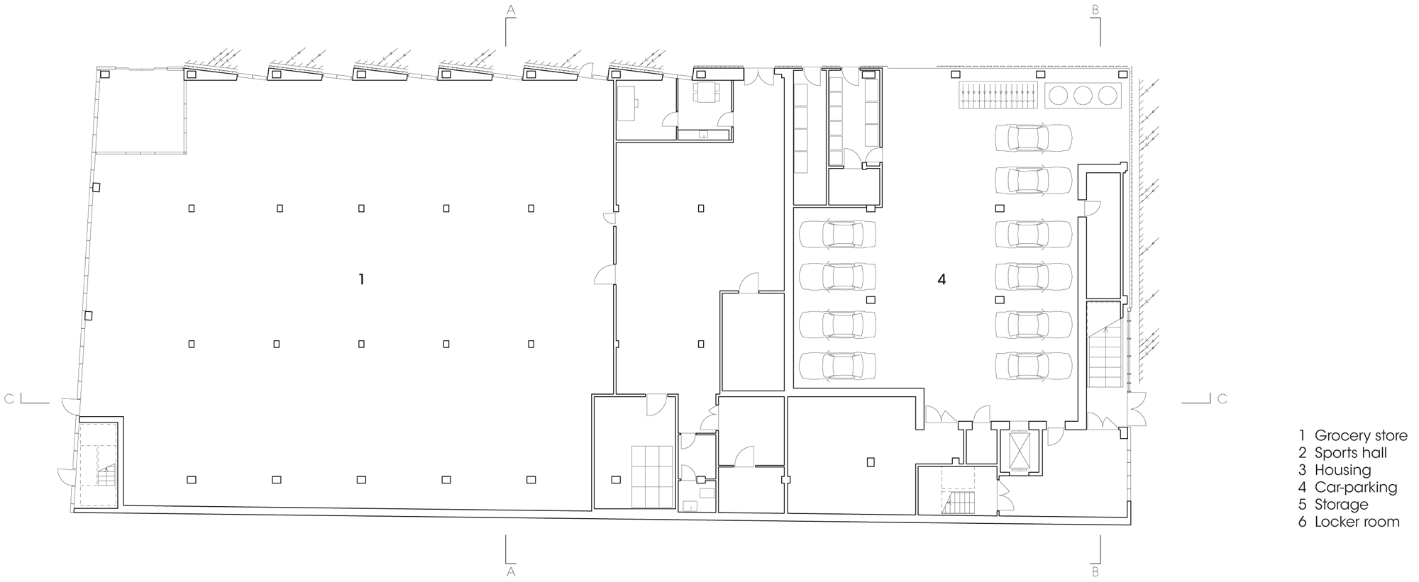
Doch auch ein solcher Stadtteil braucht Läden, Sportanlagen und andere öffentliche Einrichtungen – und das wenn möglich in enger räumlicher Nähe zueinander. Sie unter einem Dach zu vereinen wagt jedoch bisher kaum jemand. Bei der Sundbyøster Hall an der Parmagade war es nun soweit: In einer öffentlich-privaten Partnerschaft finanzierten die Stadt Kopenhagen und ein Privatinvestor gemeinsam eine Sporthalle mit kleinem Mehrzwecksaal, einen Supermarkt, eine Parkgarage sowie 12 Penthouse-Wohnungen.
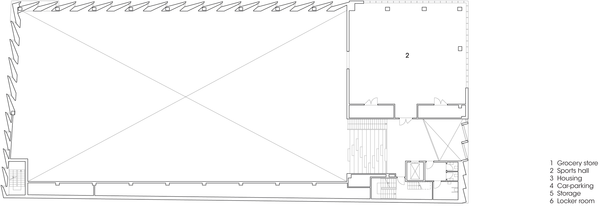
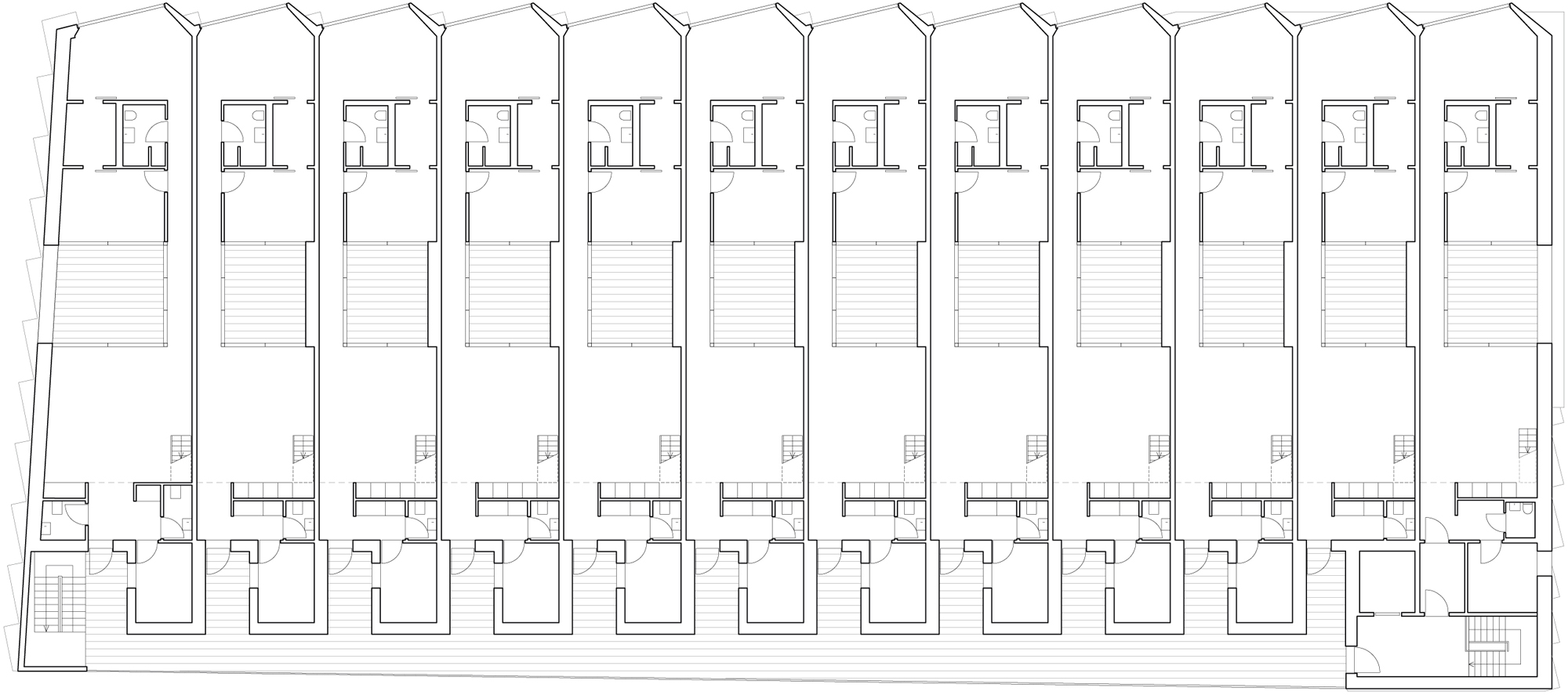
Die Funktionen sind in dem Gebäudekomplex von Dorte Mandrup deutlich abzulesen: unten der Supermarkt mit seiner Fassade aus Klarglas und Profilglastafeln, darüber die zweigeschossige Sportbereich mit einer Schuppenfassade aus rot lasierten Holzbrettern und darüber wieder die aluminiumverkleideten Penthouses, die sich mit ihren übergroßen Schlafzimmerfenstern nach Norden öffnen.
Stadtteilzentrum auf ehemaligem Parkplatz
Der Gebäudekomplex ist auf einem ehemaligen Parkplatz entstanden. An der Schmalseite im Westen grenzt er an eine viel befahrene Ausfallstraße; hier befindet sich auch der Eingang in den Supermarkt. Im Norden führt eine ruhigere Nebenstraße vorbei und an der Stirnseite im Osten gelangt man durch einen ein zweiten Eingang hinauf ins erste Obergeschoss, zur Sporthalle. Einzig die Südseite besteht momentan aus einer fensterlosen Brandwand, hier soll sich künftig ein Nachbargebäude anschließen.
Ideenreichtum war den Architekten vor allem bei der Konzeption der Sporthalle abverlangt. Weil die Gebäudebreite gerade für ein Handballfeld reicht, ordneten die Architekten die Zuschauerränge an der Stirnseite der Halle neben den Umkleiden an. Daneben führt eine Treppe hinauf ins zweite Obergeschoss, wo sich die komplett verglaste Gymnastikhalle nach Norden und Osten öffnet.
Die Wohnungen verfügen über ihre eigene Erschließung von der Südwestecke her. Ein Laubengang entlang der Südfassade erschließt die einzelnen Häuser, die hier lediglich als fensterlose Holzkuben in Erscheinung treten. Im Inneren und Richtung Norden sind sie dafür umso offener. Ein ringsum verglaster Innenhof trennt den zweigeschossigen Wohnbereich im Süden vom Schlafzimmertrakt im Norden, der seinerseits aus zwei Zimmern, Bad und Ankleide besteht. Über der Küchenzeile im Süden führt eine Treppe hinauf zu einer Galerie und einer zweiten, kleineren Terrasse mit Fernblick nach Süden.
Die rigide Schottenbauweise der Penthouses hat auch einen konstruktiven Grund: Die Wohnungstrennwände dienen zugleich als Stahlbeton-Überzüge für das Hallendach und ermöglichen es, die Sporthalle stützenfrei zu überspannen.
Doch auch ein solcher Stadtteil braucht Läden, Sportanlagen und andere öffentliche Einrichtungen – und das wenn möglich in enger räumlicher Nähe zueinander. Sie unter einem Dach zu vereinen wagt jedoch bisher kaum jemand. Bei der Sundbyøster Hall an der Parmagade war es nun soweit: In einer öffentlich-privaten Partnerschaft finanzierten die Stadt Kopenhagen und ein Privatinvestor gemeinsam eine Sporthalle mit kleinem Mehrzwecksaal, einen Supermarkt, eine Parkgarage sowie 12 Penthouse-Wohnungen.
Die Funktionen sind in dem Gebäudekomplex von Dorte Mandrup deutlich abzulesen: unten der Supermarkt mit seiner Fassade aus Klarglas und Profilglastafeln, darüber die zweigeschossige Sportbereich mit einer Schuppenfassade aus rot lasierten Holzbrettern und darüber wieder die aluminiumverkleideten Penthouses, die sich mit ihren übergroßen Schlafzimmerfenstern nach Norden öffnen.
Stadtteilzentrum auf ehemaligem Parkplatz
Der Gebäudekomplex ist auf einem ehemaligen Parkplatz entstanden. An der Schmalseite im Westen grenzt er an eine viel befahrene Ausfallstraße; hier befindet sich auch der Eingang in den Supermarkt. Im Norden führt eine ruhigere Nebenstraße vorbei und an der Stirnseite im Osten gelangt man durch einen ein zweiten Eingang hinauf ins erste Obergeschoss, zur Sporthalle. Einzig die Südseite besteht momentan aus einer fensterlosen Brandwand, hier soll sich künftig ein Nachbargebäude anschließen.
Ideenreichtum war den Architekten vor allem bei der Konzeption der Sporthalle abverlangt. Weil die Gebäudebreite gerade für ein Handballfeld reicht, ordneten die Architekten die Zuschauerränge an der Stirnseite der Halle neben den Umkleiden an. Daneben führt eine Treppe hinauf ins zweite Obergeschoss, wo sich die komplett verglaste Gymnastikhalle nach Norden und Osten öffnet.
Die Wohnungen verfügen über ihre eigene Erschließung von der Südwestecke her. Ein Laubengang entlang der Südfassade erschließt die einzelnen Häuser, die hier lediglich als fensterlose Holzkuben in Erscheinung treten. Im Inneren und Richtung Norden sind sie dafür umso offener. Ein ringsum verglaster Innenhof trennt den zweigeschossigen Wohnbereich im Süden vom Schlafzimmertrakt im Norden, der seinerseits aus zwei Zimmern, Bad und Ankleide besteht. Über der Küchenzeile im Süden führt eine Treppe hinauf zu einer Galerie und einer zweiten, kleineren Terrasse mit Fernblick nach Süden.
Die rigide Schottenbauweise der Penthouses hat auch einen konstruktiven Grund: Die Wohnungstrennwände dienen zugleich als Stahlbeton-Überzüge für das Hallendach und ermöglichen es, die Sporthalle stützenfrei zu überspannen.
Weitere Informationen:
Geschossfläche: 5400 m2
Bauingenieur: Klaus Nielsen, Nivå
Bauunternehmen: O. Adsbøll & Sønner, Kolding
Geschossfläche: 5400 m2
Bauingenieur: Klaus Nielsen, Nivå
Bauunternehmen: O. Adsbøll & Sønner, Kolding

























