Alte Hülle, neuer Kern: Plywood House in Palma von SMS Arquitectos
Foto: Luis Diaz
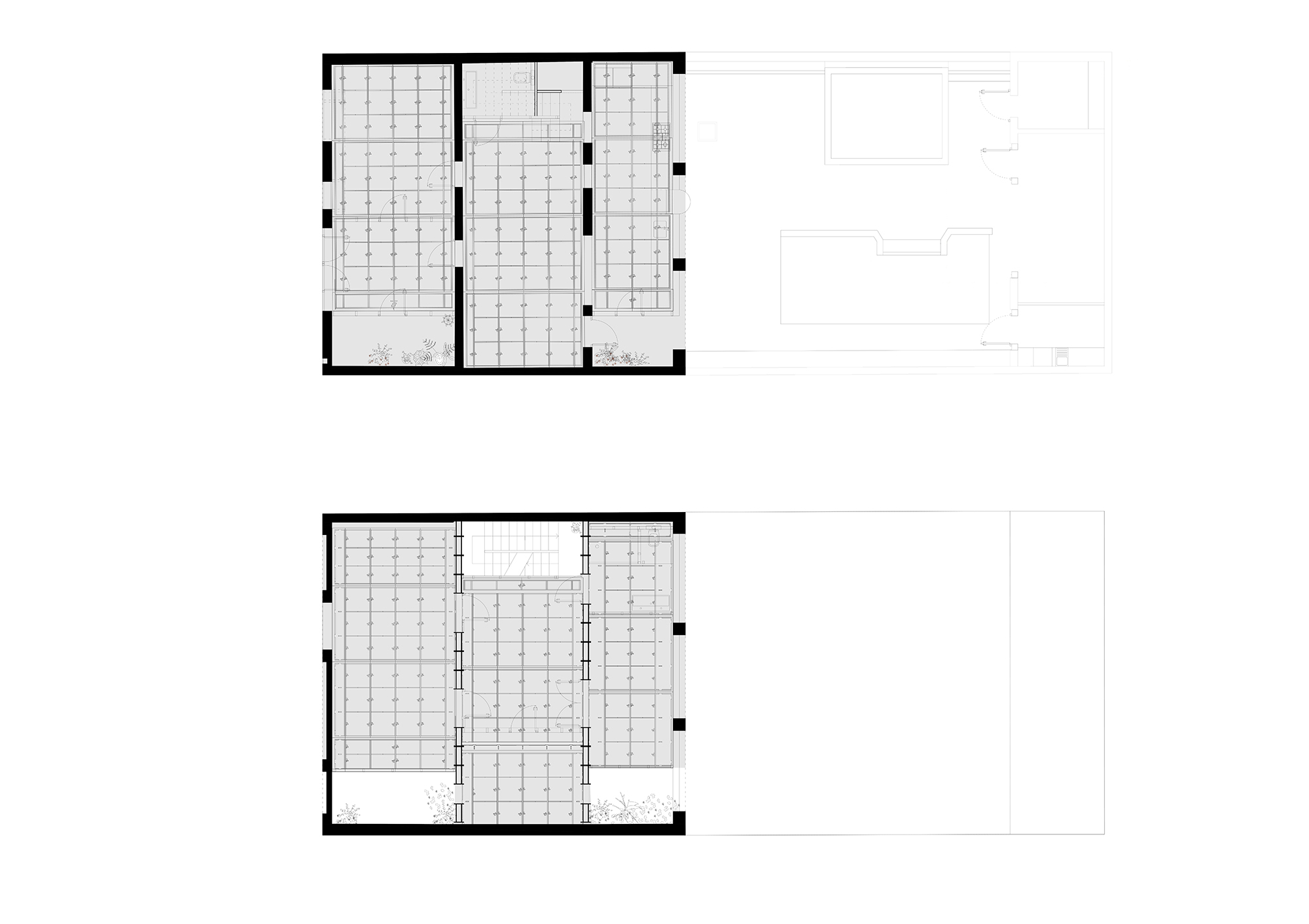
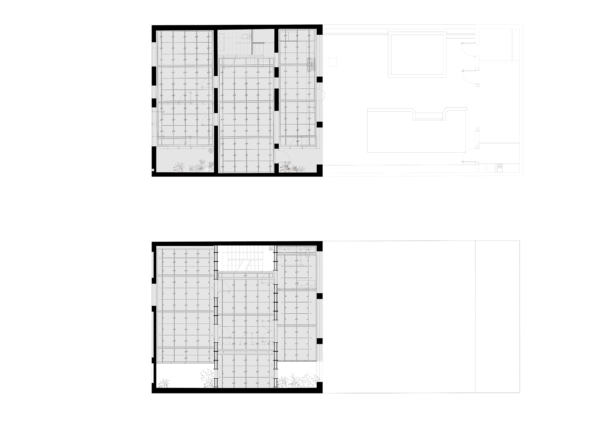
Die Rahmenbedingungen gibt ein vormals eingeschossiges Wohnhaus vor, das sich – zu beiden Seiten von Nachbarbauten eingefasst – in nordwestlicher Richtung zu einem Garten hin orientiert. SMS Arquitectos reduzieren den Bestand auf seine tragenden Elemente und erweitern ihn im Zuge der Renovierung um ein weiteres Geschoss. Zur Straße hin bleiben die Ansichten des Plywood House eher geschlossen und der Unterschied zwischen Alt und Neu klar sichtbar: Auf das weiße Sockelgeschoss setzen die Architekten ein weiteres Sockwerk aus beigen und terrakottafarbigen Steinen. An der neuen Gartenfassade bilden die Steine ein großformatiges Raster, ausgefacht mit Sonnenschutz, Brüstung sowie türkisfarbig gerahmten, großformatigen Verglasungen.
Die Aufstockung des Plywood House entwerfen die Architekten als leichte Holzkonstruktion. Sie nehmen das Projekt zum Anreiz, sich mit der Vorfertigung aus der CNC-Fräse zu beschäftigen und entwickeln eine Pappelholzstruktur aus 224 x 112 cm großen Elementen. Diese können einfach transportiert und vor Ort problemlos zusammengesetzt werden. Durch die Wahl dieser Konstruktionsweise besinnen sich SMS Arquitectos zudem auf das traditionelle Handwerk der balearischen Insel und fördern lokale Bauweisen. Auch die übrigen Materialien, die zum Einsatz kommen, weisen einen Ortsbezug auf – Stein, Beton, Terrakotta und ornamentale Fliesen. Sie alle bleiben unverkleidet und unbehandelt.
Die Holzstruktur prägt vor allem den Innenraum. Sie zeigt sich als Zwischenwand, dekorative Deckenuntersicht und Einbau und verleiht dem Wohnhaus, zusammen mit kunstvoll gelegten Bodenkacheln, ein wohnliches, mallorquinisches Flair. Die Nutzung der Innenräume des Plywood House gestalten SMS Arquitectos nach einem Konzept, das sie »Jahreszeitenmigration« nennen. Es gibt kühlere und wärmere Zonen und somit Bereiche, die jeweils angenehmer im Sommer oder Winter sind. Während in manchen Zimmern diffuses Licht herrscht, scheint in andere die direkte Morgensonne oder bietet Ausblicke auf die Altstadt von Palma.






















