// Check if the article Layout ?>
Aluminiumwolke in Weiß: Studentenwohnheim in Togane
Foto: Kawasami Kobayashi
Weil Japans Bevölkerung altert, tun sich die Universitäten im Land zunehmend schwer damit, ihre Studiengänge allein mit einheimischen Studenten zu füllen. Entsprechend wichtig wird es für sie, für Gaststudenten aus dem Ausland attraktiv zu sein. Diese können sich jedoch das hohe Preisniveau in dem Inselstaat nicht immer leisten.
Auch die 1965 gegründete Privatuniversität Josai ist mit diesem Problem konfrontiert. Ihr Campus liegt etwas außerhalb von Togane, einer 60000-Einwohner-Stadt 40 Kilometer östlich von Tokio. Von der nahen Megalopolis ist hier kaum noch etwas zu spüren: Reisfelder, Streusiedlungen und eine nahe Hügelkette prägen die Landschaft. Die Pazifikküste ist im Osten nur rund acht Kilometer entfernt.
Mit ihrem neuen Studentenwohnheim bietet die Universität nun nicht nur eine landschaftlich, sondern auch eine finanziell attraktive Option vor allem für Studenten aus asiatischen Entwicklungs- und Schwellenländern. Die Monatsmieten für die rund 140 Bewohner beginnen bereits bei umgerechnet 80 Euro. Dafür gibt es ein Bett im Vierbettzimmer mit Gemeinschaftsbad; die Einzel- und Doppelzimmer sind entsprechend etwas teurer.
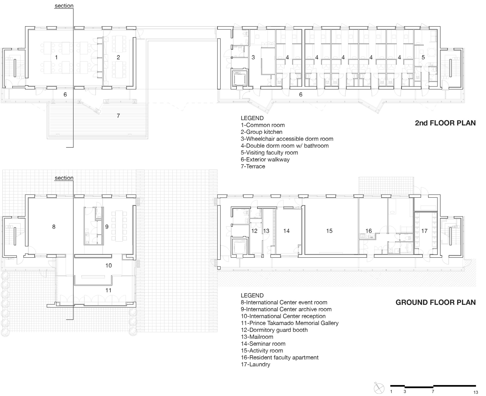
Die fünfgeschossige Wohnscheibe liegt am Nordende des Campus zwischen Park- und Sportplätzen, etwas abseits der übrigen Gebäude auf dem Campus. Im Erdgeschoss ist neben Gemeinschaftsräumen für die Bewohner, der Hausverwaltung und einem Gästeapartment auch ein „International Center“ untergebracht. Letzteres schiebt sich wie eine große Sichtbetonschublade aus dem Baukörper heraus nach Südwesten, Richtung Campuszentrum. Es umfasst einen weiteren Gemeinschaftsraum, ein Archiv und eine Galerie in Erinnerung an Norihito Takamado, einen 2002 verstorbenen Cousin des japanischen Kaisers Akihito, zu dessen Familie die Hochschule enge Beziehungen pflegt.
Der Zugang ins Gebäude liegt an einem offenen Durchgang, der das Internationale Zentrum vom Rest des Erdgeschosses trennt. Die Obergeschosse werden über offene Laubengänge erschlossen, die in unregelmäßigen Abständen diagonale Ausbuchtungen als informelle Treffpunkte für die Studenten erhielten. Die Laubengänge sind außen mit weißen Aluminium-Rechteckprofilen mit abwechselnd 10 und 15 cm Tiefe verkleidet. Obwohl sie in der Vertikalen auf einem regelmäßigen 7,5-Zentimeter-Raster angeordnet sind, entsteht durch die wechselseitigen Überlappungen und die gelegentlichen Lücken in der Lamellenhaut ein außerordentlich bewegtes Bild. Die Sonne, die die Lamellen im Tagesverlauf nacheinander weiß, silber und (gegen Sonnenuntergang hin) gelborange färbt, tut das ihre dazu, beim Betrachter keine Langeweile entstehen zu lassen.
Auch die 1965 gegründete Privatuniversität Josai ist mit diesem Problem konfrontiert. Ihr Campus liegt etwas außerhalb von Togane, einer 60000-Einwohner-Stadt 40 Kilometer östlich von Tokio. Von der nahen Megalopolis ist hier kaum noch etwas zu spüren: Reisfelder, Streusiedlungen und eine nahe Hügelkette prägen die Landschaft. Die Pazifikküste ist im Osten nur rund acht Kilometer entfernt.
Mit ihrem neuen Studentenwohnheim bietet die Universität nun nicht nur eine landschaftlich, sondern auch eine finanziell attraktive Option vor allem für Studenten aus asiatischen Entwicklungs- und Schwellenländern. Die Monatsmieten für die rund 140 Bewohner beginnen bereits bei umgerechnet 80 Euro. Dafür gibt es ein Bett im Vierbettzimmer mit Gemeinschaftsbad; die Einzel- und Doppelzimmer sind entsprechend etwas teurer.
Die fünfgeschossige Wohnscheibe liegt am Nordende des Campus zwischen Park- und Sportplätzen, etwas abseits der übrigen Gebäude auf dem Campus. Im Erdgeschoss ist neben Gemeinschaftsräumen für die Bewohner, der Hausverwaltung und einem Gästeapartment auch ein „International Center“ untergebracht. Letzteres schiebt sich wie eine große Sichtbetonschublade aus dem Baukörper heraus nach Südwesten, Richtung Campuszentrum. Es umfasst einen weiteren Gemeinschaftsraum, ein Archiv und eine Galerie in Erinnerung an Norihito Takamado, einen 2002 verstorbenen Cousin des japanischen Kaisers Akihito, zu dessen Familie die Hochschule enge Beziehungen pflegt.
Der Zugang ins Gebäude liegt an einem offenen Durchgang, der das Internationale Zentrum vom Rest des Erdgeschosses trennt. Die Obergeschosse werden über offene Laubengänge erschlossen, die in unregelmäßigen Abständen diagonale Ausbuchtungen als informelle Treffpunkte für die Studenten erhielten. Die Laubengänge sind außen mit weißen Aluminium-Rechteckprofilen mit abwechselnd 10 und 15 cm Tiefe verkleidet. Obwohl sie in der Vertikalen auf einem regelmäßigen 7,5-Zentimeter-Raster angeordnet sind, entsteht durch die wechselseitigen Überlappungen und die gelegentlichen Lücken in der Lamellenhaut ein außerordentlich bewegtes Bild. Die Sonne, die die Lamellen im Tagesverlauf nacheinander weiß, silber und (gegen Sonnenuntergang hin) gelborange färbt, tut das ihre dazu, beim Betrachter keine Langeweile entstehen zu lassen.
Weitere Informationen:
Ausführungsplanung, Tragwerks- und TGA-Planung, Landschaftsarchitektur, Bauüberwachung, Bauunternehmung: Obayashi Corporation, Tokio























