// Check if the article Layout ?>
Am Ende der Straße: Wohnhaus in den Niederlanden
Foto: Jeroen Musch
Friedvolle Wiesen, weite Aussicht über flaches Land und sandige Dünen – diese Landschaft ist typisch für die Niederlande, doch inzwischen leider nur noch selten in dieser Form anzutreffen. Umso außergewöhnlicher, dass das Amsterdamer Büro Studio Prototype die Gelegenheit hatte, in solch einer Umgebung ein Wohnhaus zu errichten.
Für die Familie eines Fotografen modernisierten die Architekten ein landwirtschaftliches Gebäude. Von diesem Ausgangszustand ist allerdings nur noch die Kubatur geblieben. Einzelne Raummodule wurden in das Gebäude eingeschoben, teilweise ragen sie über den eigentlichen First hinaus, an anderen Stellen springen sie hinter die Außenkante der Fassade zurück. Dadurch entsteht eine sehr abwechslungsreiche Fassade, zusammengesetzt aus vielfältigen Formen, die aber durch eine einheitliche Hülle beruhigt wird. Schwarz eloxiertes Aluminium kleidet das Dach und die Seitenwände ein. Einzelne, vertikal gekantete Elemente wurden zusammengesetzt und überziehen das Haus mit einem unregelmäßig wirkenden Streifenmuster. Dass die Dachrinne in die Außenhaut eingelassen wurde, trägt zum geschlossenen Eindruck bei, den das Haus trotz der Vor- und Rücksprünge macht.
Im Inneren setzt sich das dunkle Material fort. Stahl wurde für die eingestellten Raummodule eingesetzt. Er kontrastiert dabei mit dem hellen Ahornholz, aus dem der Dachstuhl und einige Möbel gefertigt sind. Der Boden aus sandfarbenem Beton ist eine Hommage an die Dünenlandschaft in unmittelbarer Nähe.
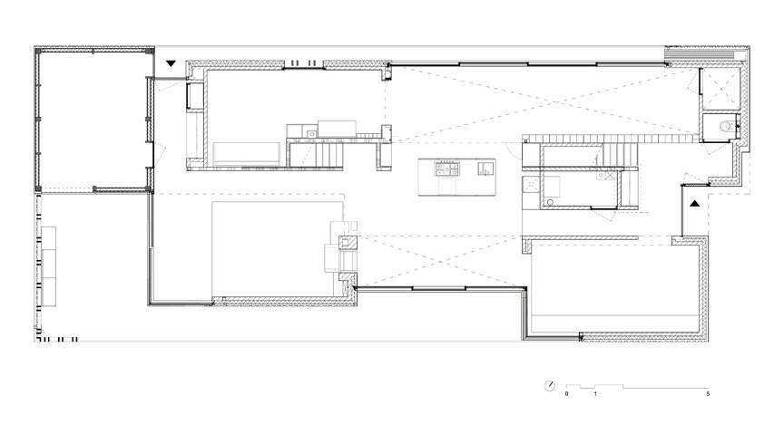
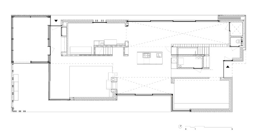
Beim Betreten des Hauses trifft man aber direkt auf das erste Möbelstück aus Stahl. Ein raumhohes Bücherregal bildet die räumliche Trennung zwischen dem Eingangsbereich und der offenen Küche. Von beiden Seiten lässt es sich bedienen, wobei auf der Innenseite eine Treppe hoch in das erste Raummodul führt. Dort sind im ersten Stock Toiletten und direkt über dem Hauseingang das Bad untergebracht. Im Zentrum des Hauses befinden sich die frei stehende Küche und ein offener Essbereich, zum Teil mit der doppelten Raumhöhe. Auch der Wohnbereich schließt sich diesem offenen Bereich an. Dadurch, dass er etwa eine Stufenhöhe in den Boden eingelassen ist, setzt er sich trotzdem deutlich vom Rest des offenen Erdgeschosses ab.
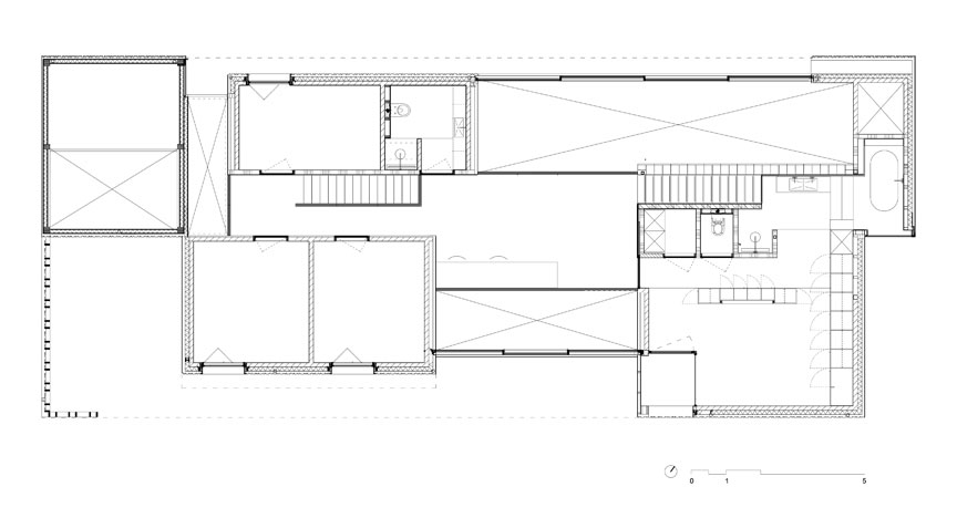
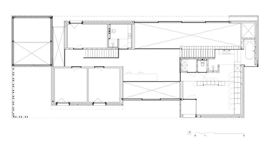
Die Offenheit der Bereiche orientiert sich an ihrer Nutzung für private oder berufliche Zwecke. So finden sich in den verschlosseneren, schwarz verkleideten Raummodulen zum Beispiel die Schlafzimmer der Familie. In dem komplexen Raumgefüge der Villa Schoorl sind durch das Spiel mit verschiedenen Materialien und den bedachten Einsatz von Öffnungen, zeitlose und wohnliche Räume entstanden.
Für die Familie eines Fotografen modernisierten die Architekten ein landwirtschaftliches Gebäude. Von diesem Ausgangszustand ist allerdings nur noch die Kubatur geblieben. Einzelne Raummodule wurden in das Gebäude eingeschoben, teilweise ragen sie über den eigentlichen First hinaus, an anderen Stellen springen sie hinter die Außenkante der Fassade zurück. Dadurch entsteht eine sehr abwechslungsreiche Fassade, zusammengesetzt aus vielfältigen Formen, die aber durch eine einheitliche Hülle beruhigt wird. Schwarz eloxiertes Aluminium kleidet das Dach und die Seitenwände ein. Einzelne, vertikal gekantete Elemente wurden zusammengesetzt und überziehen das Haus mit einem unregelmäßig wirkenden Streifenmuster. Dass die Dachrinne in die Außenhaut eingelassen wurde, trägt zum geschlossenen Eindruck bei, den das Haus trotz der Vor- und Rücksprünge macht.
Im Inneren setzt sich das dunkle Material fort. Stahl wurde für die eingestellten Raummodule eingesetzt. Er kontrastiert dabei mit dem hellen Ahornholz, aus dem der Dachstuhl und einige Möbel gefertigt sind. Der Boden aus sandfarbenem Beton ist eine Hommage an die Dünenlandschaft in unmittelbarer Nähe.
Beim Betreten des Hauses trifft man aber direkt auf das erste Möbelstück aus Stahl. Ein raumhohes Bücherregal bildet die räumliche Trennung zwischen dem Eingangsbereich und der offenen Küche. Von beiden Seiten lässt es sich bedienen, wobei auf der Innenseite eine Treppe hoch in das erste Raummodul führt. Dort sind im ersten Stock Toiletten und direkt über dem Hauseingang das Bad untergebracht. Im Zentrum des Hauses befinden sich die frei stehende Küche und ein offener Essbereich, zum Teil mit der doppelten Raumhöhe. Auch der Wohnbereich schließt sich diesem offenen Bereich an. Dadurch, dass er etwa eine Stufenhöhe in den Boden eingelassen ist, setzt er sich trotzdem deutlich vom Rest des offenen Erdgeschosses ab.
Die Offenheit der Bereiche orientiert sich an ihrer Nutzung für private oder berufliche Zwecke. So finden sich in den verschlosseneren, schwarz verkleideten Raummodulen zum Beispiel die Schlafzimmer der Familie. In dem komplexen Raumgefüge der Villa Schoorl sind durch das Spiel mit verschiedenen Materialien und den bedachten Einsatz von Öffnungen, zeitlose und wohnliche Räume entstanden.



















