// Check if the article Layout ?>
Am lebenden Beispiel lernen: Laborgebäude in Esslingen
Foto: Roland Halbe
Für die Fachbereiche Heizungs-, Lüftungs-, Sanitär-, und Klimatechnik ist das Gebäude an sich ein Anschauungsobjekt für zukunftsweisende energiesparende Technologien, die im praktischen Einsatz gezeigt werden.
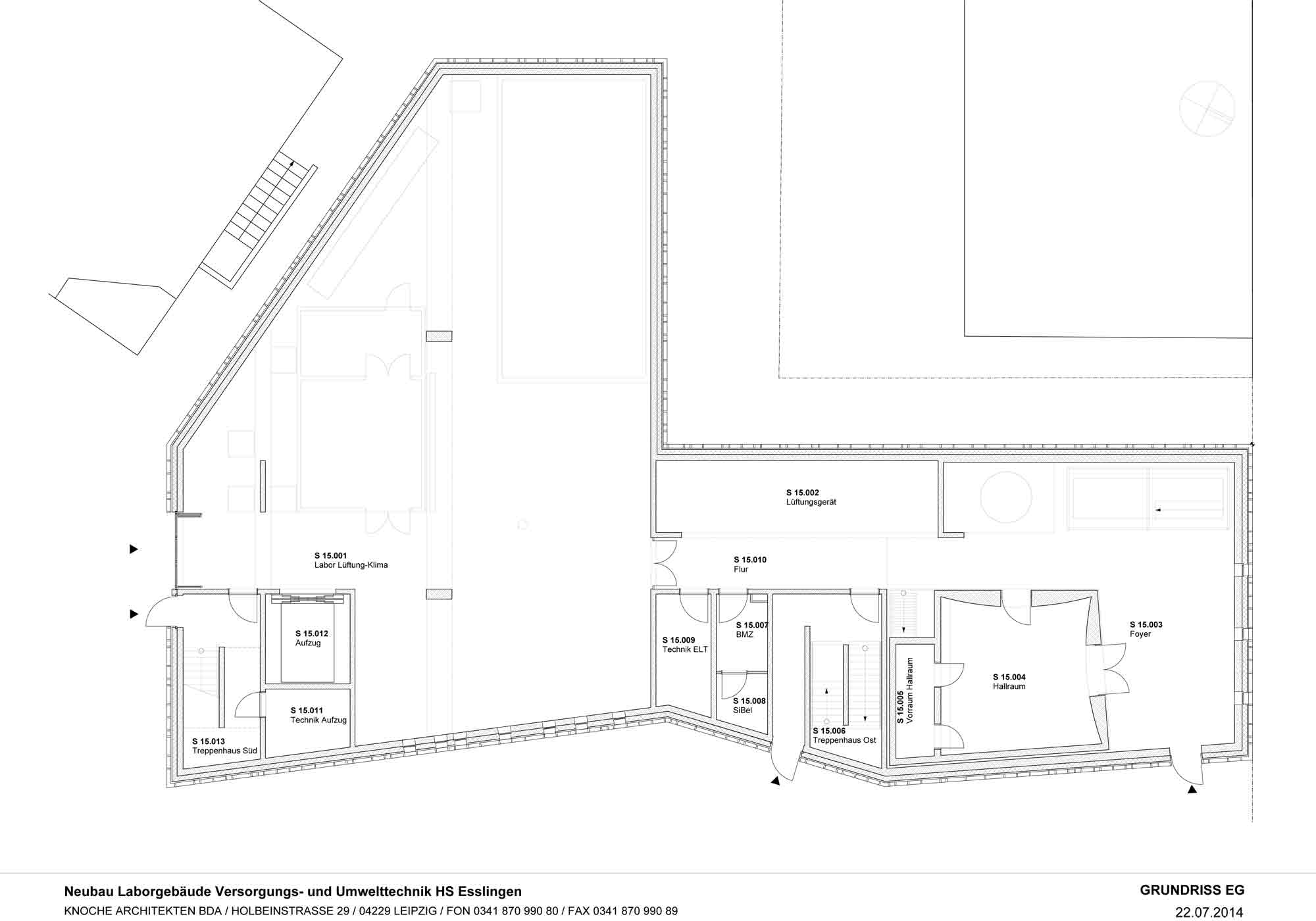
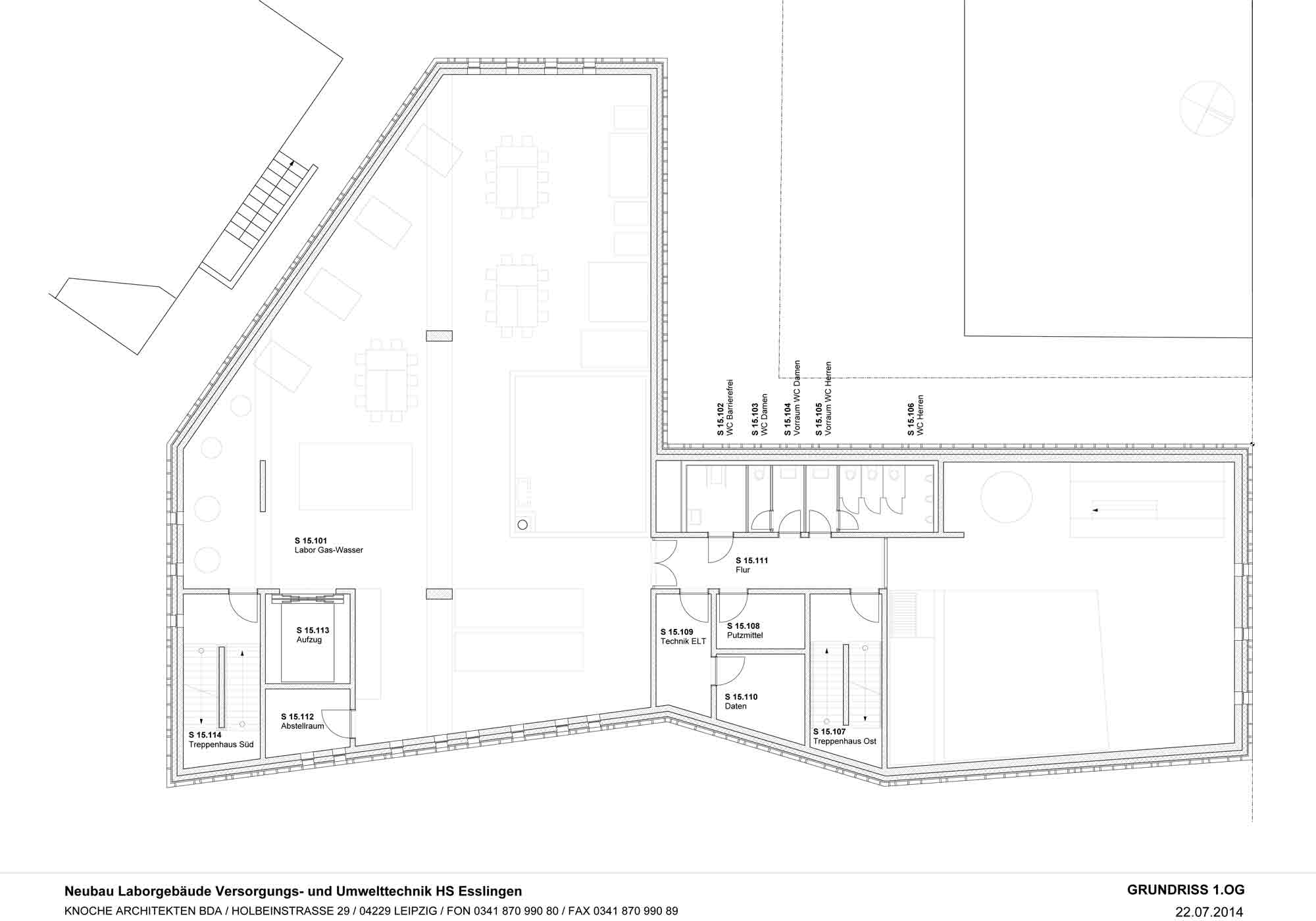
Der dreigeschossige Bau mit Teilunterkellerung für Technik- und Lagerflächen beinhaltet je Stockwerk ein Labor für den jeweiligen Fachbereich. Zusätzlich stehen weitere technische Einrichtungen wie Trinkwassererwärmungsanlagen, Versuchsapparaturen zur Gastechnik, Heizungskessel, Wärmepumpen, Kältemaschinen und viele weitere Anschauungsstücke zur Verfügung.
Der Innenraum ist auf das Notwendigste reduziert: Beton, geschliffener Estrich und Stahltüren, sowie die offengelegten Grundinstallationen sind die gestalterischen Grundelemente.
Letztere erlauben den Studierenden einen lebendigen und praxisnahen Bezug zur verwendeten Technik, die bei Neuerungen in Lehre und Forschung flexibel und ohne großen Aufwand auf den neuesten Stand gebracht werden kann.
Im doppelgeschossigen Foyer werden Studierende mit »Exponaten« der Fachbereiche begrüß. Ein eingestellter Hallraum, sowie ein Abwasserprüfstand und ein Pufferspeicher stehen am Beginn des Lernprozesses.
Im historischen Stadtkern der Stadt Esslingen gelegen, standen die Architekten vor der Aufgabe einen sensiblen Umgang mit den denkmalgeschützten Nachbarbauten aus Gründerzeit und Mittelalter zu finden.
Der Grundriss des Neubaus ist - an der Grundstückssituation orientiert - als unregelmäßiges Polygon ausgebildet, wozu analog die Dachgestaltung vorgenommen wurde. Eine Aneinanderreihung von Satteldächern erzeugt eine angemessene Kleinteiligkeit, die der Umgebung gerecht wird.
Eine vertikal strukturierte Metallfassade aus perforierten Fassadenblechen mit tiefen Lisenen umhüllt das Gebäude und betont dessen Plastizität. Die wenigen Fenster liegen weit zurück und ordnen sich der Fassadenstruktur unter.
Der dreigeschossige Bau mit Teilunterkellerung für Technik- und Lagerflächen beinhaltet je Stockwerk ein Labor für den jeweiligen Fachbereich. Zusätzlich stehen weitere technische Einrichtungen wie Trinkwassererwärmungsanlagen, Versuchsapparaturen zur Gastechnik, Heizungskessel, Wärmepumpen, Kältemaschinen und viele weitere Anschauungsstücke zur Verfügung.
Der Innenraum ist auf das Notwendigste reduziert: Beton, geschliffener Estrich und Stahltüren, sowie die offengelegten Grundinstallationen sind die gestalterischen Grundelemente.
Letztere erlauben den Studierenden einen lebendigen und praxisnahen Bezug zur verwendeten Technik, die bei Neuerungen in Lehre und Forschung flexibel und ohne großen Aufwand auf den neuesten Stand gebracht werden kann.
Im doppelgeschossigen Foyer werden Studierende mit »Exponaten« der Fachbereiche begrüß. Ein eingestellter Hallraum, sowie ein Abwasserprüfstand und ein Pufferspeicher stehen am Beginn des Lernprozesses.
Im historischen Stadtkern der Stadt Esslingen gelegen, standen die Architekten vor der Aufgabe einen sensiblen Umgang mit den denkmalgeschützten Nachbarbauten aus Gründerzeit und Mittelalter zu finden.
Der Grundriss des Neubaus ist - an der Grundstückssituation orientiert - als unregelmäßiges Polygon ausgebildet, wozu analog die Dachgestaltung vorgenommen wurde. Eine Aneinanderreihung von Satteldächern erzeugt eine angemessene Kleinteiligkeit, die der Umgebung gerecht wird.
Eine vertikal strukturierte Metallfassade aus perforierten Fassadenblechen mit tiefen Lisenen umhüllt das Gebäude und betont dessen Plastizität. Die wenigen Fenster liegen weit zurück und ordnen sich der Fassadenstruktur unter.



















