Am Waldrand: Kinderkrippe von Goffart Polomé
Foto: © Marie-Noëlle Dailly
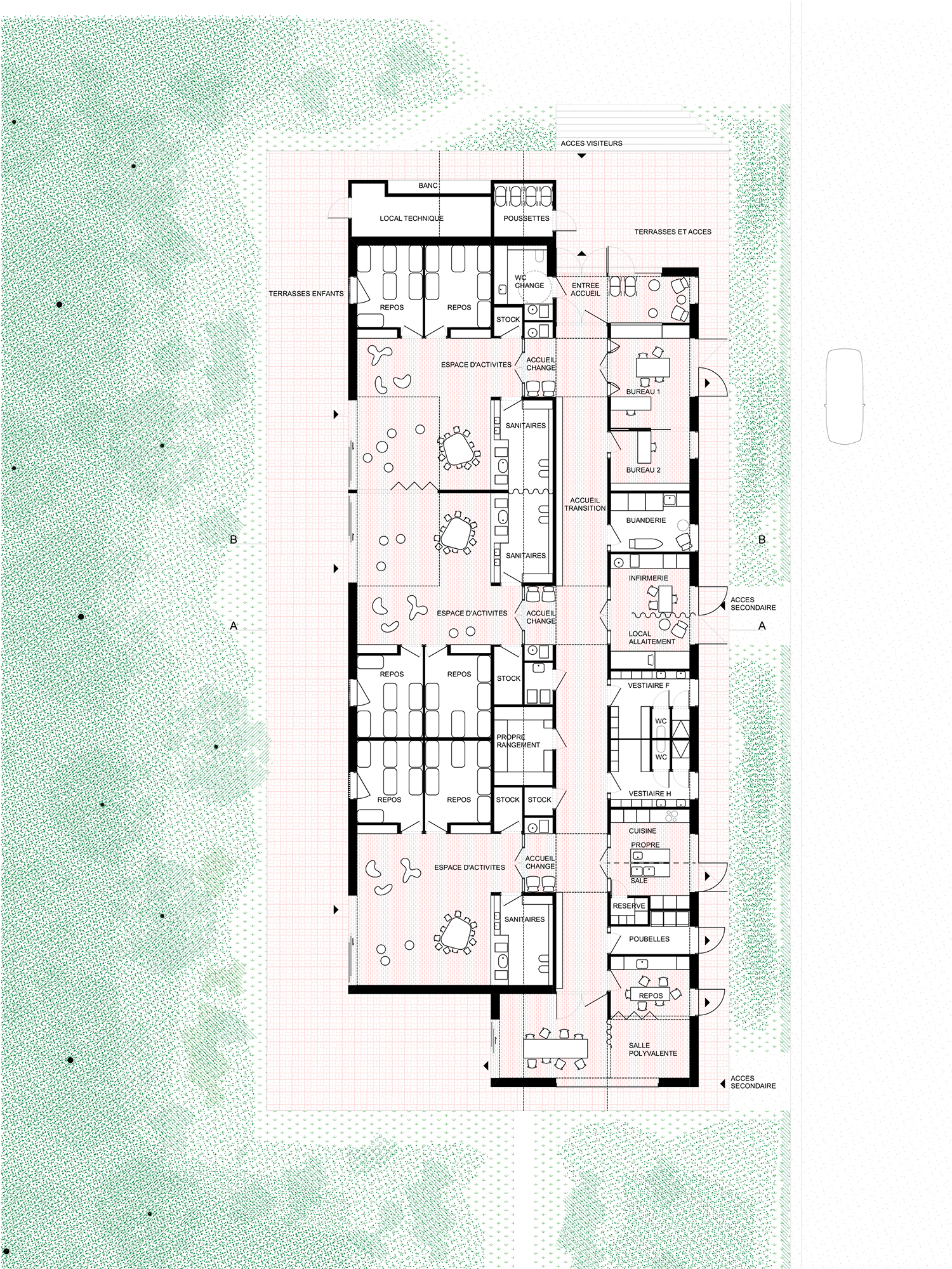
Goffart Polomé organisieren die unterschiedlichen funktionalen Bereiche der Krippe in zwei durch einen Korridor miteinander verbundene Zonen: Einrichtungen wie Garderobe, Küche und Verwaltungsbereich befinden sich auf der straßenzugewandten Seite, die Aufenthaltsräume und alle Räume für die 36 Kinder öffnen sich mit großen Fenstern zu einem Waldhügel. Beide Gebäudeseiten verfügen jeweils über einen eigenen überdachten Außenzugang. Raumhohe Fenster sorgen für optische Durchlässigkeit zwischen den Aufenthaltsräumen und dem Hauptverbindungskorridor. Weiß gestrichene Wände sorgen für eine helle und freundliche Atmosphäre.
Für das markant auskragende, zweireihige Satteldach sehen die Architekten pultdachartige Aufweitungen vor. Diese sorgen für eine größere Raumhöhe in den Aufenthaltsräumen und lenken natürliches Licht in den Verbindungsflur. Die bewegte Dachlandschaft erzeugt unterschiedliche innenräumliche Stimmungen. Bereiche mit geringerer Höhe bieten Intimität und Schutz. Die hohen und großflächig verglasten Aufenthaltsräume fördern hingegen den Bewegungsdrang der Kinder indem sie sich großräumig zur Natur öffnen. Daneben verstärkt auch die chromatische Kontinuität des rot-orangen Bodenbelags die harmonische Verbindung zwischen Innen- und Außenbereich.












