// Check if the article Layout ?>
Lebenslauf:
Angelika Hinterbrandner aus Marktschellenberg, Deutschland hat 2015 ihren Bachelor im Fachbereich Architektur an der Technischen Universität Graz erfolgreich abgeschlossen. Dort arbeitete sie seit 2013 zudem als Studienassistenz am Institut für Gebäudelehre. Ihren Master in Architektur hat sie 2015 im Rahmen eines Joint Study Programms begonnen, weshalb sie aktuell für ein Jahr an der Chinese University of Hong Kong studiert. Während ihrer Teilnahme an der Baumeister Academy war sie als freie Autorin bei „Baumeister – das Architekturmagazin“ tätig. Des Weiteren absolvierte sie Praktika bei MVRDV, Rotterdam und bei GKK+Architekten, Berlin. In Hongkong engagiert sie sich bei dem „refugee art movement team“, einem Kunstprojekt für Integration & mehr zusammen mit und für Flüchtlinge.
Statement der Jury zu den eingereichten Arbeiten von Angelika Hinterbrander:
Die Arbeiten zeigen einen ganzheitlichen Ansatz und stellen soziologisch- gesellschaftliche Aspekte in den Fokus. Neben Lösungen für alternativen Städtebau in Hongkong und der Beschäftigung mit informellen Stadtteilen, werden auch regionale Strukturprobleme aufgegriffen. Eine persönliche Handschrift ist dabei klar zu erkennen, egal ob in Entwürfen für Hongkong oder für ein österreichisches Dorf. Neben den eingereichten Arbeiten, überzeugte die Jury auch das Motivationsschreiben der Verfasserin. Ihr Forschungsvorhaben zum Thema „informelles Wohnen“, im Rahmen ihrer Masterarbeit, unterstützt die Jury gerne, und hofft, dass sie die gewonnenen Erkenntnisse in architektonischen Arbeiten umsetzen wird.
Projektbeispiel:
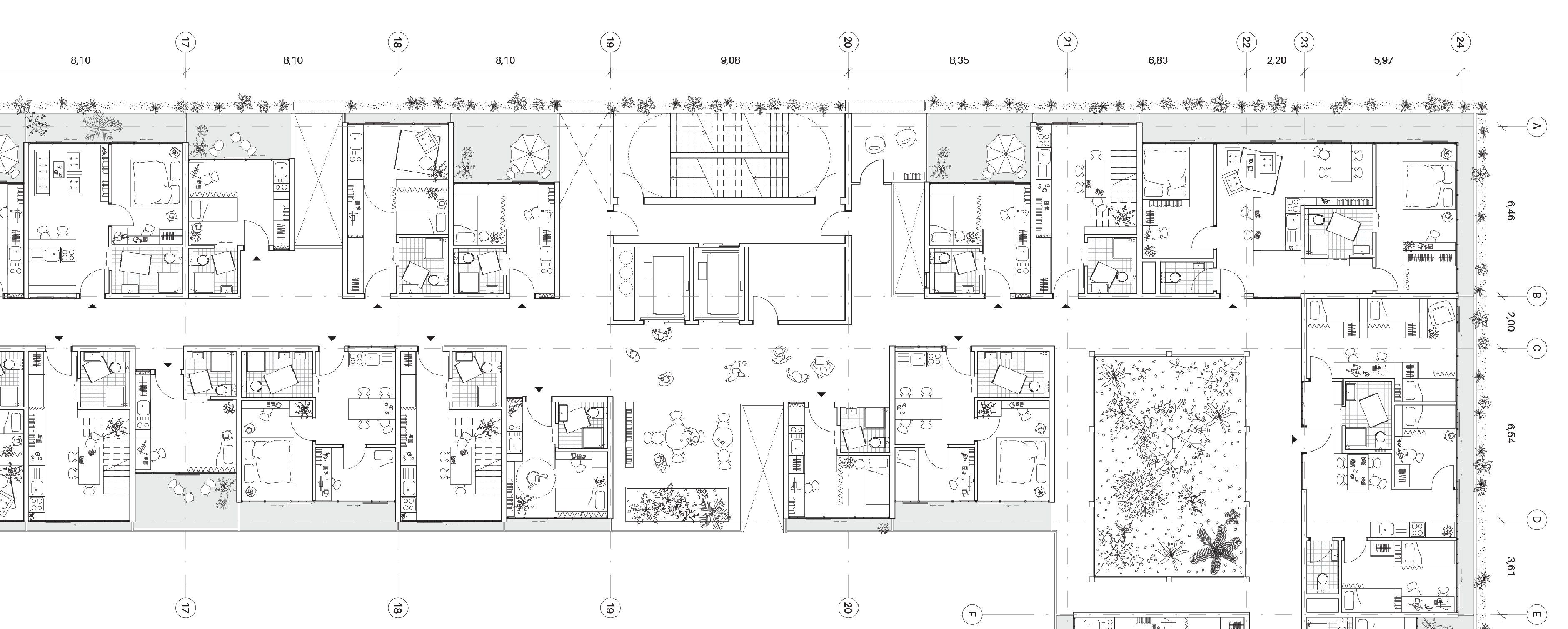
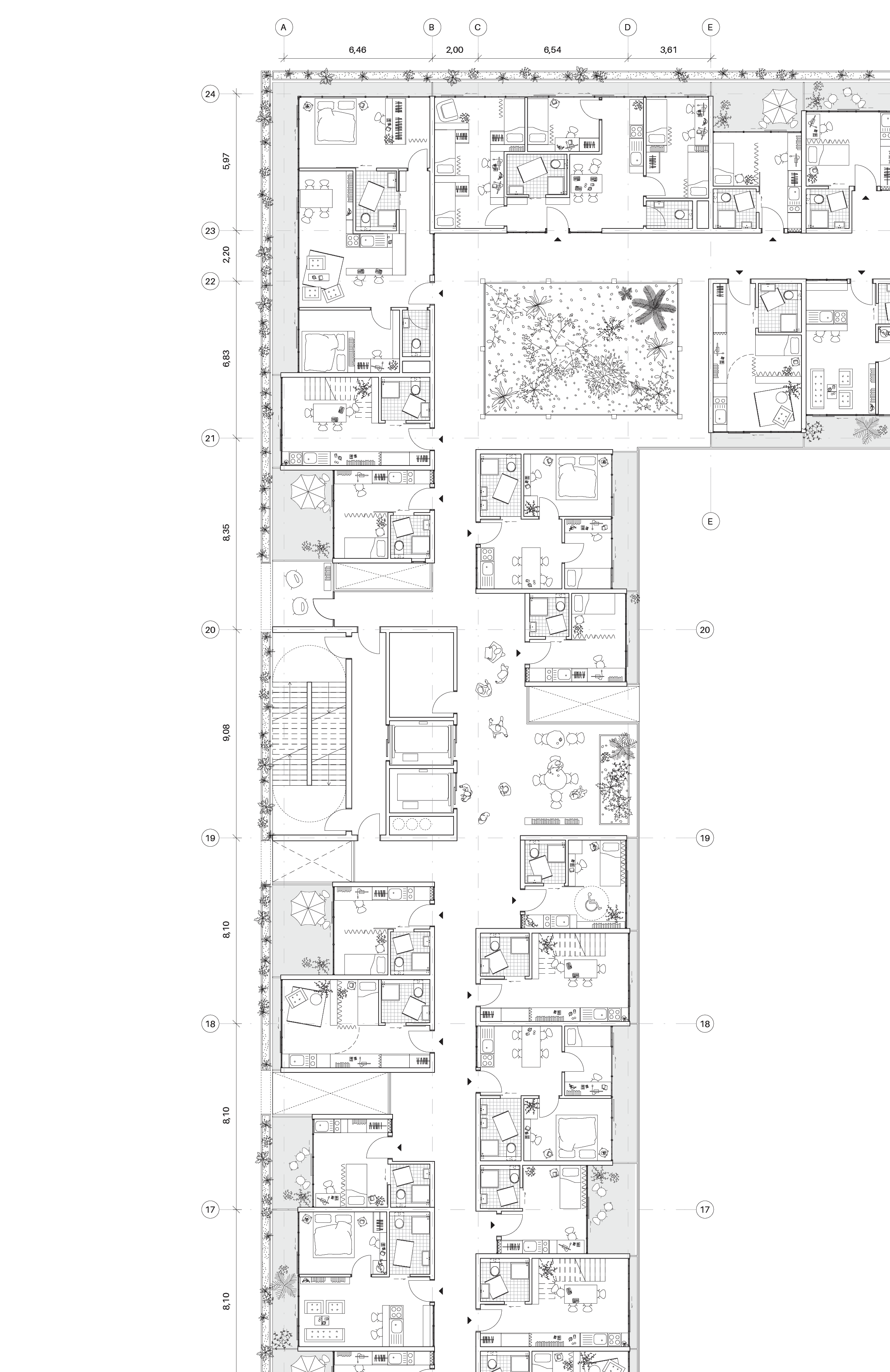
THE ISLAND - ein neuer Distrikt für die Kowloon City Bay Area
Hong Kong als urbanes Versuchsfeld ist ein Inbegriff für Dichte. Nur ein Viertel der Landfläche ist bebaut. Unzählige Wohntürme, die nicht nur an Le Corbusier's Plan Volsin für Paris erinnern, sondern diesen verkörpern, ragen nur wenige Meter neben purer Natur in den Himmel. Hilbersheimers utopische Gedankenwelt für die vertikale Hochhausstadt kann man auf einer der vielen 'foot bridges' in Central besichtigen oder besser - erleben. In Hong Kongs spannendem städtebaulichem Umfeld ergeben sich allerdings auch Probleme. Wohnraum ist kaum leistbar, Lebensraum begrenzt. Mit durchschnittlich 11m² pro Person muss man auskommen, wenn man hier lebt. Nur um den Unterschied deutlich zu machen: In Deutschland sind es 46 m² pro Kopf.
Diese Problematik war der Ausgangspunkt für unser e-habitat Studio. In den New Territories, dem noch unerschlossenstem Teil der Stadt — zwischen Hong Kong Island und dem schnell wachsendem Shenzhen gibt es noch Platz um neuen Lebensraum zu schaffen. ‚The Island‘ ist der Versuch den Traum der einsamen Insel im Grünen in ein urbanes Spannungsfeld zu übersetzen und so eine neue Art des Wohnens zu etablieren. Die Typologien sind angelehnt an Vorhandenes. Ein Superblock mit hoher Dichte, aber in ungewohnt horizontaler Form. Kleinstrukturen, vergleichbar mit denen, die dem Bauboom in den 80er Jahren weichen mussten, so angeordnet, dass eine neue Kompaktheit entsteht. Der Entwurf basiert auf der faszinierenden Koexistenz von Dichte, Grün und Wasser, die Hong Kong mitunter zu einer so spannenden Stadt machen.
Angelika Hinterbrandner - DETAIL Stipendiatin 2016/2017
© Angelika Hinterbrandner
Lebenslauf: Angelika Hinterbrandner aus Marktschellenberg, Deutschland hat 2015 ihren Bachelor im Fachbereich Architektur an der Technischen Universität Graz erfolgreich abgeschlossen. Dort arbeitete sie seit 2013 zudem als Studienassistenz am Institut für Gebäudelehre. Ihren Master in Architektur hat sie 2015 im Rahmen eines Joint Study Programms begonnen, weshalb sie aktuell für ein Jahr an der Chinese University of Hong Kong studiert. Während ihrer Teilnahme an der Baumeister Academy war sie als freie Autorin bei „Baumeister – das Architekturmagazin“ tätig. Des Weiteren absolvierte sie Praktika bei MVRDV, Rotterdam und bei GKK+Architekten, Berlin. In Hongkong engagiert sie sich bei dem „refugee art movement team“, einem Kunstprojekt für Integration & mehr zusammen mit und für Flüchtlinge.
Statement der Jury zu den eingereichten Arbeiten von Angelika Hinterbrander:
Die Arbeiten zeigen einen ganzheitlichen Ansatz und stellen soziologisch- gesellschaftliche Aspekte in den Fokus. Neben Lösungen für alternativen Städtebau in Hongkong und der Beschäftigung mit informellen Stadtteilen, werden auch regionale Strukturprobleme aufgegriffen. Eine persönliche Handschrift ist dabei klar zu erkennen, egal ob in Entwürfen für Hongkong oder für ein österreichisches Dorf. Neben den eingereichten Arbeiten, überzeugte die Jury auch das Motivationsschreiben der Verfasserin. Ihr Forschungsvorhaben zum Thema „informelles Wohnen“, im Rahmen ihrer Masterarbeit, unterstützt die Jury gerne, und hofft, dass sie die gewonnenen Erkenntnisse in architektonischen Arbeiten umsetzen wird.
Projektbeispiel:
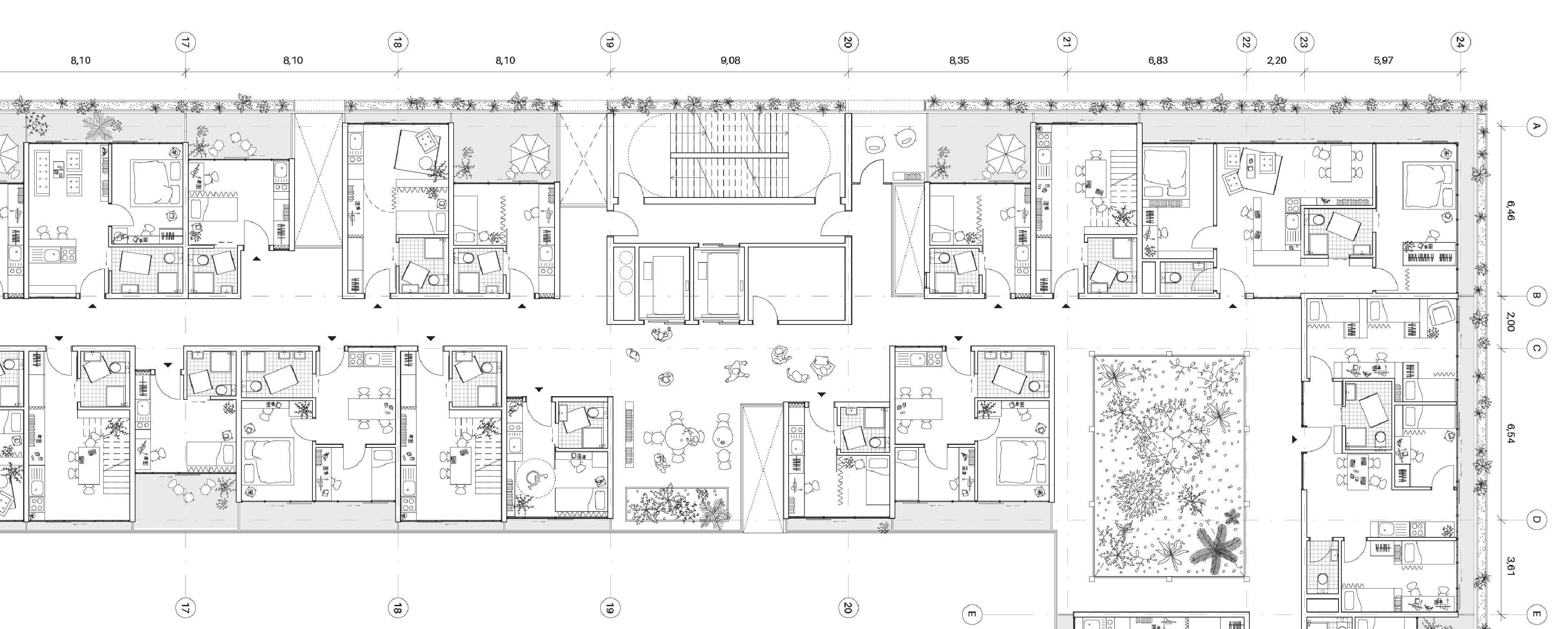
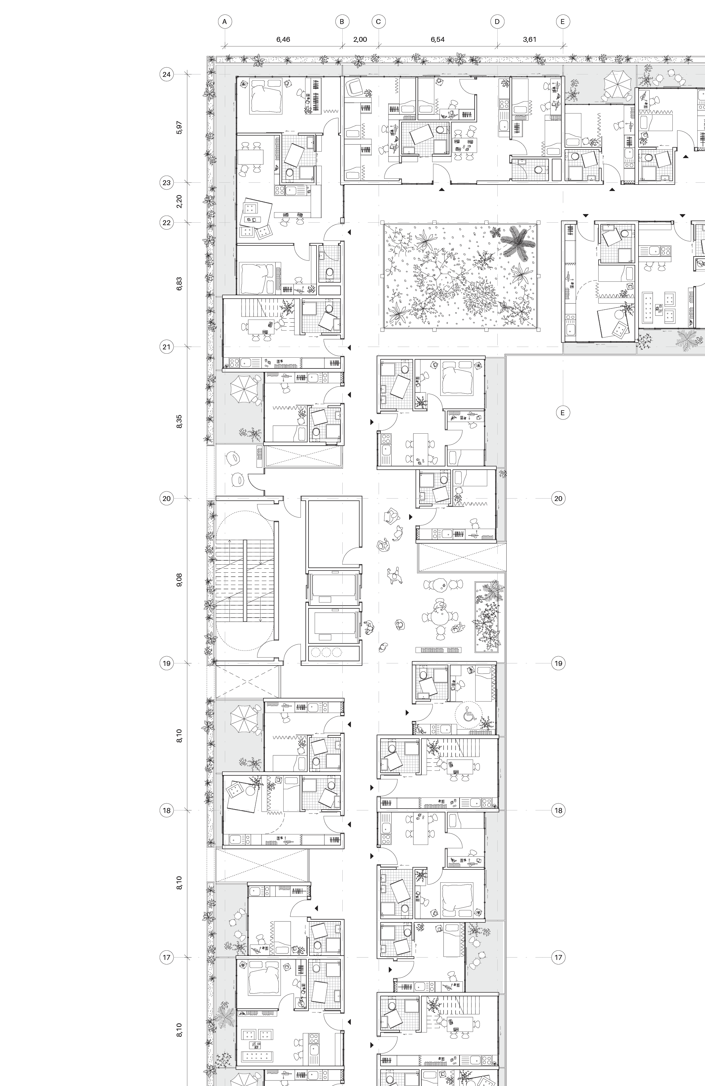
THE ISLAND - ein neuer Distrikt für die Kowloon City Bay Area
Hong Kong als urbanes Versuchsfeld ist ein Inbegriff für Dichte. Nur ein Viertel der Landfläche ist bebaut. Unzählige Wohntürme, die nicht nur an Le Corbusier's Plan Volsin für Paris erinnern, sondern diesen verkörpern, ragen nur wenige Meter neben purer Natur in den Himmel. Hilbersheimers utopische Gedankenwelt für die vertikale Hochhausstadt kann man auf einer der vielen 'foot bridges' in Central besichtigen oder besser - erleben. In Hong Kongs spannendem städtebaulichem Umfeld ergeben sich allerdings auch Probleme. Wohnraum ist kaum leistbar, Lebensraum begrenzt. Mit durchschnittlich 11m² pro Person muss man auskommen, wenn man hier lebt. Nur um den Unterschied deutlich zu machen: In Deutschland sind es 46 m² pro Kopf.
Diese Problematik war der Ausgangspunkt für unser e-habitat Studio. In den New Territories, dem noch unerschlossenstem Teil der Stadt — zwischen Hong Kong Island und dem schnell wachsendem Shenzhen gibt es noch Platz um neuen Lebensraum zu schaffen. ‚The Island‘ ist der Versuch den Traum der einsamen Insel im Grünen in ein urbanes Spannungsfeld zu übersetzen und so eine neue Art des Wohnens zu etablieren. Die Typologien sind angelehnt an Vorhandenes. Ein Superblock mit hoher Dichte, aber in ungewohnt horizontaler Form. Kleinstrukturen, vergleichbar mit denen, die dem Bauboom in den 80er Jahren weichen mussten, so angeordnet, dass eine neue Kompaktheit entsteht. Der Entwurf basiert auf der faszinierenden Koexistenz von Dichte, Grün und Wasser, die Hong Kong mitunter zu einer so spannenden Stadt machen.
Was bedeutet das DETAIL Stipendium für dich bzw. was erwartest du dir davon?
Das Stipendium bedeutet zuallererst natürlich eine finanzielle Erleichterung und die Möglichkeit, mich noch stärker auf meine Masterarbeit zu konzentrieren. Da ich vorhabe mich mit den Themen Migration und informellen Strukturen, sowie deren Auswirkungen auf unsere gebaute Umwelt auseinander zu setzten, plane ich einige Reisen zur Vor-Ort-Recherche für den theoretisch-analytischen Teil meiner Arbeit. Die größere finanzielle Unabhängigkeit durch das Stipendium macht mir die Planung in dieser Hinsicht um einiges leichter und ermöglicht eine tiefere und umfassendere Auseinandersetzung mit der Thematik. Ein weiterer Punkt, der mich dazu bewegt hat meine Bewerbung einzureichen, ist die Plattform und das Sprachrohr die DETAIL mit dem Stipendium bietet. Die Möglichkeit zu haben, sich als junge, angehende Architektin zu positionieren, Projekte und Ideen zu kommunizieren und Rückmeldung darauf zu bekommen ist mir ein großes Anliegen. Die Reflektion der eigenen Position nach einer Kritik und das ständige Ausloten des eigenen Standpunktes welches daraus folgt, macht das Studium wie das Berufsfeld für mich mitunter so interessant. Man lernt ständig etwas Neues — und dabei am meisten über sich selbst.
Ich freue mich auf ein spannendes Jahr mit interessanten neuen Gesichtern, Erfahrungen und Eindrücken, genauso wie auf den Austausch mit den anderen Stipendiaten.
Welchen Stellenwert hat die Architektur in deinem Leben und welche Themen beschäftigen dich sonst noch?
Die Architektur hat nach bald fünf Jahren Studium und einigen Abstechern in die Arbeitswelt einen wichtigen Teil in meinem Leben eingenommen. Vielleicht trifft das für jeden Studiengang zu, der so intensiv auf eine Aufgabe vorbereitet — aber der Blickwinkel den man auf die Welt hat, verändert sich. Als würde man mit der Zeit eine Brille tragen, die die Wahrnehmung des Alltags und der Umgebung färbt. Man redet ständig — vorzugsweise mit Studienkollegen, weil das diejenigen sind, die am meisten Verständnis dafür haben — über den Entwurf, das Konzept, die Idee. Man klopft an Wände, um zu erhören, ob die Wand das ist, was sie vorgibt zu sein. Man entwickelt Leidenschaft und ungeahnte Durchhaltekraft. Architektur hat meinen Blick auf die Welt verändert, und viele Türen in unterschiedlichste Richtungen geöffnet. Mit jedem Projekt lässt man sich auf neue Aufgaben und Fragen ein, seien es soziale, ökologische oder theoretische Gesichtspunkte. Ich genieße vor allem das „sich immer wieder neu einstellen müssen“ auf unterschiedlichste Ausgangspunkte.
Besonders beschäftigt mich derzeit mein aktueller Lebensmittelpunkt — Hongkong. Eine Stadt, die man in einem Ranking der interessantesten Städte der Welt zweifelsohne sehr weit oben einordnen kann. Von unglaublicher urbaner Dichte, hin zu Natur pur in wenigen Hundert Metern; High-Rise Glossyness kontrastiert von traditionellen aber verfallenen Shop-House Strukturen, in die es sich nicht mehr lohnt zu investieren, Resträume die auf geniale Weise vereinnahmt und umgenutzt werden. Eine Stadt voller Gegensätze, die ich gerne mit der Kamera festhalte. Es gibt jede Menge zu sehen und immer noch unendlich viel Neues zu entdecken.
Wenn ich nicht gerade in der weiten Welt unterwegs bin, um Eindrücke zu sammeln und fremde Kulturen kennen zu lernen, lebe ich in Graz. Ich fotografiere, lese und lache gern. Über das kommende Jahr hinweg werden die einzelnen Sitpendiaten auf www.detail.de abwechselnd über ihre Studienarbeiten, Reisen und Erlebnisse berichten.
Das Stipendium bedeutet zuallererst natürlich eine finanzielle Erleichterung und die Möglichkeit, mich noch stärker auf meine Masterarbeit zu konzentrieren. Da ich vorhabe mich mit den Themen Migration und informellen Strukturen, sowie deren Auswirkungen auf unsere gebaute Umwelt auseinander zu setzten, plane ich einige Reisen zur Vor-Ort-Recherche für den theoretisch-analytischen Teil meiner Arbeit. Die größere finanzielle Unabhängigkeit durch das Stipendium macht mir die Planung in dieser Hinsicht um einiges leichter und ermöglicht eine tiefere und umfassendere Auseinandersetzung mit der Thematik. Ein weiterer Punkt, der mich dazu bewegt hat meine Bewerbung einzureichen, ist die Plattform und das Sprachrohr die DETAIL mit dem Stipendium bietet. Die Möglichkeit zu haben, sich als junge, angehende Architektin zu positionieren, Projekte und Ideen zu kommunizieren und Rückmeldung darauf zu bekommen ist mir ein großes Anliegen. Die Reflektion der eigenen Position nach einer Kritik und das ständige Ausloten des eigenen Standpunktes welches daraus folgt, macht das Studium wie das Berufsfeld für mich mitunter so interessant. Man lernt ständig etwas Neues — und dabei am meisten über sich selbst.
Ich freue mich auf ein spannendes Jahr mit interessanten neuen Gesichtern, Erfahrungen und Eindrücken, genauso wie auf den Austausch mit den anderen Stipendiaten.
Welchen Stellenwert hat die Architektur in deinem Leben und welche Themen beschäftigen dich sonst noch?
Die Architektur hat nach bald fünf Jahren Studium und einigen Abstechern in die Arbeitswelt einen wichtigen Teil in meinem Leben eingenommen. Vielleicht trifft das für jeden Studiengang zu, der so intensiv auf eine Aufgabe vorbereitet — aber der Blickwinkel den man auf die Welt hat, verändert sich. Als würde man mit der Zeit eine Brille tragen, die die Wahrnehmung des Alltags und der Umgebung färbt. Man redet ständig — vorzugsweise mit Studienkollegen, weil das diejenigen sind, die am meisten Verständnis dafür haben — über den Entwurf, das Konzept, die Idee. Man klopft an Wände, um zu erhören, ob die Wand das ist, was sie vorgibt zu sein. Man entwickelt Leidenschaft und ungeahnte Durchhaltekraft. Architektur hat meinen Blick auf die Welt verändert, und viele Türen in unterschiedlichste Richtungen geöffnet. Mit jedem Projekt lässt man sich auf neue Aufgaben und Fragen ein, seien es soziale, ökologische oder theoretische Gesichtspunkte. Ich genieße vor allem das „sich immer wieder neu einstellen müssen“ auf unterschiedlichste Ausgangspunkte.
Besonders beschäftigt mich derzeit mein aktueller Lebensmittelpunkt — Hongkong. Eine Stadt, die man in einem Ranking der interessantesten Städte der Welt zweifelsohne sehr weit oben einordnen kann. Von unglaublicher urbaner Dichte, hin zu Natur pur in wenigen Hundert Metern; High-Rise Glossyness kontrastiert von traditionellen aber verfallenen Shop-House Strukturen, in die es sich nicht mehr lohnt zu investieren, Resträume die auf geniale Weise vereinnahmt und umgenutzt werden. Eine Stadt voller Gegensätze, die ich gerne mit der Kamera festhalte. Es gibt jede Menge zu sehen und immer noch unendlich viel Neues zu entdecken.
Wenn ich nicht gerade in der weiten Welt unterwegs bin, um Eindrücke zu sammeln und fremde Kulturen kennen zu lernen, lebe ich in Graz. Ich fotografiere, lese und lache gern. Über das kommende Jahr hinweg werden die einzelnen Sitpendiaten auf www.detail.de abwechselnd über ihre Studienarbeiten, Reisen und Erlebnisse berichten.



















