// Check if the article Layout ?>
Anknüpfungspunkte: Lean-To House macht Namen zum Programm
Foto: Aaron Pocock
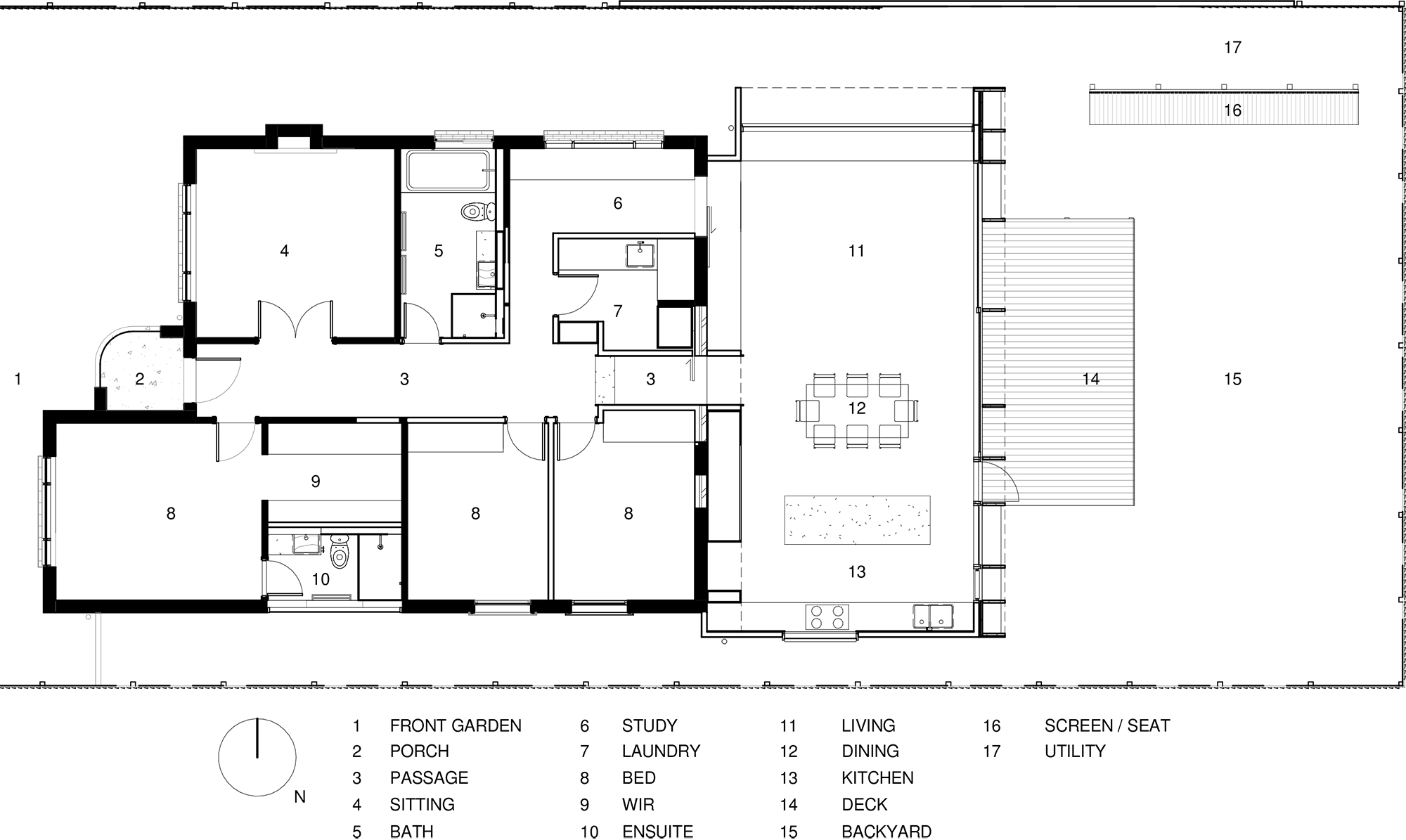
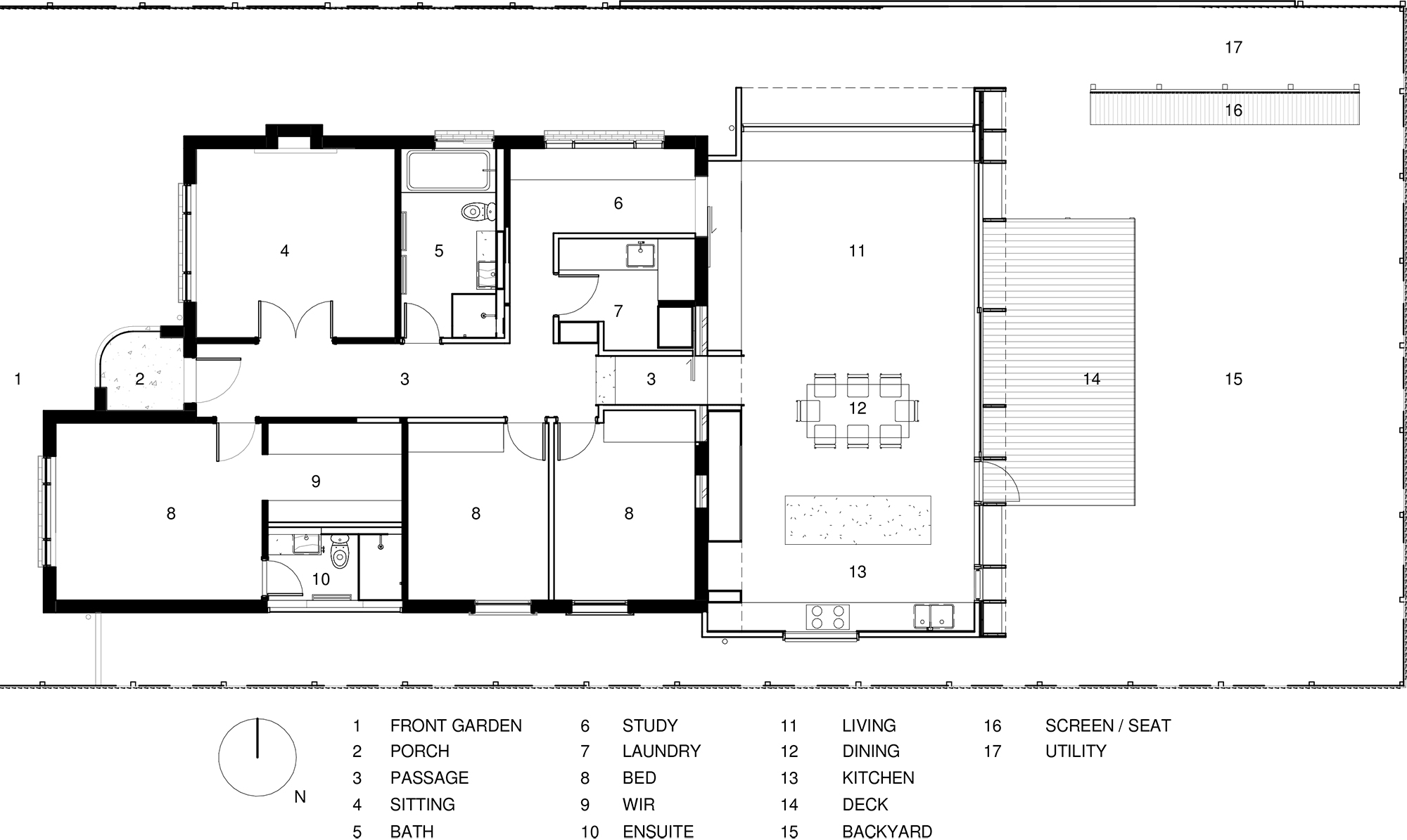
Die Rahmenbedingungen stellen ein rechteckiges Grundstück, gemeinsam mit dem an der Westseite positionierten, eingeschossigen Bestandsgebäude dar. Letzteres wird von Westen her erschlossen und entwickelt sich hin zu einem Garten in östlicher Richtung. Im Zuge des Umbaus entscheidet man sich für eine Erweiterung an der dem Außenraum zugewandten Fassade.
Der Anbau besteht aus zwei unterschiedlich geneigten Pultdächern, die mit weißem Stahlblech eingedeckt sind. Diese Dachform erweist sich in energetischer Hinsicht, sowie in Sachen Materialbedarf als perfekte Lösung. Zum Garten hin öffnet sich der Bau in einer großflächigen Glasfassade, mit anschließender Terrasse. Die Ansicht wird von mehreren vertikalen Holzelementen strukturiert. Sie sind aus heimischer Radiatkiefer gefertigt. Lediglich gebeizt, kommt der Rohstoff ganz ohne chemische Behandlung aus. Neben einer imposanten Optik sorgen die Holzschwerter für ein angenehmes Raumklima, indem sie die direkte Sonneneinstrahlung minimieren. Die Nutzung der Solarstrahlung und ein automatisiertes Dachfenster, durch das warme Luft entweichen kann, komplettieren die intelligenten Attribute des angelehnten Teils. In Summe gelingt es damit sogar, die gesetzlichen Richtwerte für nachhaltige Bauwerke zu übertreffen.
Programmatisch gliedert sich das Haus in einen öffentlicheren und einen privateren Bereich. Im Bestandsteil gibt es einen zentralen Gang, der im Anbau endet. Von ihm gehen neben den Schlafzimmern auch ein Bad und ein Arbeitszimmer ab. Die Nahtstelle zwischen Alt und Neu wird von den Architekten bewusst in Szene gesetzt. So bleibt die ehemalige Außenwand sichtbar und erstrahlt in frischem Weiß, während vom Büro durch eine Art Holzschiebefenster eine direkte Verbindung zum neuen Trakt hergestellt wird. Eigentliches Highlight aber bildet der Anbau selbst. In dem großen, lichtdurchfluteten Raum finden Kochen, Essen und Wohnen nebeneinander statt.
Durch ein einheitliches Gestaltungskonzept gelingt es, die beiden Bauten, die nach außen so unterschiedlich erscheinen, zu verbinden und so ein angenehmes Wohnambiente zu kreieren.














