Weltkulturerbe
Archäologiemuseum bei Xi’an von Atelier Diameter
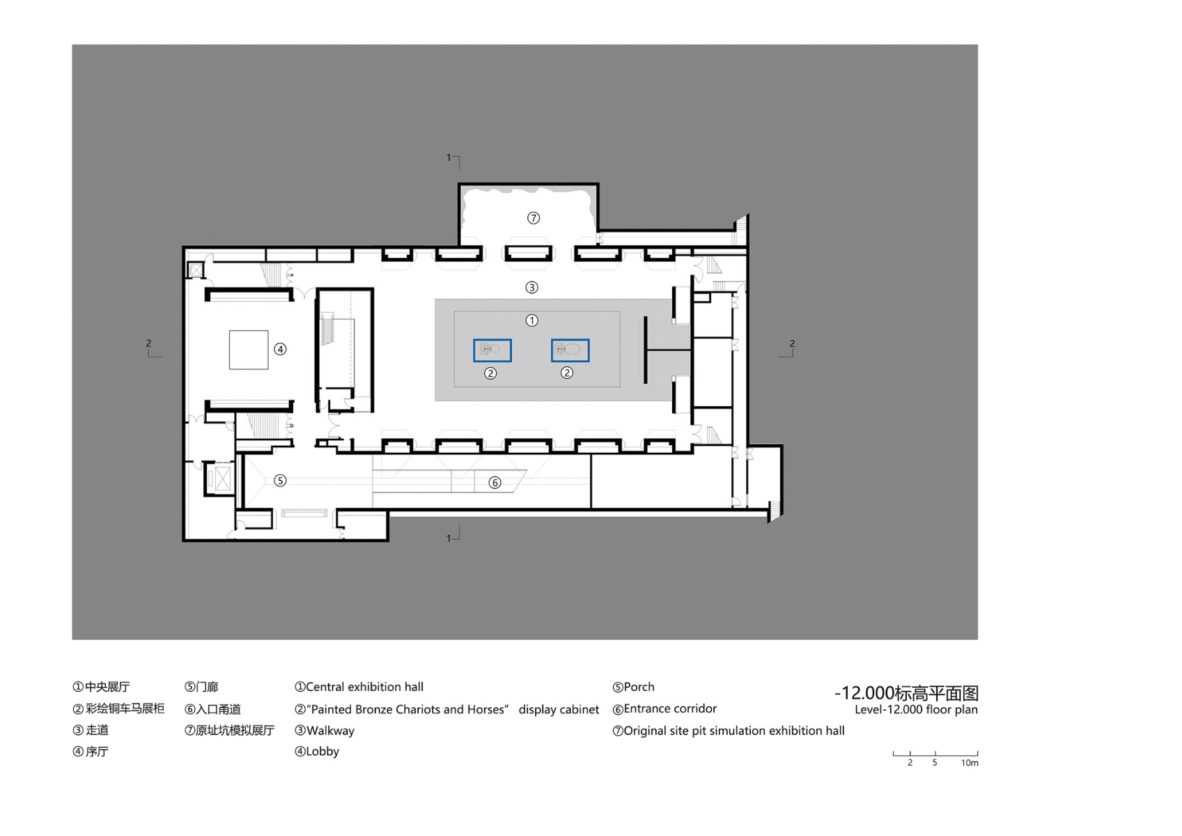
Die Hauptattraktion des Museums: zwei Bronzekutschen aus dem Grab Ying Zhengs. © Yang Chen
Ganz in der Nähe des Museums für die weltberühmte Terrakotta-Armee ist ein zweiter, unterirdischer Ausstellungsbau entstanden. Seine Hauptattraktion: zwei Bronzekutschen aus dem Grab des ersten chinesischen Kaisers.


Ausstellungssaal, © Yang Chen
Der Neubau steht am – oder besser unter dem – Fuß des Mausoleums von Ying Zheng, Ahnherr der Qin-Dynastie und Gründer des chinesischen Kaiserreichs. Er starb im Jahr 210 vor unserer Zeitrechnung und wurde in einem gigantischen, flachen Grabhügel bestattet, der als eines der ersten chinesischen Kulturdenkmäler 1987 in die Liste des Unesco-Weltkulturerbes aufgenommen wurde.
Zwei Umfassungsmauern umgeben diese Hügel, dazwischen erstreckt sich ein riesiger, Jahrhunderte später angelegter Entwässerungsgraben. An dieser Stelle, so die Architekten, lag der einzig mögliche Standort für das Museum, da hier keine weiteren Funde aus der Qin-Zeit mehr zu erwarten waren.


Der Neubau steht am Fuß des Mausoleums von Ying Zheng. © Trimont Image
Sichtbeton und Lichtführung
Der rund 8000 m² große Neubau ist auf 30 000 Besucher täglich ausgelegt und liegt zum allergrößten Teil unter der Erde. Der Hin- und Rückweg durch das Außengelände war den Architekten ebenso wichtig wie der Ausstellungsparcours selbst. Eine 200 m lange Rampe führt in zwei Läufen vom Eingang direkt hinunter in den größten Saal mit der Hauptattraktion des Museums: zwei außerordentlich fein gearbeitete, halb lebensgroße Bronzekutschen aus dem Grab Ying Zhengs. Es folgen eine Lounge, ein Multimedia-Raum, ein zweiter Ausstellungssaal und schließlich der Museumsshop, bevor es wieder ins Freie geht. Beim Weg auf eine zweite Rampe empor zum Ausgang fällt der Blick schließlich auf das Mausoleum des ersten Kaisers.


Multimedia-Raum, © Trimont Image
Ganz bewusst entschieden sich die Architekten für Sichtbeton als das dominierende Material im Museum. Keine Keramikverkleidungen, kein Holz und auch keine Anlehnungen an die kaiserzeitliche Architektur sollten – wie sonst so oft in China – die Historie wiederaufleben lassen. Die Exponate und die geschichtsträchtige Umgebung sprechen in diesem Fall für sich selbst.
Architektur, Landschaftsarchitektur, Tragwerks- und TGA-Planung: ZSA – Atelier Diameter
Bauherr: Emperor Qinshihuang's Mausoleum Site Museum
Standort: Qin Shi Huang Di Ling Bo Wu Yuan Li Shan Yuan, Lintong, Xi’An (CN)
Lichtplanung: Ning Field Lighting Design
Ausstellungsarchitektur: Nanjing Baihui Decoration Engineering
Generalunternehmer: Xi’an Qujiang Daming Palace Investment Group



























