Neues Innenleben aus Sichtbeton
Archiv der Avantgarden in Dresden von Nieto Sobejano
Nieto Sobejano ließen das historische Gebäude komplett entkernen und gaben ihm ein neues Innenleben aus Sichtbeton. © Roland Halbe
Das Blockhaus gehört zu Dresden wie Frauenkirche, Stadtschloss und Semperoper: Unmittelbar gegenüber der Altstadt erhebt sich der trutzige, quadratische Bau am Elbufer. Errichtet wurde er ab 1732 als Wachgebäude, kurze Zeit später aufgestockt und schließlich im Zweiten Weltkrieg weitgehend zerstört. 35 Jahre lang blieb das Blockhaus Ruine, wurde dann wieder aufgebaut und diente unter anderem der Sächsischen Akademie der Künste als Hauptsitz.


Das ehemalige Blockhaus steht in prominenter Lage am Dresdener Elbufer. Im Hintergrund Frauenkirche, Stadtschloss und Schlosskirche. © Roland Halbe
Ort der Sammlung und Präsentation
Ab dem 5. Mai 2024 beginnt nun ein neues Kapitel der Gebäudehistorie: Dann eröffnet im neuerlich umgestalteten Blockhaus das „Archiv der Avantgarden – Egidio Marzona“, wie die Einrichtung offiziell heißt. Für den Umbau zeichneten Nieto Sobejano Arquitectos als Sieger eines Architektenwettbewerbs 2018 verantwortlich.
Vom Futurismus bis zur HfG Ulm
Namensgeber der Institution und Stifter des Inhalts ist der 1944 in Bielefeld geborene italienische Kunstsammler Egidio Marzona. Er vermachte den Sächsischen Kunstsammlungen Dresden 2016 ein Konvolut von mehr als 1,5 Millionen Objekten – Kunstwerken, Designstücken, aber auch Plakaten, Katalogen, Briefen und vieles mehr – zu den Avantgarden des 20. Jahrhunderts vom Futurismus über den Surrealismus, den Dadaismus und das Bauhaus bis zur HfG Ulm und dem Black Mountain College aus er Nachkriegszeit.


Lageplan des ehemaligen Blockhauses, Grafik © Nieto Sobejano Arquitectos
Hinter der restaurierten Fassade ist alles neu
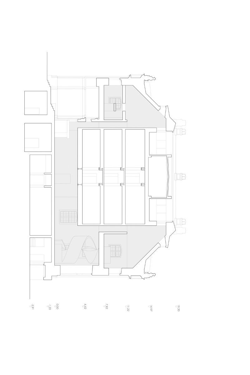
Im Elbhochwasser 2013 war das Blockhaus stark in Mitleidenschaft gezogen worden. Jetzt haben Nieto Sobejano die Fassaden originalgetreu restauriert, das Gebäudeinnere aber komplett entkernt. Herzstück des Ganzen bildet nun ein scheinbar schwebender, dreigeschossiger Betonkubus. Er beherbergt das Archiv des Sammlers und wird beidseitig von einem Treppenhaus- und einem Aufzugskern erschlossen.


Die Archivalien sind in einem dreigeschossigen, geschlossenen Betonkubus untergebracht. © Roland Halbe


Auf den offenen Ebenen ringsum können unter anderem Ausstellungen stattfinden. © Roland Halbe
Raumskulpturen aus Sichtbeton
Das zweite skulpturale Element in der sonst weitgehend freigeräumten Gebäudemitte ist eine Wendeltreppe, ebenfalls aus Sichtbeton. Sie erschließt die umlaufenden offenen Galerien, die für eine flexible Nutzung in Form öffentlicher Veranstaltungen, Wechselausstellungen, Workshops und Konferenzen bereitstehen.


Axonometrie des Archivs der Avantgarden, Grafik © Nieto Sobejano Arquitectos
Außerdem gibt es auf den rund 1900 m² Nutzfläche Arbeitsfläche für Kunsthistoriker und andere Wissenschaftler. Auf diese Weise soll das Archiv der Avantgarden ein Ort der Forschung und des öffentlichen Kulturgenusses gleichermaßen sein.
Architektur: Nieto Sobejano Arquitectos
Bauherr: Staatsbetrieb Sächsisches Immobilien- und Baumanagement - Niederlassung Dresden I
Standort: Große Meißner Straße 19, 01097 Dresden (DE)
Tragwerksplanung: Wetzel & von Seht
Projektsteuerung: tp management
Landschaftsarchitektur: Kretzschmar und Partner Freie Landschaftsarchitekten
TGA-Planung: Brendel Ingenieure Dresden
Brandschutzplaner: Rühle, Jentzsch und Partner
Bau- und Raumakustik: Müller BBM
Bauleitung: Nieto Sobejano Arquitectos mit AWB Architekten












