Fassaden aus Fischgrät-Beton
Armeemuseum in Warschau von WXCA
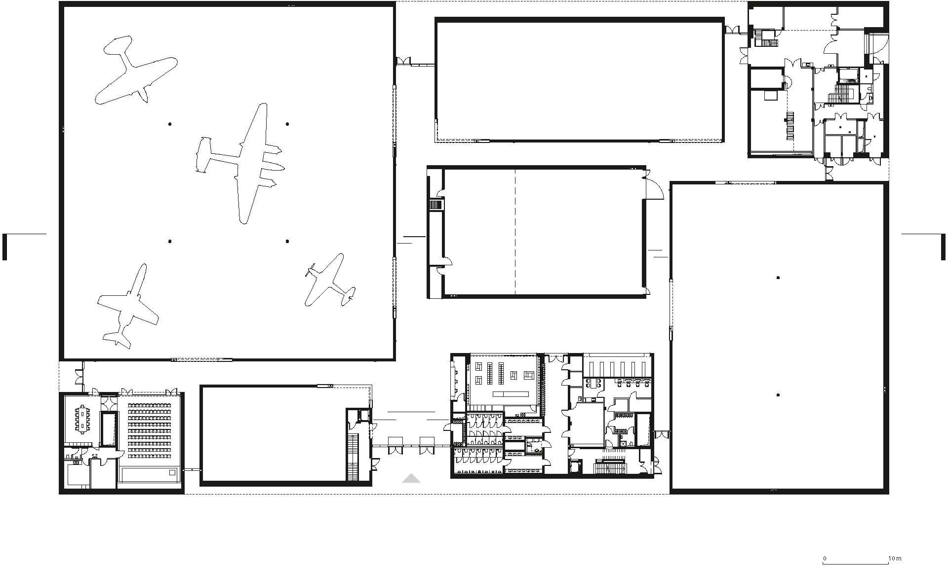
Aus der Luft ist die Gliederung des flachen Neubaus in acht funktionale Abschnitte gut ablesbar. © Marcin Czechowicz
Das Polnische Armeemuseum ist der erste Baustein eines Kulturquartiers, das die Regierung auf einem zentral gelegenen Militärgelände plant. Schon 2009 gewannen WXCA den Architektenwettbewerb für den Neubau in der Warschauer Zitadelle nördlich der Innenstadt. Sie konzipierten eine Art nach Westen geöffneten Ehrenhof, den im Osten das neue Nationalmuseum und im Norden und Süden die beiden Flügel des Armeemuseums umschließen. Das südliche der drei Gebäude ist nun das erste, das der Öffentlichkeit übergeben wurde.


Aus der Ferne wirken die Betonmauern des Museums glatt und homogen. Erst beim Näherkommen offenbart sich das eingeprägte, feine Fischgrätmotiv. © Marcin Czechowicz
Strukturierte Sichtbetonwände
Mit seinen roten Sichtbetonfassaden nimmt das Museum Bezug auf zu den mächtigen Ziegelmauern, die die 30 ha große Zitadelle bisher für die Öffentlichkeit unzugänglich machten. Wie Ziegelmauerwerk auch unterscheiden sich die Wandoberflächen in der Fern- und der Nahwirkung: Was auf den ersten Blick als homogenes Moiré-Muster erscheint, entpuppt sich beim Näherkommen als feines Fischgrät-Motiv, das dem Sichtbeton eingeprägt wurde. Die einzelnen Winkel haben etwa die Größe einer menschlichen Hand. So sollen sie dem Baukörper eine intuitiv erfahrbare Maßstäblichkeit geben.
Viele Wege führen durch das Haus
Innen gliedert sich das Museum in acht durch Flure getrennte, funktionale Blöcke. Vier davon beherbergen die Dauerausstellung mit historischen Waffen sowie Exponaten zur Geschichte der polnischen Armee. Der fünfte steht für Sonderausstellungen und Veranstaltungen zur Verfügung. Ergänzt werde die 6000 m² Ausstellungsflächen von drei weiteren Blocks mit Büros, Lager, Werkstätten und einem Saal für audiovisuelle Medien mit 100 Plätzen.


Für Wechselausstellungen und Veranstaltungen wurde eine eigene große Halle errichtet. © Marcin Czechowicz
Das Zickzackmuster setzt sich auch im Inneren der Flure und teils in den Sälen fort. Nützlich macht sich die massereiche Betonstruktur des Museums auch bei der Beheizung und Kühlung über 91 je 150 m tiefe Erdsonden, die an eine Wärmepumpenanlage angeschlossen sind.


Das Prägemotiv der Betonwände setzt sich in den Fluren und Erschließungszonen im Haus fort. © Marcin Czechowicz


Acht Flure führen durch das Museum. © Marcin Czechowicz
Offen konzipiertes Museum
Trotz des vielen Betons ist das Museum als offenes Haus konzipiert, dessen Ausstellungsprogramm sich auch jenseits der roten Betonmauern in den Freianlagen fortsetzen soll. Die Architekten sehen das Museum und den Park als integrale Einheit – und wenn noch Geld da ist, soll in einem zweiten Bauabschnitt auch noch das nördliche Gebäude des Armeemuseums errichtet werden.
Architektur: WXCA
Bauherr: Polnisches Armeemuseum
Standort: Koronnej, Gwardii, 01-532 Warszawa (PL)
Tragwerks- und TGA-Planung: Buro Happold Poland
Landschaftsarchitektur: Studio Krajobraz
Akustik: PAK Pracownia Akustyczna
Ausstellungstechnik: Janczarski Studio














