Selbstreinigende Fassade
Asymmetrische Glasfaserbetonelemente
© Lindner-Group.com
Dunkles Metall und heller Beton, glatte und gefaltete Flächen: Die Fassade des Bürokomplexes Mark in München zeichnet sich durch ihre Kontraste aus. Hergestellt wurde die Gebäudehülle von Lindner Building Envelope, Teil der Lindner Group aus Arnstorf.


© Lindner-Group.com
Zwischen Straße und Gleisen
Der Entwurf für den bis zu achtgeschossigen Komplex, der durch drei Innenhöfe und einen zur Zugangsseite hin offenen Hof strukturiert wird, stammt von KSP ENGEL. Mit seiner 18.600 m² großen Hüllfläche erstreckt er sich über 200 Meter entlang der S-Bahn-Stammstrecke zwischen dem Stadtteil Pasing und dem Münchner Hauptbahnhof. Die zweite Längsseite wird von der vielbefahrenen Landsberger Straße begrenzt.


© Lindner-Group.com
Mehrfach gefaltet
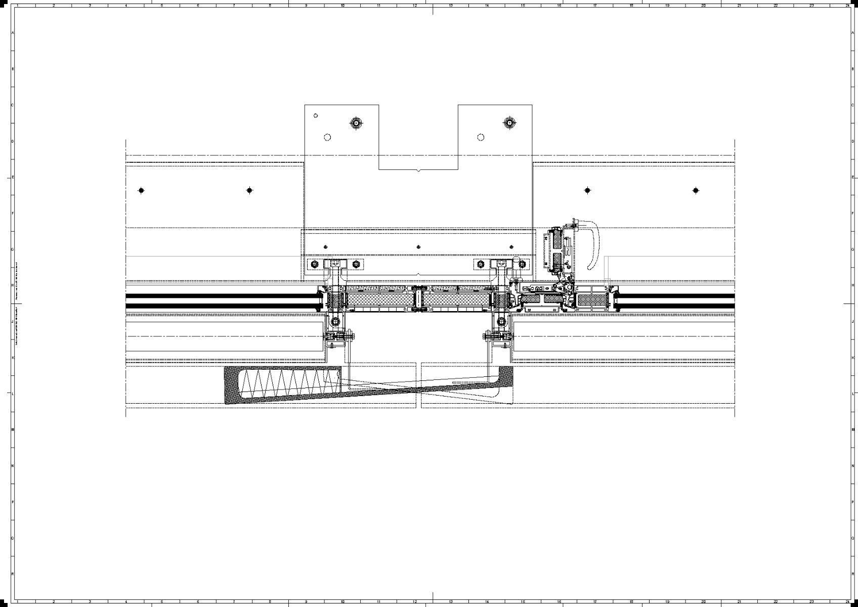
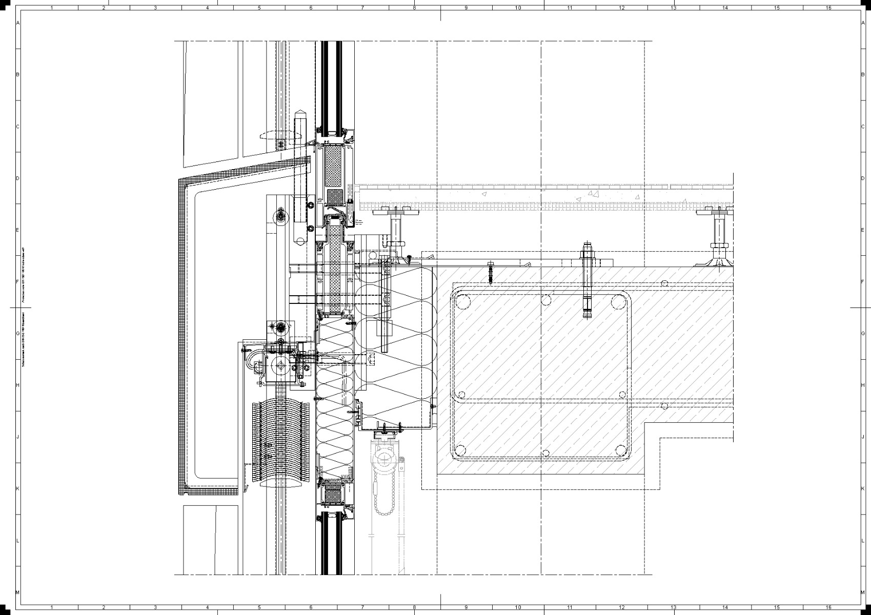
Die einzelnen Gebäudeabschnitte sind leicht schräg zueinander angeordnet, die Kontur folgt dadurch einer Zick-Zack-Linie. Die oberen beiden Geschosse sind mit Rücksprüngen ausgebildet, die sich als Dachterrassen nutzen lassen. Entscheidend für den äußeren Eindruck des Ensembles sind helle, 13 mm dünne LinCrete-Glasfaserbetonelemente. Während die Fassade im Bereich der Geschossdeckenanschlüsse glatt erscheint, ließ man zwischen den Öffnungen dreidimensionale Bauteile mit mittiger diagonaler Falte montieren. Die schrägen Linien und Kanten sollen die Corporate Identity des Ensembles widerspiegeln. Zudem sorgt das Relief durch den Schattenwurf für Tiefe und lässt die Fassade im Vorbeifahren eine gewisse Dynamik entwickeln.


© Lindner-Group.com
Photokatalytische Beschichtung
Um starke Schmutzablagerungen an den weißen Fassadenelementen zu vermeiden, wurde nachträglich eine spezielle Beschichtung aufgetragen: Diese hat durch das Wirkprinzip der Photokatalyse einen selbstreinigenden Oberflächeneffekt und beseitigt laut Lindner durch den natürlichen Belichtungs-Regen-Zyklus auch aktiv Stickoxide aus der Luft. Als Katalysator dient aktiviertes Titandioxid.
Zusätzlich zur Elementfassade mit vorgehängter Glasfaserbetonverkleidung fertigte, lieferte und montierte Lindner unter anderem auch die schwarzen Pfosten-Riegel-Fassaden sowie Kaltfassadenelemente, die vor den Betonaußenwänden montiert wurden. CHI
Architektur: KSP ENGEL
Bauherr: AXA Investment Managers Deutschland
Standort: Landsberger Straße 346, 80687 München
Produktkategorie: Beton / Fassade
Hersteller: Lindner Building Envelope, Teil der Lindner Group
Produkt: LinCrete







