Stimmige Erweiterung
Atelier-R revitalisiert Rote Kirche in Tschechien
Rote Kirche mit Erweiterungsbau, © BoysPlayNice
Schon lange hatte die neogotische Kirche in Olmütz ihren kulturellen Nutzen verloren und diente seit 1959 nur noch als Buchlager. Atelier-R sanierte das denkmalgeschützte Gebäude und erweiterte es um eine Bibliothek. Aufgrund des schlechten baulichen Zustands des Kirchengebäudes war eine Umnutzung vor einer grundlegenden Sanierung undenkbar.


Kirche und Bibliothek sind durch ein Empfangsgebäude miteinander verbunden., © BoysPlayNice
Umnutzung
Die neue Bibliothek in angrenzender Umgebung der Kirche eröffnet weitere Nutzungsmöglichkeiten für die Gemeinde. In Zukunft sollen hier und in der Kirche kleinere Konzerte, öffentliche Lesungen, Vorträge oder Kunstausstellungen stattfinden. Darüber hinaus soll der Gebäudekomplex ein Informationszentrum für die Forschungsbibliothek und die Region Olmütz werden.
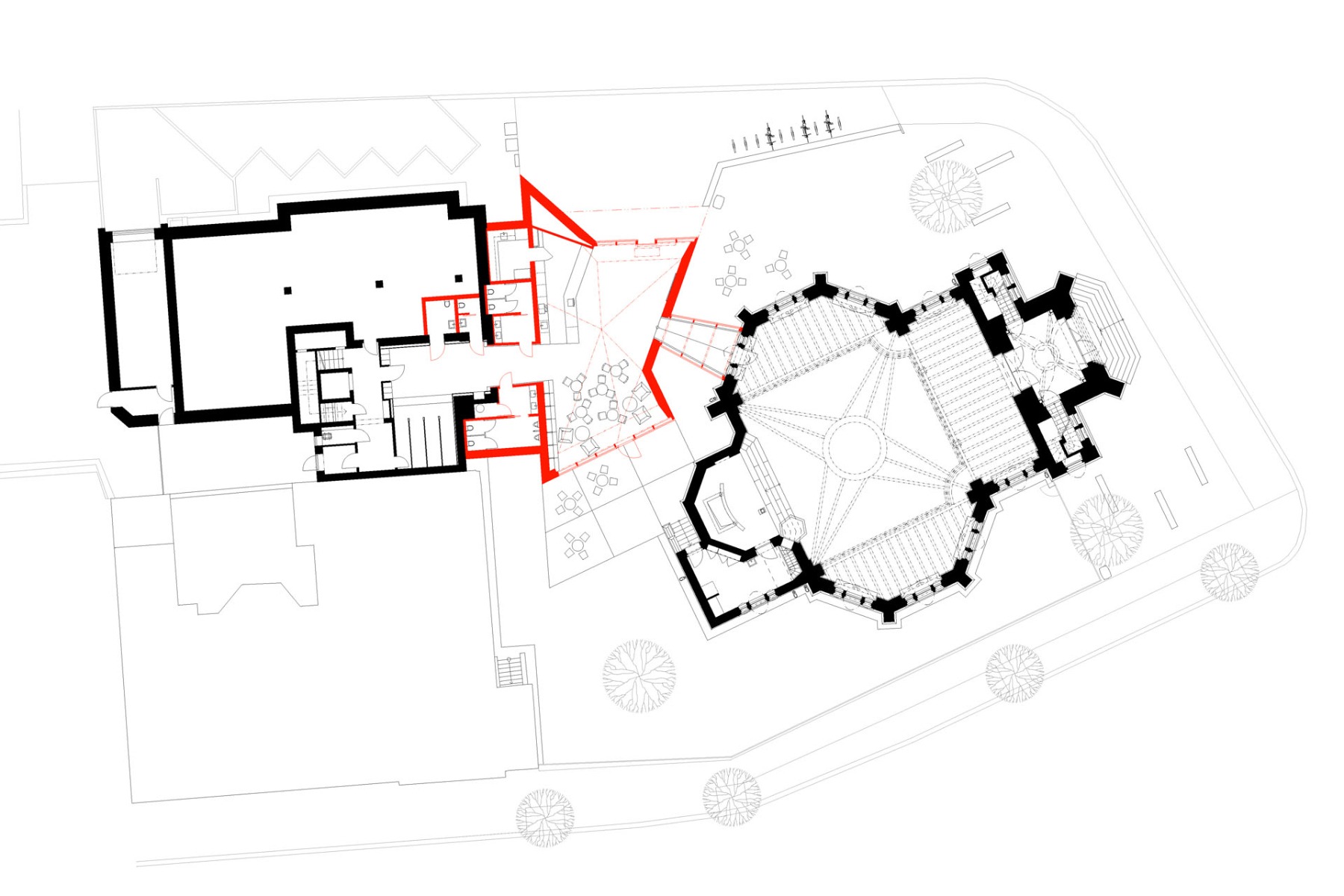
Um die neue Bibliothek mit der Kirche zusammenzuführen, wurde außerdem ein Erweiterungsbau als Verbindung und Eingang der beiden Bauwerke geschaffen. Eine raumhohe Bücherwand greift hier das Thema der Bibliothek auf.


Der Empfangsbereich liegt vor einer raumhohen Bücherwand. © BoysPlayNice
Moderne trifft Neogotik
Das neue Empfangsgebäude setzt sich mit seiner schwarzen Aluminiumfassade und den großflächigen Fenstern setzt es sich deutlich von der Kirche und ihrer roten Backsteinhülle ab. Gleichzeitig orientiert sich die neue Architektur an der Geometrie und dem Grundriss der Kirche. Die spitzen Winkel und abgeschrägten Flächen sind eine Antwort auf die neogotischen Baumerkmale des Nachbargebäudes. Zusammen ergeben die beiden Baukörper ein harmonisches Gesamtbild.


Blick auf die Rote Kirche mit Erweiterungsbau, © BoysPlayNice


Sanierter Innenraum der Kirche, © BoysPlayNice
Neue Chance durch Sanierung
Die Hauptaufgabe der Sanierung bestand darin, dass ehemalige Kirchengebäude weitestgehend originalgetreu zu rekonstruieren. Trotz des schlechten baulichen Zustands gelang es Atelier-R das Bauwerk grundlegend zu erneuern. Vom Mauerwerk bis zu den Fundamenten lagen enorme Mängel vor und so mussten sämtliche Bauteile ausgebessert werden. Das historische Dach drohte wegen Witterungsschäden einzustürzen und wurde vollständig ersetzt. Im Zuge der Baumaßnahmen wurde der angrenzende städtische Raum ebenfalls aufgewertet. Die Rote Kirche ist nun mit ihrer neuen Funktion als Veranstaltungs- und Konzerthalle ein Zentrum des städtischen Lebens.
Architektur: atelier-r
Bauherr: Olmützer Region, Wissenschaftliche Bibliothek in Olmütz
Standort: Bezručova 1180/3, 779 00 Olmütz (CZ)
Innenarchitektur: Denisa Strmisková Studio
Fertigstellung: 2023


















