Atempause: Erholungserlebnis im neuen Anbau des Stiftsgården Åkersberg
Der Stiftsgården Åkersberg im schwedischen Höör hat seine Wurzeln im späten 17. Jahrhundert und ist ein beliebter Urlaubs- und Erholungsort. Nun wurde das auch für Kongresse und Tagungen genutzte Anwesen um ein Spa- und Erholungsgebäude erweitert.
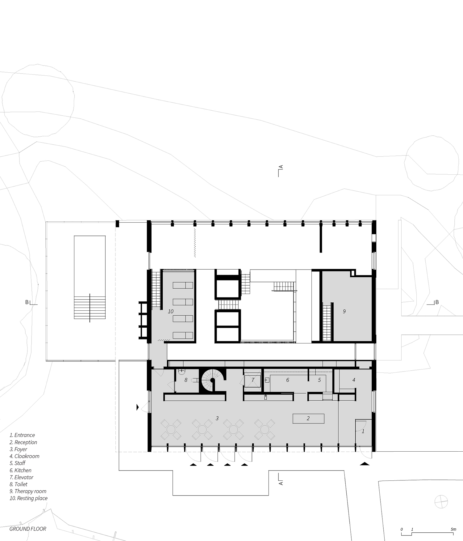
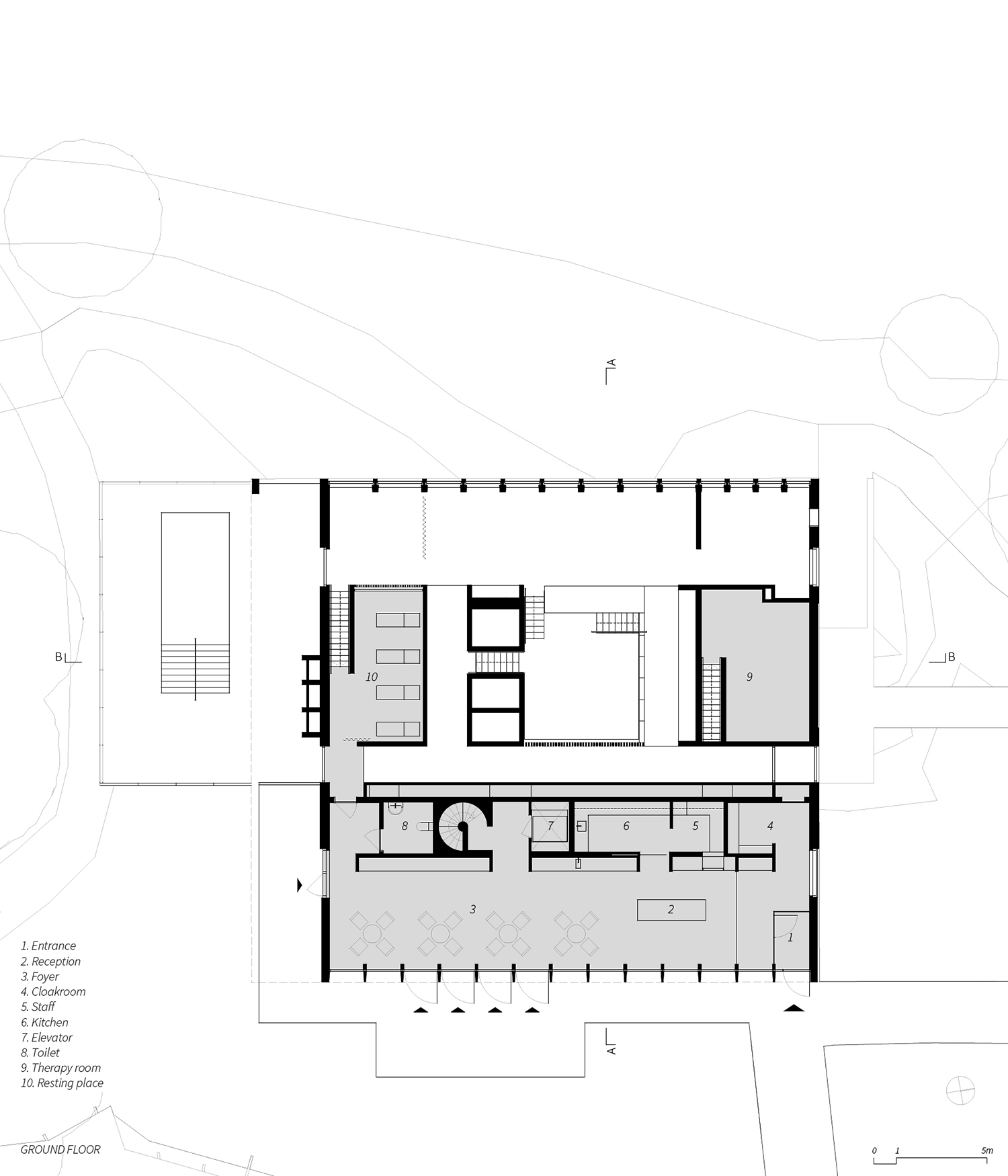
Das Wort »Andrum«, welches als Namensgeber für das neue Gebäude dient, wird aus dem Schwedischen mit »Ruhepause« bzw. »Raum des Atems« übersetzt und beschreibt den Leitgedanken für das Konzept des Neubaus von Johan Sundberg Arkitektur.
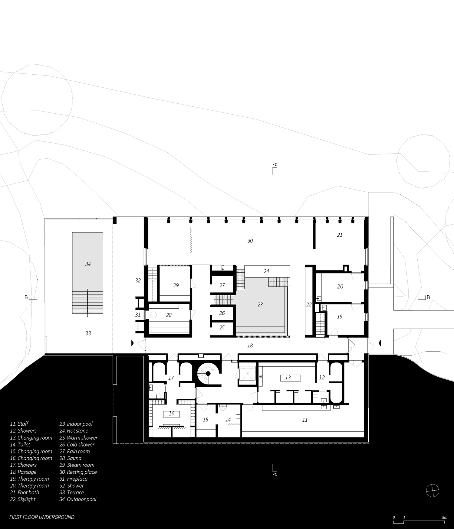
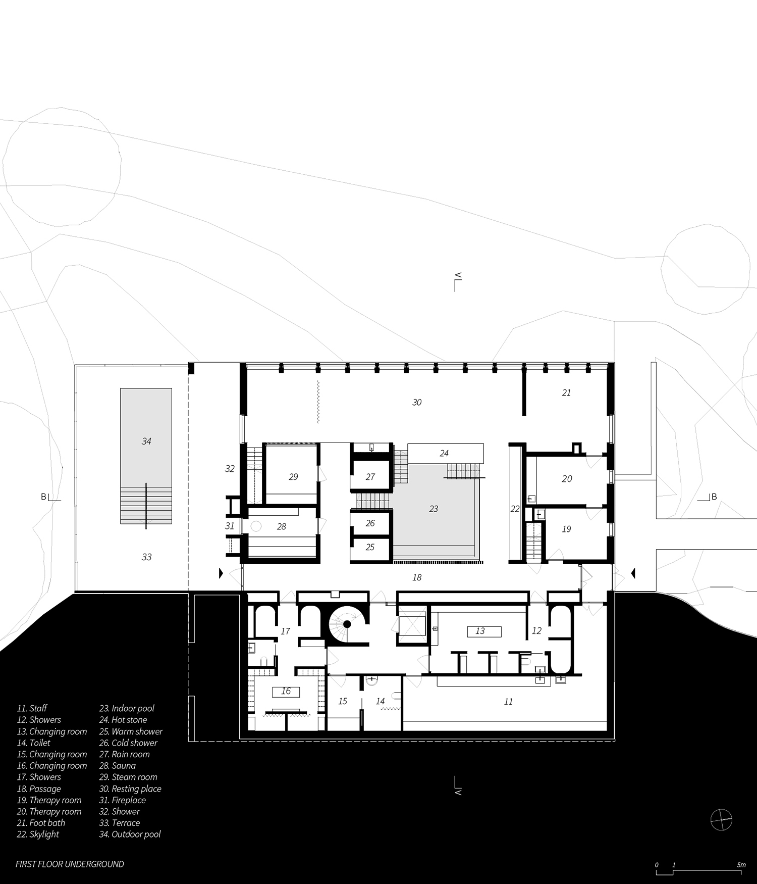
Das Andrum-Gebäude des Stiftsgården Åkesberg ist am westlichen Ende des Innenhofes angeordnet. Sein äußeres Erscheinungsbild soll sich den schon bestehenden Gebäuden unterordnen. Der Neubau ist teilweise in den Hang eingelassen und orientiert sich in Richtung des Parks. Ein Arkadengang flankiert den Rand des Innenhofes im Westen und bildet dadurch nicht nur eine Verbindung zwischen Hostel und Friedenskapelle, sondern begrenzt auch das Foyer des Andrum. Von hier aus gelangt man auf eine untere, in den Hang eingelassene Ebene. Es entsteht ein zusammenhängendes Raumgefüge aus verschiedenen Nutzungen, wie beispielsweise einer Sauna, Regen- und Dampfbädern, einem Wasserfall und einem Indoor- sowie Outdoorpool.
Besonderes Augenmerk wurde bei der Gestaltung zudem auf Licht und Optik sowie Haptik und Akustik des Gebäudes gelegt, wodurch die Räume vielseitig erlebbar und spürbar sind. Durch die Verwendung von möglichst reinen und unbehandelten Materialien strahlen die Räume eine sanfte Ruhe aus. Der großzügige Einfall von Tageslicht setzt die natürlichen Farben der Materialien in Szene. Dabei steht das helle Holz in den trockenen Aufenthaltsbereichen im Kontrast zu dem dunklen, geradlinigen Erscheinungsbild des Natursteins in den Bereichen der Wasserbecken.
Neben dieser besonderen Atmosphäre im Inneren des Andrum steht außerdem eine starke Verbundenheit zur Natur im Vordergrund, die insbesondere in den hohen Räumen des unteren Bereiches deutlich wird, da sich hier Spa- und Therapieräume zu allen Seiten in Richtung des Parks und der Natur öffnen.
Weitere Informationen:
Bauingenieur: Tyréns AB (Ronny Gerd, Folke Höst, Lena Löfberg)
Bauingenieur Vorfertigung: Prekon i Syd AB (Ruben Gianolio, Nela Kapic, Lotta Lundin)
Bauunternehmen: Byggom AB (Pär Stigborg)
Fotograf: Peo Olsson
























