// Check if the article Layout ?>
Atmosphärische Funktionalität: Tierarztpraxis DUOVet
Foto: Gauer Itten Messerli Architekten
Wie ein langer Riegel erstreckt sich das Gebäude der DUOVet-Tierarztpraxis auf dem riesigen Areal. Gebildet wird der Bau durch ein offen gestaltetes Sockelgeschoss und ein weniger offenes Obergeschoss, das die Haupteingangsseiten im Süden und Osten überkragt. Grün- und Terrassenbereiche scheinen dabei genauso stark berücksichtigt worden zu sein wie die Bebauung selbst. Über einen klar gerichteten Weg schreiten die Besucher mit den Patienten auf den großzügig verglasten Eingangsbereich zu, während sich der Rest des Gebäudes farblich in die Umgebung einfügt und bei Dämmerung fast zu verschwinden scheint.
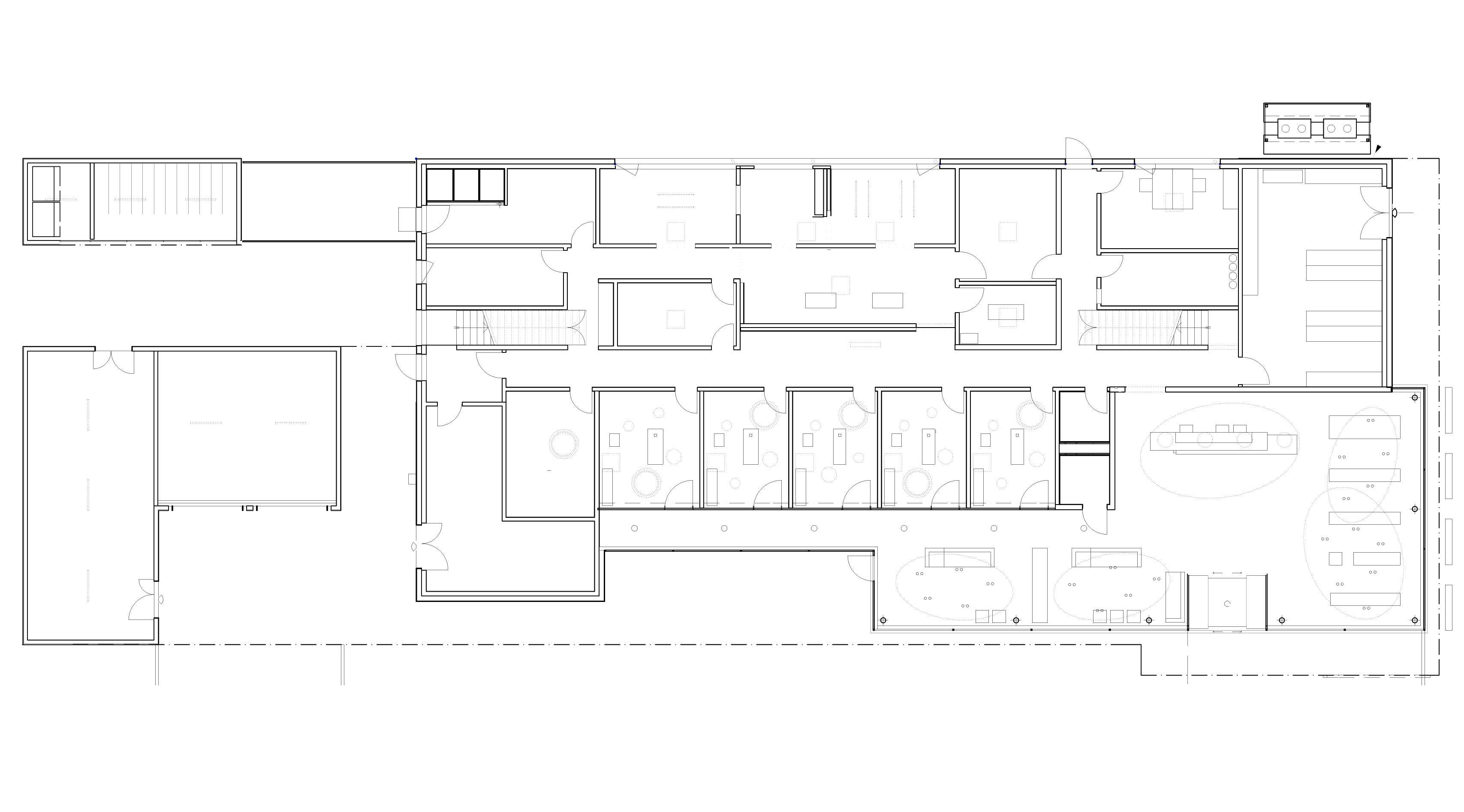
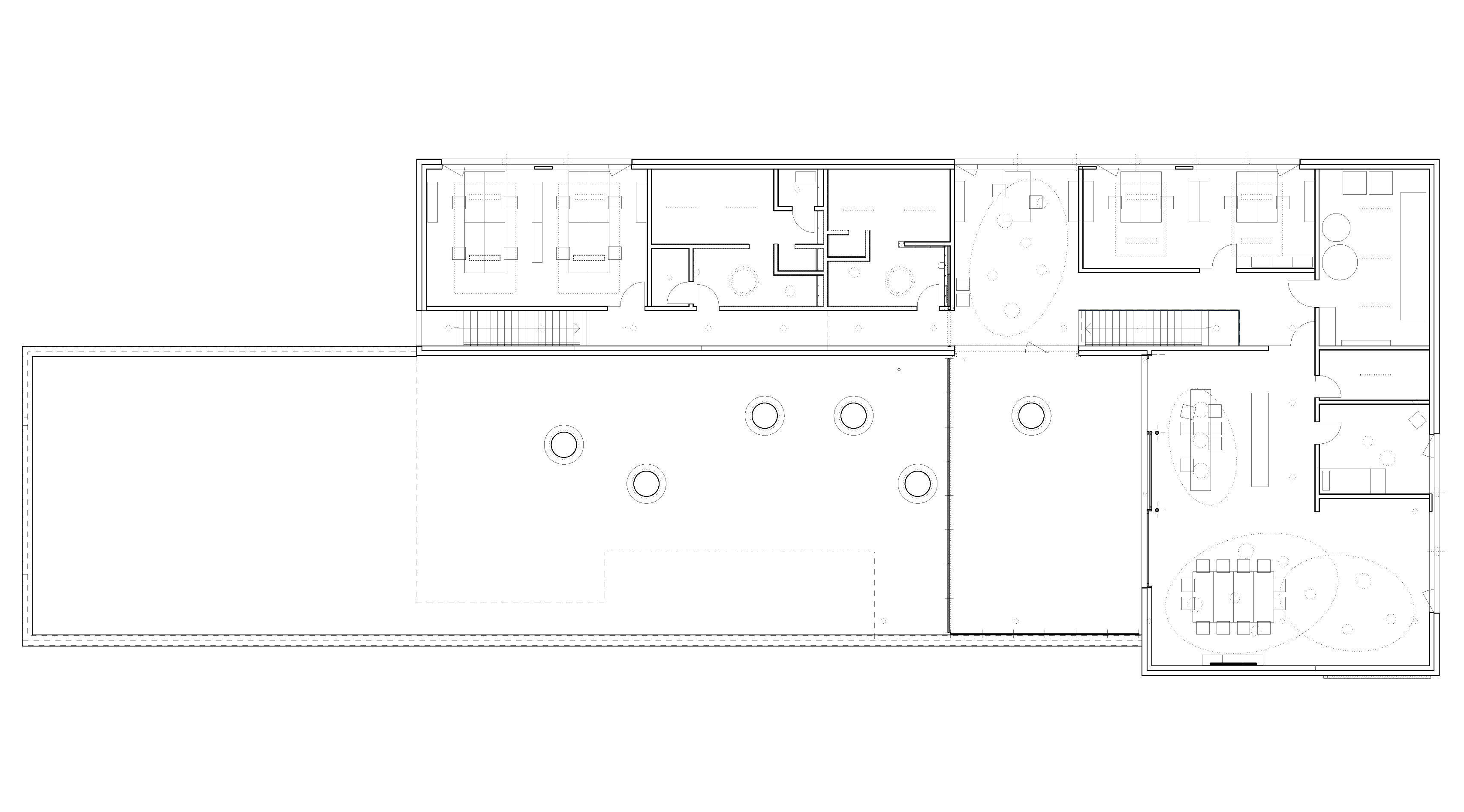
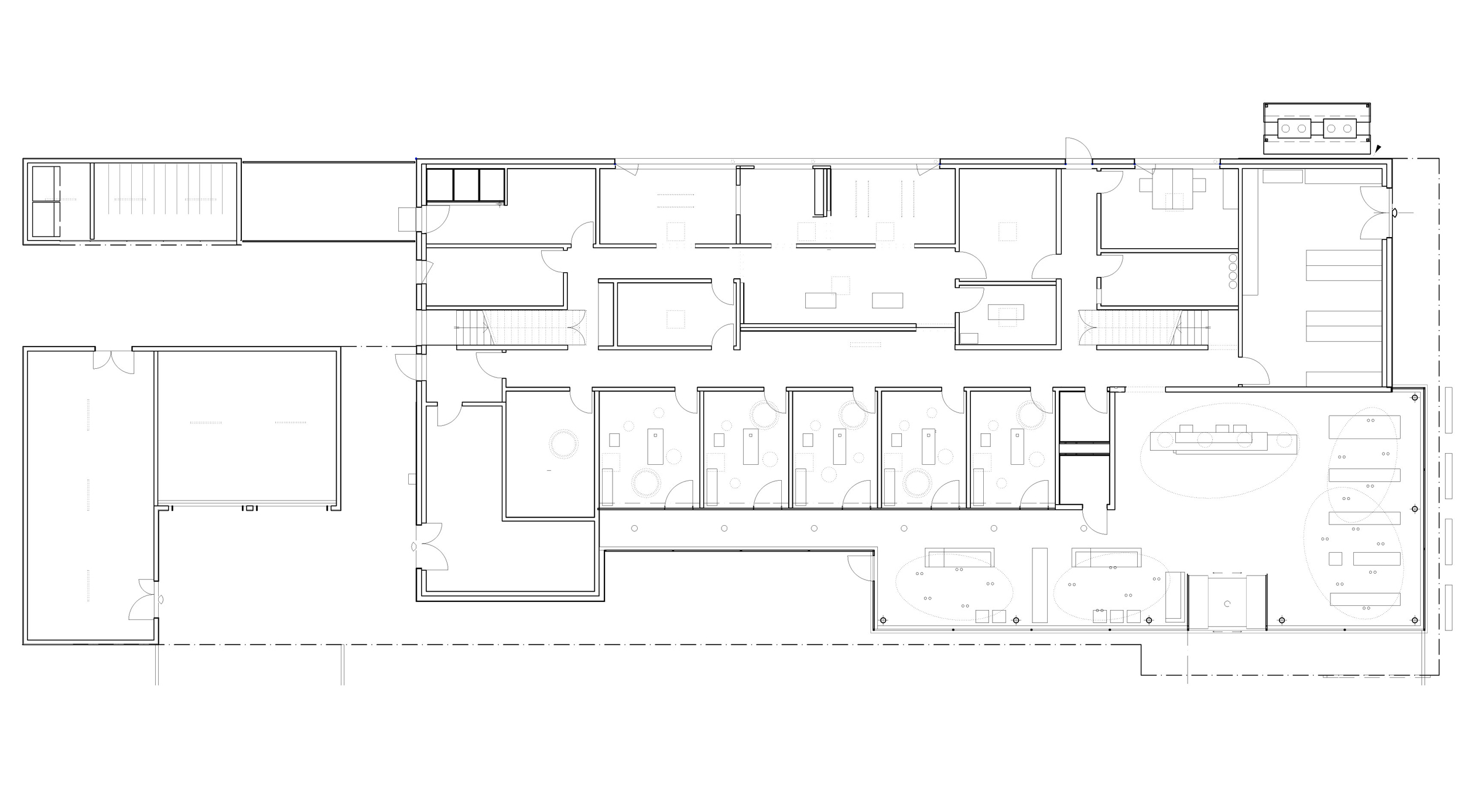
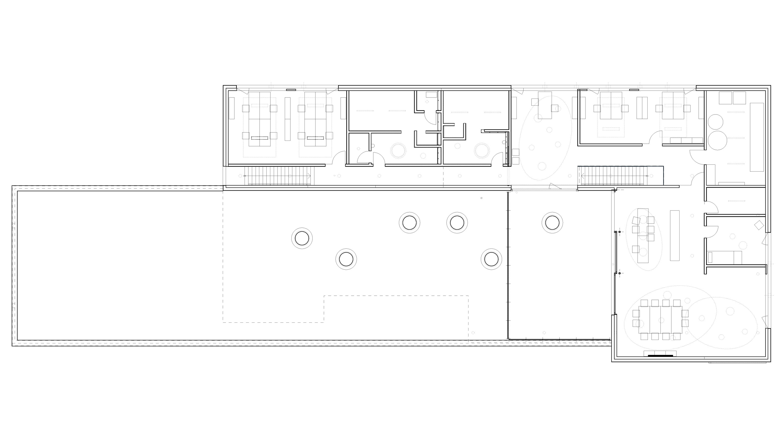
Im Inneren der Praxis angekommen bilden Rezeption, Shop und Wartebereich entlang der Glasfront mit hellen und freundlichen Aufenthaltsbereichen den öffentlichen Teil des Gebäudes. Fünf Behandlungszimmer mit einer Profilbauglasfront schließen an den Wartebereich an und bilden die Schnittstelle zwischen Kunden- und Operationsbereich. Rückseitig, an der Nordseite des Gebäudes, situieren sich die nicht öffentlichen Röntgen-, Labor-, und Ultraschallräume, sowie die Operationsräume. Sonstige Nebenräume siedeln sich hingegen im westlichen Zweig des Gebäudes an. Im Obergeschoss finden dann Aufenthaltsräume, sowie Büroräume für die Administration und eine großzügige, angrenzende Südterrasse ihren Platz.
Die Anordnung der einzelnen Räume folgt den funktionalen Behandlungsabläufen einer Tierarztpraxis. Dabei werden die verwendeten Materialien und Farbakzente bewusst wiederholt und ziehen sich wie ein roter Faden durch den gesamten Komplex. Ein wenig inkonsequent wirken jedoch die mal roh belassenen, mal gestrichenen Betonstützen und der Wechsel zwischen anodisierten Aluminiumpfosten und –riegeln, naturbelassenen Holz- und geweißten Fensterprofilen. Hier hätte eine klarere Entscheidung vielleicht etwas mehr Ruhe in das Materialkonzept gebracht. Dennoch entstehen charmante, funktionale und vor allem einladende Innenräume. Transluzentes Profilbauglas in den Behandlungszimmern sorgt für ausreichenden Lichteinfall und schafft einen Bezug zum Außenraum. Im Wechselspiel von Außen- und Innenraum, öffentlicheren und privateren Bereichen entsteht ein vielfältiges, zeitgemäßes Gebäude. Anstelle von steril und standardisiert erscheinenden Behandlungs- und Aufenthaltsräumen antworten die Architekten auf die ihnen gestellte Bauaufgabe mit Farbe, Licht und Atmosphäre.
Im Inneren der Praxis angekommen bilden Rezeption, Shop und Wartebereich entlang der Glasfront mit hellen und freundlichen Aufenthaltsbereichen den öffentlichen Teil des Gebäudes. Fünf Behandlungszimmer mit einer Profilbauglasfront schließen an den Wartebereich an und bilden die Schnittstelle zwischen Kunden- und Operationsbereich. Rückseitig, an der Nordseite des Gebäudes, situieren sich die nicht öffentlichen Röntgen-, Labor-, und Ultraschallräume, sowie die Operationsräume. Sonstige Nebenräume siedeln sich hingegen im westlichen Zweig des Gebäudes an. Im Obergeschoss finden dann Aufenthaltsräume, sowie Büroräume für die Administration und eine großzügige, angrenzende Südterrasse ihren Platz.
Die Anordnung der einzelnen Räume folgt den funktionalen Behandlungsabläufen einer Tierarztpraxis. Dabei werden die verwendeten Materialien und Farbakzente bewusst wiederholt und ziehen sich wie ein roter Faden durch den gesamten Komplex. Ein wenig inkonsequent wirken jedoch die mal roh belassenen, mal gestrichenen Betonstützen und der Wechsel zwischen anodisierten Aluminiumpfosten und –riegeln, naturbelassenen Holz- und geweißten Fensterprofilen. Hier hätte eine klarere Entscheidung vielleicht etwas mehr Ruhe in das Materialkonzept gebracht. Dennoch entstehen charmante, funktionale und vor allem einladende Innenräume. Transluzentes Profilbauglas in den Behandlungszimmern sorgt für ausreichenden Lichteinfall und schafft einen Bezug zum Außenraum. Im Wechselspiel von Außen- und Innenraum, öffentlicheren und privateren Bereichen entsteht ein vielfältiges, zeitgemäßes Gebäude. Anstelle von steril und standardisiert erscheinenden Behandlungs- und Aufenthaltsräumen antworten die Architekten auf die ihnen gestellte Bauaufgabe mit Farbe, Licht und Atmosphäre.































