Auf der Sonnenterrasse
Hauptverwaltung von RATP Habitat in Paris
Foto: Takuji Shimmura
Das Pariser Wohnungsbauunternehmen RATP Habitat ist eine Tochter der staatseigenen RATP, die den Nahverkehr rund um Paris betreibt. In den gut 8500 Wohnungen des Unternehmens wohnen indes nicht nur Mitarbeiter der Nahverkehrsbetriebe und ihre Familien, sondern auch Angestellte anderer staatlicher und regionaler Einrichtungen in der Ile-de-France.
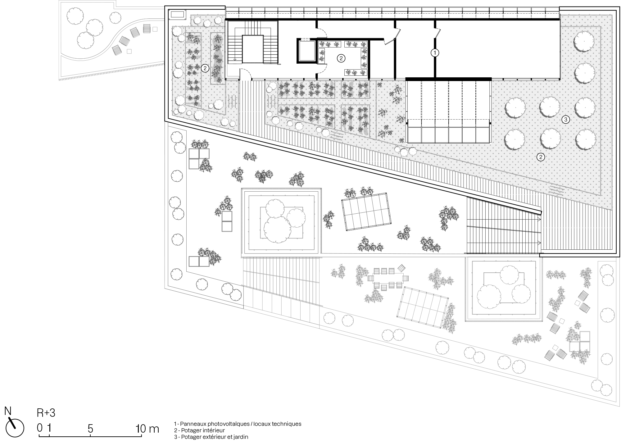
Seinen neuen Hauptsitz hat sich das Unternehmen fast folgerichtig dort errichtet, wo viele Angehörige seiner Zielgruppe leben: zwischen den Wohnhochhäusern der Nachkriegszeit an der Rue du Bagnolet im Osten der französischen Hauptstadt. Selbst der Hauptzugang zum Gebäude führt durch die Tordurchfahrt des westlich angrenzenden Wohnungsbaus. Atelier du Pont nutzten die Lage des Gebäudes – abseits der Straße im Blockinnenraum, im Norden an eine Brandwand angrenzend und im Süden freigestellt – für einen ungewöhnlichen Baukörper. Im Norden dreigeschossig, staffelt sich das Haus Richtung Süden auf nur noch ein Geschoss ab. Die so entstandenen Dachterrassen sind reich begrünt, dienen als Pausenzonen und für informelle Meetings. Für Letztere stehen auf den unterschiedlichen Dachebenen kleine Gewächshäuser bereit. Das oberste Dachniveau soll komplett als Gemüsegarten genutzt werden. Der verglaste Satteldachaufbau mit Photovoltaikdach dient teils ebenfalls als Gewächshaus und beherbergt außerdem Technikräume.
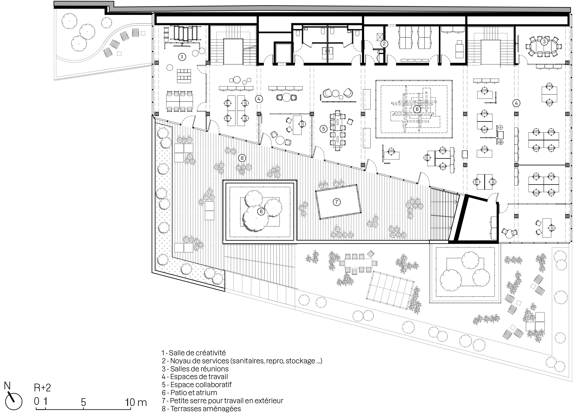
Im Gebäudeinneren verlegten die Architekten Treppen und Nebenräume konsequent an die Nordseite, um die restlichen Büroflächen möglichst flexibel nutzen zu können. Zwei Innenhöfe und ein Atrium mit Glasdach bringen Tageslicht ins Haus. Das Brettschichtholzskelett des Hauses führt das Stützenraster der bereits vorhandenen Tiefgarage unter dem Grundstück weiter. Auf diese Weise müssen keine Lasten im Haus „spazieren geführt“ werden. Zwischen den Holzstützen und -trägern lassen sich an nahezu beliebiger Stelle leichte Trennwände einfügen, um einzelne Büroräume abzutrennen. Auf den Holzträgern liegen vorgefertigte Stahlbetondecken auf. Auch die Wände der aussteifenden Kernzone im Norden bestehen aus Stahlbetonfertigteilen. Die Treppen im Haus sind hingegen komplett aus Holz gefertigt. Von außen lässt sich das viele Holz indes kaum erahnen: Die glatten, teils milchig weißen und teils dreifach verglasten Fassaden mit im Scheibenzwischenraum integriertem Sonnenschutz erinnern eher an die Architektur der 80er- und 90er-Jahre, als viele der Wohnblocks in der näheren Umgebung entstanden sind.
Mehr dazu in Detail 7/8.2022 und in unserer Datenbank Detail Inspiration.
Weitere Informationen:
Architektur: Atelier du PontBauherr: RATP Habitat
Standort: 158 rue du Bagnolet, 75020 Paris (FR)
Landschaftsarchitektur: Paula Paysage
Fassadenplanung: VP & Green engineering
Kostenplanung: Axio
Akustik: ABC Décibel
Nachhaltigkeitsberatung: Eodd
Kunst am Bau: Atelier YokYok
Bauunternehmen: Eiffage Construction Bois






















