Auf gute Nachbarschaft: Skinners’ School von Bell Phillips Architects
Foto: Kilian O’Sullivan
Traditionspflege wird in vielen britischen „grammar schools“ großgeschrieben. Das gilt auch für die Skinners’ School im Kurbad Royal Tunbridge Wells südöstlich von London: Gut 1100 Schüler, alles Jungen, bereiten sich hier auf das britische Abitur vor, die Schuluniform ist bis zur Wahl des Schuhwerks und der richtigen Kragenform bei Pullovern streng reglementiert. Dazu passt die Architektur auf dem kompakten, an einer Ausfallstraße etwas nördlich des Stadtzentrums gelegenen Schulcampus. Fast alle Schulbauten entstanden Ende des 19. Jahrhunderts im neugotischen und Arts- und Crafts-Stil aus Sichtziegelmauerwerk. Lediglich der flach gedeckte „New Wing“ von 1960 tanzt etwas aus der Reihe, ist jedoch von der Straße aus nicht sichtbar.
Umso wichtiger war es für Bell Phillips Architects aus London, ihren dicht am Campuszugang gelegenen Erweiterungsbau an den Duktus der spitzgiebligen Bestandsgebäude einzupassen. Das dreigeschossige Gebäude ersetzt eine Sporthalle vom Beginn des 20. Jahrhunderts. In seinem Erdgeschoss ist ein Lernzentrum mit Pausenraum für die Oberstufenschüler entstanden. In der Etage darüber reihen sich Klassenzimmer für den Englischunterricht an einem Mittelflur auf, und unter dem Satteldach öffnet sich die Schulbibliothek. Mit ihren holzverkleideten Dachuntersichten und dem Tageslicht, das von allen Seiten einströmt, ist sie der Höhepunkt im Raumprogramm. Nebenan profitiert ein weiteres Klassenzimmer von der ungewöhnlichen Raumhöhe durch das spitze Giebeldach.
Eine gewisse Noblesse strahlt auch das Treppenhaus mit seinen Brüstungen aus rötlichem Eukalyptusholz aus. Deutlich sparsamer inszenierten die Architekten die Flure und Klassenzimmer in den unteren Etagen mit ihren Gipskartonwänden und der offenen Leitungsführung hinter Akustikpaneelen unter der Decke. Da die Skinners’ School seit über 70 Jahren staatlich betrieben wird, war das Baubudget trotz eines Privatspenders naturgemäß begrenzt.
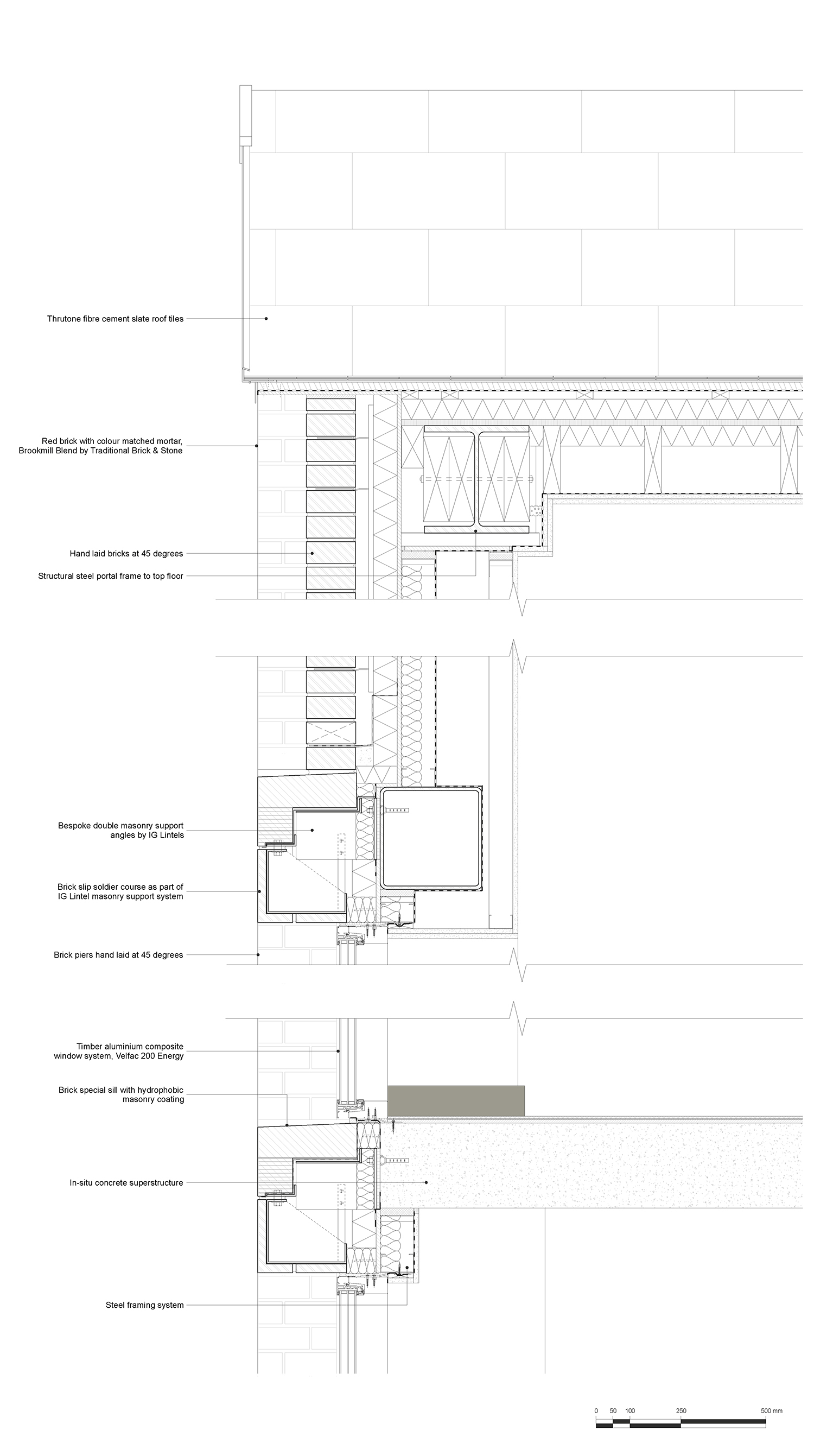
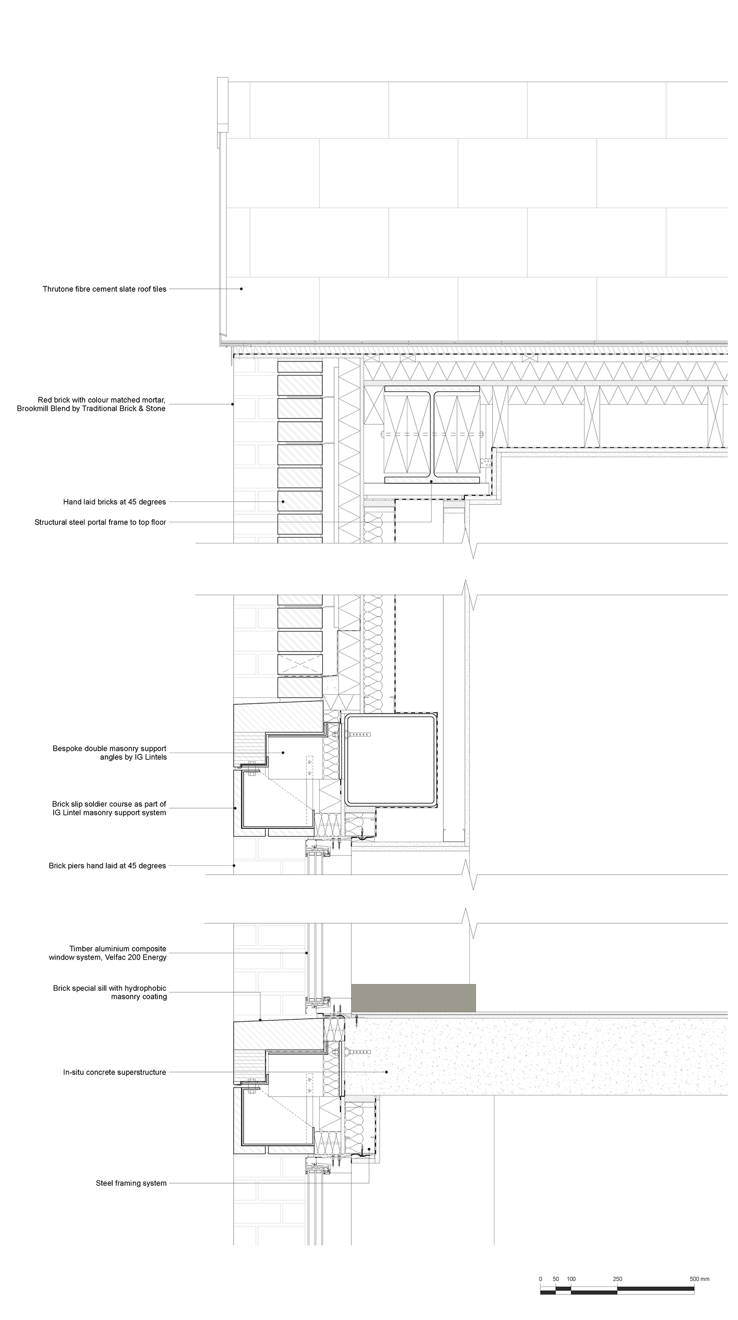
Die beiden Mauerwerksgiebel sind die Schauseiten des L-förmigen Baukörpers. Zwischen den Fenstern und im Giebelfeld verleihen um 45° aus der Achse gedrehte Ziegelpfeiler der Fassade ein unverwechselbares Profil. Gesimse aus vertikal angeordneten Ziegeln grenzen die Geschosse gegeneinander ab. Das Mauerwerk ist nur einschalig, denn in den beiden unteren Geschossen wird das Gebäude von einem Stahlbeton- und im Dachgeschoss von einem Stahlskelett getragen. Die Wandflächen dazwischen sind in leichter Ständerbauweise konstruiert und mit Dämmstoff ausgefacht. Die Dachflächen sind mit grauem Faserzement gedeckt. Auf der Südseite des Dachs trägt eine Photovoltaikanlage ihren Teil zur Energieversorgung des Neubaus bei.





























