// Check if the article Layout ?>
Aufgedeckt: Umbau eines Wohnhauses in London
Foto: Timothy Soar
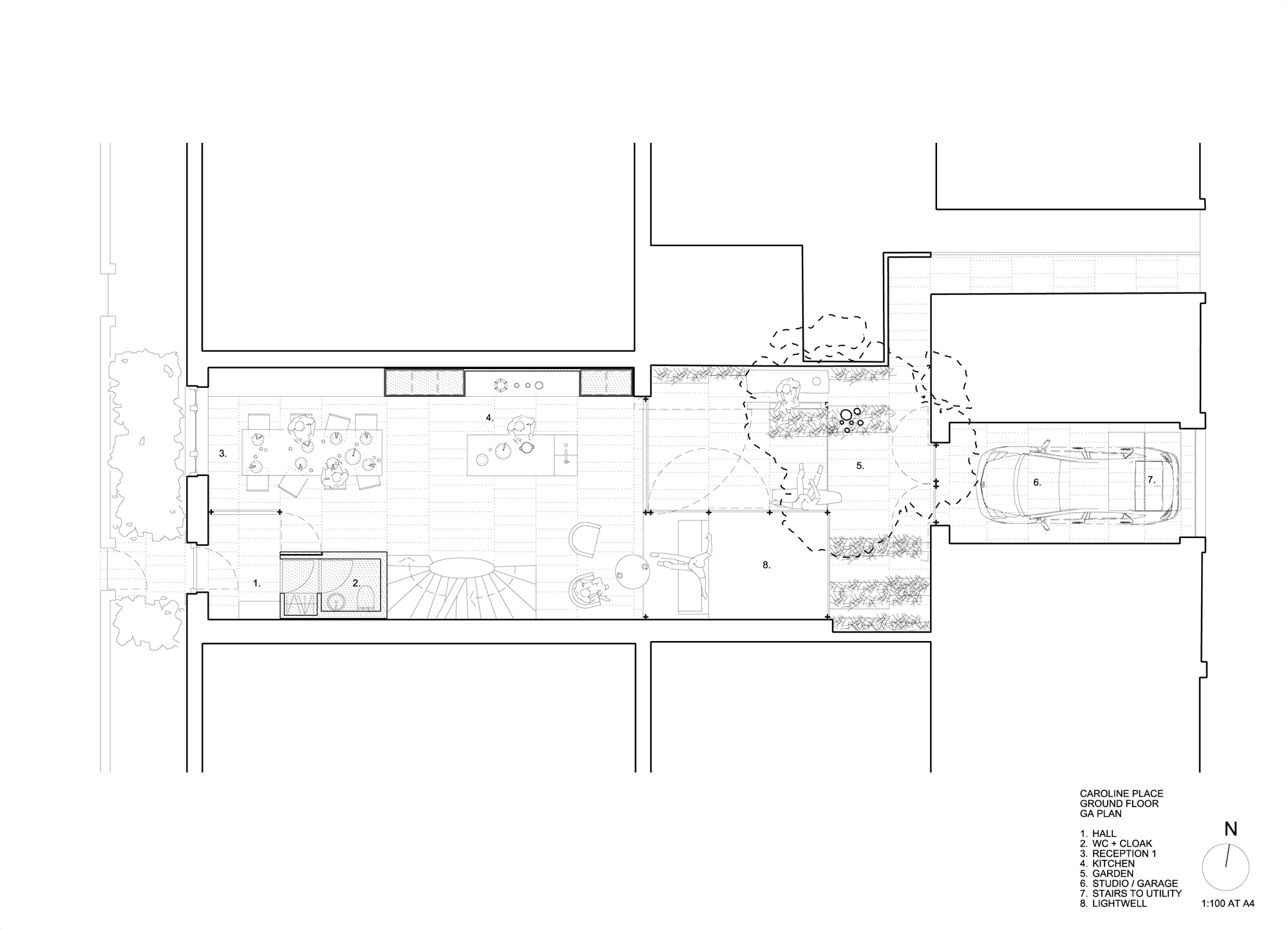
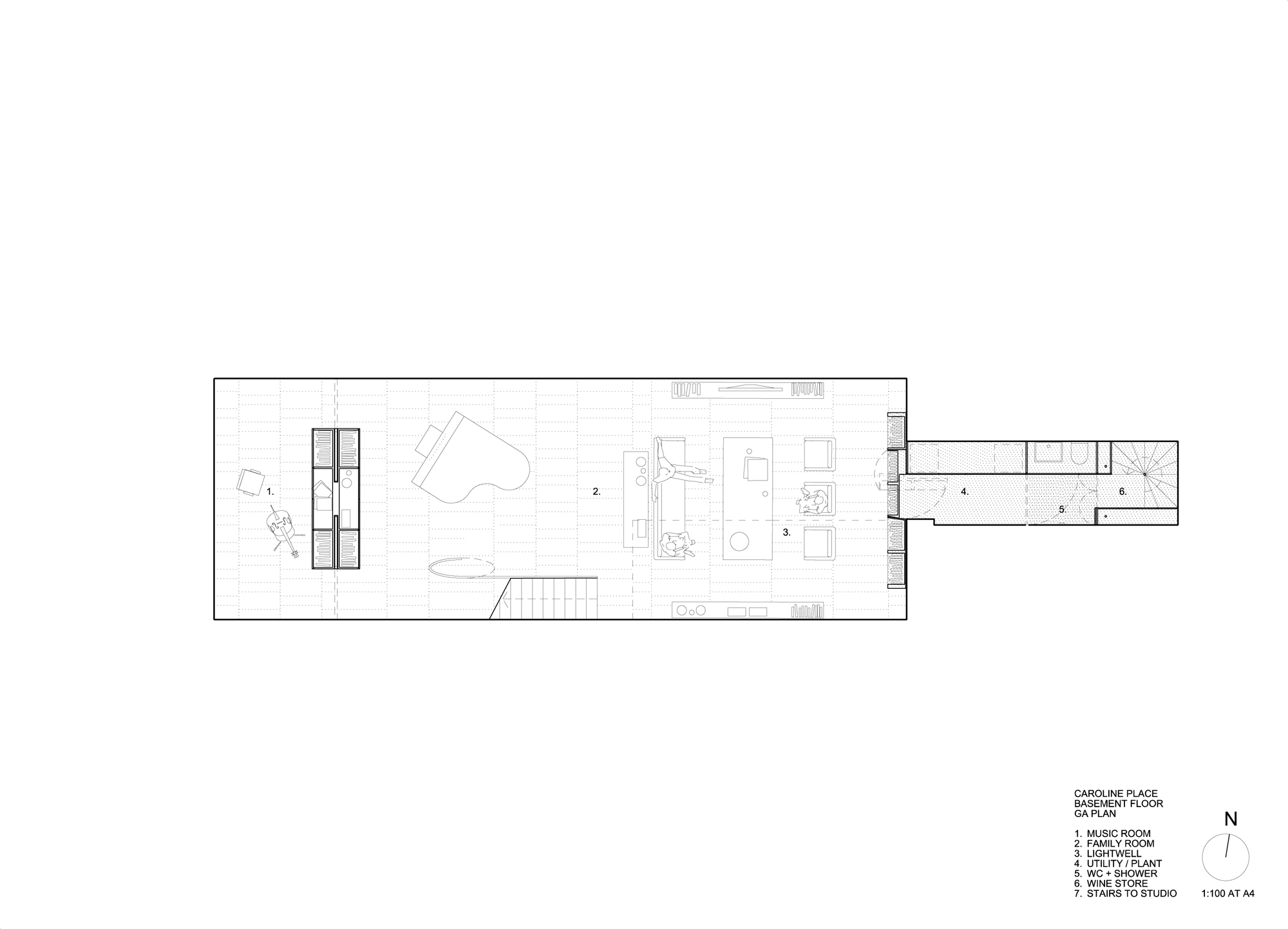
Nach ebenjenem Schema, »Explore, Restore, Ignore«, sind Groupwork + Amin Taha auch bei ihrem Projekt Caroline Place, einem Reihenhaus nördlich des Hyde Parks, vorgegangen. Während seiner Entstehungszeit in den 1950er-Jahren wurde im Inneren des Hauses eine klare Trennung der Räume zwischen Dienstboten und Besitzern vorgesehen. Das Erdgeschoss sowie der Hinterhof waren für die Arbeiter reserviert, während sich die Besitzer in den weiten, lichtdurchfluteten Räumen in den oberen Geschossen aufhielten.
Bereits die nächste Generation brach mit diesem Ansatz und lies, soweit möglich, sämtliche Innenwände entfernen. Die neuen Bewohner erfreuen sich nun jeweils an den Vorzügen der vergangenen Phasen ihres Hauses. Das Prinzip des offenen Grundrisses stieß auf breite Zustimmung, doch bei der Materialität ließ sich die fünfköpfige Familie lieber vom Originalzustand inspirieren. Beim Abtragen der oberen Schichten der Umbauten wurde ein heller Travertinboden wiederentdeckt, der nun zum Hauptthema des Entwurfes avancierte.
Auch bei der Fassadengestaltung orientierten sich die Architekten am ursprünglichen Entwurf. Die Nachbarhäuser dienten als Vorbilder für die Rückkehr zu klassisch weißen Gebäudeöffnungen in der vertrauten, englischen Ziegelfassade.
Die Härte von Ziegel und Travertin wurde schon damals mit dem Einsatz von Kirschholzverkleidungen ausgeglichen. Nach dem Umbau sehen die Architekten heute jeden Raum als eine Hülle aus Travertin und Putz, der durch Möbeleinbauten aus Kirschholz eingeteilt wird. Der Naturstein findet sich dabei sowohl im Außen- als auch im Innenbereich wieder. Die Treppe windet sich skulptural durch das Wohnhaus und besteht aus einzelnen Travertinblöcken mit bossierter Unterseite. Durch das zentrale Treppenauge fällt Licht vom Dach bis in den Keller.
In den raumhohen Einbauten aus Kirschholz sind jegliche notwendige Funktionen wie Bäder, Kleiderschränke oder Bücherregale untergebracht. Im ersten Stock können die Bewohner das Wohnzimmer mit einem schwingenden Regal flexibel einteilen. Bei Bedarf lässt sich sogar ein Gästebett aus dem Möbelstück ausklappen. Die Möbel sind immer mit einer Schattenfuge von der Raumhülle getrennt. Gepaart mit indirekter Beleuchtung wird so ihre Rolle als Solitäre betont.
Mit seinem Hang zur Multifunktion scheint das Haus am Caroline Place tatsächlich wie eine Reminiszenz an die Zeit, in der es erbaut wurde. Jedoch ist es verfeinert mit dem Wissen nachfolgender Architektengenerationen und moderner Technologie, auf dass es nicht so bald wieder Opfer zahlreicher Umbauten wird.
Weitere Informationen:
Baubeginn: Mai 2014
Fertigstellung: August 2016
BGF: 280 m²
Baukosten: 1600000 £
Fertigstellung: August 2016
BGF: 280 m²
Baukosten: 1600000 £






















