// Check if the article Layout ?>
Aufwölbung als Ergänzung
Das Architektenbüro Schneider+Schumacher hat den Wettbewerb um die Erweiterung des Städelmuseums in Frankfurt gewonnen. Der Entwurf sieht als Ergänzung ein unterirdisches Volumen vor, das nach außen nur durch eine Aufwölbung und runde Lichtöffnungen in Erscheinung tritt.
„Ein leuchtendes Juwel am Tag, ein Lichtteppich in der Nacht – etwas ganz Besonderes ist den Architekten Schneider + Schumacher mit dem Entwurf zur Erweiterung des Städel Museums gelungen“, urteilt die achtköpfige Wettbewerbsjury unter dem Vorsitz von Architektin Louisa Hutton in ihrer zusammenfassenden Stellungnahme am 18. Februar 2008. Gleichzeitig vergab die Jury an das Berliner Architekturbüro Kühn Malvezzi und das in Zürich ansässige Architektenteam Gigon/Guyer zusammen den zweiten Preis. Neben den genannten nahmen noch die Architekturbüros von Diller Scofidio + Renfro, Jabornegg & Pálffy, Sanaa Ltd, UNStudio und Wandel Hoefer Lorch + Hirsch Müller am Wettbewerb teil.
Anlass für den Wettbewerb war die geplante bauliche Erweiterung des Städel Museums um eine Sammlungsfläche von 3.000 qm sowie die Behebung von Mängeln an der bestehenden Substanz des Museums. Die Erweiterung sollte sich in den städtebaulichen Kontext einfügen und auch dem Denkmalschutz Rechnung tragen. Alle acht Projekte des geladenen Architekturwettbewerbs werden der Öffentlichkeit vom 8. bis 24. März 2008 im Städel Museum präsentiert werden.
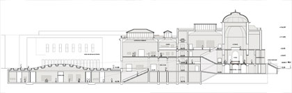
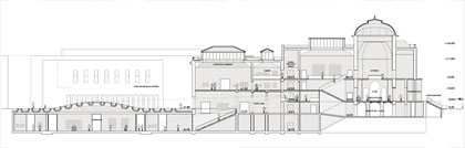
Die innere Organisation des ersten historischen Gebäudes erfolgte auf der Grundlage der zentralen Achse. In der Verlängerung dieser Achse wurde das Haus im Rahmen eines zweiten Bauabschnitts durch den „Gartenflügel“ in der gleichen Typologie erweitert. Vor diesem Hintergrund erschien es den Architekten nur natürlich, das bewährte Prinzip aufzugreifen und das Raumkontinuum über das Alte Foyer in die neuen Sammlungsräume zu erweitern. Als Pendant zum Westflügel wird nun bis 2010 und für etwa 20 bis 30 Millionen Euro ein grünes Volumen an der Ostseite entstehen, das sich unter dem Garten aufwölbt und so zum Bestandteil der Topografie des neuen Gartens wird. Die Trennung zwischen Haus und Garten wird dadurch auf subtile Art aufgehoben.
