// Check if the article Layout ?>
Aus der Versenkung: Sporthalle Borgsdorf
Sporthalle Borgsdorf in Hohen Neuendorf von Numrich Albrecht Klumpp Architekten
Wie selbstverständlich wurde die neue Zweifeldsporthalle der Borgsdorfer Grundschule zwischen Schulhof und Sportfeld zur Hälfte in der Erde versenkt. So fügt sie sich passgenau in das bestehende Gebäudeensemble ein. Der an der Oberfläche emportauchende Baukörper dient als Lärmschutzwall zwischen den offenen Plätzen, obendrein bildet er mit seiner östlichen Gebäudekante den räumlichen Abschluss des Pausenhofes.
Die dreiseitig umlaufende, eingerückte Glasfassade zeigt zum Sportfeld und ermöglicht tiefe Einblicke zu den innenliegenden sportlichen Aktivitäten. Außerdem erhält die Halle durch die Sonnenschutzverglasung ausreichend Tageslicht, was beim Turnen in der Senke eine heitere Atmosphäre erzeugt. Das hervorkragende Dach überspannt die Halle mittels Brettschichtholzbindern, welche mit ihrer trapezförmigen Ausbildung, das nötige Gefälle erzeugen. Zudem ist das Vordach thermisch vom Rohbau getrennt und lediglich mit einer Holzunterkonstruktion an diesem befestigt.
An einem kleinen Vorplatz im Süden befindet sich der asymmetrisch angelegte Haupteingang der Sporthalle. Er führt direkt in den sich östlich erstreckenden Funktionsriegel. Dieser ist schon von außen ablesbar, da er von einer opaken, hellbeigen Fassade umhüllt ist. Einzig im Bereich der Umkleiden sind die hinterlüfteten Faserzementplatten mit versetzten Rundlochungen perforiert und sorgen dadurch, unter Berücksichtigung des Sicht- und Sonnenschutzes, für eine natürliche Belichtung.
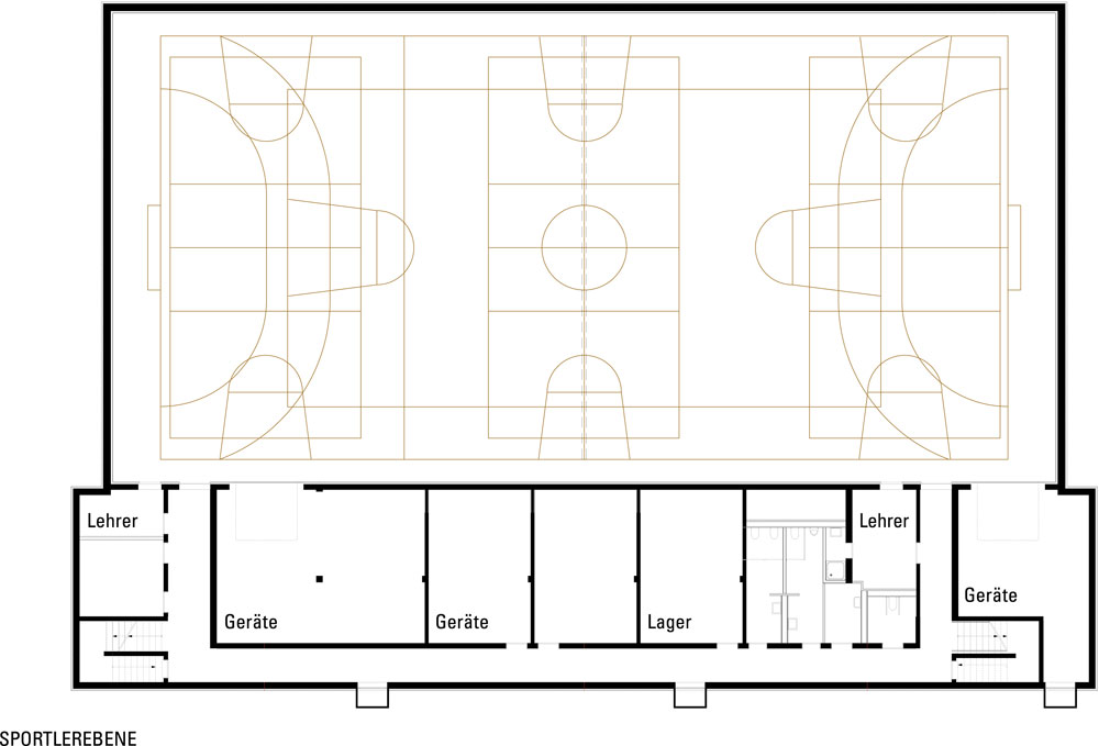
Der durchgesteckte Funktionsriegel ist rundum aus Stahlbeton gefertigt und bildet das introvertierte Rückgrat der Sporthalle. Im Erdgeschoss befinden sich hier die Umkleiden, ein Mehrzweckraum sowie der Zugang für die Zuschauertribüne. Eine Etage tiefer liegt die Sportlerebene und es ist ausreichend Platz für Lager- und Geräteräume vorhanden. An den jeweiligen Enden des Riegels ermöglichen zwei Zugänge, mit unmittelbar anschließenden Treppenhauskernen, eine getrennte Nutzung der Halle. Die Zusammensetzung der gesamten Sporthalle kommt dem Aufbau eines Theaters gleich: Die Zuschauer auf den ebenerdig zugänglichen Tribünenplätzen sitzen auf Sichtbetonbänken mit schwarzen, hölzernen Auflagen. Aufgrund ihrer erhabenen Position und einer maximal transparenten Glasbrüstung haben sie eine ausgezeichnete Sicht auf den abgesenkten »Bühnenboden« der Sportfläche sowie auf das Geschehen des außenliegenden Sportbereiches. Gestalterisch untermalt wird dieser Dialog zwischen innen und außen durch die hellgrün gespritzten Akustikplatten der Tribünen- sowie Deckenbekleidung, welche bis unter das außenliegende Vordach weitergeführt werden und sich dort optisch mit dem Grün der Umgebung vereinen. Aufgrund der Absenkung des Grundwasserstandes sind die erdberührten Bauteile der tiefergelegten Sporthalle als weiße Wanne in WU-Beton ausgeführt. Der flächenelastische Sportlinoleumboden mit integrierter Fußbodenheizung, wird von der 3,30 Meter hohen Prallwand aus Birke-Echtholzfurnierten-Holzwerkstoffpaneelen umrahmt. Direkt auf dem hellen Holz stehen die großen V-Stützen hinter der Glasfassade. Sie sind bündig mit der Erdoberfläche und reichen bis unter das Dach. Als Primärkonstruktion dienen die aufgefächerten Stahlbetonfertigteile zum einen zur Lastabtragung und Aussteifung, zum anderen als bemerkenswerter konstruktiver Blickfang.
An einem kleinen Vorplatz im Süden befindet sich der asymmetrisch angelegte Haupteingang der Sporthalle. Er führt direkt in den sich östlich erstreckenden Funktionsriegel. Dieser ist schon von außen ablesbar, da er von einer opaken, hellbeigen Fassade umhüllt ist. Einzig im Bereich der Umkleiden sind die hinterlüfteten Faserzementplatten mit versetzten Rundlochungen perforiert und sorgen dadurch, unter Berücksichtigung des Sicht- und Sonnenschutzes, für eine natürliche Belichtung.
Der durchgesteckte Funktionsriegel ist rundum aus Stahlbeton gefertigt und bildet das introvertierte Rückgrat der Sporthalle. Im Erdgeschoss befinden sich hier die Umkleiden, ein Mehrzweckraum sowie der Zugang für die Zuschauertribüne. Eine Etage tiefer liegt die Sportlerebene und es ist ausreichend Platz für Lager- und Geräteräume vorhanden. An den jeweiligen Enden des Riegels ermöglichen zwei Zugänge, mit unmittelbar anschließenden Treppenhauskernen, eine getrennte Nutzung der Halle. Die Zusammensetzung der gesamten Sporthalle kommt dem Aufbau eines Theaters gleich: Die Zuschauer auf den ebenerdig zugänglichen Tribünenplätzen sitzen auf Sichtbetonbänken mit schwarzen, hölzernen Auflagen. Aufgrund ihrer erhabenen Position und einer maximal transparenten Glasbrüstung haben sie eine ausgezeichnete Sicht auf den abgesenkten »Bühnenboden« der Sportfläche sowie auf das Geschehen des außenliegenden Sportbereiches. Gestalterisch untermalt wird dieser Dialog zwischen innen und außen durch die hellgrün gespritzten Akustikplatten der Tribünen- sowie Deckenbekleidung, welche bis unter das außenliegende Vordach weitergeführt werden und sich dort optisch mit dem Grün der Umgebung vereinen. Aufgrund der Absenkung des Grundwasserstandes sind die erdberührten Bauteile der tiefergelegten Sporthalle als weiße Wanne in WU-Beton ausgeführt. Der flächenelastische Sportlinoleumboden mit integrierter Fußbodenheizung, wird von der 3,30 Meter hohen Prallwand aus Birke-Echtholzfurnierten-Holzwerkstoffpaneelen umrahmt. Direkt auf dem hellen Holz stehen die großen V-Stützen hinter der Glasfassade. Sie sind bündig mit der Erdoberfläche und reichen bis unter das Dach. Als Primärkonstruktion dienen die aufgefächerten Stahlbetonfertigteile zum einen zur Lastabtragung und Aussteifung, zum anderen als bemerkenswerter konstruktiver Blickfang.




















