// Check if the article Layout ?>
BGF: 1.400m²
Fotos: Brigida González, Stuttgart
Aus grau werde bunt: Kinderhaus Im Weckholder in Aichtal
Foto: Brigida Gonzalez
Das Kinderhaus Im Weckholder bietet Platz für die Betreuung und Verpflegung von rund 90 Kindern in fünf Gruppen im Alter zwischen 0 und 6 Jahren. Die Bauherren beschreiben das Konzept des zurückhaltenden, auf den ersten Blick etwas kühl erscheinenden Gebäudes als einen Ort, in dem »die Kinder ihren individuellen Interessen und Themen nachgehen können und Materialien und lichtdurchflutete Räume zum Forschen und Lernen anregen.«
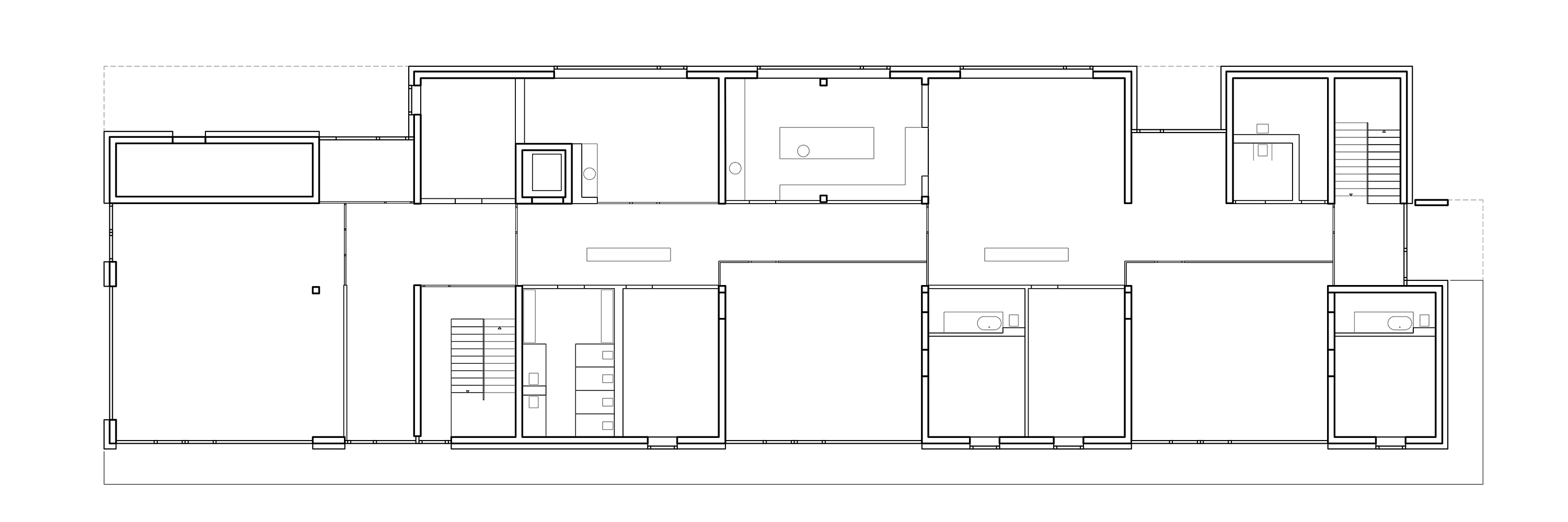
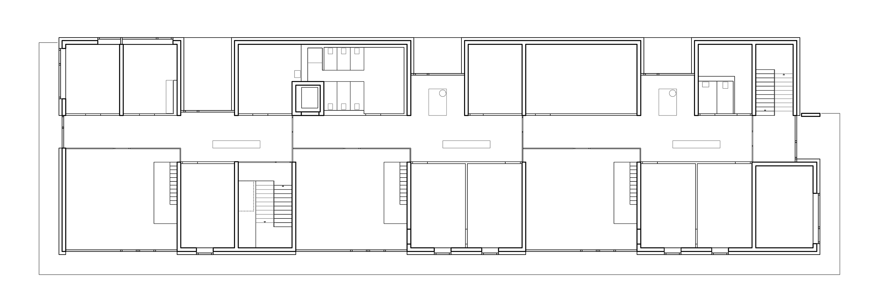
Klare Struktur
Konstruktiv gliedert sich der Gebäudekörper des Kinderhauses in drei übereinander liegende Geschossplatten, die durch eine, von Nord- nach Süd verlaufende Schottenbauweise getragen werden. Eingesetze, mal opake, mal transparente Kuben strukturieren den Grundriss und generieren unterschiedlichste, geschützte Bereiche im Innen- und Außenraum. Es entsteht eine klare Struktur aus einem fließenden, gemeinschaftlich genutzten Flurbereich mit Zonen wie der offenen Kinderküche und angrenzenden Räumen des Rückzugs für Gruppen- und Spielbereiche. Räume, die weniger Einsicht benötigen, werden zugunsten der Struktur genutzt und dienen teilweise als opake Betonkerne zur Aussteifung des Gebäudes. Konzeptuell und tektonisch teilt sich das Gebäude in zwei Geschosse für verschiedene Nutzergruppen. Während die älteren Kinder im Erdgeschoss spielen, finden die jüngeren oben ihren Platz. Büro- und Aufenthaltsräume für die Mitarbeiter, die Küche und Abstellräume sowie eine Mehrzweckhalle befinden sich ebenfalls im Erdgeschoss. Musik-, Atelier und Technikräume sowie Lagerflächen sind im Obergeschoss angesiedelt. Offene Treppen verbinden die beiden Bereiche miteinander und schaffen visuelle, sowie akustische Bezüge.
Visuelle Bezüge
Einzelne Rücksprünge im Grundriss schaffen Raum für die Garderobenmöbel. Vollständige Verglasungen der Gruppenräume zum Flur hin stellen visuelle Bezüge zwischen den Bereichen her. Die raumhohen Vorhänge ermöglichen dabei Privatsphäre ohne als markante Raumtrenner herauszustechen. Zusätzlich eingestellte Körper im Obergeschoss brechen das Raster der Struktur bewusst auf und beherbergen Materialräume, die die Spielfläche um ein Zwischengeschoss erweitern. Spielerisch können die Kinder die Räume so auf verschiedenen Ebenen erfahren. Spielen bei jedem Wetter
Die nach Süden überstehenden Geschossplatten bilden einen starren, passiven Sonnenschutz aus und schaffen eine umlaufende Veranda, auf der bei fast jedem Wetter gespielt werden kann. Ein WDVS mit einem mineralischen Oberputz in Kratzputzstruktur und einem hellgrauen Silikonharzanstrich bildet die Fassade des »Kinderhauses im Weckholder«. Gleichzeitig versuchen jedoch Elemente wie die Veranda und die Umzäunung des Grundstücks aus Beton dem Gebäude seine Betonerscheinung zumindest teilweise zurückzugeben.
Raffinierte Details
Raffinierte, unsichtbare Details bilden unter anderem die, in die Putzschicht der Innenwände eingearbeiteten Bilderschienen, die das zurückhaltende Gebäude mit sich immer wieder ändernden Bildern der kleinen Bewohner schmücken soll. Mit Sperrholz bekleidete Lüftungsflügel innerhalb der eingesetzten Holzfassadenelemente ermöglichen das manuelle Lüften, während ansonsten offene Festverglasungen ohne störende Rahmenansichten, Blicke in den Außenraum freigeben. Vor gestoßenen Nasen schützen im Innenraum literarische Sprüche auf den Glasscheiben, die die Problematik auf spielerische Art zu lösen versuchen. Inwiefern das pädagogische Konzept in den Räumlichkeiten letztendlich funktioniert, wird sich im Laufe der Zeit und nach intensiver, kindlicher Nutzung zeigen.
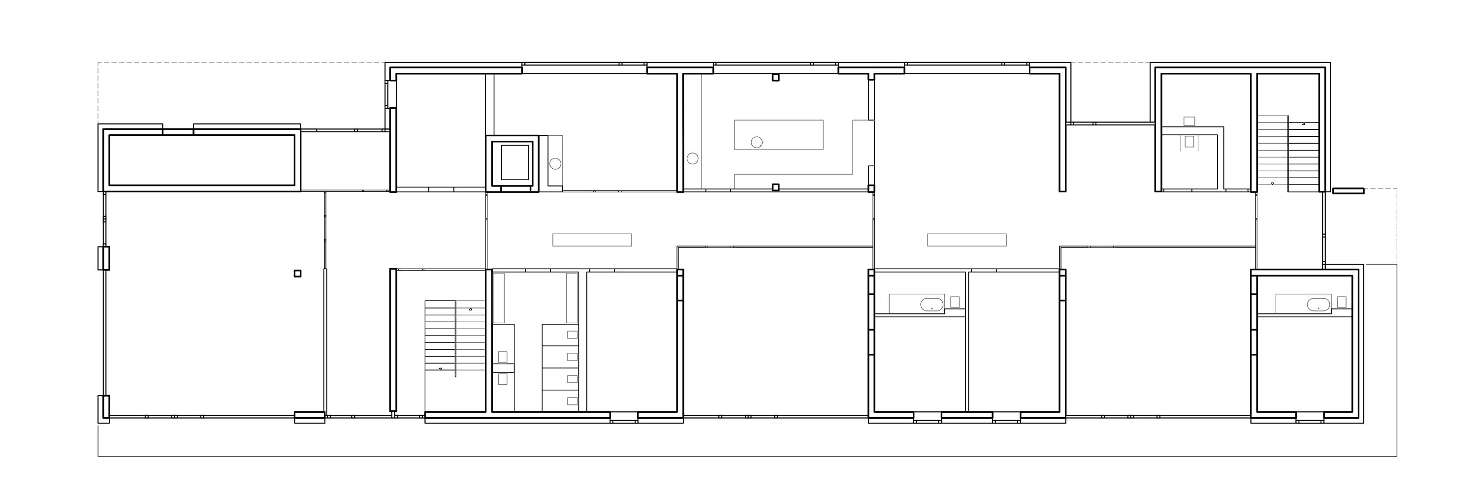
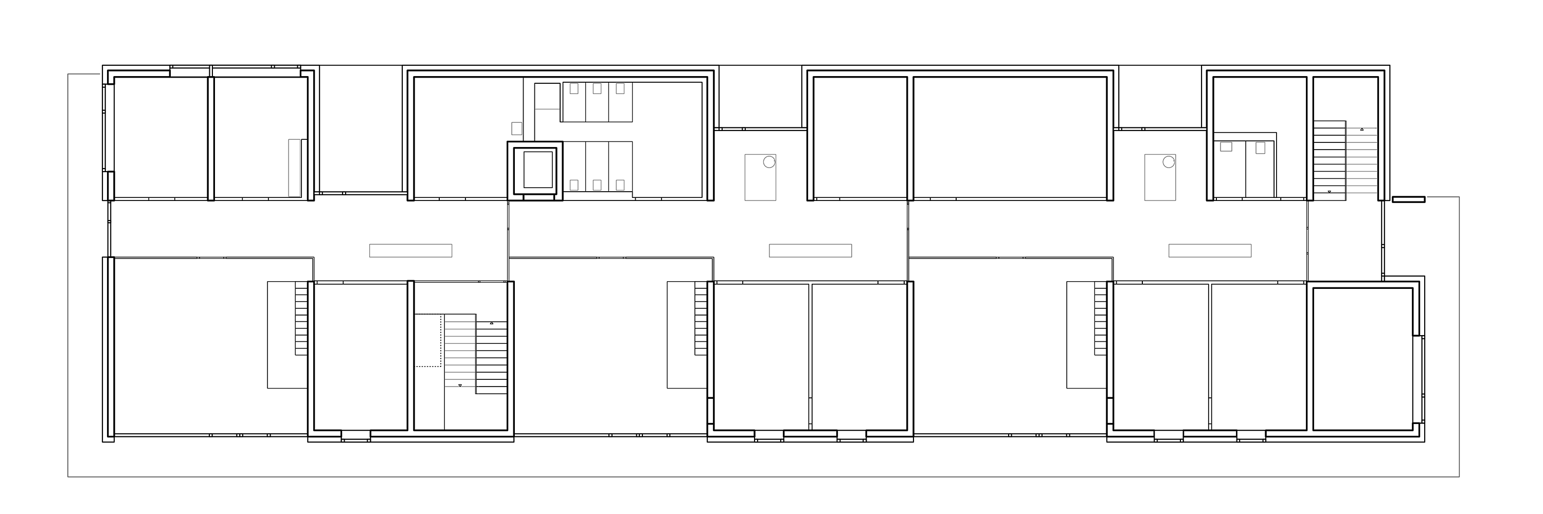
Klare Struktur
Konstruktiv gliedert sich der Gebäudekörper des Kinderhauses in drei übereinander liegende Geschossplatten, die durch eine, von Nord- nach Süd verlaufende Schottenbauweise getragen werden. Eingesetze, mal opake, mal transparente Kuben strukturieren den Grundriss und generieren unterschiedlichste, geschützte Bereiche im Innen- und Außenraum. Es entsteht eine klare Struktur aus einem fließenden, gemeinschaftlich genutzten Flurbereich mit Zonen wie der offenen Kinderküche und angrenzenden Räumen des Rückzugs für Gruppen- und Spielbereiche. Räume, die weniger Einsicht benötigen, werden zugunsten der Struktur genutzt und dienen teilweise als opake Betonkerne zur Aussteifung des Gebäudes. Konzeptuell und tektonisch teilt sich das Gebäude in zwei Geschosse für verschiedene Nutzergruppen. Während die älteren Kinder im Erdgeschoss spielen, finden die jüngeren oben ihren Platz. Büro- und Aufenthaltsräume für die Mitarbeiter, die Küche und Abstellräume sowie eine Mehrzweckhalle befinden sich ebenfalls im Erdgeschoss. Musik-, Atelier und Technikräume sowie Lagerflächen sind im Obergeschoss angesiedelt. Offene Treppen verbinden die beiden Bereiche miteinander und schaffen visuelle, sowie akustische Bezüge.
Visuelle Bezüge
Einzelne Rücksprünge im Grundriss schaffen Raum für die Garderobenmöbel. Vollständige Verglasungen der Gruppenräume zum Flur hin stellen visuelle Bezüge zwischen den Bereichen her. Die raumhohen Vorhänge ermöglichen dabei Privatsphäre ohne als markante Raumtrenner herauszustechen. Zusätzlich eingestellte Körper im Obergeschoss brechen das Raster der Struktur bewusst auf und beherbergen Materialräume, die die Spielfläche um ein Zwischengeschoss erweitern. Spielerisch können die Kinder die Räume so auf verschiedenen Ebenen erfahren. Spielen bei jedem Wetter
Die nach Süden überstehenden Geschossplatten bilden einen starren, passiven Sonnenschutz aus und schaffen eine umlaufende Veranda, auf der bei fast jedem Wetter gespielt werden kann. Ein WDVS mit einem mineralischen Oberputz in Kratzputzstruktur und einem hellgrauen Silikonharzanstrich bildet die Fassade des »Kinderhauses im Weckholder«. Gleichzeitig versuchen jedoch Elemente wie die Veranda und die Umzäunung des Grundstücks aus Beton dem Gebäude seine Betonerscheinung zumindest teilweise zurückzugeben.
Raffinierte Details
Raffinierte, unsichtbare Details bilden unter anderem die, in die Putzschicht der Innenwände eingearbeiteten Bilderschienen, die das zurückhaltende Gebäude mit sich immer wieder ändernden Bildern der kleinen Bewohner schmücken soll. Mit Sperrholz bekleidete Lüftungsflügel innerhalb der eingesetzten Holzfassadenelemente ermöglichen das manuelle Lüften, während ansonsten offene Festverglasungen ohne störende Rahmenansichten, Blicke in den Außenraum freigeben. Vor gestoßenen Nasen schützen im Innenraum literarische Sprüche auf den Glasscheiben, die die Problematik auf spielerische Art zu lösen versuchen. Inwiefern das pädagogische Konzept in den Räumlichkeiten letztendlich funktioniert, wird sich im Laufe der Zeit und nach intensiver, kindlicher Nutzung zeigen.
weitere Informationen:
Bausumme:
KG 100-700 3.900.000€
KG 300 2.400.000€
KG 400 750.000€
Bausumme:
KG 100-700 3.900.000€
KG 300 2.400.000€
KG 400 750.000€
BGF: 1.400m²
BRI: 5.500m3
Fotos: Brigida González, Stuttgart




























