// Check if the article Layout ?>
Ausdruck filigraner Holzbaukunst: Ausbildungszentrum Zürcher Holzbauunternehmungen
Foto: Roger Frei
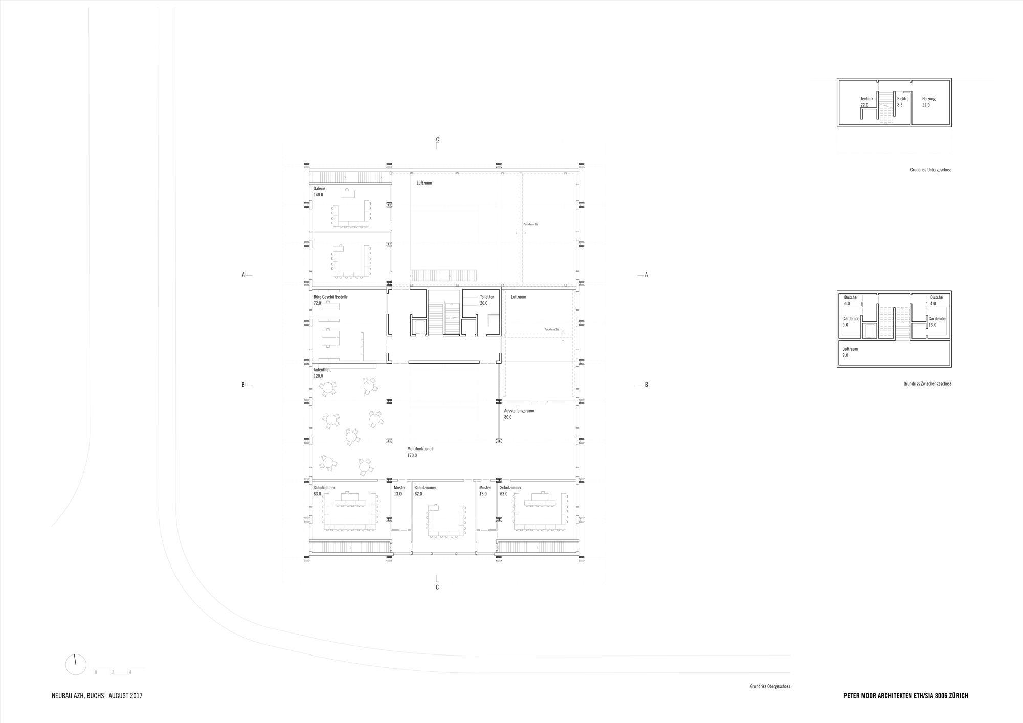
Wenige Kilometer nördlich von Zürich gelegen, befindet sich der neue Standort des Ausbildungszentrums Zürcher Holzbauunternehmungen. Angehende Facharbeiter für Holz und Zimmerleute lernen hier alles rund um den nachwachsenden Rohstoff.
Als Sieger eines durchgeführten Projektwettbewerbs gingen Peter Moor Architekten hervor. Entstanden ist ein lichtdurchflutetes Gebäude in Holzständerbauweise.
Als Sieger eines durchgeführten Projektwettbewerbs gingen Peter Moor Architekten hervor. Entstanden ist ein lichtdurchflutetes Gebäude in Holzständerbauweise.
Durch die Platzierung des Gebäudes in der südwestlichen Ecke des Baugrundstücks fügt es sich ideal in die bestehenden Quartiersstrukturen ein und trägt somit der Stärkung und Qualität der Außenräume des Areals bei.
Die Ecklage verleiht dem halböffentlichen Gebäude im städtebaulichen Kontext eine besondere Präsenz. Diese wird unterstrichen durch die filigrane hochwertige Holzbauweise mit außenliegender Tragkonstruktion.
Die Ecklage verleiht dem halböffentlichen Gebäude im städtebaulichen Kontext eine besondere Präsenz. Diese wird unterstrichen durch die filigrane hochwertige Holzbauweise mit außenliegender Tragkonstruktion.
Die Tragstruktur bestimmt das äußere Erscheinungsbild des Gebäudes maßgebend und wird zum charakterbildenden Element. Die feine Stützen- und Trägerstruktur ist prägendes Hauptmerkmal der Architektur und verweist auf eine stolze Holzbaukunst in der Region. Zwillingsstützen in Fassadenebene tragen die Holzbalken der Geschossdecke und das weit auskragende Dach.
Die Wiederholung dieser Konstruktion führt zu einer profilierten Fassadengestaltung. Resultierende Vor- und Rücksprünge erzeugen ein spannungsreiches Schattenspiel.
Anhand der klaren Tragwerksstruktur wird die Fassade in gleichmäßige, stehende Fassadenfelder mit großzügigen Fensteröffnungen unterteilt. Über die raumhohen, gerahmten Fenster gelangt vor allem über die Ost- und Westseite viel Tageslicht ins Innere.
Die Wiederholung dieser Konstruktion führt zu einer profilierten Fassadengestaltung. Resultierende Vor- und Rücksprünge erzeugen ein spannungsreiches Schattenspiel.
Anhand der klaren Tragwerksstruktur wird die Fassade in gleichmäßige, stehende Fassadenfelder mit großzügigen Fensteröffnungen unterteilt. Über die raumhohen, gerahmten Fenster gelangt vor allem über die Ost- und Westseite viel Tageslicht ins Innere.
Mit dem kräftigen Dach erhält die Fassade einen prägnanten horizontalen Abschluss. Das zweigeschossige, relativ flache Gebäude steht somit in einem differenzierten Gleichgewicht zwischen vertikaler Ausrichtung der Fassade und horizontalem Gesamterscheinungsbild.
Weitere Informationen:
Auftragsart: Projektwettbewerb im selektiven Verfahren, 1.Preis
Bauingenieur: SIP AG, Oberlunkhofen
Holzbauingenieuer: Makiol + Wiederkehr, Beinwil am See
Bauphysik: Raumanzug GmbH, Zürich
HLK: Schär + Egli GmbH, Sursee
Sanitär: Keller Haustechnikplaner Sanitär GmbH, Sursee
Elektro: Elektro Compagnoni, Zürich
Fertigstellung: 2017
Baukosten: 6.0 Mio. Fr. (inkl. MwSt.)
Bauingenieur: SIP AG, Oberlunkhofen
Holzbauingenieuer: Makiol + Wiederkehr, Beinwil am See
Bauphysik: Raumanzug GmbH, Zürich
HLK: Schär + Egli GmbH, Sursee
Sanitär: Keller Haustechnikplaner Sanitär GmbH, Sursee
Elektro: Elektro Compagnoni, Zürich
Fertigstellung: 2017
Baukosten: 6.0 Mio. Fr. (inkl. MwSt.)











