// Check if the article Layout ?>
Außen dunkel, innen hell: Haus mit Innenhof in Gliwice
Foto: Marcin Grabowiecki
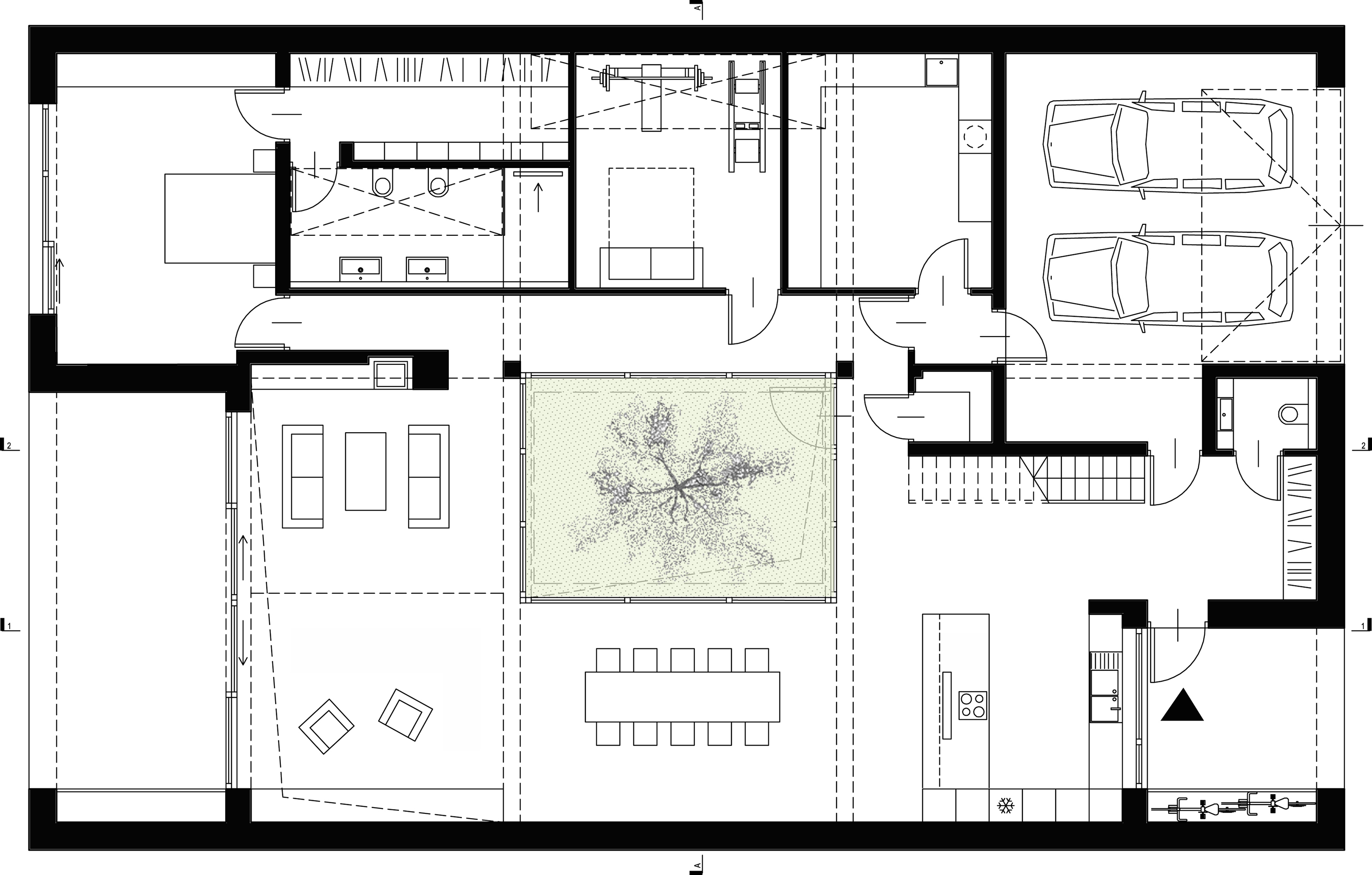
Das Hausgrundstück in der Nähe eines Waldes liegt in einer typischen, dicht bebauten Einfamilienhausgegend, deren Hauptmerkmal ihre Eigenschaftslosigkeit ist. Die Lage des Hauses bestimmt seine Gestaltung: Magdalena und Zbigniew Gieczak entwerfen ein introvertiertes Gebäude mit nur wenigen Fensteröffnungen, um das Innere vor fremden Blicken (und vielleicht auch vor unschönen Ausblicken auf die benachbarten Fertigbauten) zu schützen.
Ein zentral angeordneter Innenhof kompensiert fehlende Fassadenöffnungen: Indirektes Sonnenlicht wird über die transparente Innenhof-Verglasung ins Hausinnere hinein geleitet. Dazu kommt eine großzügige Fensterfront zum Garten hin, die das – nach außen verschlossen wirkende – Haus innen transparent erscheinen lässt. Im Kontrast zur dunkelgrauen Außenfassade scheinen die weiß gestrichenen Innenräume fast zu strahlen. Im Obergeschoss kreieren die Architekten gleich zwei Dachterrassen mit Aussicht auf den Wald und den ehemaligen Sendeturm von Gliwice – mit 118 Metern die höchste Holzstruktur weltweit.















