Bänder in der Landschaft: Werkstattgebäude Landscheide Schönengrund
Foto: Ruedi Walti
2013 gewannen die Züricher Kit architects den selektiven Wettbewerb für das Werkstattgebäude. Es ging dabei um einen Entwurf, der sich in das bestehende Ensemble des Wohnheims Landscheide einfügt. Da der kleine Ort im Schweizer Kanton St. Gallen aber sowieso nur eine begrenzte Anzahl an Anliegern hat, war es ein kluger Schachzug, sich auch ihnen anzunähern. Am Hang gelegen, ist der kompakte Baukörper von der Straße aus sehr präsent. Seine Orientierung und auch die braune Lasur der Sichtbetonfassade sind eine Hommage an jene Bauten, die bereits länger dort stehen.
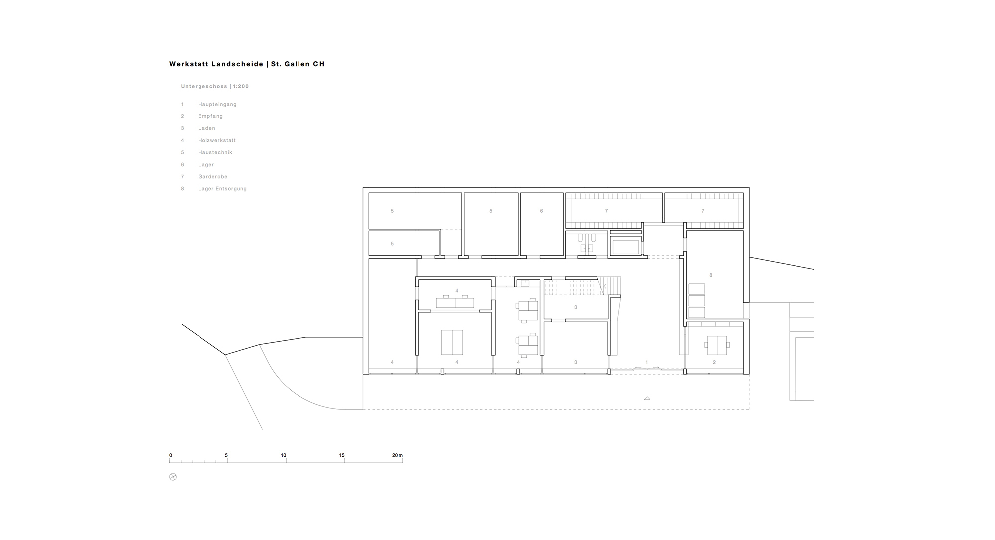
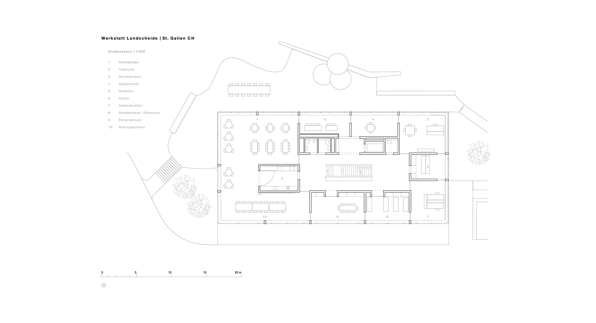
Der Kubus ist in den Hang gebaut. Das Untergeschoss öffnet sich zum Vorplatz an der Hauptstraße. Ein weites Vordach, eine nach vorne leicht zulaufende Scheibe aus Sichtbeton, markiert und schützt hier den Eingang. In einem Laden werden die Produkte der Werkstatt zum Verkauf angeboten. Das eigentliche Erdgeschoss beherbergt Aufenthaltsräume und die Verwaltung. Von der Kaffeestube an der Rückseite des Hauses kann man direkt in den geschützten Garten treten. Die drei Obergeschosse nehmen die Räume für Arbeitsgruppen auf.
In der Werkstatt arbeiten Nutzer, die auf sehr unterschiedliche Art und Weise beeinträchtigt werden. Deswegen waren Rückzugsmöglichkeiten und abgeschirmte Bereiche zwischen den Werkstätten wichtig. Die klare Grundrissstruktur der Obergeschosse beinhaltet die zentrale Erschließung und in jeder Ecke einen zur Treppe offenen Werkstattraum. Dazwischen bilden sich Nischen aus, die entweder Pausenräume oder die Büros der Betreuer aufnehmen. Entlang der Fassade sind alle Räume miteinander verbunden.
Diese Verbindung spiegelt sich auch in der Fassade wieder. Dem Ausblick wird mit Fensterbändern gehuldigt, die sich mit Brüstungsbändern aus Sichtbeton abwechseln. Der Beton wurde mit Grobspanplatten geschalt, was ihm eine deutlich sichtbare Struktur verleiht. Beide Materialien werden auch im Innenraum verwendet um einen bewusst rohen, der Werkstattnutzung angemessenen, Eindruck zu erzeugen.
Weitere Informationen:
Gebäudevolumen: 7300 m³
Geschossfläche: 2100 m²
























