Baukultur für die Retortenstadt: Gemeinschaftszentrum von EID Arch in Xi’an
Foto: Lujing architectural photography
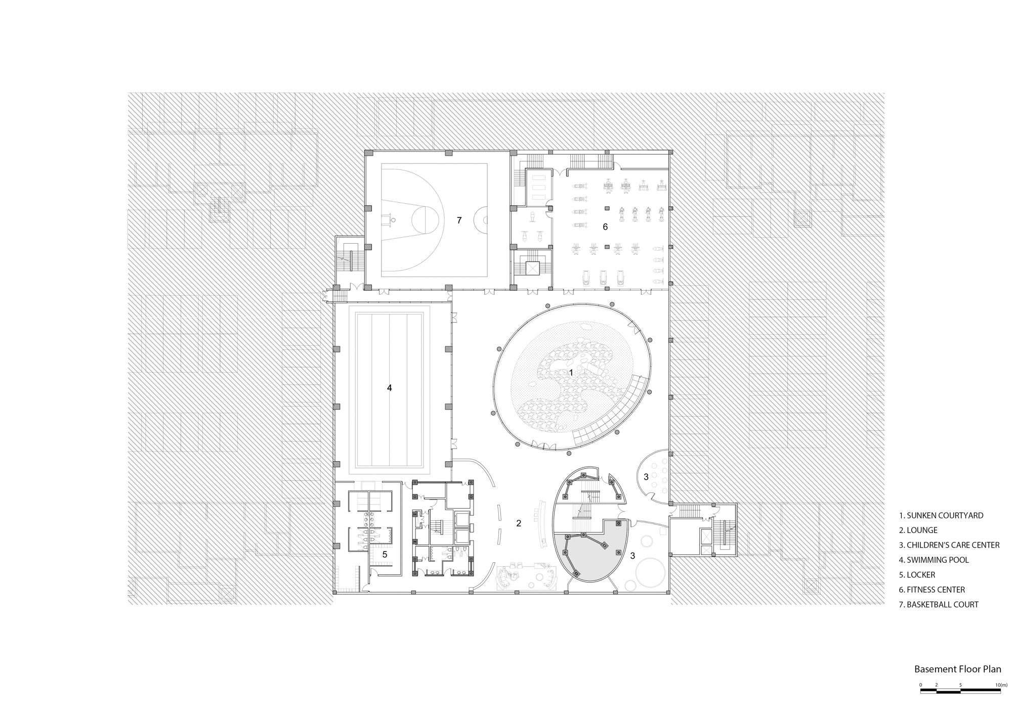
Auf die Gestaltung von Gemeinschaftszentren wird in vielen chinesischen Neubaugebieten großes Augenmerk gelegt. Dabei geht es nicht nur um die Aufhübschung ansonsten eher gesichtsloser Schlafstädte: Die Gebäude stellen eine wichtige soziale und kulturelle Infrastruktur für die Anwohner bereit. Im Fall des LAND Community Center, den EID Arch im Neubaugebiet Fangdong in Xi’an geplant haben, sind dies ein Servicebereich, eine Cafeteria, ein Mehrzwecksaal, eine Ausstellungsgalerie sowie eine Kindertagesstätte und diverse Sporteinrichtungen. Letztere liegen im Untergeschoss des Neubaus, das den größten Teil der Nutzfläche enthält und von einem ovalen Innenhof mit Tageslicht versorgt wird. Darüber tragen zwei biomorphe, mit glasfaserbewehrten Betonfertigteilen verkleidete Erschließungskerne das rundum verglaste Obergeschoss. Sie enthalten Treppenhäuser und Aufzüge, aber auch Lichtschächte, die zusätzliches Licht in den Untergrund bringen. Im Inneren dieser Megastützen verbirgt sich ein komplexes Stahltragwerk.
Mit der Strategie, das Erdgeschoss möglichst frei zu halten, wollten die Architekten einen beschatteten Freibereich für die heißen Sommermonate in Xi’an schaffen. Im Juli und August wird es dort ebenso warm wie in Neapel oder Athen, regnet jedoch deutlich öfter. Gleichzeitig bildet das LAND Community Center ein symbolisches Eingangstor in die neue Hochhausstadt im Westen der Vier-Millionen-Einwohner-Metropole.
Besonderes Augenmerk legten die Architekten bei dem Neubau auf die Detailgestaltung. Die mehr als 200 Betonfertigteile und die Glashülle erhielten gleichermaßen eine konkave Rippenstruktur. Im ersten Fall stammt diese von Schalelementen, die örtliche Handwerker aus CNC-gefrästem MDF und dünnen Eschenholzstäben herstellten, im letzteren von der Wölbung der rahmenlosen Isolierverglasung. Ein feines vertikales Linienmuster in variierenden Abständen auf der Glashülle verstärkt den 3D-Effekt der Verglasung zusätzlich.
Weitere Informationen:
Landschaftsarchitektur: GZ.S.P.I Landscape Design
TGA-Planung, lokale Partnerarchitekten: SZAD
Innenarchitektur: Waterfrom Design / Shenzhen Feiyan Interior Design





























