// Check if the article Layout ?>
Lebenslauf:
Nach der Ausbildung und Jahren als Handwerksmeister entschloss sich Benno Schmitz Architektur in Deutschland sowie in den Niederlanden zu studieren. Seit 2015 absolviert er sein Masterstudium an der Technischen Universität Berlin. Im Zuge eines Auslandssemesters verbrachte er einige Monate an der Technischen Universität in Delft. Des Weiteren nahm er an der Academy for Architectural Culture in Hamburg teil. Mit seinen Studienarbeiten gewann er Preise im In- und Ausland. In seinem bisherigen beruflichen Werdegang war Benno Schmitz als Praktikant und studentischer Mitarbeiter in Büros wie beispielsweise Baumschlager Eberle oder 2Dplus Architekten tätig. Was bedeutet das DETAIL Stipendium für dich bzw. was erwartest du dir davon?
Zuallererst ist ein Stipendium immer eine große Anerkennung der eingereichten Arbeiten. Insbesondere spornen positive Rückmeldungen zu gewonnenen Preisen und Stipendien natürlich weiter an. Ferner freue ich mich auf neue Kontakte und einen interessanten Austausch mit Designexperten und Spezialisten der Bauindustrie. Ich hoffe dadurch meinen Standpunkt im Umgang mit dem nachhaltigen Bauen zu festigen, sowie neue Sichtweisen, innovative Technologien und Herangehensweisen für individuelle nachhaltige Designlösungen mit Bezug auf das Material und den architektonischen Raum kennenzulernen und daran zu wachsen.
Ein weiterer wichtiger Punkt ist natürlich die Tatsache, dass ein Stipendium immer auch finanzielle Sicherheit mit sich bringt und dass mir daher die Möglichkeit gegeben ist mehr Zeit in meine bevorstehende Abschlussarbeit zu investieren. Welchen Stellenwert hat die Architektur in deinem Leben und welche Themen beschäftigen dich sonst noch?
Die Architektur hat in vielerlei Hinsicht große Bedeutung. Ich nehme die gebaute Umwelt kritischer wahr. Aufgrund meiner Ausbildung und Berufserfahrung im Handwerk achte ich stark auf Realisierbarkeit und auf die Details bei den Umsetzungen der verschiedenen Konzepte.
Um andere Kulturen und deren Architektur kennenzulernen, bin ich gerne auf Reisen. Einen weiteren Großteil meiner Freizeit widme ich meinem Interesse an zeitgenössischem Design und der Fotografie. Projektbeispiel: MUSEUM OF CONTEMPORARY ARTS, BONN
Entwurfsarbeit Benno Schmitz
Benno Schmitz - DETAIL Stipendiat 2017/2018
Benno Schmitz
Lebenslauf:Nach der Ausbildung und Jahren als Handwerksmeister entschloss sich Benno Schmitz Architektur in Deutschland sowie in den Niederlanden zu studieren. Seit 2015 absolviert er sein Masterstudium an der Technischen Universität Berlin. Im Zuge eines Auslandssemesters verbrachte er einige Monate an der Technischen Universität in Delft. Des Weiteren nahm er an der Academy for Architectural Culture in Hamburg teil. Mit seinen Studienarbeiten gewann er Preise im In- und Ausland. In seinem bisherigen beruflichen Werdegang war Benno Schmitz als Praktikant und studentischer Mitarbeiter in Büros wie beispielsweise Baumschlager Eberle oder 2Dplus Architekten tätig. Was bedeutet das DETAIL Stipendium für dich bzw. was erwartest du dir davon?
Zuallererst ist ein Stipendium immer eine große Anerkennung der eingereichten Arbeiten. Insbesondere spornen positive Rückmeldungen zu gewonnenen Preisen und Stipendien natürlich weiter an. Ferner freue ich mich auf neue Kontakte und einen interessanten Austausch mit Designexperten und Spezialisten der Bauindustrie. Ich hoffe dadurch meinen Standpunkt im Umgang mit dem nachhaltigen Bauen zu festigen, sowie neue Sichtweisen, innovative Technologien und Herangehensweisen für individuelle nachhaltige Designlösungen mit Bezug auf das Material und den architektonischen Raum kennenzulernen und daran zu wachsen.
Ein weiterer wichtiger Punkt ist natürlich die Tatsache, dass ein Stipendium immer auch finanzielle Sicherheit mit sich bringt und dass mir daher die Möglichkeit gegeben ist mehr Zeit in meine bevorstehende Abschlussarbeit zu investieren. Welchen Stellenwert hat die Architektur in deinem Leben und welche Themen beschäftigen dich sonst noch?
Die Architektur hat in vielerlei Hinsicht große Bedeutung. Ich nehme die gebaute Umwelt kritischer wahr. Aufgrund meiner Ausbildung und Berufserfahrung im Handwerk achte ich stark auf Realisierbarkeit und auf die Details bei den Umsetzungen der verschiedenen Konzepte.
Um andere Kulturen und deren Architektur kennenzulernen, bin ich gerne auf Reisen. Einen weiteren Großteil meiner Freizeit widme ich meinem Interesse an zeitgenössischem Design und der Fotografie. Projektbeispiel: MUSEUM OF CONTEMPORARY ARTS, BONN
Entwurfsarbeit Benno Schmitz
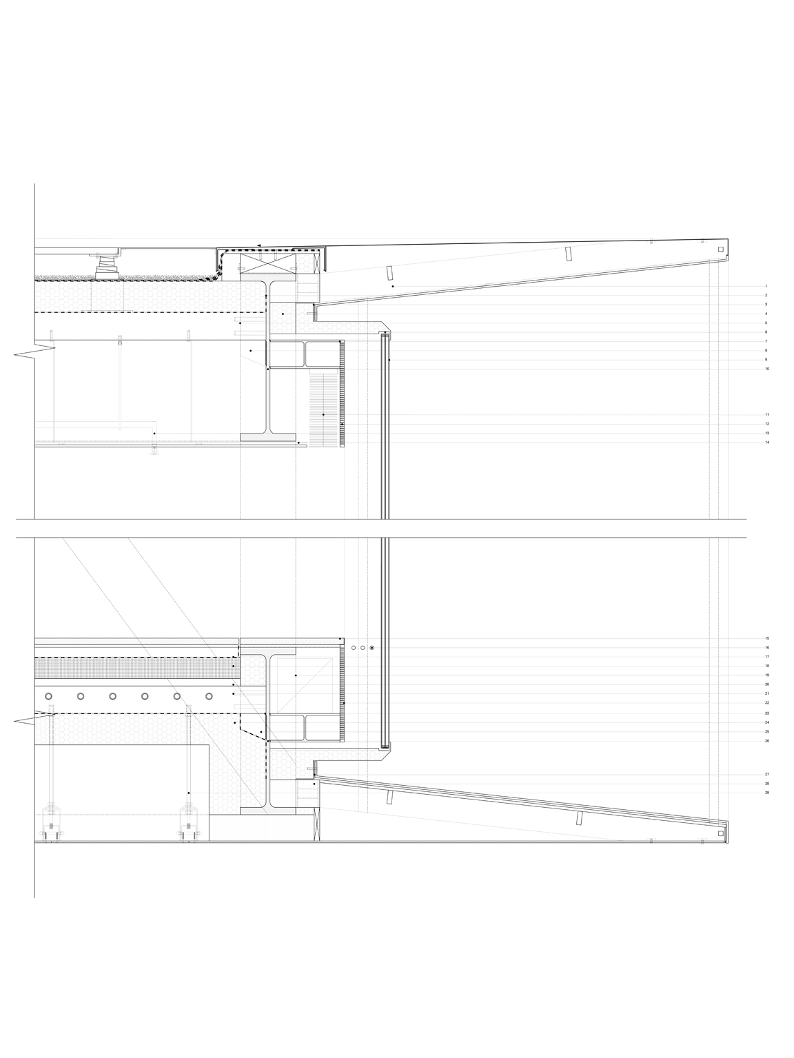
Das Museum of Contemporary Arts in Bonn befindet sich auf der Grenze des Stadt- und Naturraums. Die Bauaufgabe lag darin ein Museum zu konzipieren welches sichtbar in der Stadtlandschaft, sowie nachhaltig mit der Natur umgeht. Die alte Abbaukante eines ehemaligen Steinbruches bildet diese Grenze. Das Baugrundstück befindet sich über der Stadt direkt neben dieser Industrieruine. Durch das Museum wird die damals verlassene Brache wieder aufgewertet. Der von Menschenhand verursachte tiefe Einschnitt in die Natur kann daher positiv genutzt werden, um das Bauwerk mit der extremen Auskragung, die Richtung Innenstadt zielt, zu inszenieren.
Der unterirdische Gebäudekörper mit dem Eingang, den Ausstellungshallen und den Nebenräumen ist längsorientiert, parallel zum ehemaligen Steinbruch. Die Aussichtsplattform mit Ausstellungsbereich, Café und Bookshop ist zur einen Seite Richtung Stadt Bonn und zur anderen Seite Richtung Siebengebirge ausgerichtet. Das Herausdrehen des obersten Körpers spiegelt die Trennung dieser beiden Gebäudebereiche nicht nur funktional, sondern auch konstruktiv wieder.
Der Entwurf spielt mit der Dualität von Material, Konstruktion und Atmosphäre. Konstruktiv besticht der scheinbar schwebende Körper durch das versteckte Brückentragwerk, dies wird im Konzeptmodell sichtbar. Der Entwurf besteht aus den zwei Materialien Beton und Stahl. Das Konzeptmodell stellt den Entwurf in abstrahierter Weise dar, der selbst gegossene Betonsockel steht für den unterirdischen Gebäudeteil. Die geschweißte Stahlkonstruktion, die in den Beton integriert ist, betont den oberirdischen metallenen Körper. Um die beiden unterschiedlichen Gebäudeteile in ihrer Funktion zu unterscheiden ist der oberirdische innere Teil des Gebäudes aus dunklem Metall hergestellt, so dass das Augenmerk, das Panoramafenster, noch mehr betont wird und der Blick des Besucher direkt in die außenliegende Landschaft gerichtet wird. Der unterirdische Teil ist aus hellem pigmentierten Beton und mit Tageslichtdecken ausgeführt, um der Kunst einen schönen ruhigen Raum zu bieten. Statement der Jury zu den eingereichten Arbeiten von Benno Schmitz:
Die drei von Benno Schmitz eingereichten Entwürfe und Studien überzeugen in ihrer Tiefe – sowohl in der Darstellung als auch in Varianten wie Materialstudien, Detailschnitten und Konzepten. In den Projekten geht es nicht nur um gebaute Architektur, sondern auch um experimentelle Herangehensweisen, um 3D-Druck und Parametrik. Die Arbeiten beinhalten insbesondere auch eine parametrische Morphogenese und Produktionsprozesse auf dem Stand der Technik, wobei Benno Schmitz die Technik als Werkzeug und nicht als Gestaltmode verwendet. Insgesamt ein sehr rundes und überzeugendes Portfolio.
Der unterirdische Gebäudekörper mit dem Eingang, den Ausstellungshallen und den Nebenräumen ist längsorientiert, parallel zum ehemaligen Steinbruch. Die Aussichtsplattform mit Ausstellungsbereich, Café und Bookshop ist zur einen Seite Richtung Stadt Bonn und zur anderen Seite Richtung Siebengebirge ausgerichtet. Das Herausdrehen des obersten Körpers spiegelt die Trennung dieser beiden Gebäudebereiche nicht nur funktional, sondern auch konstruktiv wieder.
Der Entwurf spielt mit der Dualität von Material, Konstruktion und Atmosphäre. Konstruktiv besticht der scheinbar schwebende Körper durch das versteckte Brückentragwerk, dies wird im Konzeptmodell sichtbar. Der Entwurf besteht aus den zwei Materialien Beton und Stahl. Das Konzeptmodell stellt den Entwurf in abstrahierter Weise dar, der selbst gegossene Betonsockel steht für den unterirdischen Gebäudeteil. Die geschweißte Stahlkonstruktion, die in den Beton integriert ist, betont den oberirdischen metallenen Körper. Um die beiden unterschiedlichen Gebäudeteile in ihrer Funktion zu unterscheiden ist der oberirdische innere Teil des Gebäudes aus dunklem Metall hergestellt, so dass das Augenmerk, das Panoramafenster, noch mehr betont wird und der Blick des Besucher direkt in die außenliegende Landschaft gerichtet wird. Der unterirdische Teil ist aus hellem pigmentierten Beton und mit Tageslichtdecken ausgeführt, um der Kunst einen schönen ruhigen Raum zu bieten. Statement der Jury zu den eingereichten Arbeiten von Benno Schmitz:
Die drei von Benno Schmitz eingereichten Entwürfe und Studien überzeugen in ihrer Tiefe – sowohl in der Darstellung als auch in Varianten wie Materialstudien, Detailschnitten und Konzepten. In den Projekten geht es nicht nur um gebaute Architektur, sondern auch um experimentelle Herangehensweisen, um 3D-Druck und Parametrik. Die Arbeiten beinhalten insbesondere auch eine parametrische Morphogenese und Produktionsprozesse auf dem Stand der Technik, wobei Benno Schmitz die Technik als Werkzeug und nicht als Gestaltmode verwendet. Insgesamt ein sehr rundes und überzeugendes Portfolio.














