// Check if the article Layout ?>
Berghütte in Sunndal: Rever & Drage bauen am Troll’s Peak
Foto: Tom Auger
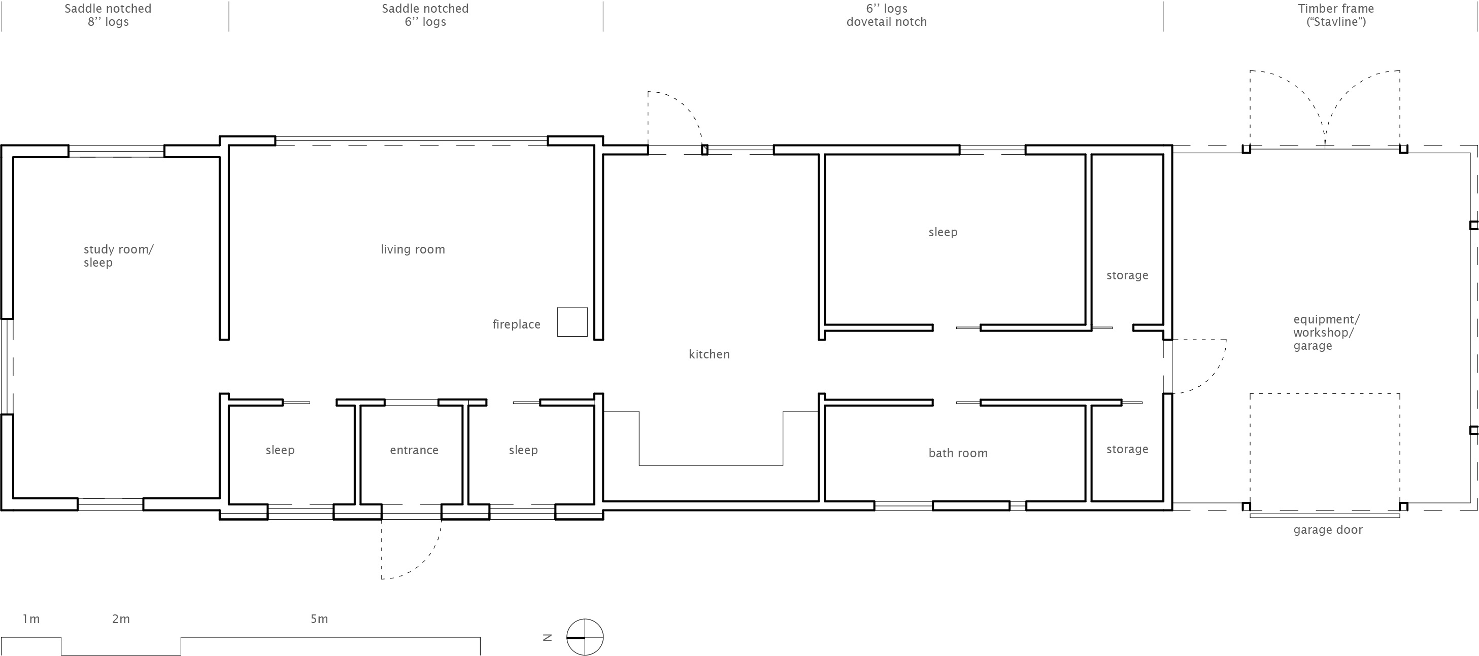
Die 140 m2 große Berghütte ist aus lokalem Holz gebaut. Mehrere traditionelle Baustile und Konstruktionstechniken sind im Bau von Rever & Drage Architects spielerisch miteinander verbunden. Die Auswahl an Materialien und Konstruktionen wurde einerseits an funktionale Anforderungen und andererseits an das raue Wetter im Hochgebirgstal angepasst. Genutzt werden soll die Hütte als ein komfortabler Übernachtungsort von Wanderern mit viel Ausrüstung. Vorgesehen ist ein Trockenraum für nasse Kleidung sowie genügend Platz für Ski und Gepäck. Von einem verglasten Wintergarten aus gelangen die Wanderer über eine Waschküche und ein Bad zum Küchenbereich und weiter zum Kaminraum mit einem großen Panoramafenster.
Der transparente Wintergarten im südlichen Hausteil dient auch als Werkstatt und Lagerraum. Von hier aus eröffnet sich ein Blick auf den nahe gelegenen Berg Ryssdalsnebba. Im Norden befindet sich ein großes Schlafzimmer mit einem Giebelfenster. Angrenzend an das Wohnzimmer mit einer Tonnengewölbedecke liegen zwei kleinere Zimmer, die sich zum Schlafen oder Arbeiten eignen. Ein repräsentativer Eingang mit einer Giebelfront ist zwischen den beiden Zimmern platziert. Die gesamte Komposition ist einer »klyngetun«, einer traditionellen norwegischen Farm nachempfunden, bei der unterschiedlich konstruierte Gebäude mit verschiedenen Funktionen in einer Reihe, die der vorherrschenden Windrichtung entspricht, angeordnet werden.














