// Check if the article Layout ?>
Betonierte Visitenkarte: Verwaltungsgebäude in Besigheim
Foto: Brigida González
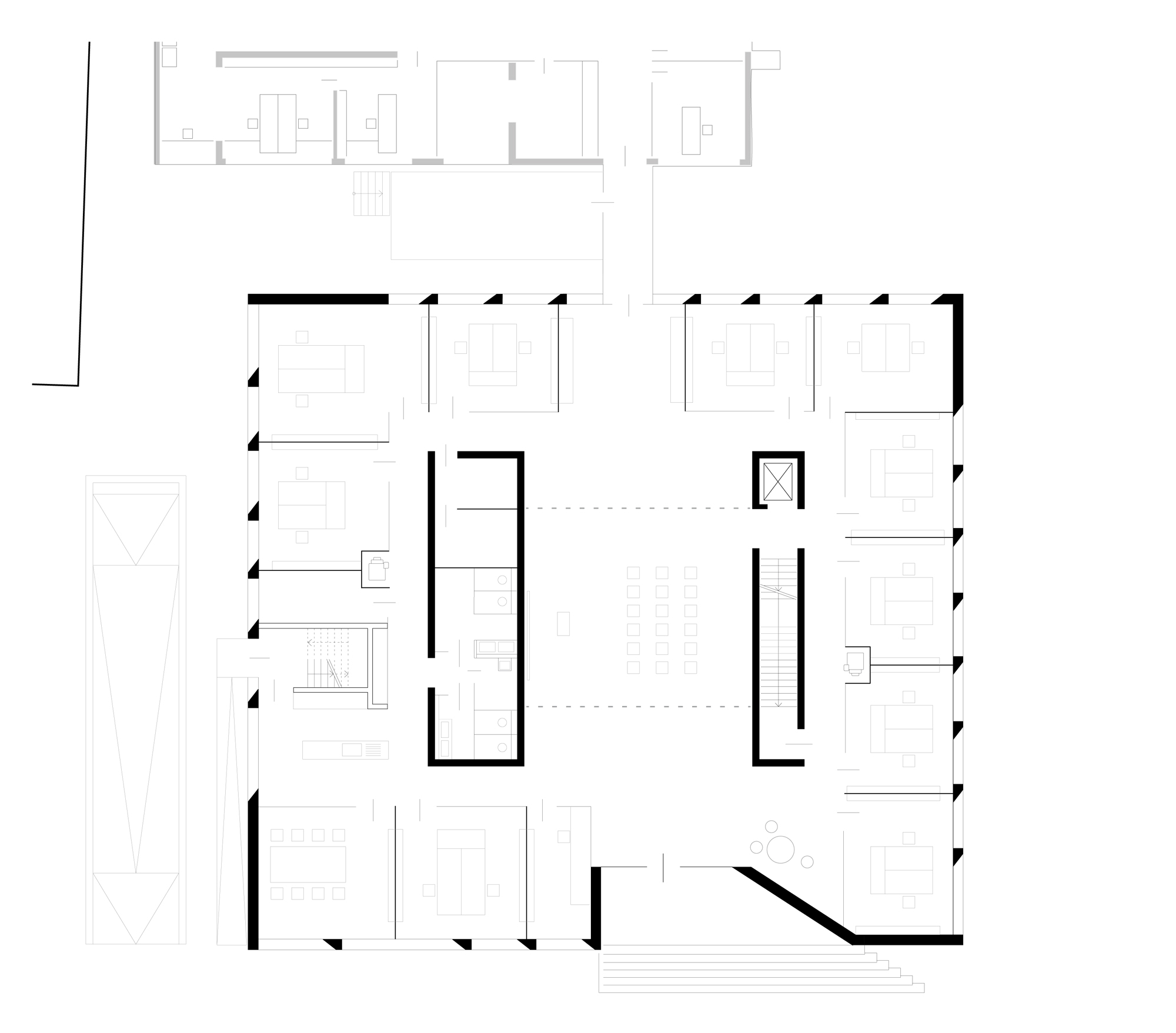
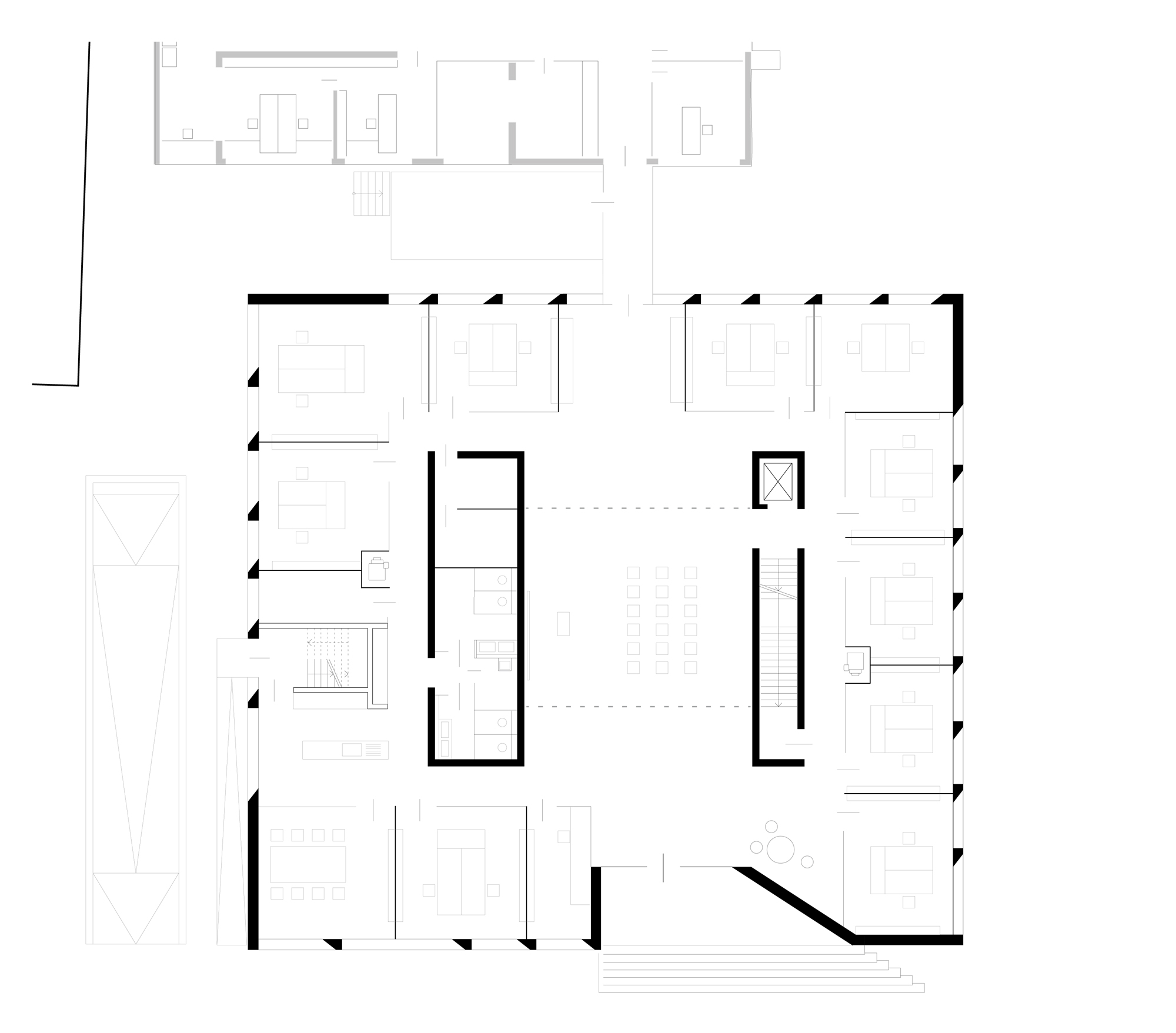
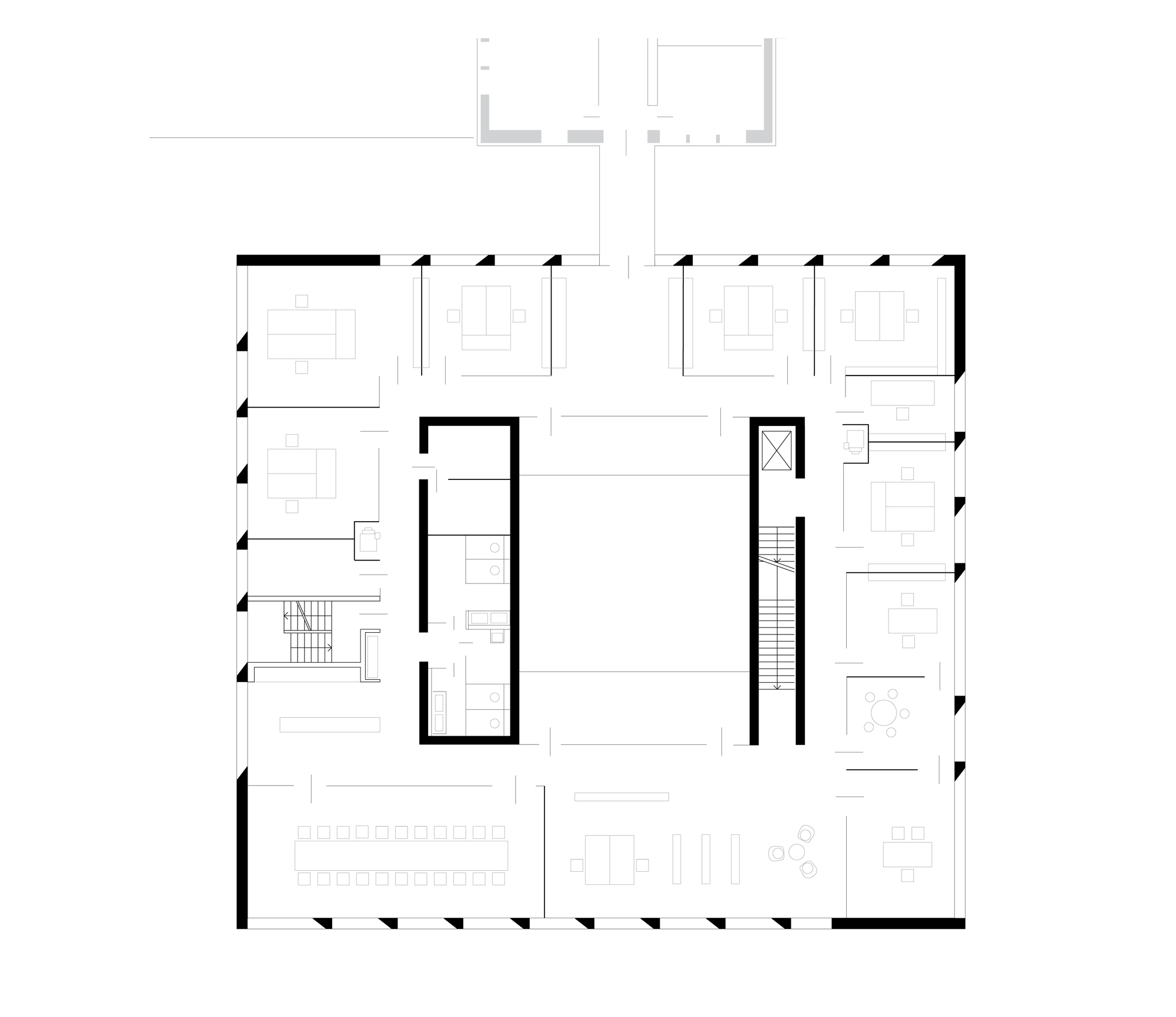
Eine schmale Bodenfuge hebt den beinah quadratischen Sichtbetonkubus visuell nach oben und belichtet zugleich die darunter liegende Tiefgarage. Die breit gefächerte Treppe erdet das zweigeschossige Sozial- und Verwaltungsgebäude und führt in den tief eingeschnittenen Eingangsbereich. Dieser nimmt formal das Motiv der tief sitzenden Fenster mit den flachwinklig abgeschrägten Laibungen auf. Das Firmenlogo – händisch mit etwa 7000 Lichtleitfasern in den transluzenten Beton eingearbeitet – strahlt dem Besucher dank LED´s an der Rückseite schon von Weitem entgegen. Danach gelangt man in das gebäudehohe Foyer, dem zentralen Treffpunkt und Veranstaltungsort des Bauunternehmens.
Das helle Atrium spannt sich zwischen zwei länglichen, lastabtragenden Stahlbetonkernen auf, in denen sich östlich die einläufige Treppe mit Aufzug und westlich sämtliche Sanitäranlagen befinden. Das statische Konstruktionsprinzip ergänzt die zwei innenliegenden Kerne mit in der Fassade untergebrachten Stahlbetonstützen und Wandscheiben, wodurch der komplette Innenraum frei von Stützen ist. Somit sind optimale Abläufe, Offenheit und Transparenz sowie maximale, räumliche Flexibilität gewährleistet. Zwei, an den Kernen entlang laufende Oberlichtbänder speisen wertvolles Tageslicht ins Innere, können jedoch bei Veranstaltungen mechanisch verdunkelt werden. Auch eine separate Saalnutzung ist mithilfe von zwei schweren Vorhängen möglich.
Das kompakte Verwaltungsgebäude besteht aus einer zweischaligen Außenhülle, die abschließend mit einer permanenten, wasserabweisenden Anti-Graffiti-Schutzschicht versehen wurde. Dem Beton wurde zudem als Bindemittel Hochofenzement beigemischt, um einen möglichst hellen Farbton zu erzielen. Gegen Verschmutzungen der Fassadenoberfläche durch zum Beispiel Regenwasser, wurden die Gesimse mit einem Innengefälle ausgeführt.
Das Eichenholz der Fensterrahmen findet sich auch im Inneren bei Türen, einigen festen Einbauten, der Treppe und im Boden wieder. Nur im Foyer wechselt der Belag zu einem hellen Naturstein. Die gesamten Außenflächen der beiden Stahlbetonkerne sind steinmetzmäßig gespitzt, ansonsten dominieren in der Innenraumgestaltung glatt geschalte, graue Oberflächen.
Alle nach außen orientierten Büro- und Versammlungsräume werden über Flure um die Kerne herum erschlossen und von Glastrennwänden begrenzt. Somit können sich die 40 Mitarbeiter der Firmenchefs Karl und Horst Köhler, die nicht auf den Baustellen unterwegs sind, an offenherzigen, tageslichtdurchfluteten Arbeitsplätzen erfreuen. Die außen liegenden Raffstores verhindern eine große Überhitzung im Sommer.
Der Besigheimer Neubau fördert nicht nur die interne Kommunikation, sondern kommuniziert auch in der Höhenentwicklung und durch einen verbindenden Glassteg, mit dem nördlich angrenzenden Bestandsgebäude. Darüber hinaus trägt er die Firmenphilosophie als betonierte Visitenkarte stilvoll nach außen.
Weitere Informationen:
Fertiggestellt: 2015BGF: 2.713 m2BRI: 10.393 m2
Fotograf: Brigida González













