// Check if the article Layout ?>
Betonschwamm am Altstadtring: Kulturzentrum in Toruń
Foto: Jakub Certowicz
Bauliche Extravaganz in Sichtweite eines UNESCO-Weltkulturerbes – da droht normalerweise Schlimmes, wie nicht zuletzt die Stadt Dresden leidvoll erfahren musste. Keine Beschwerden bekannt sind (bislang) über den Neubau des Kultur- und Kongresszentrums »Jordanki« im polnischen Toruń. Die Geburtsstadt von Nikolaus Kopernikus nennt eine der besterhaltenen Altstädte in Polen und bedeutende Zeugnisse der Backsteingotik ihr eigen. Nur im Norden und Westen ist die Altstadt von einer vielbefahrenen Ringstraße umgeben; im Süden fließt hingegen die Weichsel vorbei.
An der Nordwestecke der Altstadt hat auch Fernando Menis – Sieger eines Architekturwettbewerbs 2008 – seinen Neubau platziert. Der spanische Architekt praktiziert einen Architekturstil, den man „geologisch“ nennen könnte: schwere Betonvolumina, brettrau geschalt oder nachträglich mit dem Stockhammer bearbeitet, umschließen höhlenartige Innenräume, in denen das durch enge Lichtschlitze einfallende Tageslicht dramatische Licht- und Schatteneffekte zaubert. Zur Formfindung nutzt er in erster Linie Plastillinmodelle. Auf diese Weise hat er vor elf Jahren das Kulturzentrum „Magna“ im Süden Teneriffas gestaltet, und eine ganz ähnliche Formensprache verlieh er nun auch dem 51 Millionen Euro teuren Kulturbau in Toruń.
Multitalent im Betonpanzer
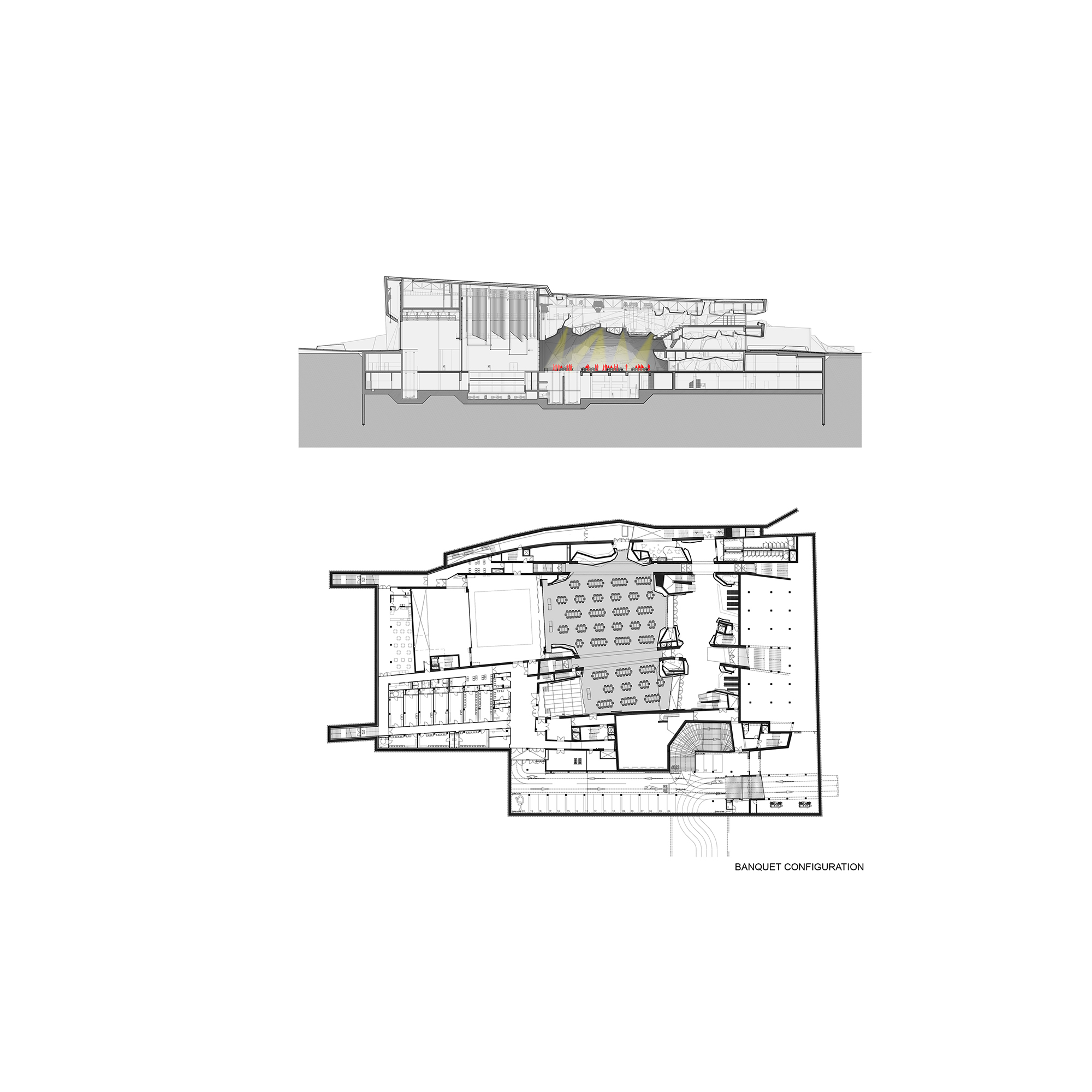
Zunächst war das 22000 Quadratmeter große Gebäude nur als Konzerthalle geplant; dann kamen immer mehr Anforderungen hinzu: Theateraufführungen, Opern, Kinofilme – alles sollte sich in dem großen Saal zeigen lassen; außerdem sollten dort Bankette stattfinden können, und zwar selbstverständlich zum gleichen Budget. Sogar eine Außenbühne zum benachbarten Park hin musste Menis in sein Gebäude integrieren. Dies gelang ihm mit einer Gebäudestruktur, die er mit einem Schwamm vergleicht. Die gleichsam „porösen“ Grundrisse werden nur durch eingestellte Kerne zoniert; dazwischen lassen sich Räume flexibel öffnen, verschließen und zusammenschalten. Einbauten – allen voran die Zuschauerränge – sind reversibel konstruiert; außerdem lässt sich die große Konzertbühne komplett zum Park hin öffnen. Trotz seines wehrhaften Äußeren, so Menis, bildet der Neubau damit eine Art Tor, das zwei unterschiedliche Außenbereiche miteinander verbindet. Und noch ein Bild hat der Architekt parat – diesmal um die Konstruktion der Wände und Decken zu beschreiben: Zurek, eine in Polen beliebte saure Mehlsuppe, die häufig in einem Brotlaib serviert sind. Dem Brot entspricht beim Jordanki-Kulturzentrum die äußere Betonkarkasse. Die Suppe, das sind die in den Beton eingegossenen gebrochenen Ziegel, die in den zahlreichen Aushöhlungen des Baukörpers erkennbar sind. Dort wurden Beton und Ziegel nachträglich gestockt, an den planen Gebäudeoberflächen ist hingegen die Bretterschalung sichtbar. Laut Menis ist die Nachbearbeitung des Betons nicht nur eine ästhetische Frage: Sie soll auch die Akustik im Saal verbessern, indem sie die Nachhallzeiten reduziert.
Zunächst war das 22000 Quadratmeter große Gebäude nur als Konzerthalle geplant; dann kamen immer mehr Anforderungen hinzu: Theateraufführungen, Opern, Kinofilme – alles sollte sich in dem großen Saal zeigen lassen; außerdem sollten dort Bankette stattfinden können, und zwar selbstverständlich zum gleichen Budget. Sogar eine Außenbühne zum benachbarten Park hin musste Menis in sein Gebäude integrieren. Dies gelang ihm mit einer Gebäudestruktur, die er mit einem Schwamm vergleicht. Die gleichsam „porösen“ Grundrisse werden nur durch eingestellte Kerne zoniert; dazwischen lassen sich Räume flexibel öffnen, verschließen und zusammenschalten. Einbauten – allen voran die Zuschauerränge – sind reversibel konstruiert; außerdem lässt sich die große Konzertbühne komplett zum Park hin öffnen. Trotz seines wehrhaften Äußeren, so Menis, bildet der Neubau damit eine Art Tor, das zwei unterschiedliche Außenbereiche miteinander verbindet. Und noch ein Bild hat der Architekt parat – diesmal um die Konstruktion der Wände und Decken zu beschreiben: Zurek, eine in Polen beliebte saure Mehlsuppe, die häufig in einem Brotlaib serviert sind. Dem Brot entspricht beim Jordanki-Kulturzentrum die äußere Betonkarkasse. Die Suppe, das sind die in den Beton eingegossenen gebrochenen Ziegel, die in den zahlreichen Aushöhlungen des Baukörpers erkennbar sind. Dort wurden Beton und Ziegel nachträglich gestockt, an den planen Gebäudeoberflächen ist hingegen die Bretterschalung sichtbar. Laut Menis ist die Nachbearbeitung des Betons nicht nur eine ästhetische Frage: Sie soll auch die Akustik im Saal verbessern, indem sie die Nachhallzeiten reduziert.
weitere Informationen:
Bauleitung: Studio A4 Spółka Projektowa (Jacek Lenart)
Tragwerksplanung: Fort Polska (Tomasz Pulajew)
Tragwerksplanung Wettbewerb: Martínez Segovia y associados (José Antonio Franco)
Akustikplanung: Pedro Cerdá
Elektroplanung: ELSECO Sp. z o.o.
HLS-Planung: Iskierski Mariusz. Biuro Inżynierskie
Städtebau: Pracownia Architektury i Urbanistyki SEMI
Tragwerksplanung: Fort Polska (Tomasz Pulajew)
Tragwerksplanung Wettbewerb: Martínez Segovia y associados (José Antonio Franco)
Akustikplanung: Pedro Cerdá
Elektroplanung: ELSECO Sp. z o.o.
HLS-Planung: Iskierski Mariusz. Biuro Inżynierskie
Städtebau: Pracownia Architektury i Urbanistyki SEMI




















