Bier und Beichtstuhl: Bar in der Kathedrale in Antwerpen
Foto: Jochen Verghote
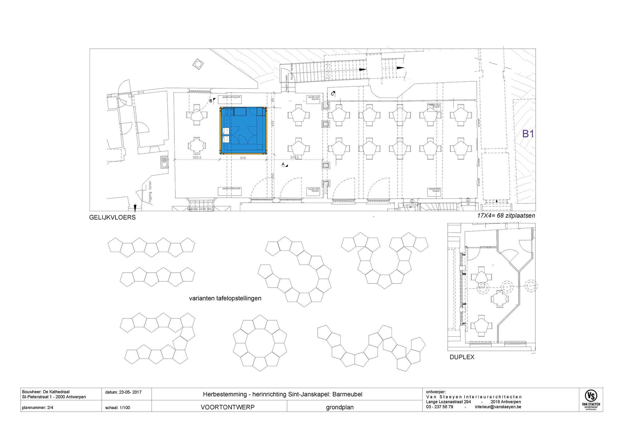
Eine der Kapellen in der Liebfrauenkathedrale in Antwerpen, die Sint-John Kapelle, verwandeln die Architekten Van Staeyen in einen Empfangsbereich mit einer kleinen Bar. Diese trägt den Namen »De Plek« und lädt zu einem Kaffee oder Bier in entspannter Atmosphäre ein. Die Architekten entwerfen einen gezimmerten Würfel mit Außenmaßen von 3,20 m, der nach oben hin offen bleibt und mitten im Raum aus dem Boden wächst. Rundherum strukturieren Tische den Raum. Diese sind, ebenso wie die dazugehörenden Stühle, individuell angefertigt und können je nach Bedarf beliebig positioniert und kombiniert werden. Die Seitenwände und Einbauten der Versorgungsstätte sind komplett in französischer Douglasie ausgeführt. Im Inneren des Würfels gibt es eine umlaufende Arbeitsfläche und Stauraum in Form von maßgefertigten Regalen, die den knappen Raum maximal ausnutzen.
Die architektonischen Elemente des Gotteshauses fließen auf verschiedene Weise in die Gestaltung der Bar mit ein. Van Staeyen Intérieur übersetzen den gotischen Stil in eine Holzkonstruktion und verzieren den Würfel, anders als in der Gotik üblich, außen und nicht innen. Eine Struktur, die an Kreuzrippen erinnern soll, überzieht die gezimmerten Außenwände. Die Oberflächen im Innenraum dagegen sind glatt und in kräftigem Blau gehalten. Damit greifen die Architekten einen Farbton der bunt bemalten Kirchenfenster auf. Den Eingang stellt ein Spitzbogen dar. Die übrigen drei Seiten sind von großformatigen Öffnungen durchbrochen, die gleichzeitig die Durchreichen bilden. Sie haben die Form eines Vierklees, eines Fünfecks und eines gebogenen Dreiecks und bieten Einblick in den Innenraum der kleinen Bar.












