// Check if the article Layout ?>
BI(h)OME
Wenn man die leichte und offene Struktur der Wohneinheit betrachtet, die eher an einen Sommerpavillon erinnert, kann man sich das "Haus" in einem kälteren Klima als Kalifornien nicht vorstellen. Dennoch ist es ein wichtiger Beitrag zur aktuellen Diskussion über den Wohnungsmarkt der Metropole. Nach Aussage des Bürgermeisters müssten in Los Angeles bis zum Jahr 2021 mindestens 100 000 neue Wohnungen entstehen. Recherchen der Studenten haben gezeigt, dass jedes fünfte von den insgesamt 500 000 Einfamilienhäusern in der Stadt einen Hof oder einen Garten besitzt, die ein potenzieller Ort für die kleine Wohneinheit sein könnten.
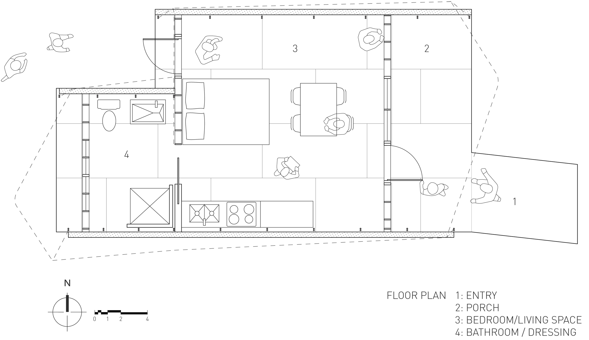
Daraufhin entwarfen Sie den Prototyp für eine kompakte und leichte Behausung. Bei der Entwicklung wurde das Augenmerk auf die einfache Konstruktion gelegt, damit zum einen der Auf- und Abbau schnell erfolgen kann, ebenso aber die eingesetzten Materialien wie Holz, Stahl, Folie, Karton oder Pappe beim Abbau wieder verwendet werden können. Die Wohneinheit beinhaltet ein Schlafzimmer, eine Küche und ein Bad. Die Trennwände dienen gleichzeitig als Regal oder Stauraum. Die erste gebaute Einheit besteht aus einer Stahl- und Holzkonstruktion, die mit Deckfolie überspannt ist und mit runden Elementen ergänzt wurde. Mit dem Einsatz von Photovoltaik-Zellen auf der äußeren Schicht der Fassade und bei einem Gesamtgewicht von 3,5 kg pro m2 kann der Energieverbrauch deutlich reduziert werden. Die Kosten pro Haus bei einer Massenproduktion würden etwa 55 000 USD betragen, vergleichbar mit den Kosten eines Wohnwagens.
Daraufhin entwarfen Sie den Prototyp für eine kompakte und leichte Behausung. Bei der Entwicklung wurde das Augenmerk auf die einfache Konstruktion gelegt, damit zum einen der Auf- und Abbau schnell erfolgen kann, ebenso aber die eingesetzten Materialien wie Holz, Stahl, Folie, Karton oder Pappe beim Abbau wieder verwendet werden können. Die Wohneinheit beinhaltet ein Schlafzimmer, eine Küche und ein Bad. Die Trennwände dienen gleichzeitig als Regal oder Stauraum. Die erste gebaute Einheit besteht aus einer Stahl- und Holzkonstruktion, die mit Deckfolie überspannt ist und mit runden Elementen ergänzt wurde. Mit dem Einsatz von Photovoltaik-Zellen auf der äußeren Schicht der Fassade und bei einem Gesamtgewicht von 3,5 kg pro m2 kann der Energieverbrauch deutlich reduziert werden. Die Kosten pro Haus bei einer Massenproduktion würden etwa 55 000 USD betragen, vergleichbar mit den Kosten eines Wohnwagens.













