// Check if the article Layout ?>
Bildhafte Abstraktion: Kulturzentrum auf den Azoren
José Campos
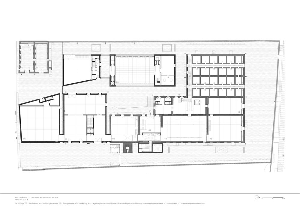
Zwischen Produktions- und Lagerhallen des ehemaligen Industriegeländes fügten die Architekten zwei neue Baukörper hinzu. Zusätzlich zu den alten Fabrikgebäuden entstanden so neben dem Kunst- und Kulturzentrum auch Lagerflächen, eine Multifunktionshalle sowie diverse Räumlichkeiten für Künstler. Insgesamt sollen auch nach dem Umbau der industrielle Charakter des Areals erhalten bleiben und Alt- und Neubauten eine stimmige Einheit bilden.
Die hinzugefügten Gebäude bilden in ihrer architektonischen Anmutung eine bewusste Neuinterpretation der bestehenden Fabrikgebäude. Durch eine bildhafte Abstraktion der vorhandenen Bauformen und Oberflächen entstand ein einheitliches Gesamtkonzept, bei der Alt- und Neubauten auf angemessene Art und Weise zusammengeführt wurden. Die abstrakten Formen der Baukörper nehmen dabei Achsen und Bezüge der umliegenden Gebäude auf und erzeugen Platz- und Zugangssituationen.
Die monolithische Erscheinung der neuen Baukörper wird insbesondere durch die Materialität ihrer Oberflächen optisch verstärkt. Der Sichtbeton mit Zuschlägen von lokalem Basalt erzeugt eine rauhe Textur der Wandflächen. Gleichsam ähnelt das schroffe Material dem unverputzten Mauerwerk der Fabrikgebäude. Die Betonwände sind Bestandteil eines passiven Energiekonzepts, wobei allein durch die hohen Speichermassen und die Trägheit des Materials im Inneren komfortable Temperaturen erreicht werden sollen.
Es gelingt den Architekten mit diesem Projekt unterschiedliche Formen, Größen und Typologien zusammenzuführen. Die abstrakte und klare Formensprache der hinzugefügten Gebäude führt zu einer ausgewogenen baulichen Komposition ohne den industriellen Charme des ehemaligen Fabrikgeländes zu schwächen. Alt und Neu treten in einen wirkungsvollen Dialog, der allein durch die Form und Materialität der Baukörper erzielt wird. Das einstige Industrieareal wird so zu einem neuen, kulturellen Treffpunkt, ein besonderer Ort auf einer kleinen Insel inmitten des Atlantischen Ozeans.
weitere Informationen:
Architekten: Francisco Vieira de Campos, Cristina Guedes, João Mendes Ribeiro
Projektleitung: Adalgisa Lopes, Jorge Teixeira Dias, Inês Mesquita, Filipe Catarino
Team (Menos é Mais Arquitectos Associados, Lda.): Cristina Maximino, João Pontes, Luís Campos, Ana Leite Fernandes, Mariana Sendas, Pedro Costa, Inês Ferreira, João Fernandes
Team (João Mendes Ribeiro Arquitecto, Lda.): Catarina Fortuna, Ana Cerqueira, Ana Rita Martins, António Ferreira da Silva, Cláudia Santos, Joana Figueiredo, João Branco
Wettbewerb: Diogo Laje, Óscar Ribas, Ricardo Cardoso (Estúdio Goma)
Bauingenieur: Hipólito Sousa, Jerónimo Botelho, Pedro Pinto (SOPSEC,SA)
Bauunternehmer: Consórcio Somague, Marques S.A. e Tecnovia.
Bauüberwachung: Pedro Câmara (Eng. Tavares Vieira, Lda.)













