// Check if the article Layout ?>
Bildung zeigt Präsenz: Zwei Schulerweiterungen in London
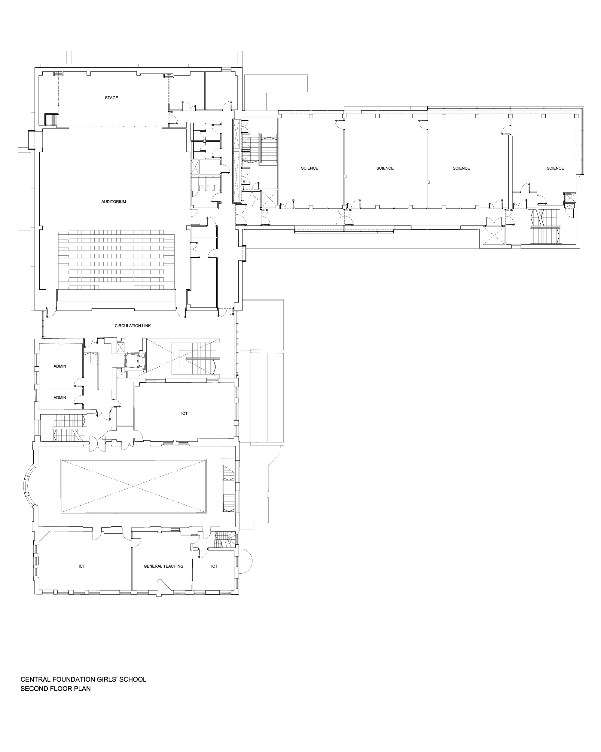
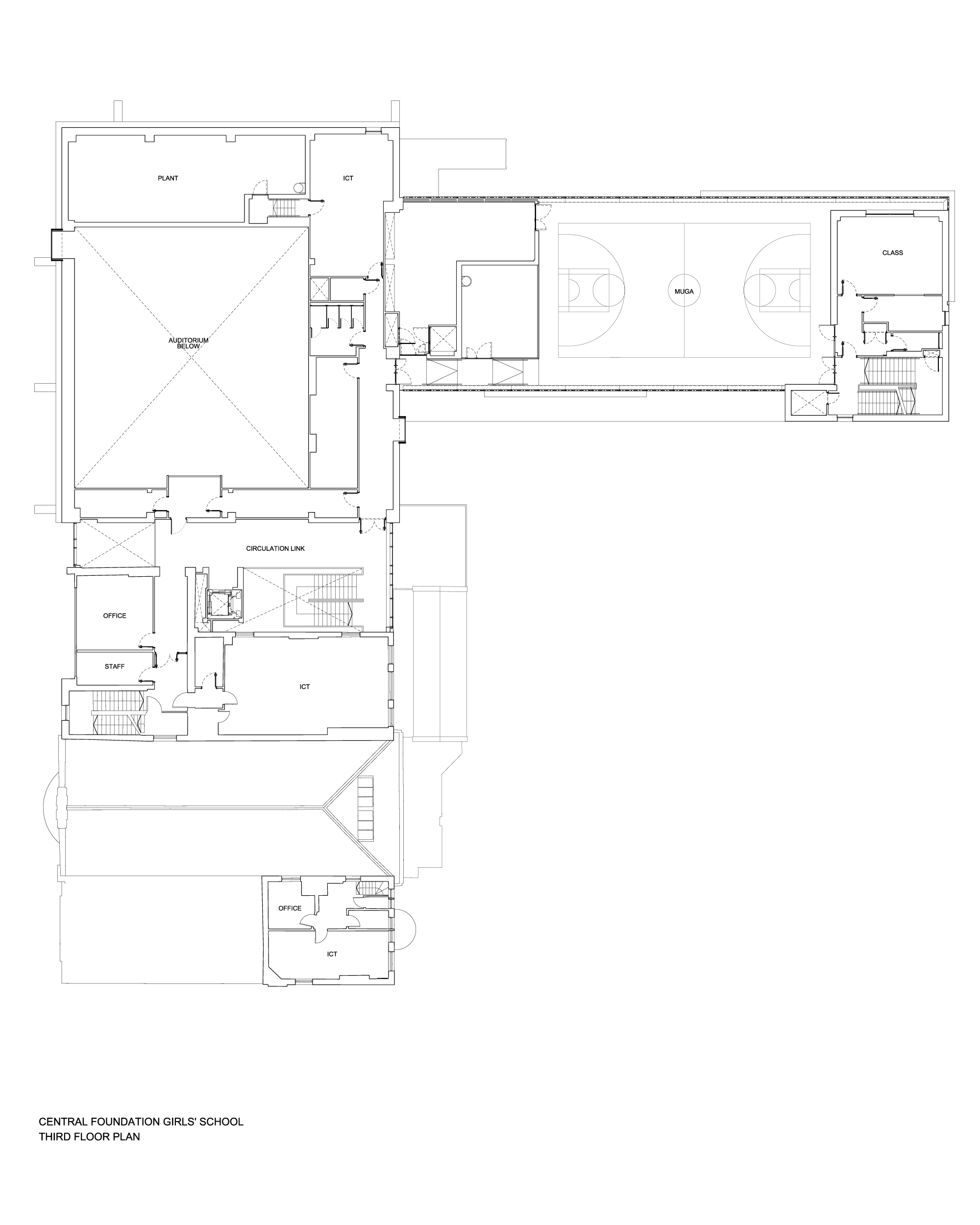
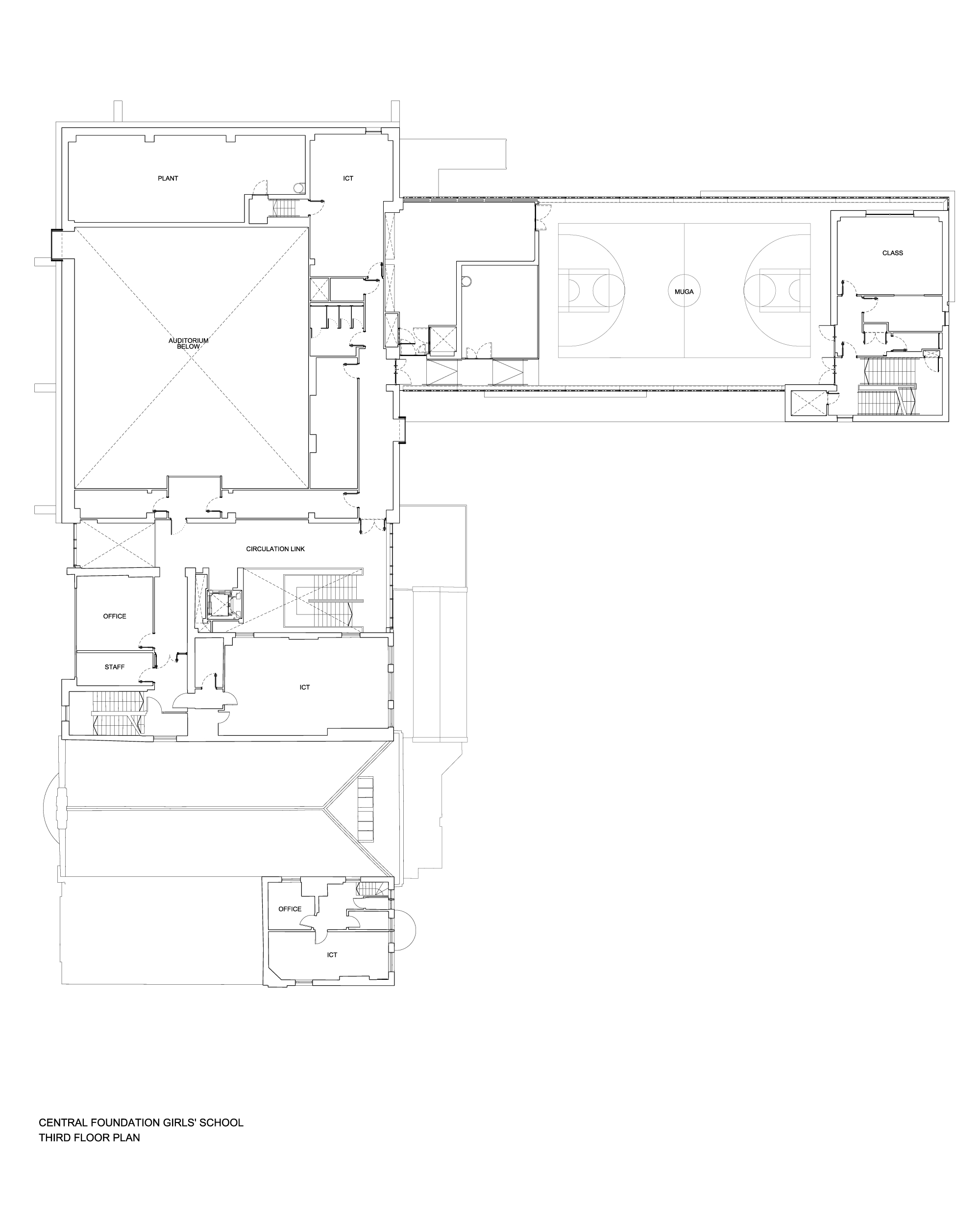
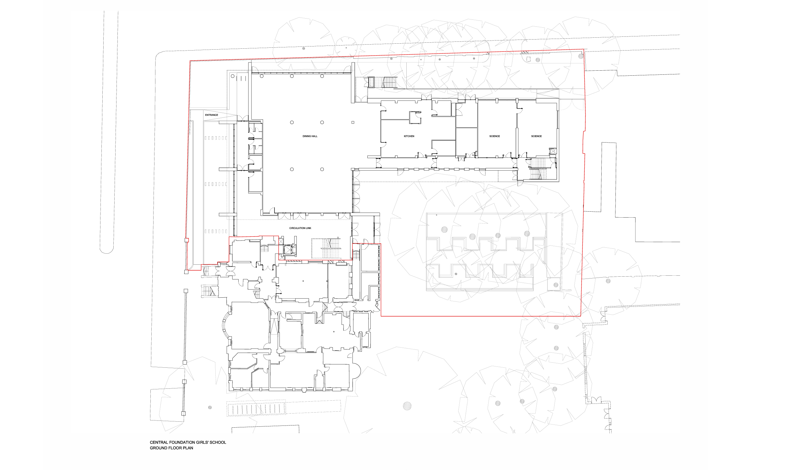
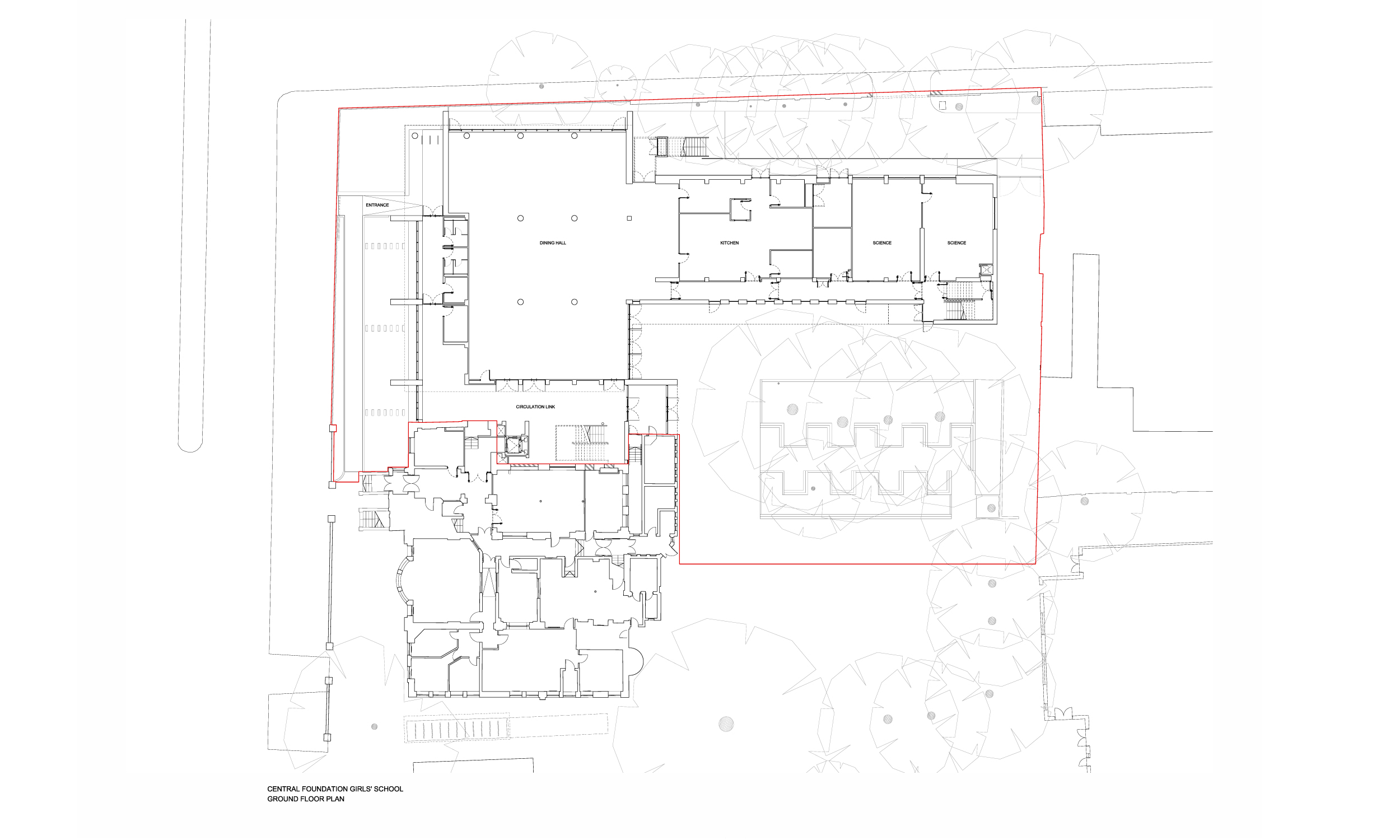
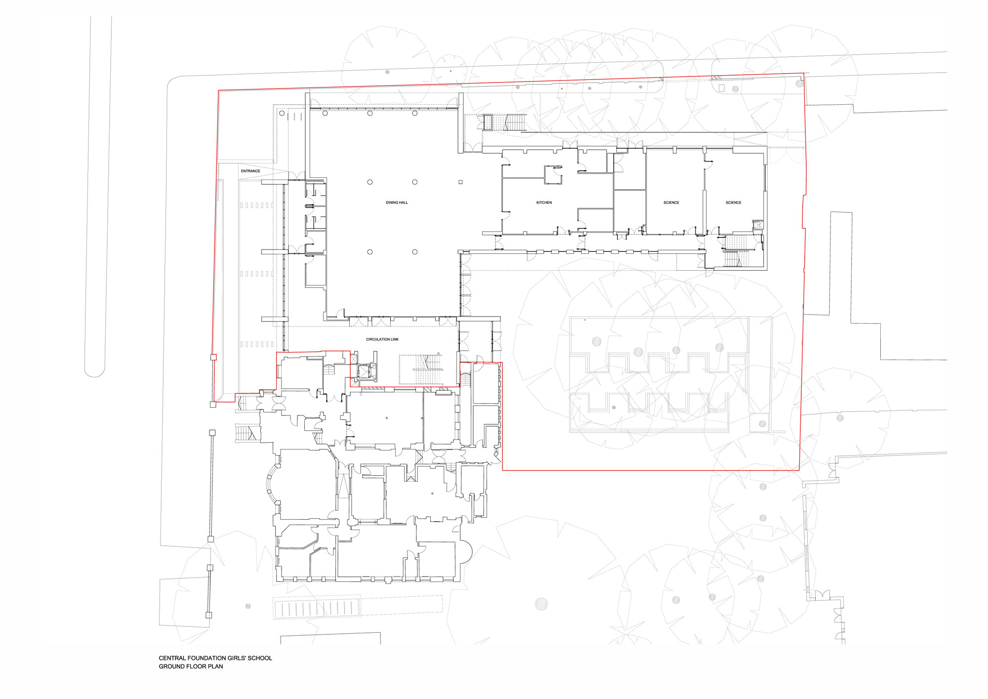
Rund 1400 elf- bis 18-jährige Schülerinnen besuchen derzeit die Central Foundation Girls’ School, deren Schulcampus fast einen ganzen Straßenblock im Osten Londons einnimmt. Und doch reichten ihre Räumlichkeiten bislang nicht aus, um auch den Abschlussklassen adäquate Lernbedingungen zu bieten. Sie wurden bisher in einer recht baufälligen Außenstelle der Schule unterrichtet.
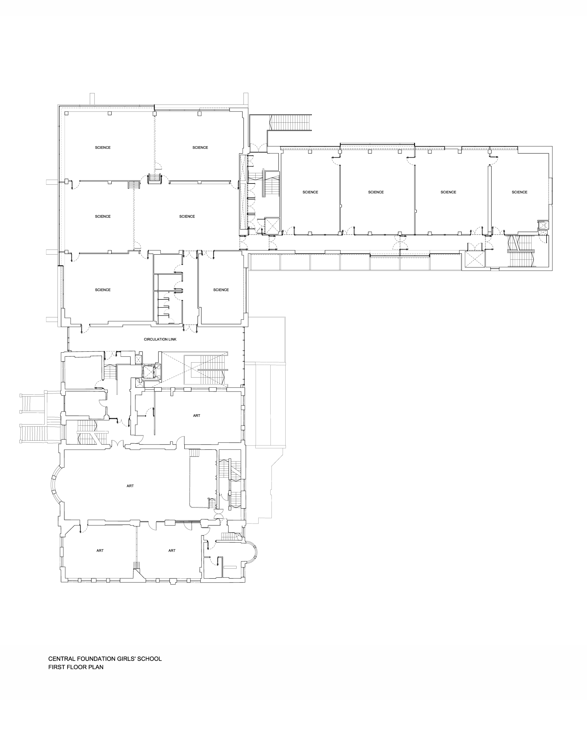
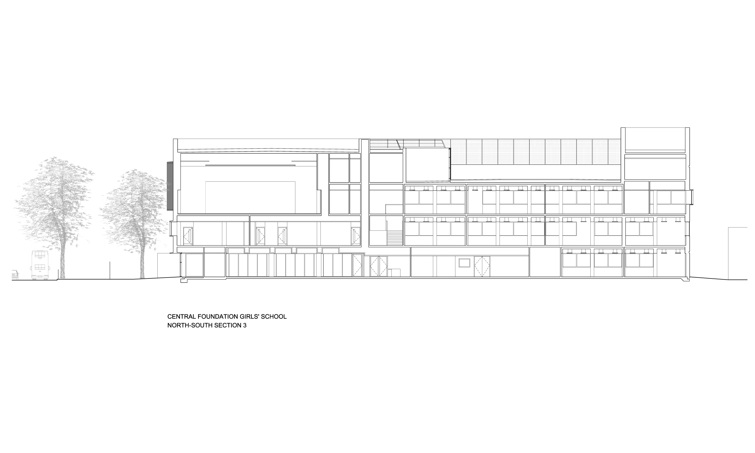
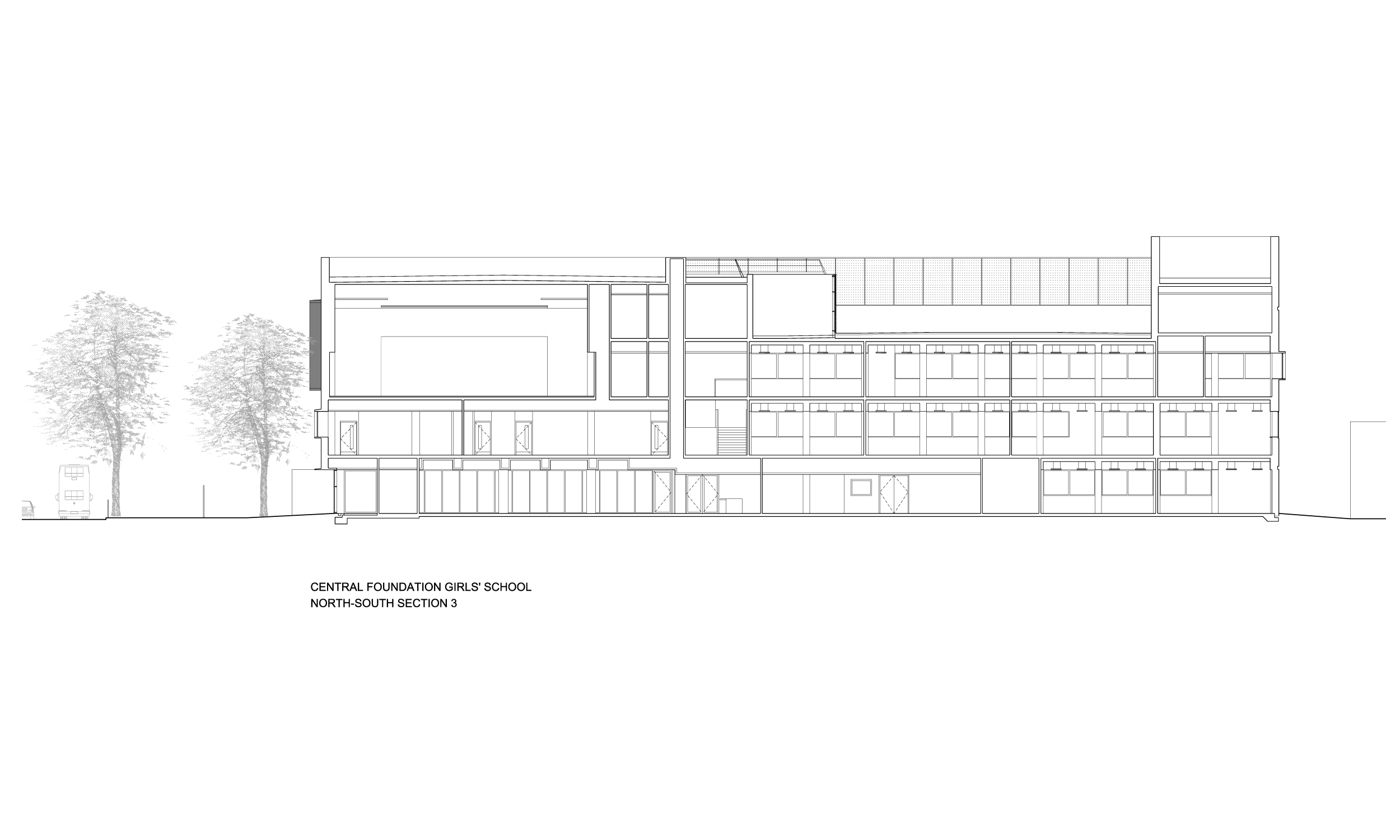
Mit dem Erweiterungsbau von Patel Taylor haben auch sie künftig teil am Schulbetrieb an der Bow Road. Die Architekten haben ein denkmalgeschütztes Bestandsgebäude aus den 30er-Jahren für den Kunst- und Computerunterricht instandgesetzt und ihm zwei Neubauten mit Fachräumen für Naturwissenschaften, Mensa, Aula und Dachterrasse mit Fußballfeld zur Seite gestellt. Als „Visitenkarte“ der Schule dient künftig zweifellos der auskragende Ziegelkubus an der Straßenecke, der mit der Mensa und der Aula die beiden größten Raumvolumina beherbergt. Seine von hellen Putzbändern gegliederten Ziegelfassaden sind in Material und Farbe auf die Kalkstein- und Ziegelfassaden des Altbaus abgestimmt. Eine Glasfuge trennt Alt und Neu und verbindet beide Gebäude zugleich mit einem neuen Treppenhaus.
Mit seiner kubischen Form schlägt das Eckgebäude zugleich die Brücke zu dem flachen, weiß verputzten Neubau für den Naturwissenschaftsunterricht in der Coborn Street. Auf seinem Dach verfügen die Oberstufenschülerinnen über einen eigenen Pausenraum sowie eine Dachterrasse für Ballspiele.
Adressbildung und Rückzugsraum: die Erweiterung der Phoenix School
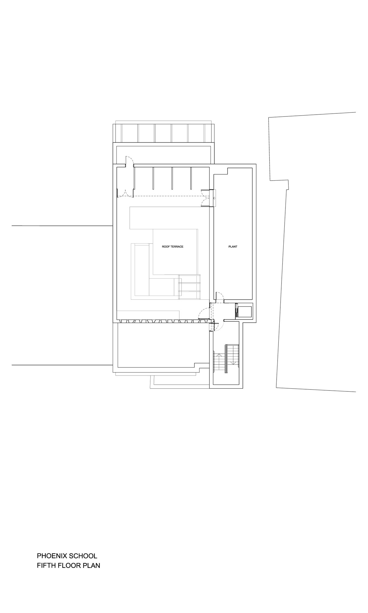
Deutlich kleiner ist mit nur 150 Schülern die Phoenix School in der Bow Street. Auch ihr Hauptgebäude – es stammt aus dem Jahr 1952 – steht unter Denkmalschutz. Hier lautete die Aufgabe der Architekten, ein neues Eingangs- und Unterrichtsgebäude zu entwerfen, über das alle Ebenen der Schule barrierefrei zugänglich sein sollten. Der vertikal gegliederte Kopfbau von Patel Taylor vermittelt zwischen dem viergeschossigen Bestandsgebäude und den höheren Nachbargebäuden. Helle Ziegelmauern rahmen die von farbigen Lisenen gegliederte Curtain-Wall-Fassade der Obergeschosse und grenzen sie zugleich von den Nachbarn im Nordosten ab.
Im Inneren des Erweiterungsbaus befinden sich Direktionsbüro, Sekretariat, Lehrerzimmer sowie mehrere Klassenzimmer und ein Raum für Theateraufführungen. Ganz obenauf liegt auch hier eine Dachterrasse, die freilich – anders als in der Mädchenschule – weniger als Sportfläche und vielmehr als begrünte Oase und Rückzugsraum angelegt ist.




































