Unter einem Dach
Bildungszentrum in Parma von Enrico Molteni
Beim Bildungszentrum handelt es sich um einen eingeschossigen Holzpavillon. © Marco Cappelletti, courtesy of Enrico Molteni Architecture
Beim Entwurf eines 2450 m² großen Bildungszentrums auf dem Universitätscampus im Süden Parmas wurden verschiedene Nutzungen unter einem Dach zusammengeführt. Der von Enrico Molteni entworfene Komplex besteht aus zwei gespiegelten Gebäudeteilen, die miteinander verbunden sind. Ein Teil dient als Kinderkrippe und Kindergarten, während der gegenüberliegende Zwilling verschiedene Einrichtungen zur Förderung gefährdeter Kinder beherbergt.


Die beiden quadratischen Baukörper formen einen gemeinsamen Innenhof. © Marco Cappelletti, courtesy of Enrico Molteni Architecture
Aus zwei mach eins
Von außen ist die Zweiteilung nicht zu sehen: Der Bau präsentiert sich als eingeschossiger Holzpavillon mit transparentem Erscheinungsbild. Große umlaufende Glasfassaden bieten einen fließenden Übergang zwischen Drinnen und Draußen. Gleichzeitig sorgt die Offenheit für eine Betonung der Tragstruktur, die sich aus einer filigranen Dachscheibe und leicht geneigten Stützen zusammensetzt. Letztere sind aus Brettsperrholz gefertigt und definieren einen 5 m hohen, umlaufenden Vorbereich als Übergang zwischen Campus und Gebäude. Dabei dient die Neigung der Stützen als Aussteifung, um Auskreuzungen zu vermeiden.


Im Inneren ist der lichtdurchflutete Bau von Erschließungsachsen durchzogen. © Marco Cappelletti, courtesy of Enrico Molteni Architecture
Durchdachte Symmetrie
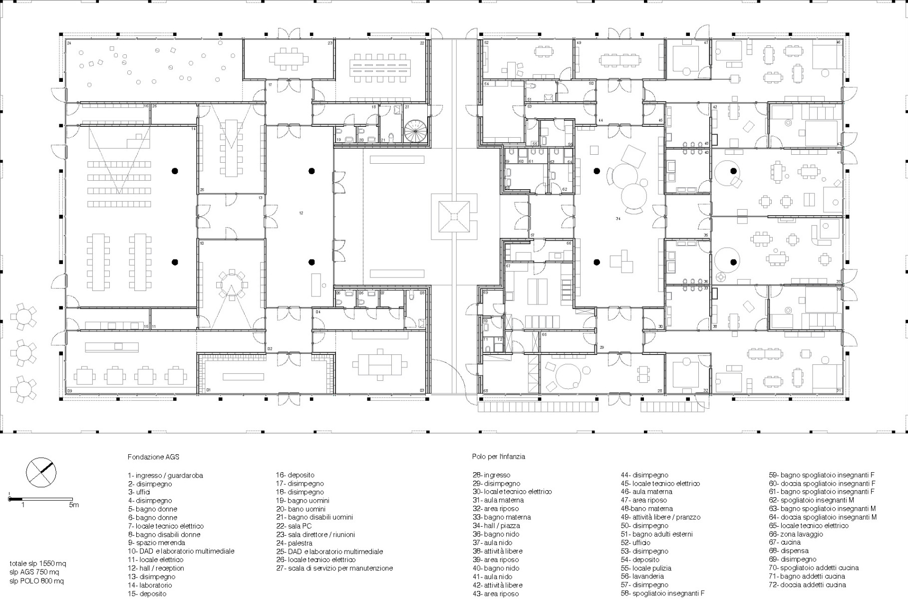
Die zwei quadratischen Baukörper des Holzpavillons formen einen gemeinsamen Innenhof. Er bildet das Verbindungselement zwischen den beiden Gebäudeteilen und kann als Außenklassenzimmer oder als Ort des Austauschs genutzt werden. Im Inneren sind die insgesamt 72 Räume als gerastertes Puzzle organisiert. Die Positionierung der Glastüren erzeugt visuelle Achsen durch die Gebäudeteile hindurch und schafft so eine zusätzliche Verbindung. Dazu trägt auch der durchlaufende Bodenbelag aus grauem PVC, die aus Holzfasern gefertigten Akustikdecken und die abgehängte Gitterdecke aus Aluminium bei. So entsteht eine Einheit in der Vielfalt, die komplexe Nutzungsszenarien ermöglicht.
Architektur: Enrico Molteni
Bauherr: Universität Parma, Fondazione Accademia dei Giorni Straordinari
Standort: Parma (IT)














