// Check if the article Layout ?>
Bindeglied aus Cortenstahl: Wohnquartier Alte Feuerwache
Foto: Ralf Buscher
Auf der einen Seite steht der historische Warleberger Hof, Kiels Stadtmuseum mit Ziegelmauerwerk und sichtbarem Fachwerk. Auf dem Areal daneben entstehen moderne Wohnhäuser mit fünf Geschossen, Loggien und Flachdach. Die Neubauten des Wohnquartiers Alte Feuerwache schließen sich mit ihrem Ziegelmauerwerk und der sich graduell steigernden Geschosszahl zwar logisch an die Altstadt an, dennoch unterscheiden sich die beiden Bebauungsarten deutlich voneinander.
Der vollständig mit Cortenstahl verkleidete Solitär am südlichen Zugang des Areals soll einerseits den potenziellen Konflikt beilegen und andererseits einen eigenständigen Akzent setzen. An der öffentlichsten Ecke führen drei lange, flache Stufen zur bodentief verglasten Erdgeschossebene. Hier sehen BLK2 Architekten ein Café als soziales Zentrum des neuen Quartiers vor. Der raue Charakter der Fassade erinnert an die Geschichte der Schiffsbauindustrie in Kiel, während das Satteldach eine eindeutige Hommage an die Altstadtbebauung ist.
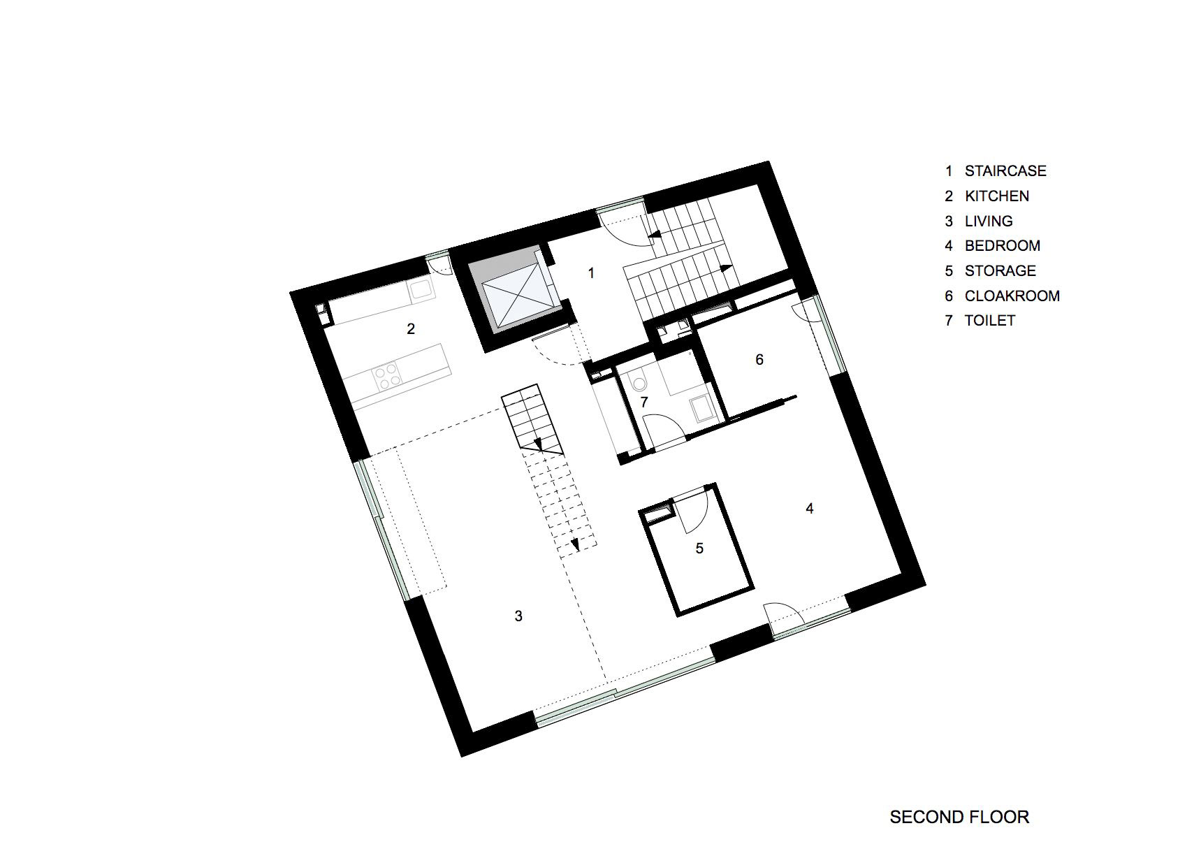
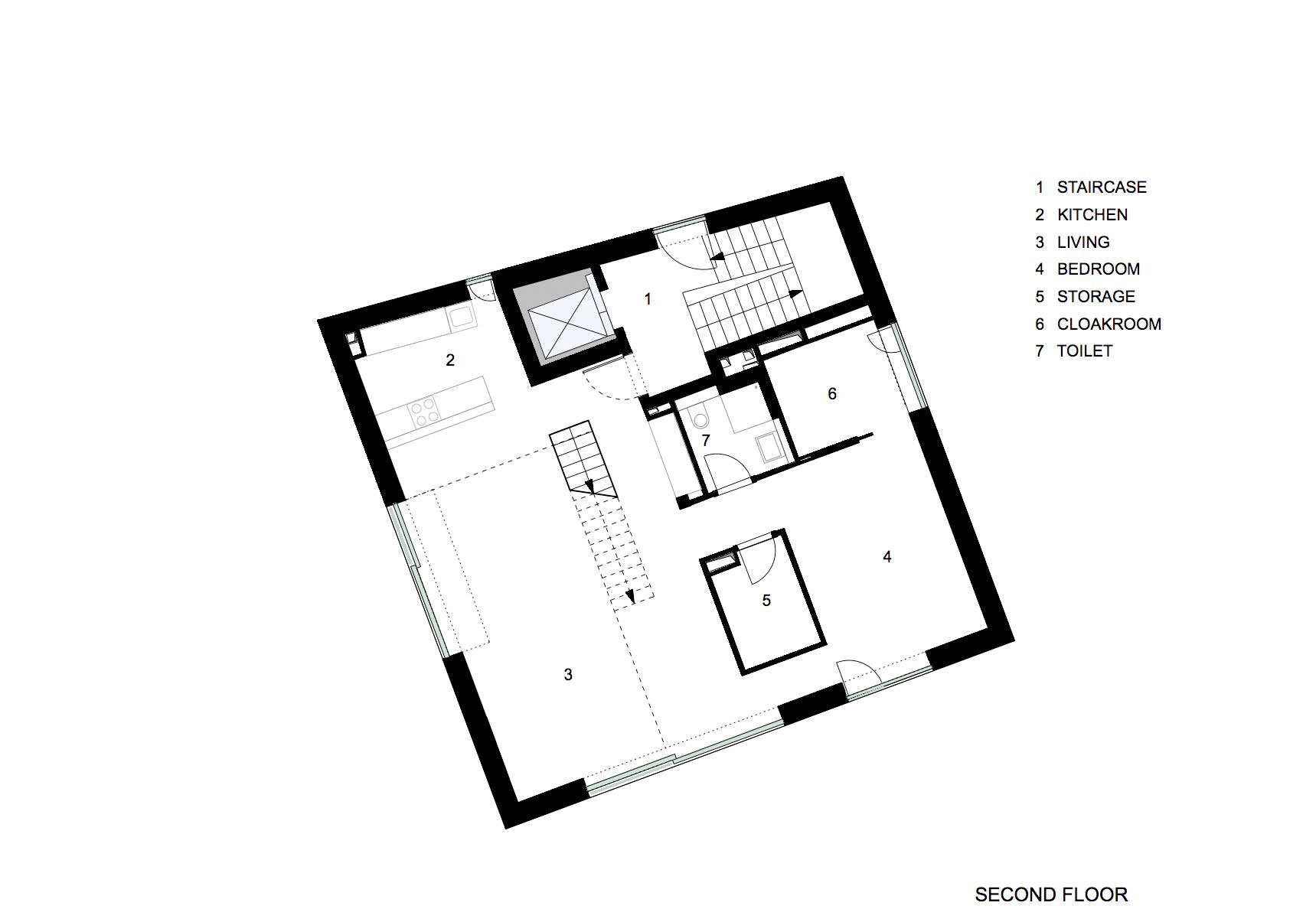
Nicht nur die äußere Gestalt, sondern auch das Raumprogramm versetzt das Haus in eine exponierte Lage im Quartier. Während auf den anderen Grundstücken Mehrfamilienhäuser, Stadthäuser und Studentenwohnungen entstanden, befinden sich in den drei Obergeschossen des Cortenstahlhauses zwei Loftwohnungen.
Der Zugang zu den Wohnungen befindet sich auf der Nordseite abseits der Terrasse der Gewerbeeinheit. Beide Wohnungen sind im Grundriss sehr großzügig mit offenem Wohnraum gestaltet. Die Maisonette im zweiten Obergeschoss verfügt sogar über ein zweigeschossiges Wohnzimmer. Eine Stahltreppe führt auf die Galerieebene unter dem Satteldach, wo ein zweites Schlafzimmer mit Bad Platz findet.


















