Blasenartige Fenster: MOCAA Museum in Kapstadt
Foto: Iwan Baan
Spätestens seit der Documenta 11 von Okwui Enwezor im Jahr 2002 wandelt sich der Blick auf die Kunst außerhalb der westlichen Kultur, werden Künstler aus Afrika als gleichrangig von der Kunstszene wahrgenommen. Im August 2016 eröffnete der damalige US-Präsident Brack Obama das von David Adjaye geplante National Museum of African American History and Culture mitten auf der Washington Mall. Bei der internationalen Kunstmesse Art Paris Art Fair im renommierten Grand Palais war in diesem Frühjahr Afrika mit einer Auswahl seiner zeitgenössischen Künstler »Guest of Honour«.
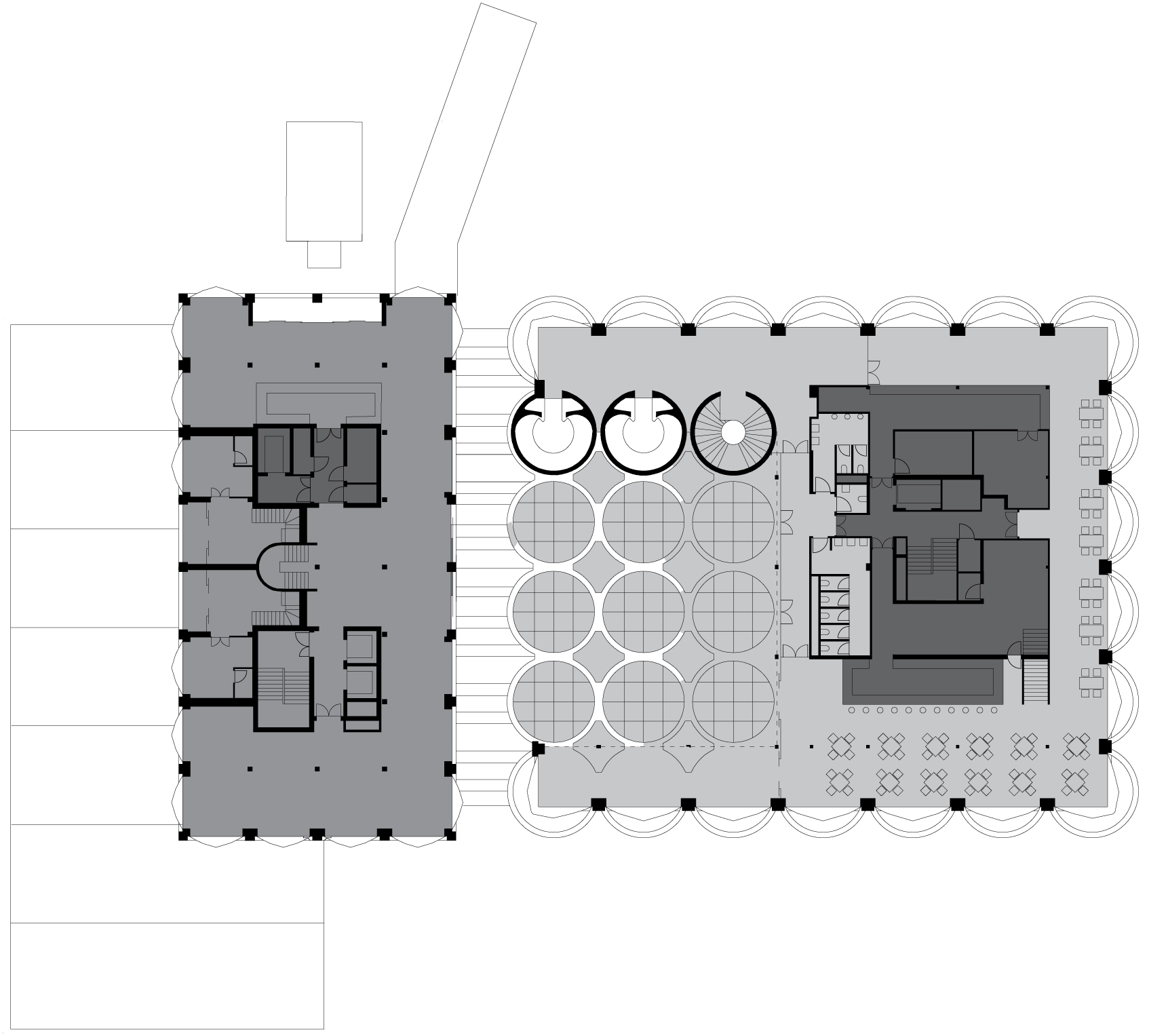
Mit 6000 m2 Ausstellungsfläche in 80 Galerieräumen ist das Museum of Contemporary African Art MOCAA in Kapstadt jedoch das weltweit größte Museum seiner Art. Nachdem das Gebäude in den 1990er-Jahren nicht mehr als Getreidespeicher gebraucht wurde, beauftragte der Eigentümer, die Victoria & Alfred Waterfront, das Entwurfsteam von Heatherwick Studio, eine neue Nutzung für das Grundstück zu finden. Gleichzeitig suchte die Zeitz Foundation nach einem permanenten Ausstellungsort für ihre Sammlung zeitgenössischer Kunst aus allen Regionen Afrikas sowie der Diaspora. Heute bildet das Museum den kulturellen Mittelpunkt des lebendigen, zu einem Touristenmagneten umstrukturierten Hafengebiets.
Die architektonische Umsetzung ist genauso unkonventionell wie die anderen Bauten des britischen Designers. Ausgangspunkt der Idee war ein riesiges einzelnes Getreidekorn, das als Hohlkörper das Herz des Gebäudes bildet. Heatherwick Studio höhlten den 27 Meter hohen Block aus 42 Betonröhren mit einem Durchmesser von je sechs Meter zu einem großen Atrium aus, von dem aus die Galerieräume zugänglich sind. Da die Wandstärke nur 17 cm betrug , mussten die Zylinder auf der Innenseite mit einer Schicht aus 42 cm dickem Stahlbeton aufgedoppelt werden, um bei dem Aushöhlvorgang nicht in sich zusammenzubrechen. Die unterschiedliche Haptik der polierten neuen Oberflächen und des rauen Bestandsbetons trägt zusätzlich zum spannungsreichen Raumeindruck bei.
Die Galerieräume sind dagegen konventionelle Raumkuben, die sich vom Untergeschoss bis zur Dachterrasse im 7. Obergeschoss fortsetzen. Ab hier sind die bestehenden Stahlbetonwände zu einem orthogonalen Gerüst aufgesägt, dessen Öffnungen mit prismatischen Verglasungen gefüllt sind. Venezianische Leuchten dienten hier als Vorbild. Im Gegensatz zu konventionellen orthogonalen Pfosten und Riegeln ordnen sich die orientalisch inspirierten Diagonal-Muster harmonisch in die ebenfalls prismatische Geometrie der Innenraumgestaltung ein. In den höheren Geschossen ermöglichen sie den Gästen der 28 Zimmer des Luxushotels »The Silo« einen fantastischen Blick auf das Meer und den Tafelberg.

















