// Check if the article Layout ?>
Bodenständiger Luxus: Wohnhaus in Andělská Hora
Foto: BoysPlayNice
Das Haus, das Vit Máslo und David Richard Chisholm als Zweitwohnsitz für einen wohlhabenden Bauherren entwarfen, steht nur rund sechs Kilometer außerhalb des berühmten Kurorts Karlovy Vary (deutsch Karlsbad) im Nordwesten Tschechiens. Mit dessen mondäner Atmosphäre hat das Gebäude indessen so gut wie nichts gemeinsam. In Form und Materialwahl gibt sich der Neubau betont bodenständig und traditionsbewusst: ein einfaches Satteldach mit einer langen Reihe Dachfenster, Dachflächen und Längsfassaden mit Stehfalzdeckung aus Titanzinkblech, Giebelfronten aus beflammtem Fichtenholz und seitliche Anbauten mit Cortenstahlfassaden sind seine hervorstechendsten Merkmale.
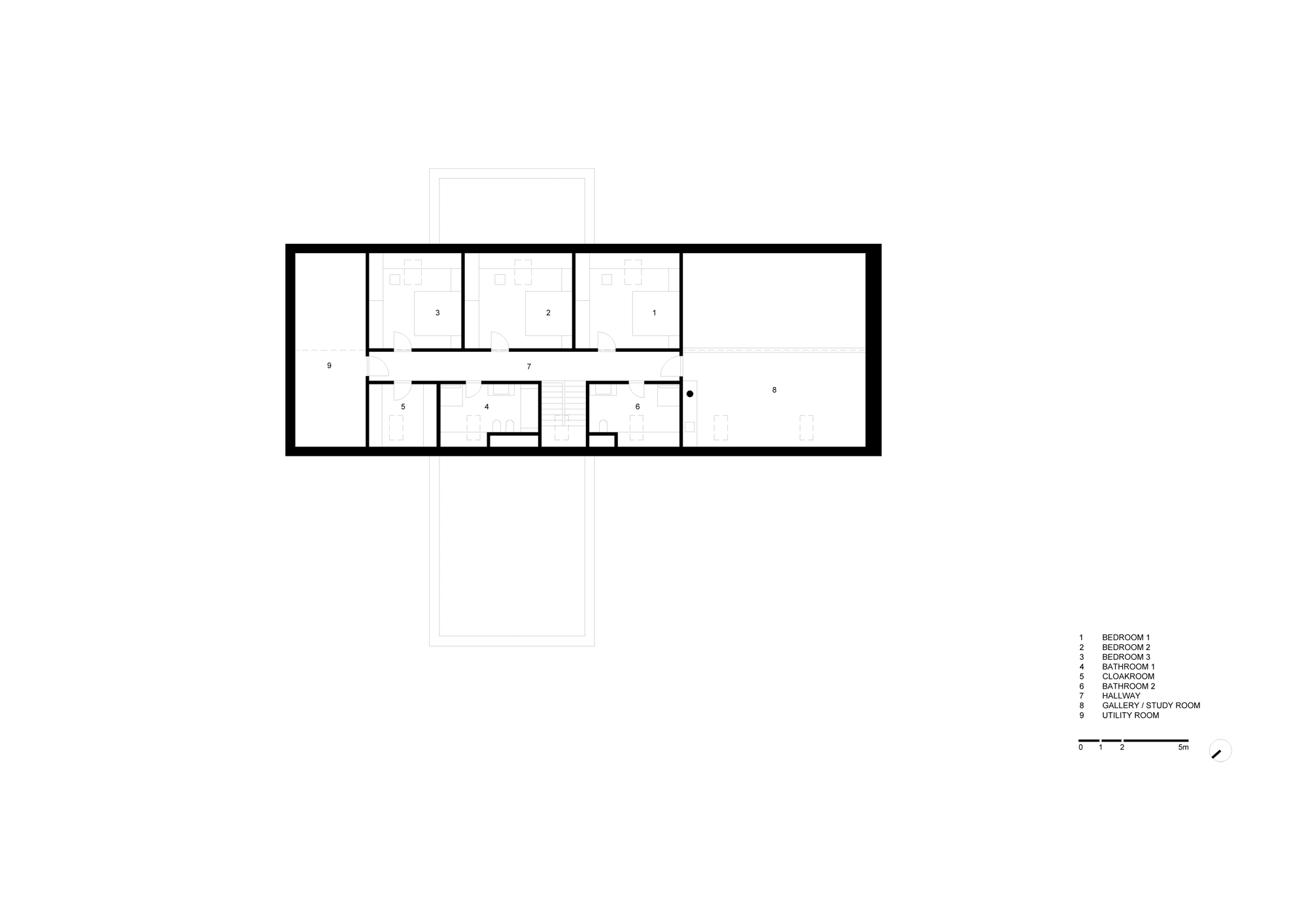
Das gut 2100 m2 große Grundstück wird von einer Straße aus Nordosten erschlossen und fällt leicht nach Südwesten hin ab. Nur wenige Hundert Meter entfernt erhebt sich die Ruine der mittelalterlichen Engelsburg, Keimzelle des Ortes, auf einem schroffen Bergkegel. Der eingeschossige, flach gedeckte Querflügel, der dem scheunenartigen Langhaus gleichsam untergeschoben ist, gliedert das Grundstück in eine Zufahrt an der Straße im Norden und einen Privatgarten mit Pool im Westen. Er beherbergt das Schlafzimmer, das Bad und das Arbeitszimmer des Hausherren. Im Erdgeschoss des Haupttrakts befinden sich die Garage sowie der offene Koch- und Essbereich mit leicht ins Gebäudevolumen eingerückter Glasfassade. Davor leitet eine überdachte Holzterrasse in den Garten und zum Pool über. Im Obergeschoss befinden sich drei Gästezimmer, zwei weitere Bäder und eine offene Galerie über dem Wohnraum, die ebenfalls als Rückzugs- und Arbeitsort genutzt werden kann. Insgesamt bringt es das Haus so auf fast 350 m2 Fläche.
Die Innenräume sind weitgehend monochrom gehalten. Dunkle Holzböden, dunkles Holzmobiliar und ein Kaminblock aus geschwärztem Stahlblech kontrastieren mit den weißlasierten Holzoberflächen der Wände und des Daches. Dekorative Leuchten aus böhmischem Kristallglas bilden im Eingangsbereich und im Wohnraum einen zurückhaltenden, aber wirkungsvollen Blickfang.
Da der Bauherr explizit eine Holzkonstruktion wünschte, ließen die Architekten Außenwände und Dachflächen aus 80 bis 100 mm starken Brettsperrholzelementen anfertigen. Die Innentrennwände wurden teils als Trockenbaukonstruktion mit Gipskartonbeplankung hergestellt. Die Terrassendielen bestehen aus tropischem Ipéholz. Sowohl das Haus als auch der ihm vorgelagerte Swimmingpool werden mit einer Wärmepumpe beheizt.
Das gut 2100 m2 große Grundstück wird von einer Straße aus Nordosten erschlossen und fällt leicht nach Südwesten hin ab. Nur wenige Hundert Meter entfernt erhebt sich die Ruine der mittelalterlichen Engelsburg, Keimzelle des Ortes, auf einem schroffen Bergkegel. Der eingeschossige, flach gedeckte Querflügel, der dem scheunenartigen Langhaus gleichsam untergeschoben ist, gliedert das Grundstück in eine Zufahrt an der Straße im Norden und einen Privatgarten mit Pool im Westen. Er beherbergt das Schlafzimmer, das Bad und das Arbeitszimmer des Hausherren. Im Erdgeschoss des Haupttrakts befinden sich die Garage sowie der offene Koch- und Essbereich mit leicht ins Gebäudevolumen eingerückter Glasfassade. Davor leitet eine überdachte Holzterrasse in den Garten und zum Pool über. Im Obergeschoss befinden sich drei Gästezimmer, zwei weitere Bäder und eine offene Galerie über dem Wohnraum, die ebenfalls als Rückzugs- und Arbeitsort genutzt werden kann. Insgesamt bringt es das Haus so auf fast 350 m2 Fläche.
Die Innenräume sind weitgehend monochrom gehalten. Dunkle Holzböden, dunkles Holzmobiliar und ein Kaminblock aus geschwärztem Stahlblech kontrastieren mit den weißlasierten Holzoberflächen der Wände und des Daches. Dekorative Leuchten aus böhmischem Kristallglas bilden im Eingangsbereich und im Wohnraum einen zurückhaltenden, aber wirkungsvollen Blickfang.
Da der Bauherr explizit eine Holzkonstruktion wünschte, ließen die Architekten Außenwände und Dachflächen aus 80 bis 100 mm starken Brettsperrholzelementen anfertigen. Die Innentrennwände wurden teils als Trockenbaukonstruktion mit Gipskartonbeplankung hergestellt. Die Terrassendielen bestehen aus tropischem Ipéholz. Sowohl das Haus als auch der ihm vorgelagerte Swimmingpool werden mit einer Wärmepumpe beheizt.
Weitere Informationen:
Mitarbeiter: Jan Hrebicek, Dan Simpach, Gabriela Sekyrova
Bauunternehmen: Baustav a.s.
Innenausbau: Alnus s.p.o.l
Bauunternehmen: Baustav a.s.
Innenausbau: Alnus s.p.o.l





























