Historie respektvoll belebt
Boltshauser Architekten gewinnen Wettbewerb für Dokumentationszentrum
Visualisierung Nord, © Studio Blomen
An der Hamburger Gedenkstätte für die deportierten Opfer des nationalsozialistischen Regimes soll ein neues Dokumentationszentrum errichtet werden. Mit einem offenen Gebäudeentwurf konnte das Schweizer Architekturbüro Boltshauser Architekten den Wettbewerb für sich entscheiden. Ab 2026 soll der Gedenk- und Lernort am ehemaligen Hannoverschen Bahnhof an die Deportation tausender Menschen erinnern.


Lageplan, © Boltshauser Architekten
Geschichtlicher Hintergrund
Während des zweiten Weltkrieges diente der Hannoversche Bahnhof als Deportationsort für die nationalsozialistisch verfolgten Hamburger und Norddeutschen. Bereits 2017 wurde der Gedenkort Denk.mal Hannoverscher Bahnhof eingeweiht. Heute erinnern hier Namenstafeln an mehr als 8000 Opfer der NS-Verbrechen. Ergänzend soll nun das Dokumentationszentrum als Lernort das Deportationsgeschehen in die Geschichte der nationalsozialistischen Verfolgung einbetten.
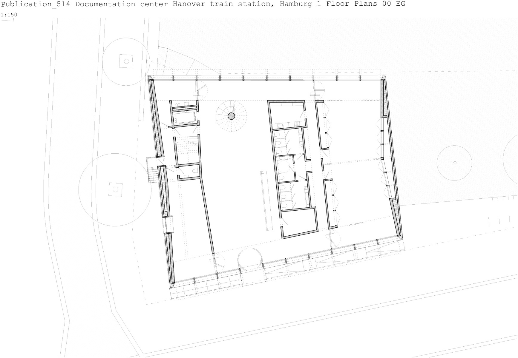
Städtebauliche Einfügung
Inmitten der heutigen Hafencity – dort wo ehemals das Zollhaus des Bahnhofes stand – markiert der Entwurf städtebaulich den nördlichen Eingang zum Lohsepark. Das Gebäude öffnet sich in Richtung des Parks und schafft so Sichtbezüge zum Lohseplatz, der den Mündungspunkt der historischen Gleise kennzeichnet.


Visualisierung Ausstellungsraum, © Studio Blomen
Einladender Lernort
Als Ort des Gedenkens der tausenden Opfer aus ganz Norddeutschland soll das neue Dokumentationszentrum die unterschiedlichsten Besucherinnen und Besucher ansprechen. Neben der Darstellung des Deportationsgeschehen soll auch über die Schicksale der Verfolgten in den aus Hamburg angefahrenen Konzentrations- und Vernichtungslagern berichtet werden.


Visualisierung Parkrichtung, © Studio Blomen
Raumprogramm
Der Entwurf von Boltshauser Architekten sieht ein zweigeschossiges Gebäude vor. Auf rund 1000 m² enthält das Dokumentationszentrum neben Ausstellungsflächen auch Seminar- und Arbeitsräume. Die Reduktion auf zentrale, sich gegenüberliegende Öffnungen schafft ruhige Räume, die Introvertiertheit und Ausblicke gleichermaßen zulassen.


Visualisierung Eingangsbereich, © Studio Blomen


Visualisierung Obergeschoss, © Studio Blomen
Material
Die Farbigkeit ähnelt der angrenzenden Lohsepark-Fuge. Lehmdecken sowie sandgestrahlte Betonwände im Außen- und Innenraum betonen den monolithischen Charakter des massiven Baukörpers. Ein Teil des Tragwerks soll aus wiederverwerteten Eisenbahnschienen bestehen und so auch im Gebäudeinneren die historische Bedeutung des Ortes verstärken.
Boltshauser Architekten haben sich besonders mit Bauten aus Lehm einen Namen gemacht. Bis zum 23. April zeigt eine Ausstellung in der Architekturgalerie am Weißenhof in Stuttgart einige der fertiggestellten Projekte des Büros.
Architektur: Boltshauser Architekten, Zürich (CH)
Bauherr: Herr Harm Müller-Spreer & Stiftung Hamburger Gedenkstätten und Lernorte
Standort: Lohsepark, Hamburg (DE)


















