Gemeinschaftliche Mischnutzung
Bradbury Werke in London von YN Studio
Bradbury Works in London von YN Studio, © French+Tye
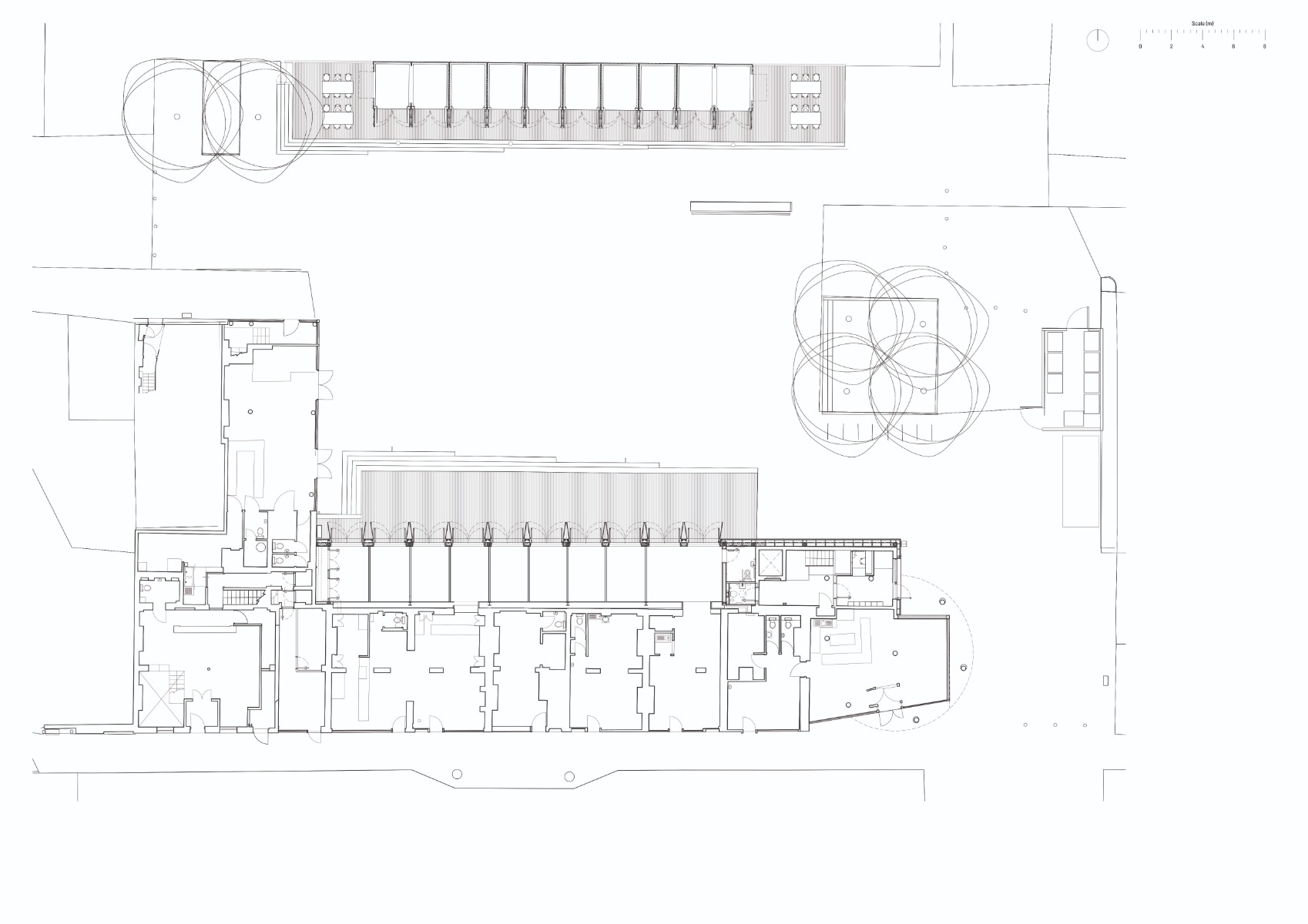
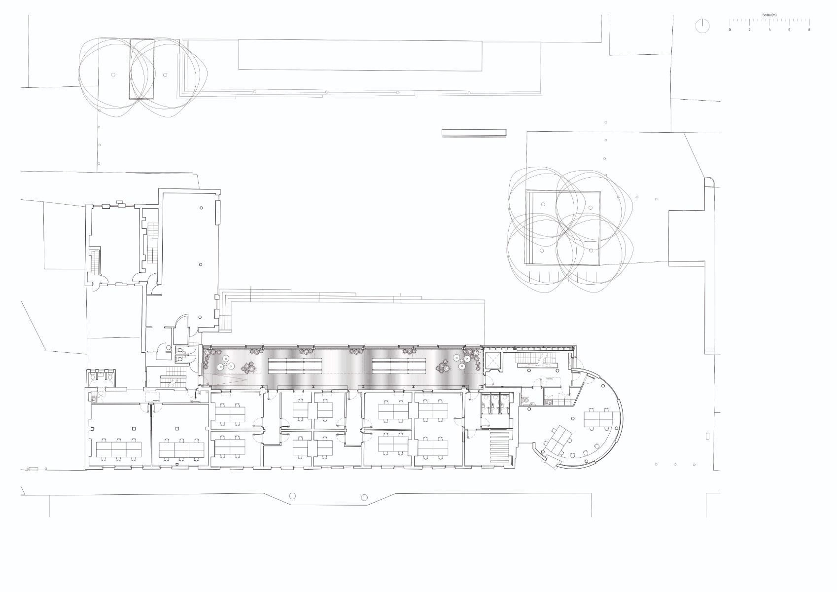
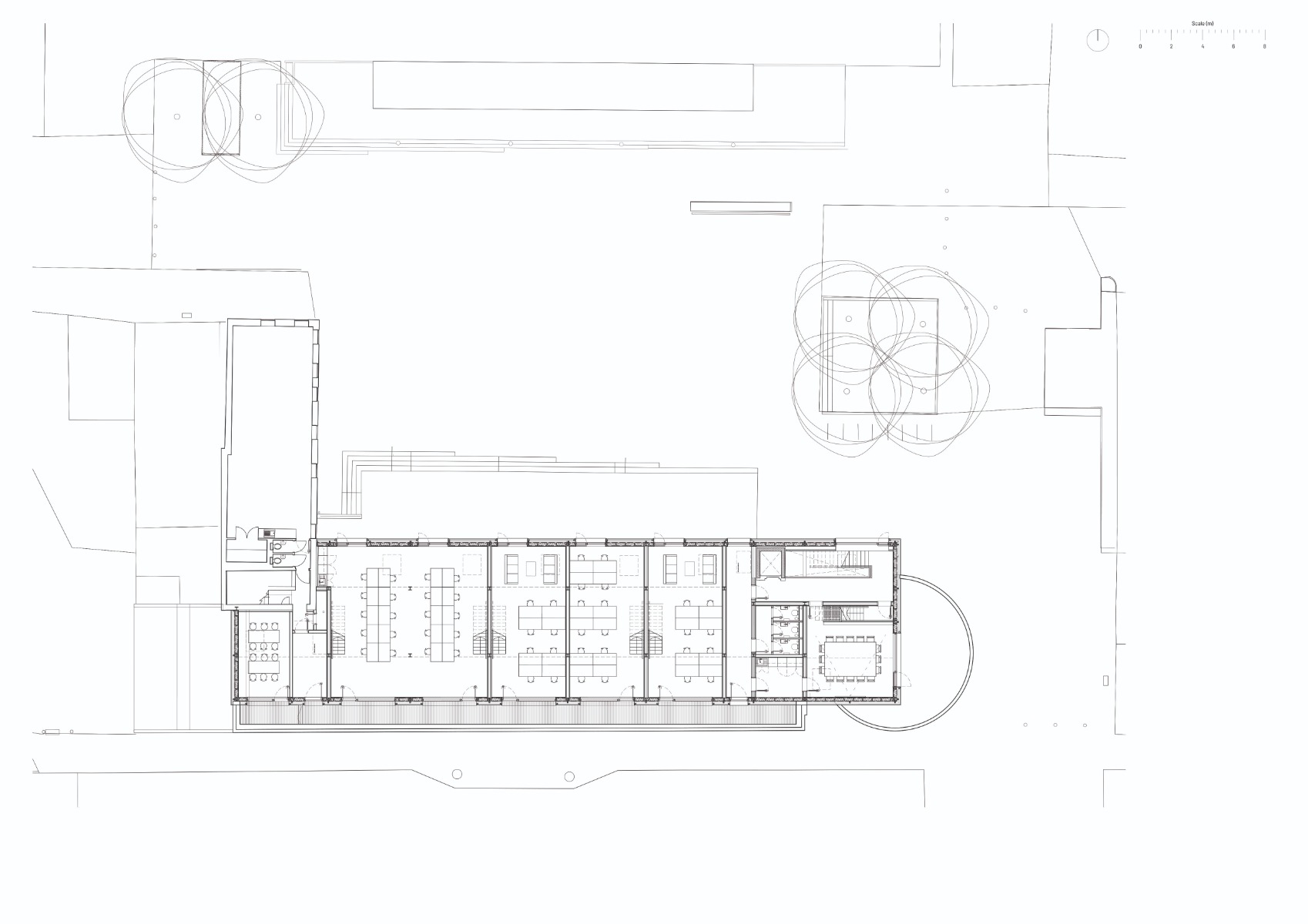
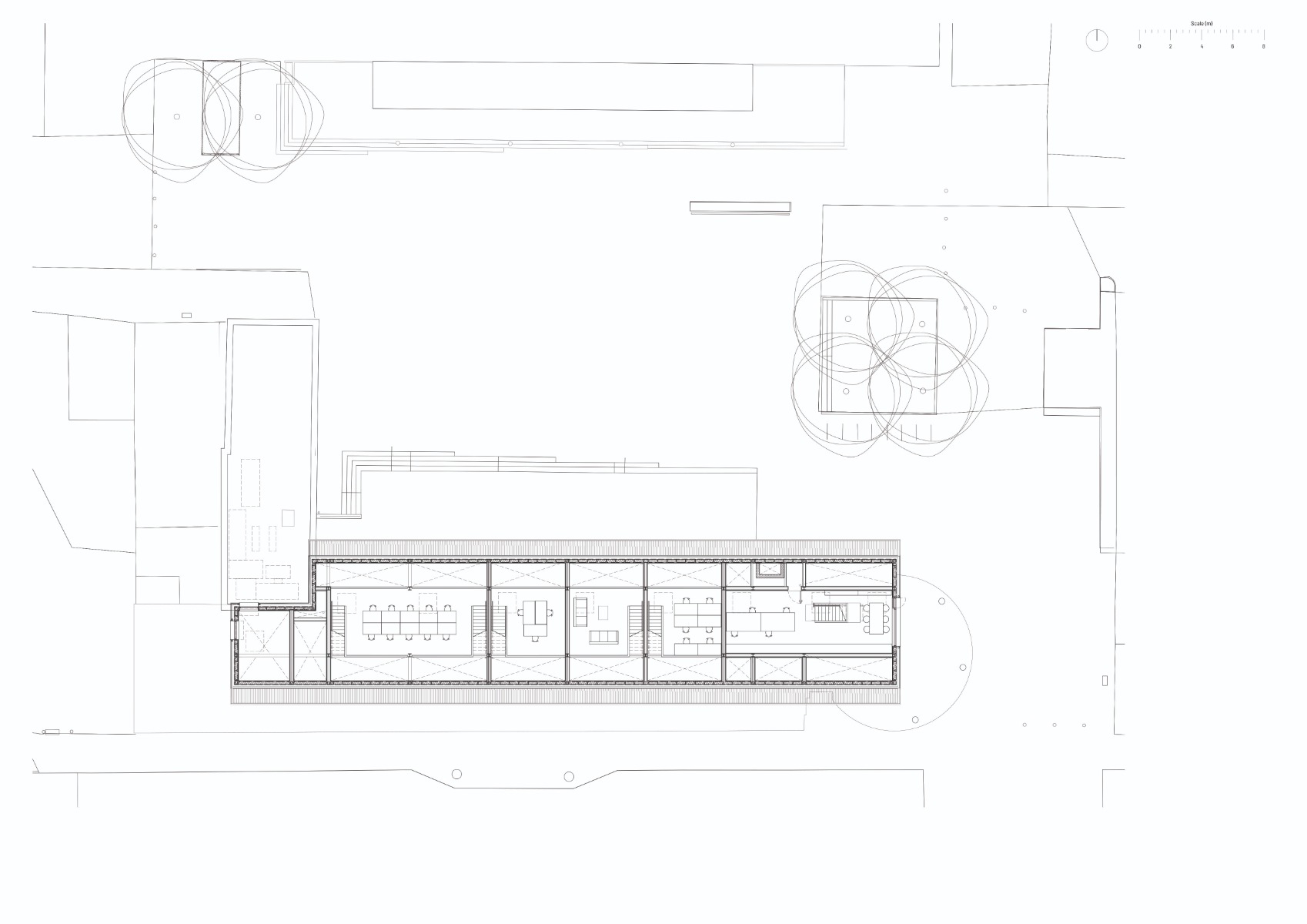
Bradbury Works liegt am Gillett Square, einem ehemaligen Parkplatz in Dalston, der sich in den letzten 20 Jahren zu einem lebendigen Treffpunkt des Londoner Randbezirks entwickelt hat. Beauftragt durch die lokale Stadtentwicklungsagentur Hackeney Cooperative Developments (HCD) hat das Architekturbüro YN Studio das Bestandsgebäude nun saniert und erweitert. Hier finden auf über 600 m² renovierter und 500 m² erweiterter Fläche Arbeit, Kultur und Einzelhandel ihren Platz.


Eingezogenes Zwischengeschoss unter dem neuen Satteldach, © French+Tye


Der ehemalige Laubengang ist heute Außenterrasse mit Blick auf den Gillet Square. © French+Tye
Gemischte Erweiterung
Wo einst das Dach und die Laubengänge lagen, entwickelt sich nun ein vorgesetzter Stahlrahmen mit Satteldach über die Bestandsstruktur. Die neuen platzseitigen Einzelhandelsflächen im Erdgeschoss sind vollständig mit öffenbaren Glasfronten versehen. Darüber liegt eine überdachte Außenterrasse. Die ehemalige Verkehrsfläche ist jetzt Aufenthaltsbereich und Pausenraum. In der dritten Etage befinden sich neue Arbeitseinheiten von 40 bis 65 m² mit privatem Zwischengeschoss. An der Straßenseite bleiben die bestehenden Geschäfte, Bars und Restaurants erhalten und bieten vom Jazzclub bis zum jamaikanischen Hühnchengeschäft ein diverses Angebot.
Schimmernder Kontrast
In Anlehnung an den industriellen Charakter des Vorgängerbaus wurde die ursprüngliche Mauerwerksfassade erhalten und saniert. Das Erdgeschoss und das Dach sind aufgrund der robusten und strapazierfähigen Eigenschaften in gewalztes Aluminium gehüllt, worüber sich die Fassade aus transluzenten Polycarbonat-Platten erstreckt.


Das bestehende Treppenhaus in neuen Farben, © French+Tye


Arbeitsräume zur individuellen Gestaltung, © French+Tye
Bunte Farbpalette
Für eine bessere Orientierung ist das bestehende Treppenhaus des Gebäudes in den Farben der CYMK-Palette eingefärbt. Die Farbigkeit der Wände steht für die Durchmischung der Mieter in dem Gebäude. Im Kontrast dazu sind die Arbeitsräume in gedeckten Tönen gehalten, um den Nutzerinnen die individuelle Gestaltung ihrer eigenen Räumlichkeiten zu überlassen.
Architektur, Innenarchitektur: YN Studio
Bauherr: Hackney Cooperative Developments
Standort: 3 Gillett Square, Bradbury St., Dalston, London (GB)
Tragwerksplanung: Engenuiti
Bauunternehmen: Vortex Interiors





















