Bank trifft Bahnhof
Bürogebäude in Altdorf von Buchner Bründler
Bürogebäude in Altdorf, © Rory Gardiner
Schlanke, außenliegende Fassadenstützen aus Beton prägen den Hauptsitz der Urner Kantonalbank am neuen Fernbahnhof im schweizerischen Altdorf.


18 m tief ist der Neubau in den Obergeschossen, im Erdgeschoss springt er auf nur 12 m Breite zurück. © Rory Gardiner
In den letzten Jahren wurde die 8500-Einwohner-Gemeinde Altdorf am Nordportal des neuen Gotthard-Basistunnels systematisch zum Knotenpunkt für den Bahnverkehr ausgebaut. Seit Ende 2021 halten hier auch Intercity-Züge auf ihrem Weg von Zürich nach Mailand. Damit schlug auch die Stunde für das unterdimensionierte alte Bahnhofsgebäude, das durch einen sechsgeschossigen Neubau von Buchner Bründler Architekten ersetzt wurde.
Verkehrsgünstiger Verwaltungsbau
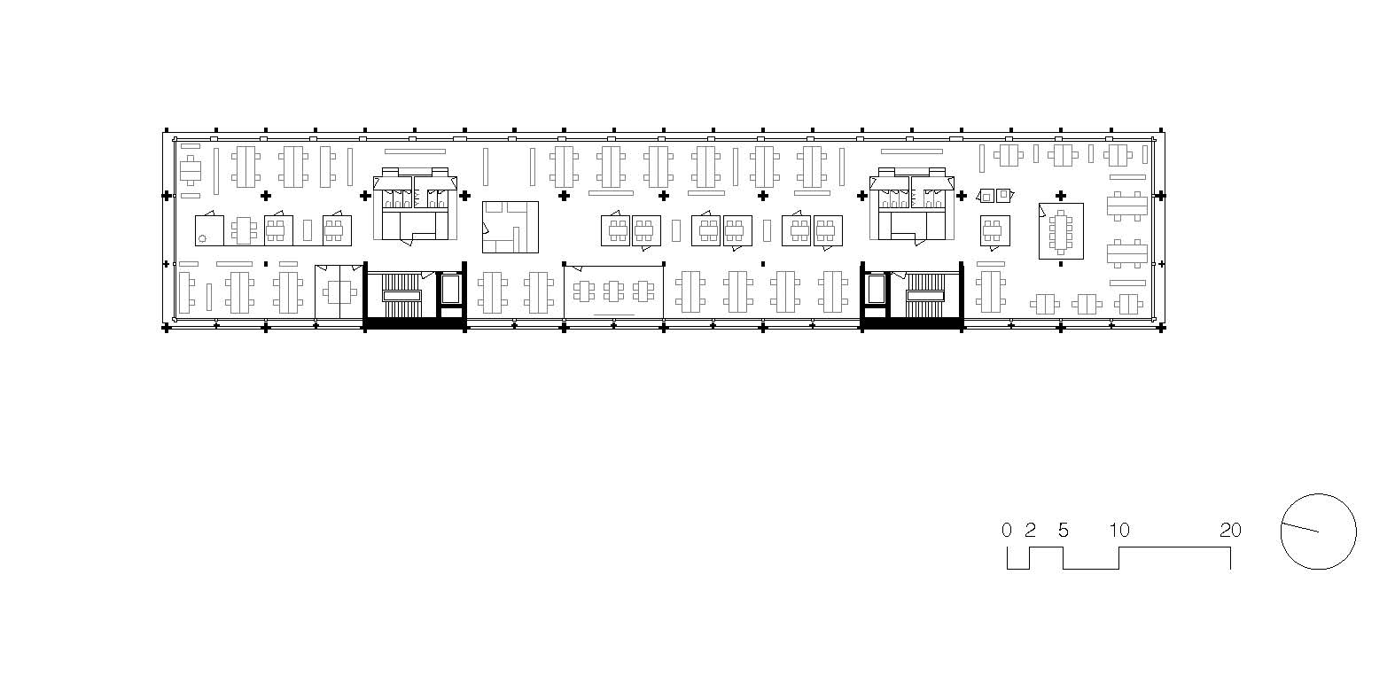
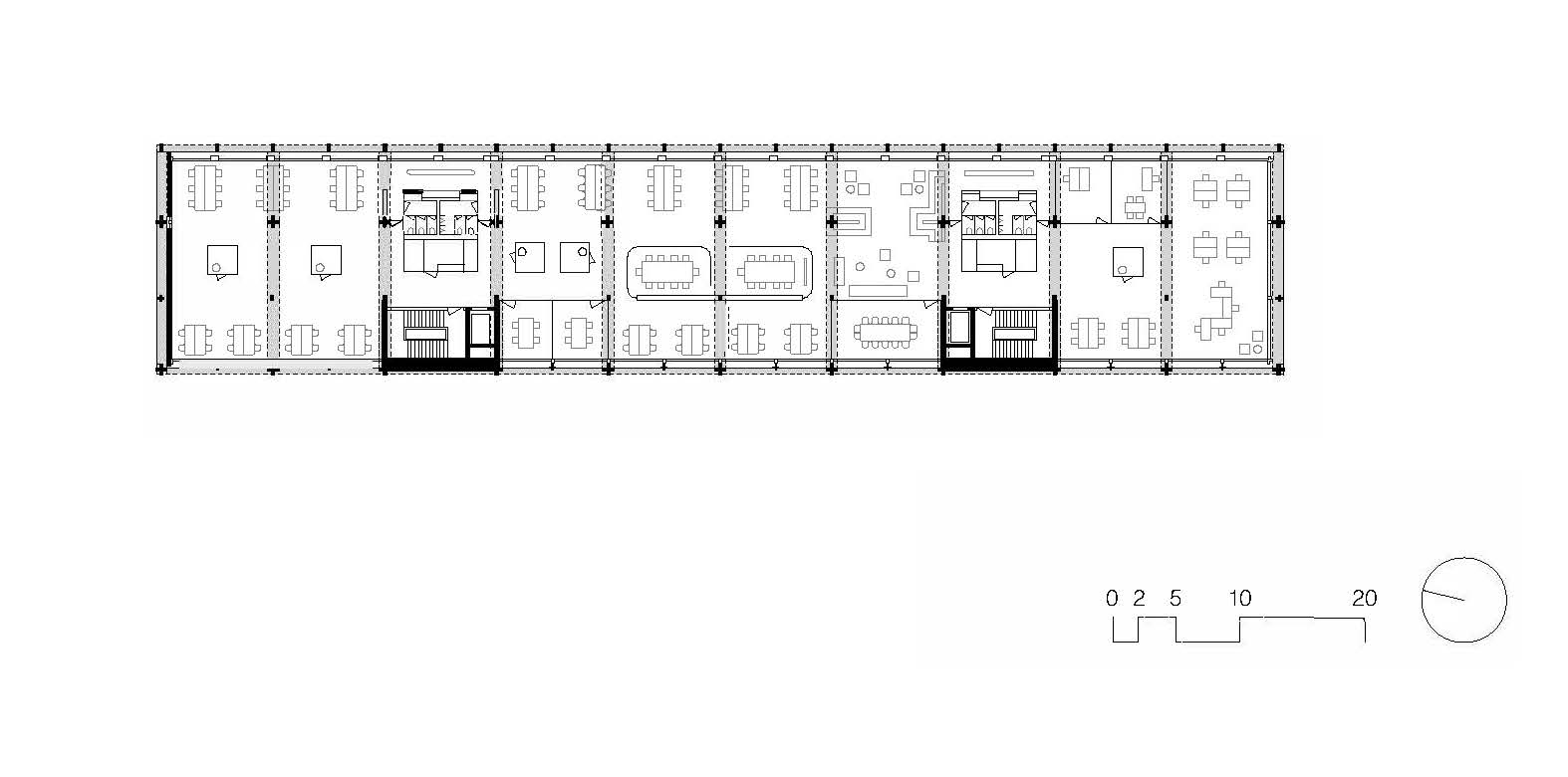
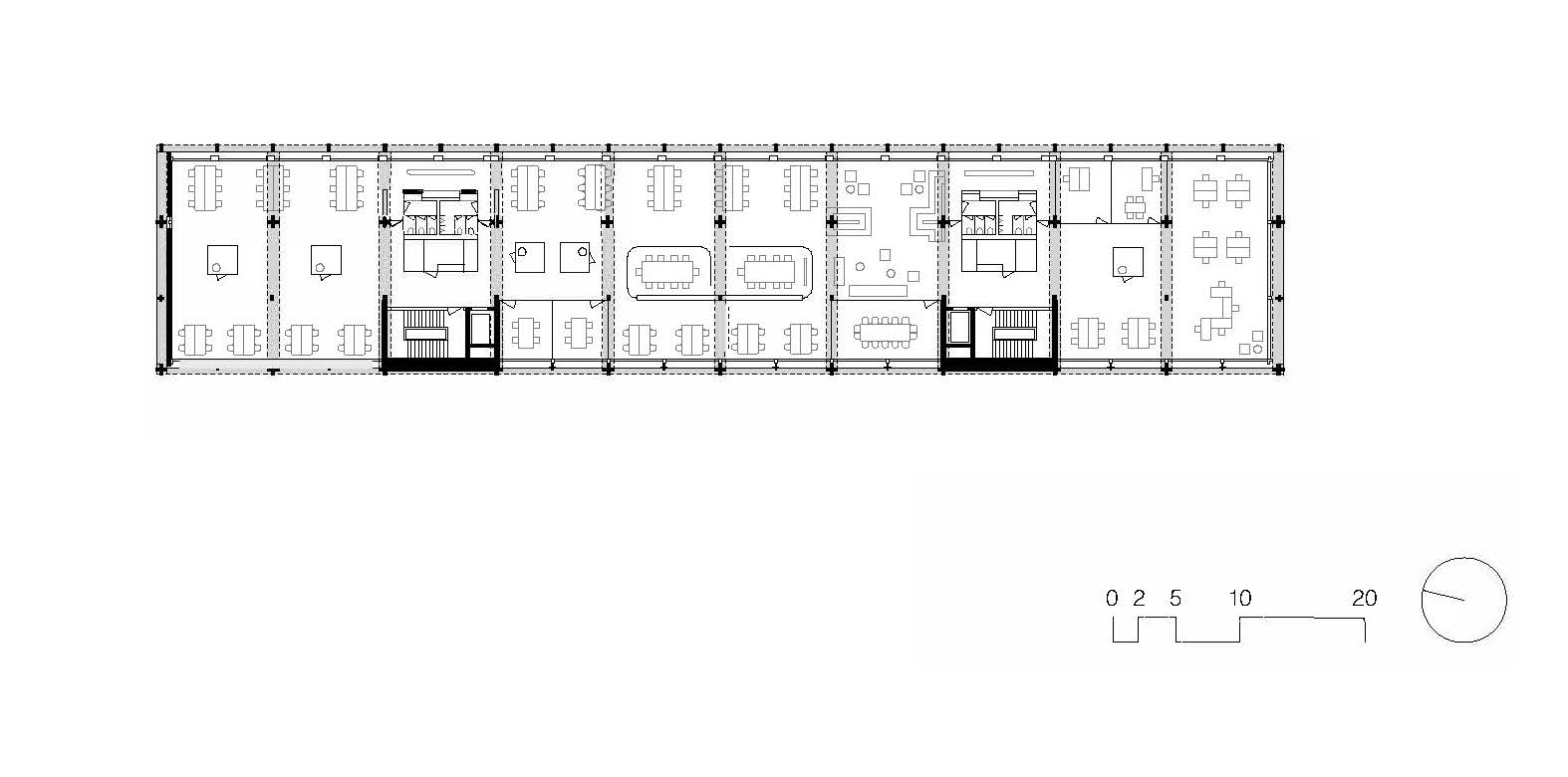
Bauherrin ist die Urner Kantonalbank, die ihren Hauptsitz hierher verlegt hat und nun rund ein Drittel der Fläche selbst nutzt. Die drei obersten Geschosse werden als Büros fremd vermietet, im Erdgeschoss gibt es die obligatorische Bahnhofshalle, Läden und ein SB-Center der Bank.


Das ganze Haus ruht auf großen Kreuzstützen. Nur in den Obergeschossen liegen sie teils im Gebäudeinneren, sonst außen vor den Fassaden. © Rory Gardiner
Die langgestreckte Gebäudeform war durch die bestehenden Bahntrassen und Busspuren vorgegeben. 90 m lang und 18 m breit ist der Neubau in den Obergeschossen. Im Erdgeschoss springt er am Bahnhofsvorplatz weitere 6 m zurück, um einen geschützten Wartebereich vor den Bushaltestellen entstehen zu lassen. Richtung Bahnsteige kragt über der Erdgeschosszone ein Vordach aus.


Auf den zweiten Blick wird das unterschiedliche Profil der Ost- und der Westfassade erkennbar. © Rory Gardiner


Richtung Bahnsteige kragt über der Erdgeschosszone ein Vordach aus. © Rory Gardiner
Betonstruktur mit weiten Spannweiten
Die Auskragung der Obergeschosse führte zur Entwicklung eines ungewöhnlichen Betontragwerks, das seinerseits die Fassaden prägt. Große Kreuzstützen mit 90 x 90 cm Querschnitt tragen das ganze Haus. Knapp 9 m beträgt ihr Abstand in Gebäudelängsrichtung und sogar 12 m in Querrichtung, sodass das Erdgeschoss komplett stützenfrei bleibt. Über dem 4. Obergeschoss liegen auf den Stützen mächtige Spannbetonträger auf, an denen wiederum die Richtung Bahnhofsvorplatz auskragenden Geschossdecken hängen. Die 30-60 cm tiefen und 25 cm breiten Fassadenstützen aus Ortbeton sind hier also auf Zug belastet. Dem Kräfteverlauf folgend, werden sie nach unten hin immer schlanker und geben dem Haus so ein charakteristisches Profil.


Die Formen und Materialien des Hauptgebäudes kehren auch in der Überdachung der Bussteige wieder. © Rory Gardiner
Auf der Seite des Gleisbetts hingegen wechseln sich große Kreuzstützen und schlanke Fassadenstützen in der Fassade ab. Zwei symmetrisch angeordnete Sichtbetonwände geben hier die Position der beiden Treppenhäuser zu erkennen.
Architektur: Buchner Bründler Architekten
Generalplanung: Arge Buchner Bründler Architekten/Proplaning
Bauherr: Urner Kantonal Bank
Standort: Bahnhofplatz 1, 6460 Altdorf (CH)
Generalplanung: Arge Buchner Bründler Architekten/Proplaning
Tragwerks- und Fassadenplanung: Lüchinger Meyer
Landschaftsarchitektur: Berchtold Lenzin
Bauphysik, Akustik: Kopitsis Bauphysik
HKLS-Planung: Hans Abicht
Bauunternehmen: Arge Gamma Porr
Grundstücksfläche: 1880 m²
Bebaute Fläche: 774 m²
Geschossfläche: 10 160 m²























