Temporäres Bauen neu gedacht
Bühnenbau in München von Mahlknecht Herrle Architektur
© Oliver Jaist
Lorem Ipsum: Zwischenüberschrift
Nach kurzer Bauzeit ist das neue Theater „Schwere Reiter“ von Mahlknecht Herrle Architektur fertig. Der Interimsbau fügt sich mit der rauen Oberflächenbeschaffenheit aus rostigem Stahl mühelos in das Münchner Kreativquartier ein.


© Oliver Jaist
Lorem Ipsum: Zwischenüberschrift
Nachdem die Künstlerkooperation „Schwere Reiter“ aufgrund baufälliger Substanz ihre bisherigen Räumlichkeiten verlassen musste, sollte schnellst möglich eine Übergangslösung her. Die Planer von Mahlknecht Herrle Architektur lösten diese Aufgabe mit einem Interimsbau, der sich durch einen hohen Grad an Vorfertigung und Rückbaubarkeit auszeichnet.
Lorem Ipsum: Zwischenüberschrift
Die große Besonderheit des Baus stellt die Fassade aus Spundwänden dar. Um dem straffen Zeitfenster für die Baukonstruktion gerecht zu werden, fungieren die Spundwände sowohl als Fassade als auch als Gründung und ermöglichen so eine Verkürzung der Bauzeit. Zudem ist die einfache Wiederverwendung im Falle eines Rückbaus gesichert.


© Oliver Jaist
Lorem Ipsum: Zwischenüberschrift
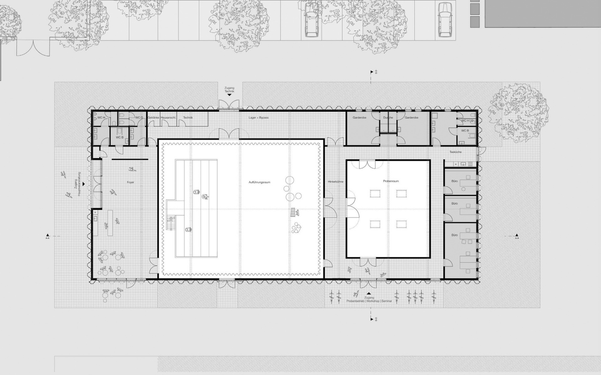
Alle Eingänge und Öffnungen des Kulturzentrums werden durch hochgezogene Spundwände markiert. Diese Geste des Aufbrechens einer Mauer spiegelt das Ziel wider, einen breiten Zugang zur experimentellen Kunst zu schaffen. Der Bau gliedert sich in zwei Bereiche, den Veranstaltungsbereich und den Versorgungsbereich, welche sowohl autonom als auch gekoppelt funktionieren.


© Oliver Jaist


© Oliver Jaist
Lorem Ipsum: Zwischenüberschrift
Der Haupteingang zum Veranstaltungsbereich befindet sich gegenüber des ehemaligen Schwere-Reiter-Gebäudes und leitet die Besucher direkt in das großzügige Foyer. Die Verbindung zwischen Foyer und Außenraum entsteht über die Verwendung von Gehwegplatten als Bodenbelag und wird durch bodentiefe Fenster verstärkt. An das Foyer gliedert sich das Herzstück des Gebäudes, der Aufführungsraum. Wie im gesamten Gebäudeinneren sind auch hier die Stahlfachwerkträger sichtbar und räumlich erfahrbar.


© Oliver Jaist


© Oliver Jaist
Lorem Ipsum: Zwischenüberschrift
Der Versorgungsbereich ist über einen zweiten Eingang zugänglich. Neben einem Proberaum und Büros finden sich hier die Künstlergarderoben und Lagerbereiche.


© Oliver Jaist
Lorem Ipsum: Zwischenüberschrift
Der Innenausbau ist losgelöst von der Tragstruktur. Durch die modulare Bauweise wurde ein hohes Maß an Vorfertigung ermöglicht.
Mehr dazu in Detail 12.2022 und in unserer Datenbank Detail Inspiration.
Architektur: Mahlknecht Herrle Architektur
Bauherr: Münchner Gewerbehöfe, Kulturreferat München, Kommunalreferat München
Standort: München (DE)
Tragwerksplanung: STATOPLAN Eglinger und Clausnitzer Beratende Ingenieure
Landschaftsarchitektur: grünhoch4
TGA-Planung: g3 Ingenieure, B&W ELT-Planungsbüro
Bauphysik: Möhler + Partner Ingenieure

















