// Check if the article Layout ?>
Bunte Akzente: Kreativquartier im Norden von London
Foto: Jan Kattein Architects
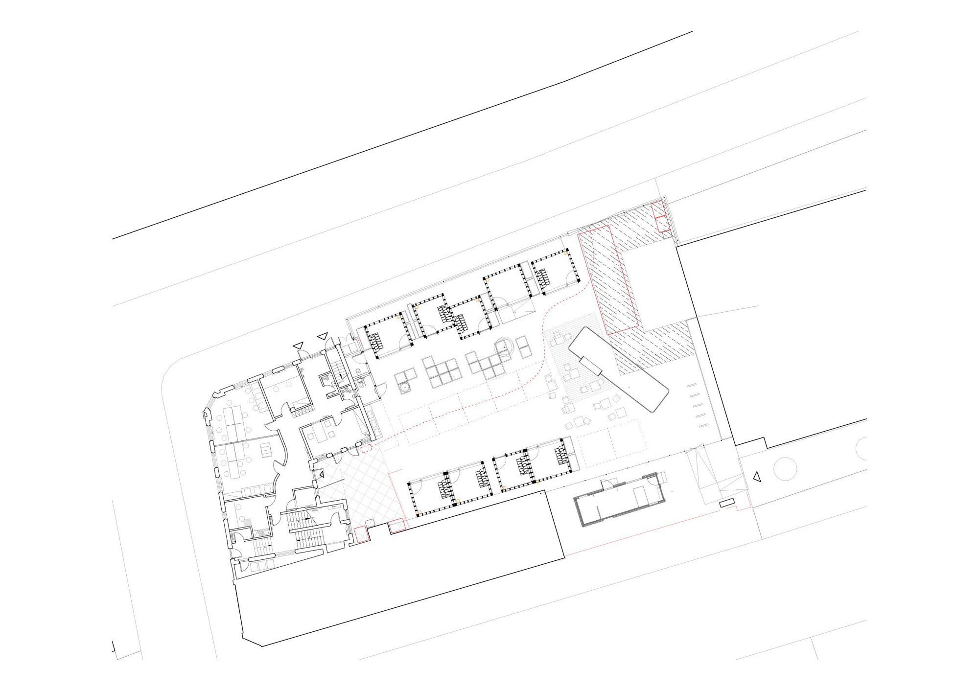
Unweit der U-Bahnstation »Wood Green«, ein Stadtteil im Norden von London, füllt der Blue House Yard eine Lücke, die vorher mitten im Zentrum des Viertels klaffte. Das Projekt von Jan Kattein Architects umfasst ein Bestandsgebäude, das vorher leer stand und einen ehemaligen Parkplatz. Gemeinsam mit Meanwhile Space, die viele lokale Projekte dieser Art unterstützen und managen, entwickelten sie ein temporäres Projekt, das in den nächsten fünf Jahren dem Ortskern mehr Lebendigkeit geben soll.
Das Bestandsgebäude ist in seiner Substanz erhalten, aber komplett renoviert und innen modernisiert. Die auffällige blaue Farbe - innen wie außen - macht es zum Hingucker. Hier können lokale Künstler und Handwerker Studios mieten, außerdem gibt es gemeinschaftliche Flächen und ein stetiges Angebot an kreativen Kursen.
Im Hof sind acht kleine Holzhäuschen errichtet. Jedes hat eine andere Farbe und ist so entworfen, dass es möglichst einfach gebaut werden konnte. Die Häuschen haben jeweils zwei Stockwerke für Verkaufsflächen und Lagerplatz und bieten Start-Ups oder kleineren Ateliers einen günstigen Raum zum Präsentieren und Verkaufen ihrer Waren und Werke.
Abgerundet wird das Ensemble durch einen typischen Londoner Doppeldecker-Bus, in dem ein Café Besucher zum Verweilen einlädt, und einen Taxi-Stand, der auch im Stil der Hütten aus Holz gebaut ist.
Der Hof bietet Platz für Veranstaltungen und einen Markt, der regelmäßig stattfindet.
Das Projekt wurde mit Hilfe vieler Freiwilliger und der Partizipation der Mieter der Werkstätten realisiert. Das machte das Projekt für die Gemeinde erschwinglich und ist ein Beispiel dafür, wie Partizipation Menschen zusammenbringt und eine Gemeinde stärkt.
Mehr Informationen finden Sie hier.
Das Bestandsgebäude ist in seiner Substanz erhalten, aber komplett renoviert und innen modernisiert. Die auffällige blaue Farbe - innen wie außen - macht es zum Hingucker. Hier können lokale Künstler und Handwerker Studios mieten, außerdem gibt es gemeinschaftliche Flächen und ein stetiges Angebot an kreativen Kursen.
Im Hof sind acht kleine Holzhäuschen errichtet. Jedes hat eine andere Farbe und ist so entworfen, dass es möglichst einfach gebaut werden konnte. Die Häuschen haben jeweils zwei Stockwerke für Verkaufsflächen und Lagerplatz und bieten Start-Ups oder kleineren Ateliers einen günstigen Raum zum Präsentieren und Verkaufen ihrer Waren und Werke.
Abgerundet wird das Ensemble durch einen typischen Londoner Doppeldecker-Bus, in dem ein Café Besucher zum Verweilen einlädt, und einen Taxi-Stand, der auch im Stil der Hütten aus Holz gebaut ist.
Der Hof bietet Platz für Veranstaltungen und einen Markt, der regelmäßig stattfindet.
Das Projekt wurde mit Hilfe vieler Freiwilliger und der Partizipation der Mieter der Werkstätten realisiert. Das machte das Projekt für die Gemeinde erschwinglich und ist ein Beispiel dafür, wie Partizipation Menschen zusammenbringt und eine Gemeinde stärkt.
Mehr Informationen finden Sie hier.
Zusätzliche Informationen:
Bauingenieur: StructureMode
Entwickler und Betreiber: High Street Works
Partner: London Borough of Haringey
Finanzierung: Mayor of London und Velfac












