Bunte Gemeinschaft: Vertical Village II von Tham & Videgård
Modell: Tham & Videgård
Für eine neue Wohnsiedlung nahe dem Landvetter See in Göteborg plant Tham & Videgård eine Neuauflage des gleichnahmigen Stockholmer Projekts aus dem Jahr 2009. Der direkte Nachfolger »Vertical Village II« ist als Alternative zu einer typischen Reihenhaustypologie zu verstehen.
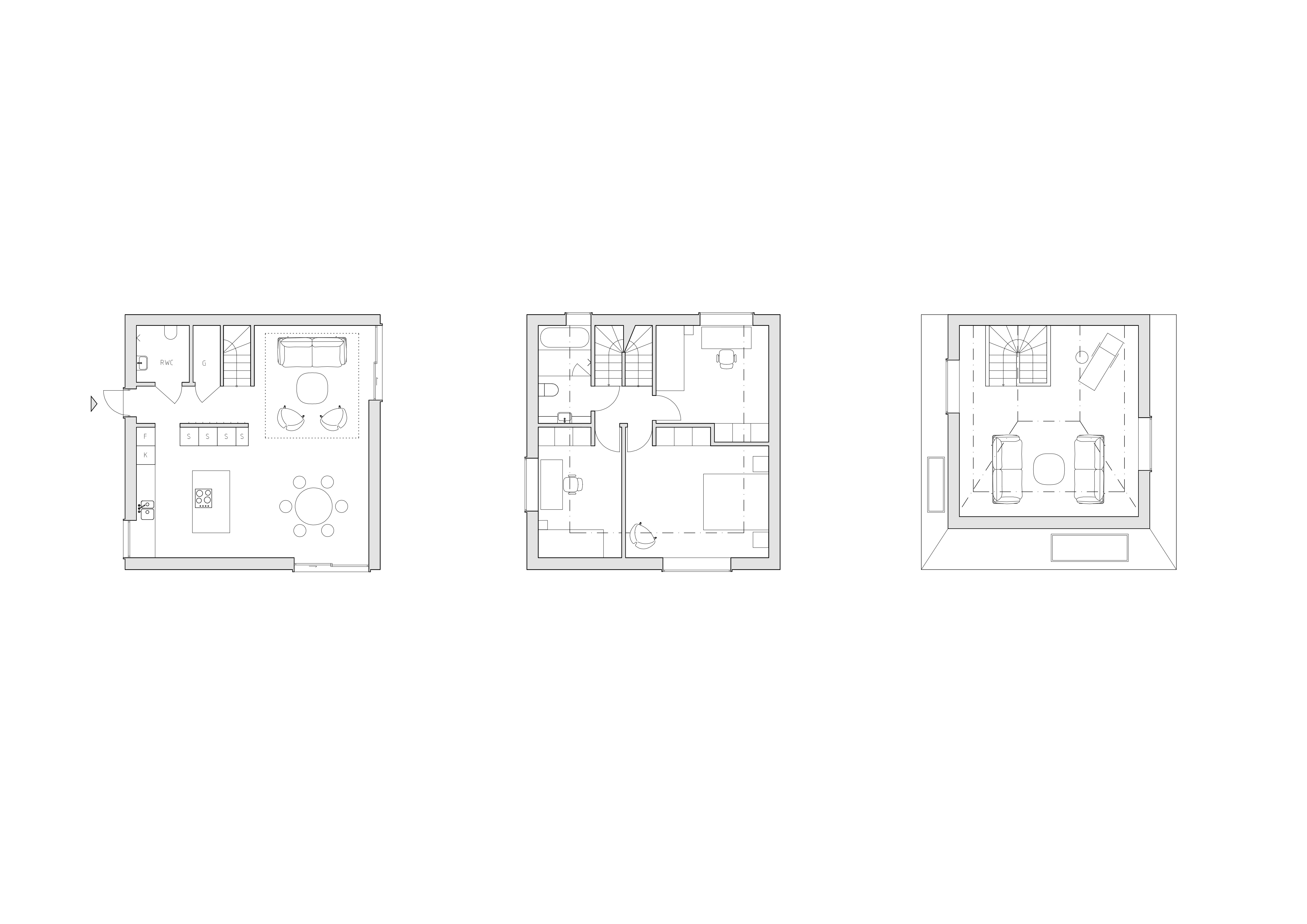
Die auf 140m2 standardisierten Wohnflächen des »Vertical Village II« sind vertikal angeordnet – Garten und hohe Hecken umschließen auf einem kreisförmigen Grundstück den Eingangsbereich, während die Schlafbereiche sich auf den oberen Etagen verteilen. Ganz oben befindet sich ein Studioraum mit großem Dachfenster. Unterschiedliche Fassaden, Farbtöne und Ausrichtungen sind die variierenden Elemente unter den ansonsten identisch gestalteten Wohnhäusern aus Brettsperrholz.
Aus diesen Gedanken entsteht derzeit das »Vertical Village II«, welches sich am historischen Urbild der Gartenstädte orientiert. Zwischenräume formen ein Netzwerk sich schlängelnder Gehwege, die eine klare Unterscheidung zwischen öffentlichen und privaten Flächen kennzeichnen. Lokale Vegetationen und Biodiversität tragen zu einem nachhaltigen und langfristig angelegten Wohnprojekt bei.
Weitere Informationen:
Team: Bolle Tham and Martin Videgård (chief architects), Simon Nilsson, Jonas Tjäder
Status: 2018 - ongoing
Total built area: 2.550 m2













